266 Park Rd.#
Last updated: 2024-04-02 · ID: D02-02-23-0024
Summary#
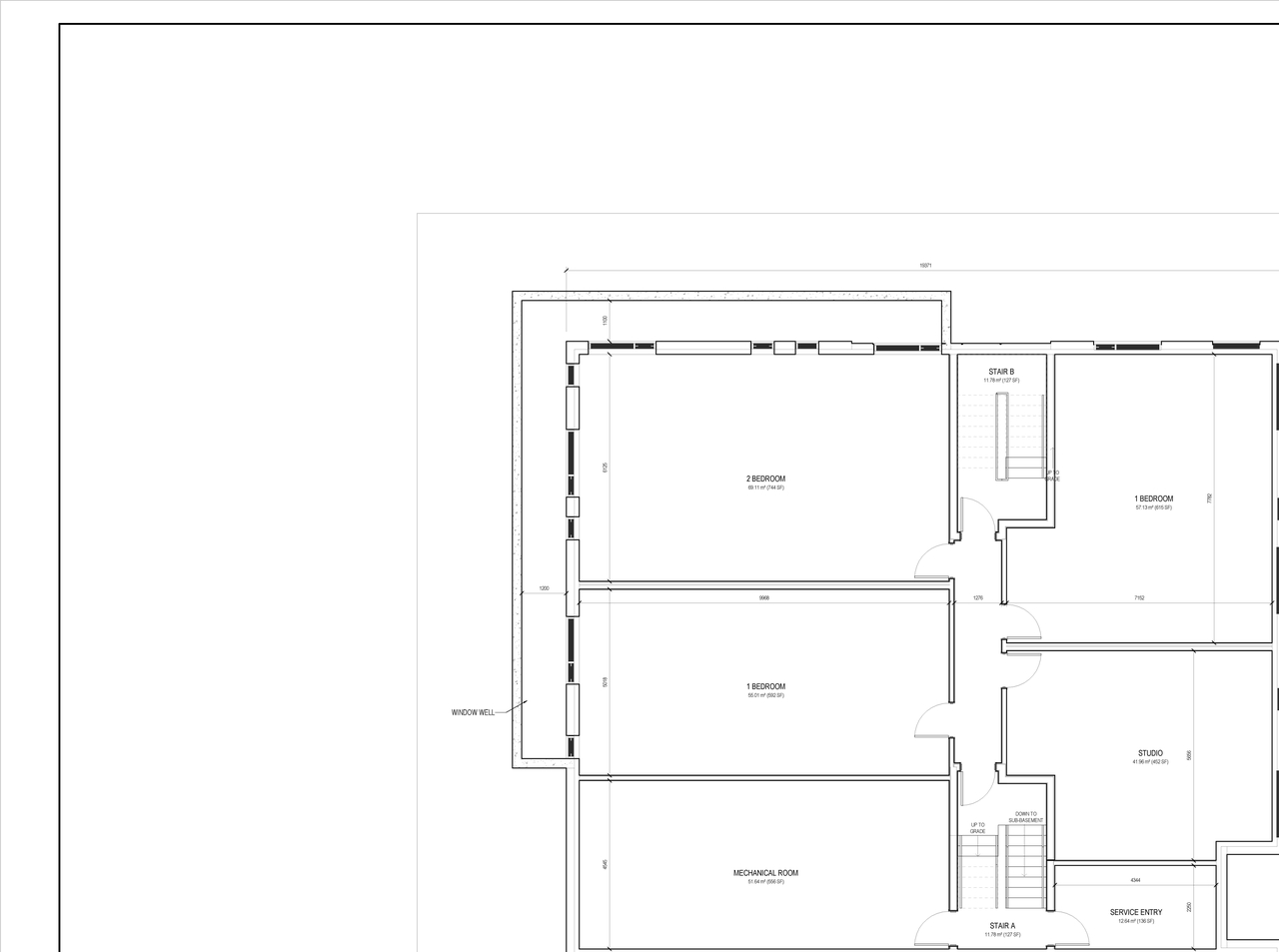
The City of Ottawa has received a Zoning By-law Amendment and Site Plan Control application to permit the construction of a low-rise apartment building consisting of 18 dwelling units. No vehicle parking is proposed; however, 10 bicycle parking spaces will be provided in a dedicated parking room at grade.
Status
Inactive (Zoning By-law in Effect)
Building Scale (Max.)
Based on elevation drawings. Values may be approximate. See sources for exact figures.
Low-rise · 3 storeys
· 10.9 m
Renders#
Location#
Select a marker to view the address.
Site Plans, Elevations and Floor Plans#
Additional Information#
| Date Initiated | 2023-03-31 |
| Ward | Ward 12 - Stéphanie Plante |




