381 Kent St.#
Last updated: 2024-09-28 · ID: D02-02-23-0020
Summary#
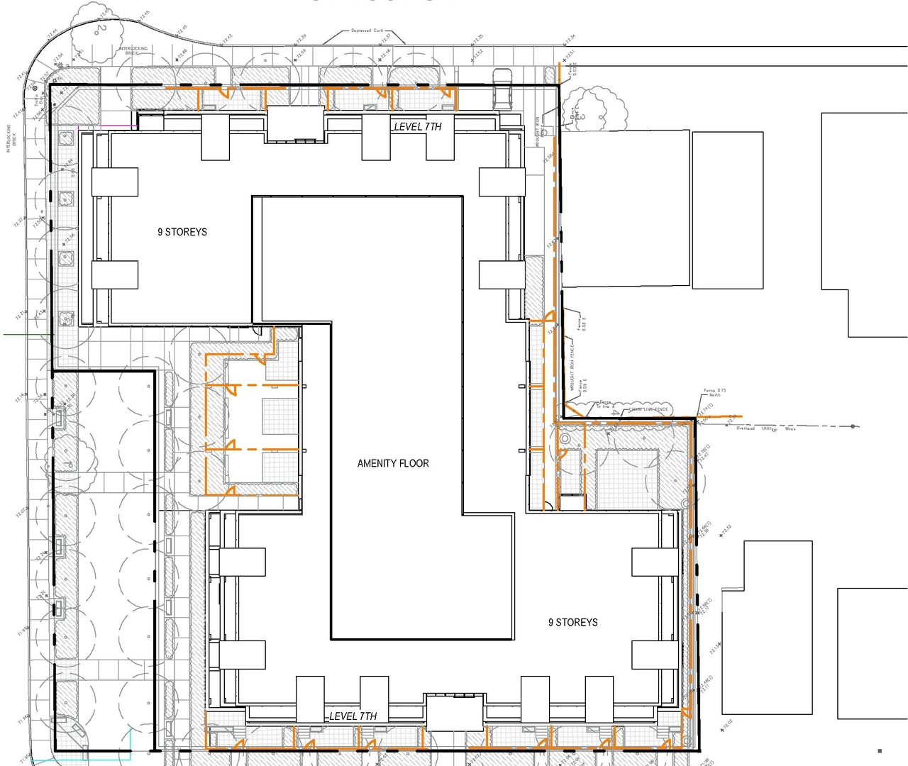
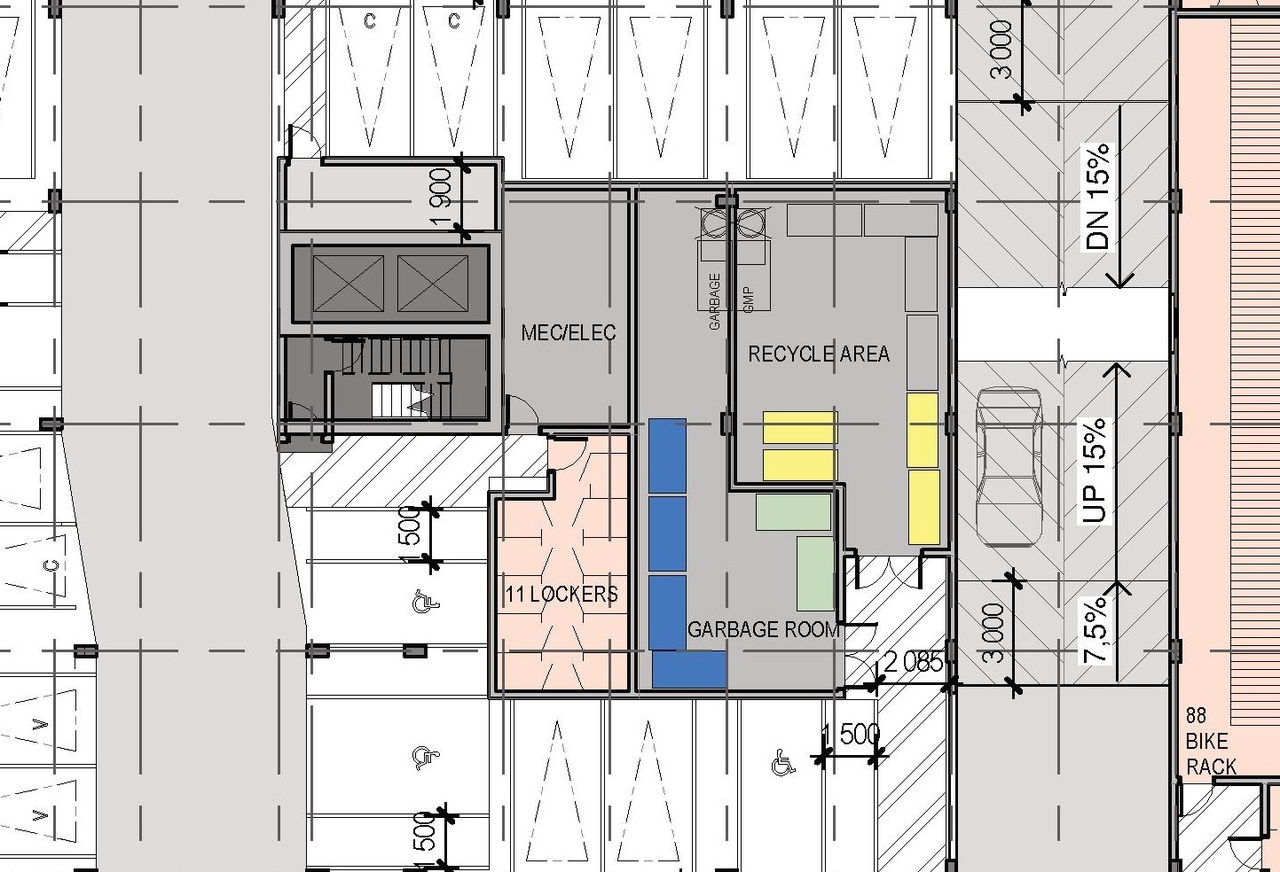
The proposed Zoning By-law Amendment serves to apply a GM General Mixed Use zoning with a site-specific exception to the site in order to establish a 9-storey mixed-use residential building with commercial elements at-grade.
Status
Inactive (Zoning By-law in Effect)
Building Scale (Max.)
Based on elevation drawings. Values may be approximate. See sources for exact figures.
Mid-rise · 9 storeys
· 32.1 m
Renders#
Location#
Select a marker to view the address.
Site Plans, Elevations and Floor Plans#
Additional Information#
| Date Initiated | 2023-03-22 |
| Ward | Ward 14 - Ariel Troster |

































































