1806 Scott St.#
Summary#
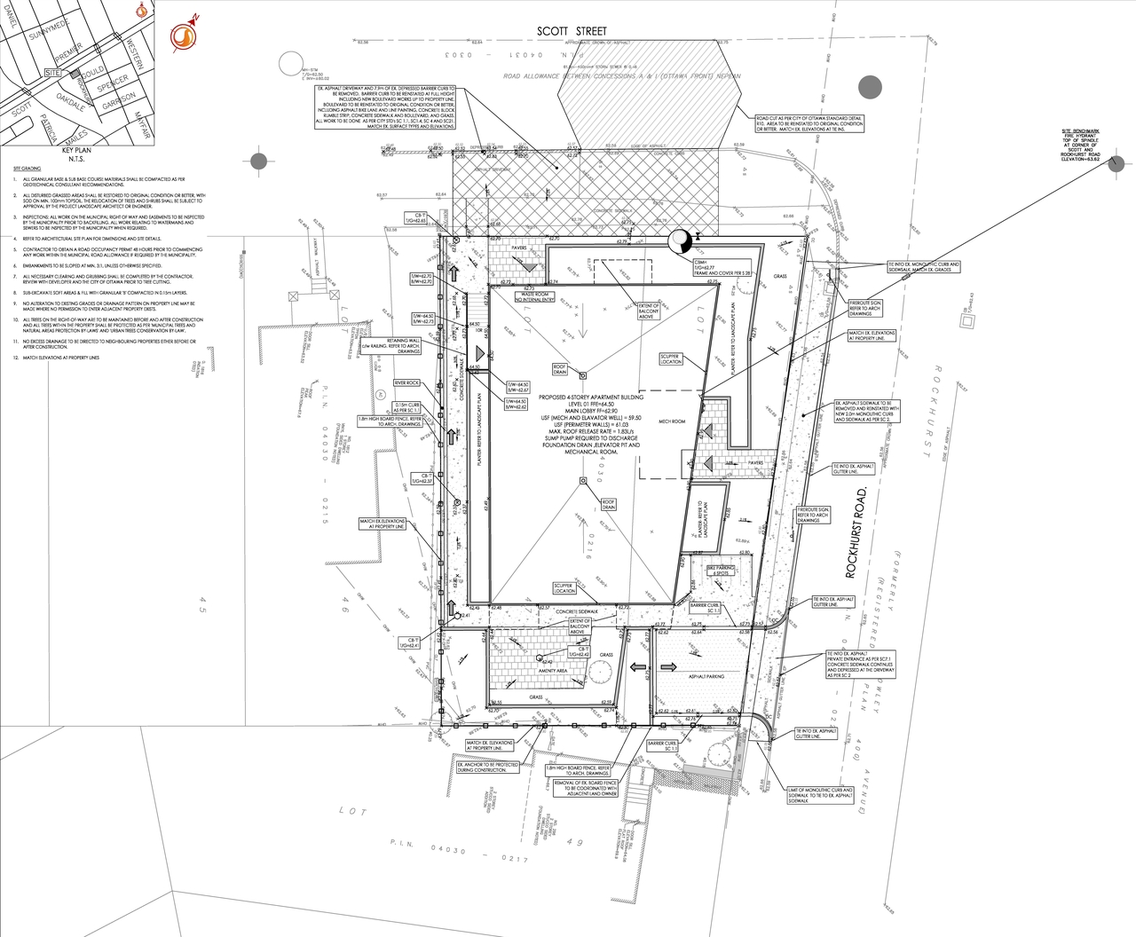
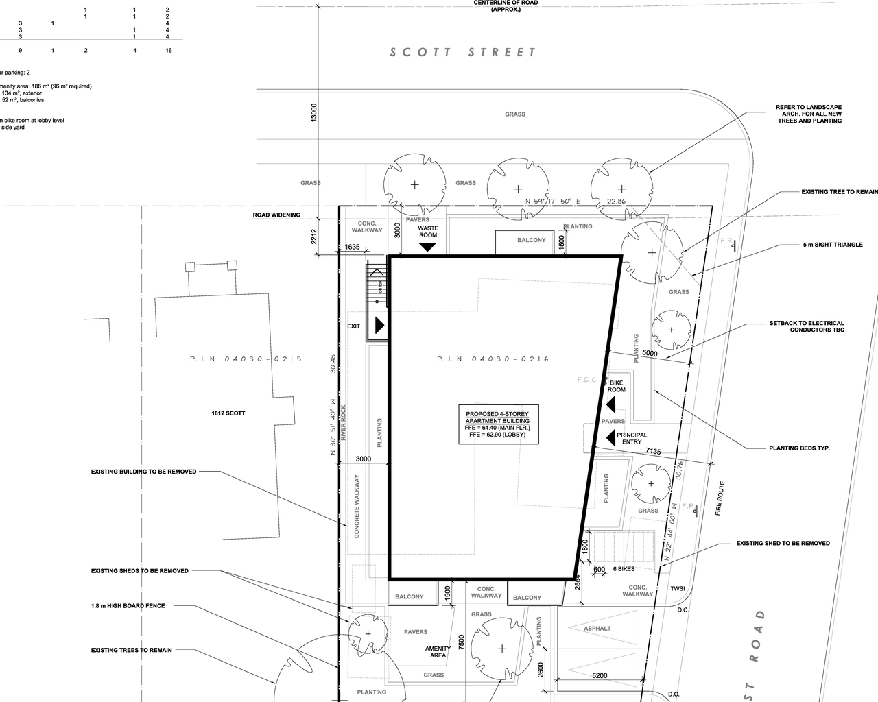
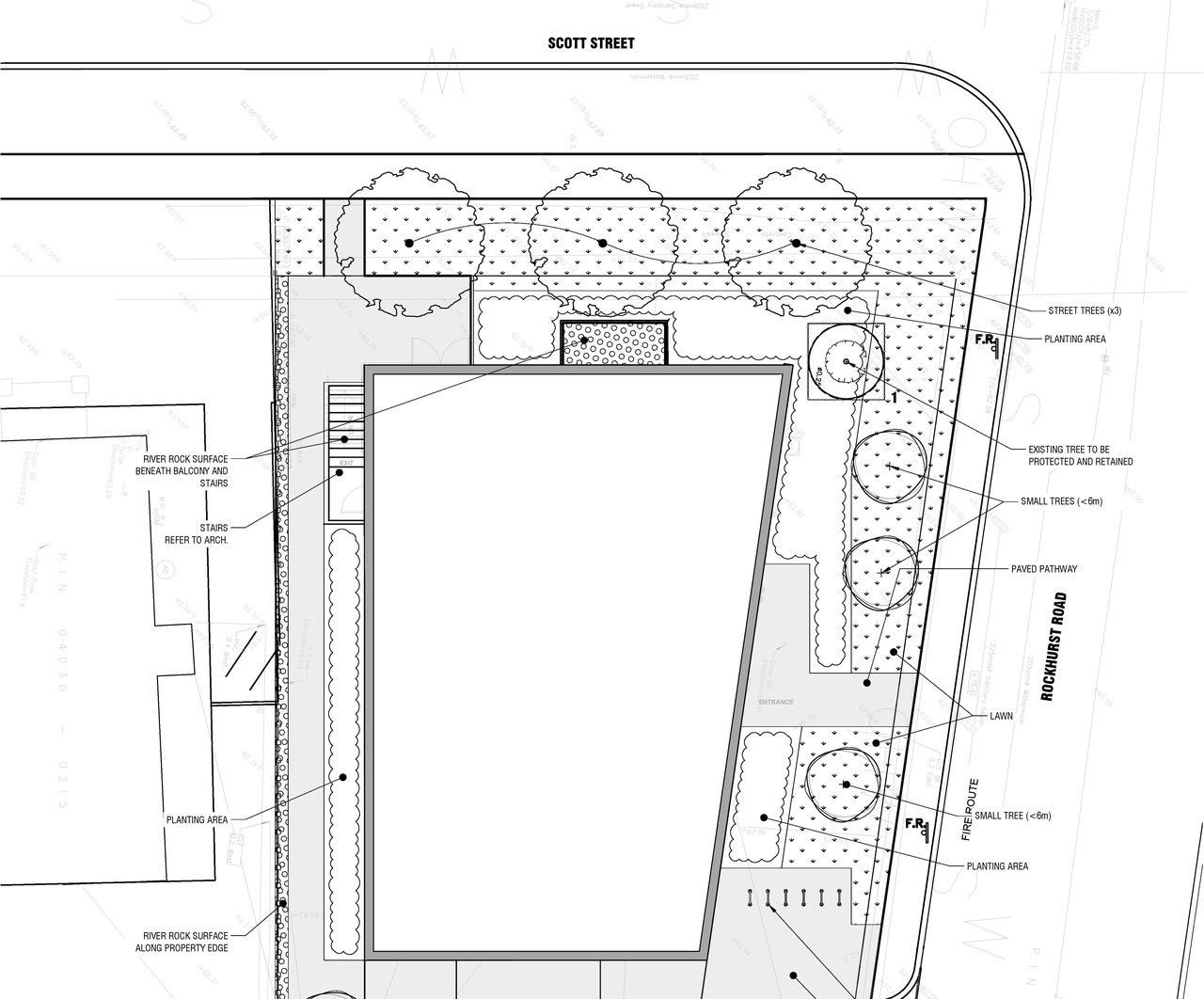
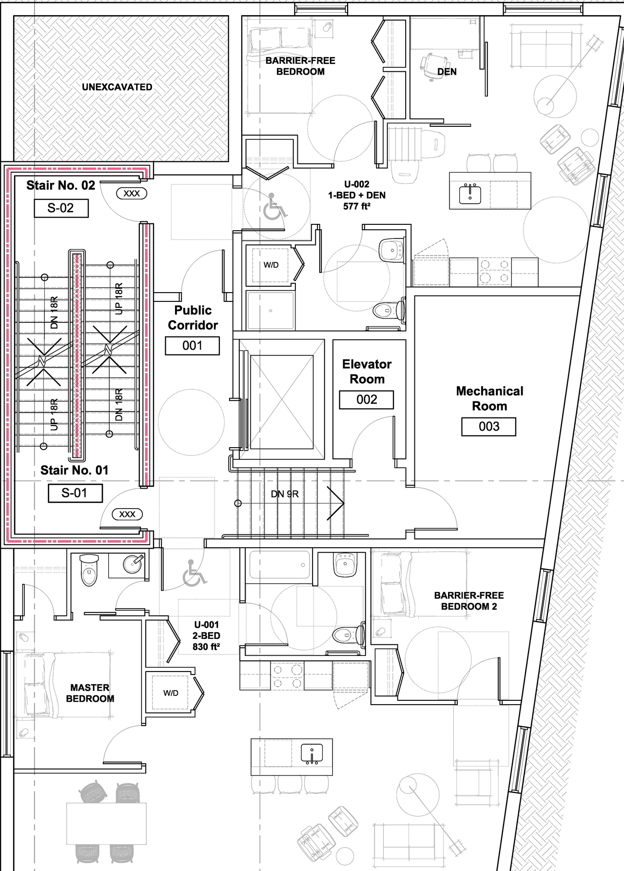
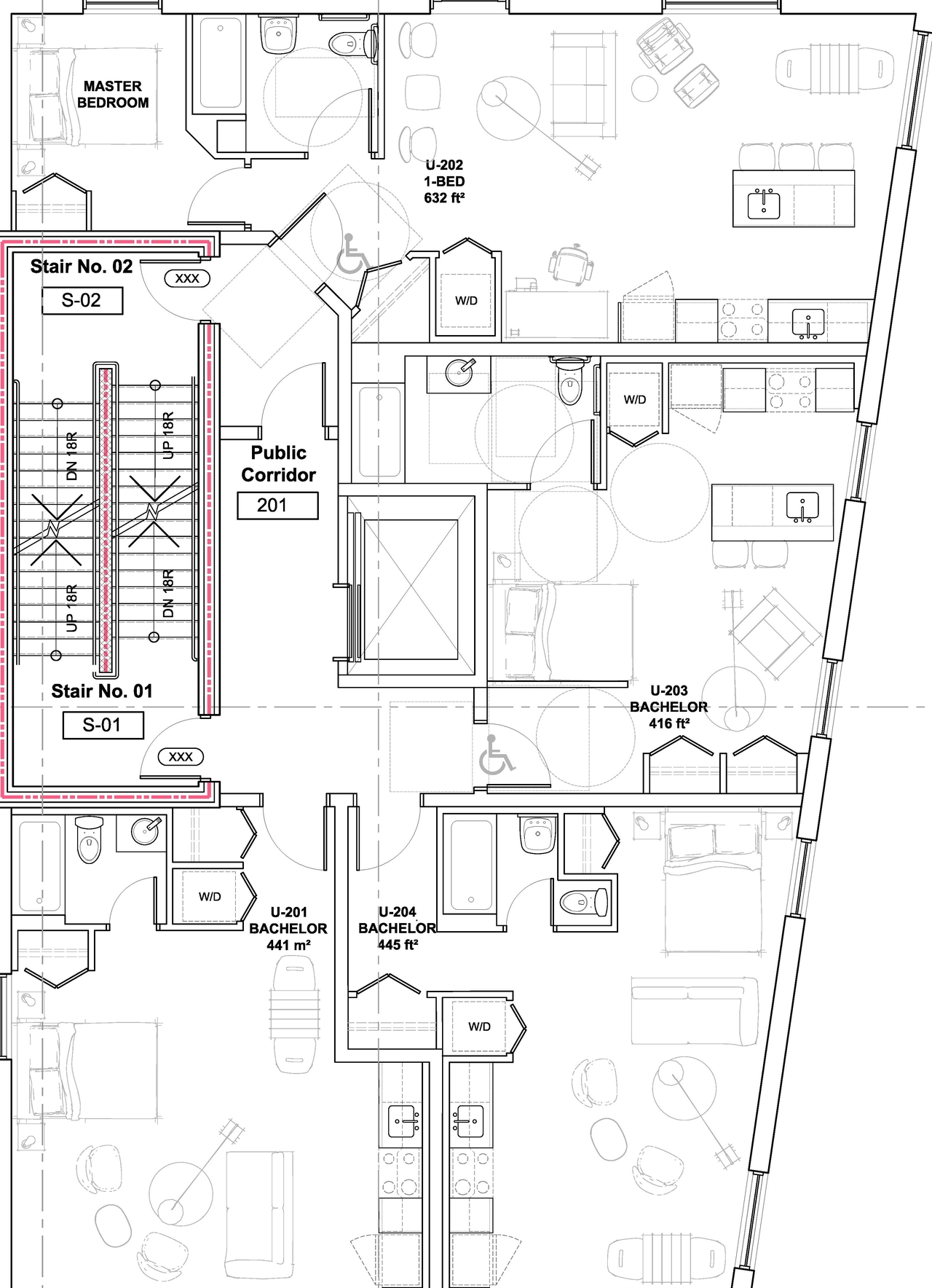
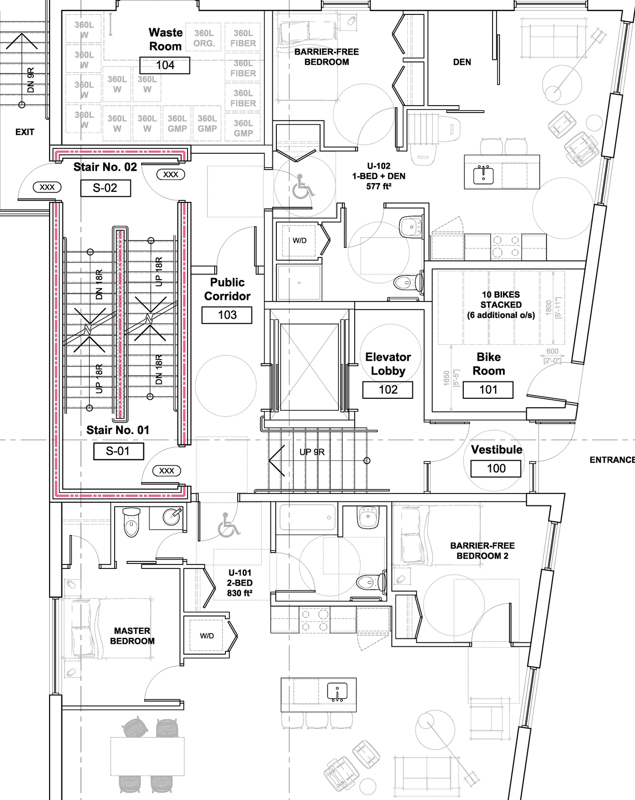
The City of Ottawa has received a Zoning By-law Amendment and Site Plan Control application to construct a four-storey low-rise apartment building, with a total of 16 dwelling units. There will be two visitor parking space and 16 bicycle parking spaces provided.
Status
Inactive (Zoning By-law in Effect)
Building Scale (Max.)
Based on elevation drawings. Values may be approximate. See sources for exact figures.
Mid-rise · 4 storeys
Data Quality Note
Text was extracted using optical character recognition. This may introduce artifacts or misreads.
· 11.3 m
Data Quality Note
Height was partially estimated using visual scale. This may be approximate.
Data Quality Note
Text was extracted using optical character recognition. This may introduce artifacts or misreads.
Renders#
Location#
Site Plans, Elevations and Floor Plans#
Additional Information#
| Date Initiated | 2023-01-30 |
| Ward | Ward 15 - Jeff Leiper |






























