9 Beckenham Ln./1765 Montreal#
Summary#
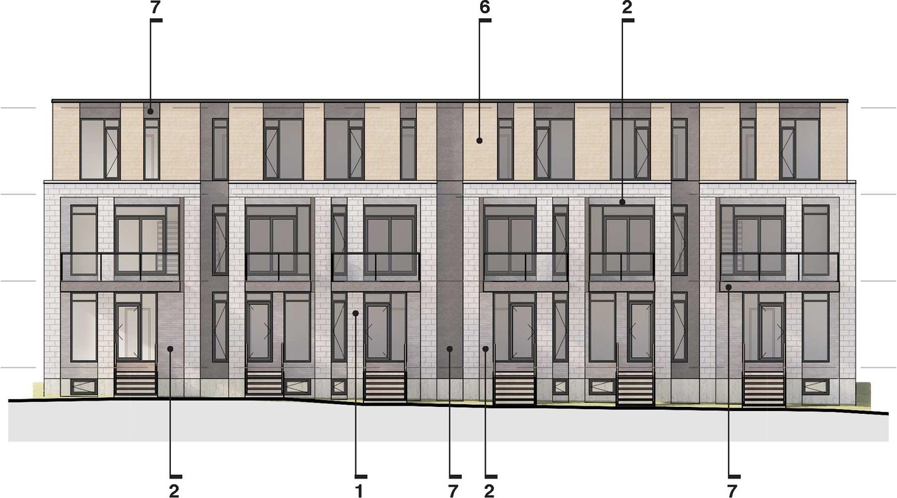
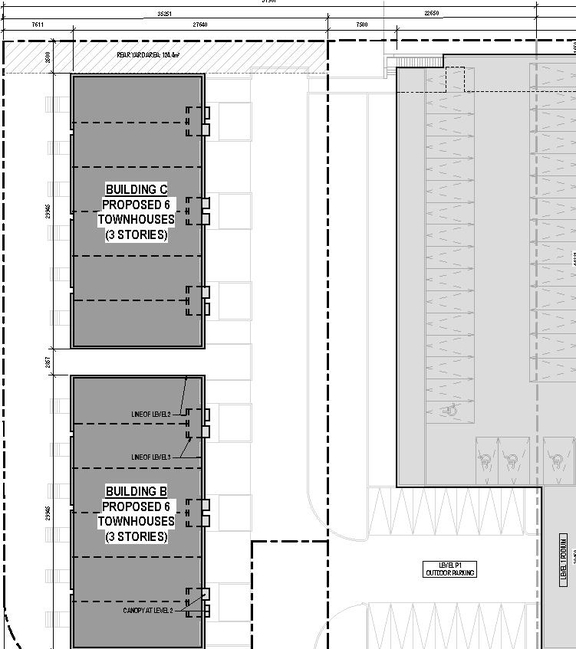
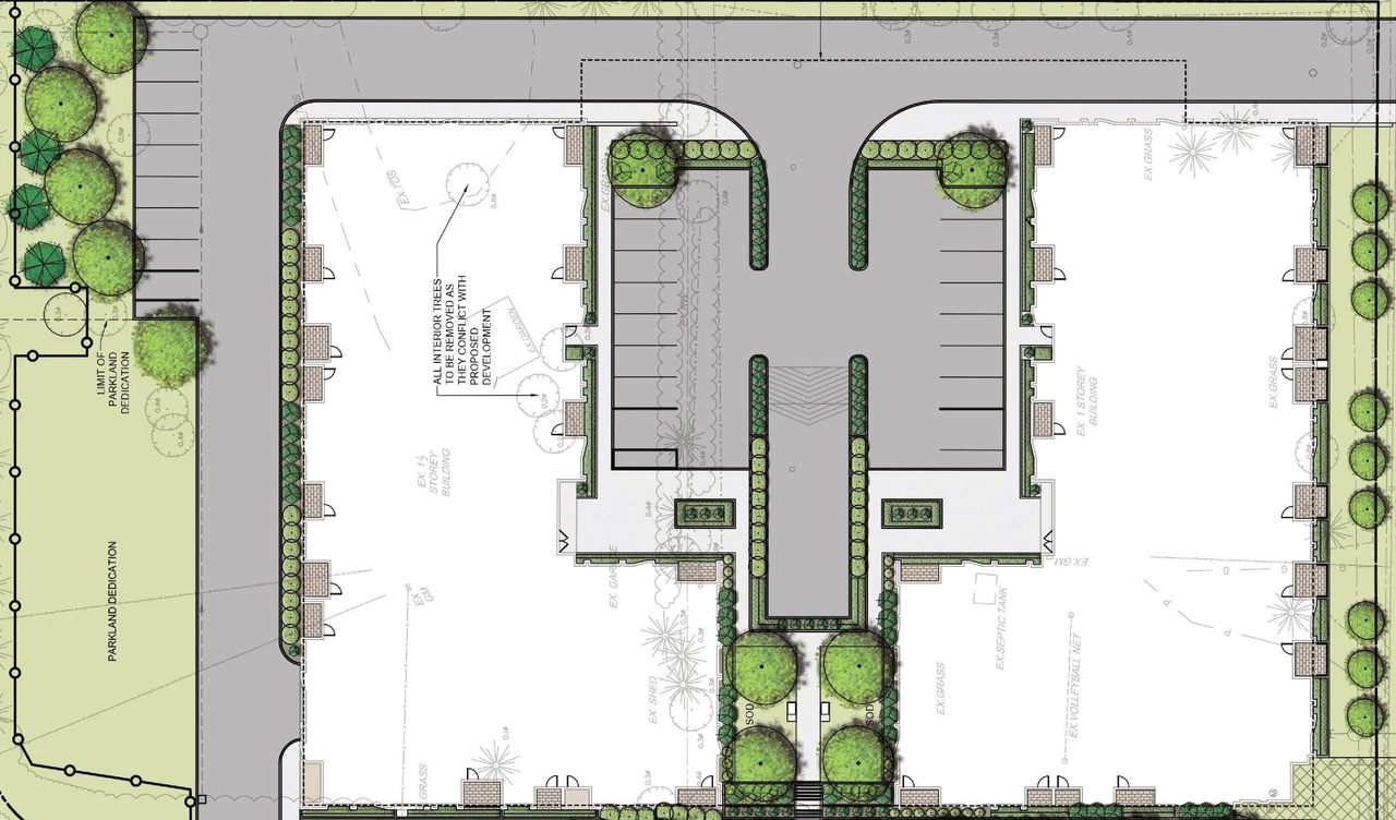
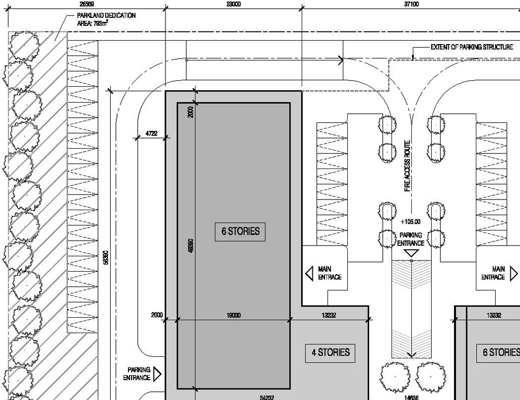
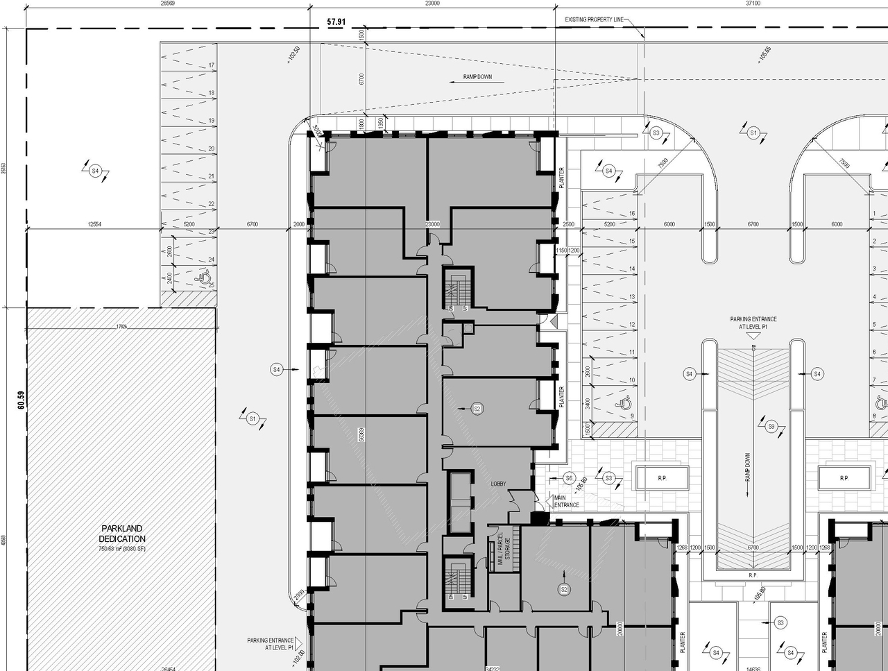
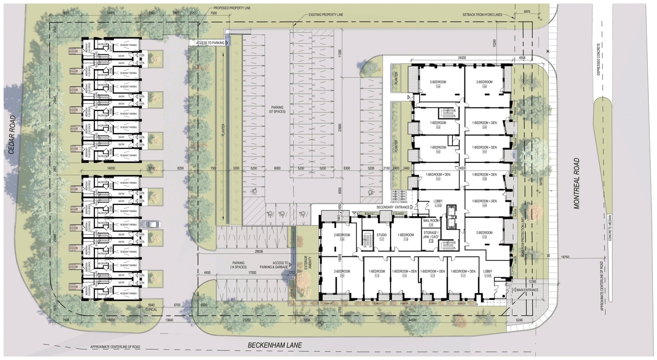
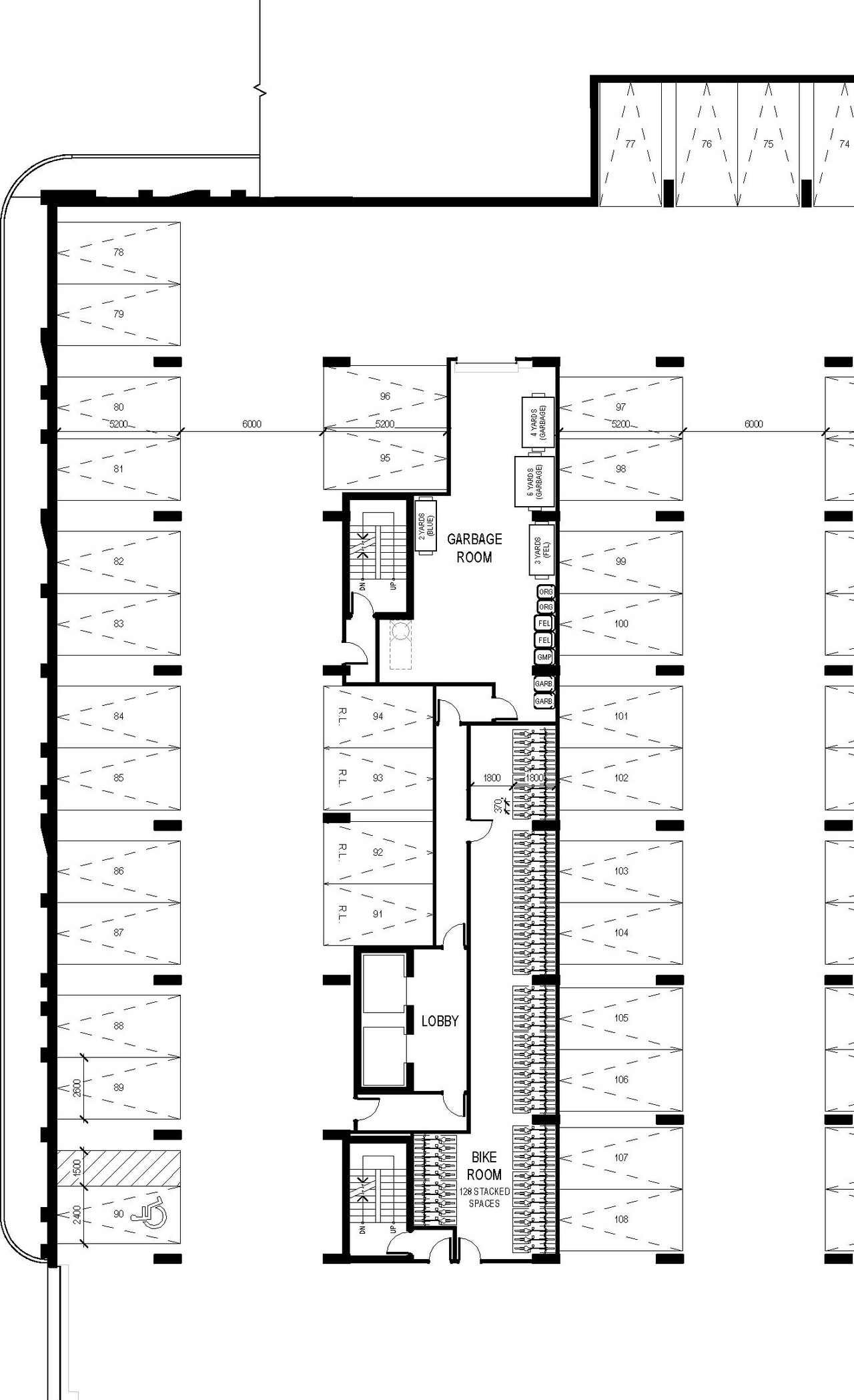
The proposed development at 1765 Montreal Rd. is a tiered 9-storey apartment building with surface parking on the podium accessed via Montreal Rd. and one level of underground parking accessed via Beckenham Ln. It will have 159 rental units varying in size, and 194 parking spaces (162 resident and 32 visitor). The proposed development at 9 Beckenham Ln. is two sets of 6 standard townhouses for a 1 total of 12 units with individual front entrances and garages. The townhouses will be a condominium project, it will have 12 parking spaces, and each unit will be a 3-bedroom unit. As per section 102, (4), visitor parking is not required for the townhouses.
Status
File Pending (Application File Pending)
Building Scale (Max.)
Based on elevation drawings. Values may be approximate. See sources for exact figures.
High-rise · 17 storeys
· 55.46 m
Renders#
Location#
Site Plans, Elevations and Floor Plans#
Additional Information#
| Date Initiated | 2022-12-23 |
| Ward | Ward 11 - Tim Tierney |
| Other IDs | D07-12-22-0185 |


















































