266-268 Carruthers Ave./177 Armstrong St.#
Last updated: 2024-04-02 · ID: D02-02-22-0106
Summary#
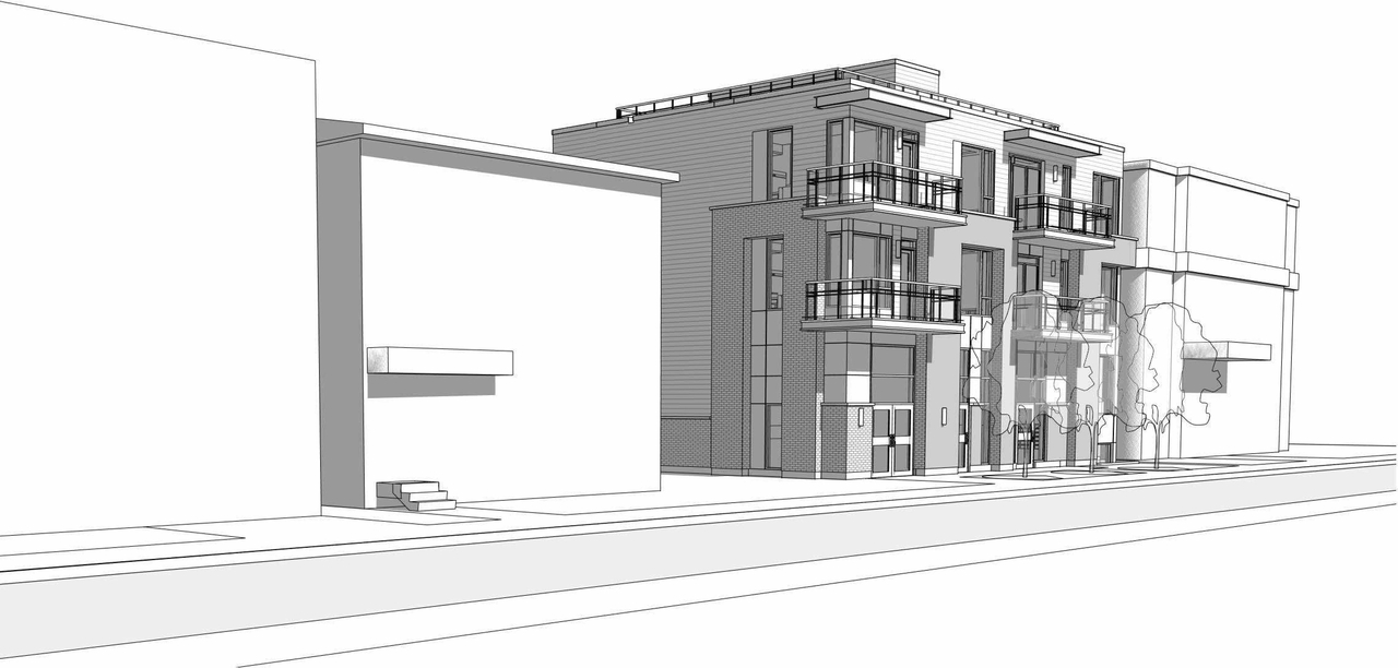
The City of Ottawa has received a Zoning By-law Amendment and Site Plan Control application to develop a three-and-one-half-storey low-rise apartment building with 18 rental units. No on-site parking is proposed.
Status
Inactive (Zoning By-law in Effect)
Building Scale (Max.)
Based on elevation drawings. Values may be approximate. See sources for exact figures.
Low-rise · 1 storey
· 12.4 m
Data Quality Note
Height was partially estimated using visual scale. This may be approximate.
Location#
Select a marker to view the address.
Site Plans, Elevations and Floor Plans#
Additional Information#
| Date Initiated | 2022-11-15 |
| Ward | Ward 15 - Jeff Leiper |
| All Addresses | 266 Carruthers Ave. 268 Carruthers Ave. 177 Armstrong St. |
Documents#
Related Projects#
| Project | Last Updated | Date Initiated |
|---|---|---|
266-268 Carruthers Ave.177 Armstrong St.
D07-12-22-0162 | 2024-10-04 | 2022-11-15 |

