Ottawa Development Projects

3055 Richmond Rd.#

Last updated: 2025-12-11 · ID: D02-02-22-0090

Summary#

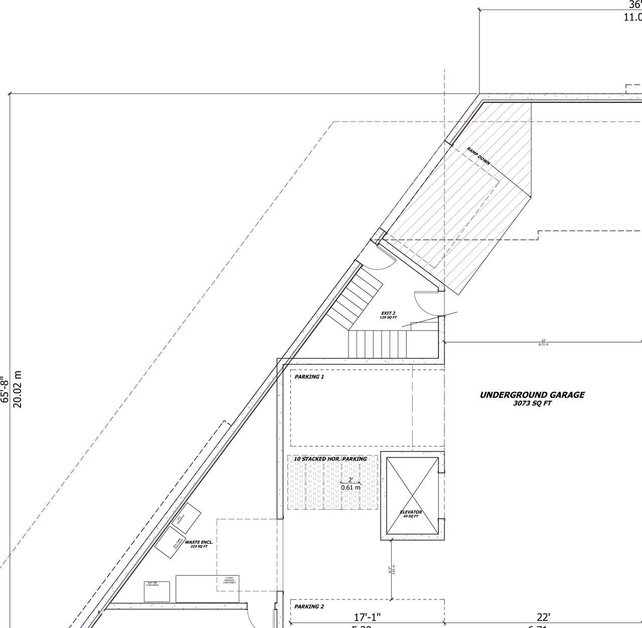
The City of Ottawa has received a Zoning By-law Amendment and Site Plan Control application to allow the construction of a four-storey low-rise apartment building containing 16 dwelling units with 11 parking spaces and 22 bicycle parking spaces, provided in a rear parking lot. Vehicle access is proposed of off Richmond Road.

Status
Inactive (Zoning By-law in Effect)

Building Scale (Max.) Based on elevation drawings. Values may be approximate. See sources for exact figures.
Mid-rise · 4 storeys Data Quality Note Text was extracted using optical character recognition. This may introduce artifacts or misreads. · 15.5 m Data Quality Note Height was partially estimated using visual scale. This may be approximate. Data Quality Note Text was extracted using optical character recognition. This may introduce artifacts or misreads.

Renders#

Location#

Select a marker to view the address.

Site Plans, Elevations and Floor Plans#

  • Image from page 8 of the file '2023-04-04 - Site Plan, Floor Plans & Elevations - D02-02-22-0090'
  • Image from page 7 of the file '2022-10-12 - Concept Renderings and Elevations - D02-02-22-0090'
  • Image from page 10 of the file '2022-10-12 - Design Brief - D02-02-22-0090'
  • Image from page 10 of the file '2022-10-12 - Design Brief - D02-02-22-0090'
  • Image from page 10 of the file '2022-10-12 - Design Brief - D02-02-22-0090'
  • Image from page 11 of the file '2023-04-04 - Site Plan, Floor Plans & Elevations - D02-02-22-0090'
  • Image from page 7 of the file '2022-10-12 - Concept Renderings and Elevations - D02-02-22-0090'
  • Image from page 8 of the file '2025-06-19 - Floor Plans and Elevations - D02-02-22-0090'
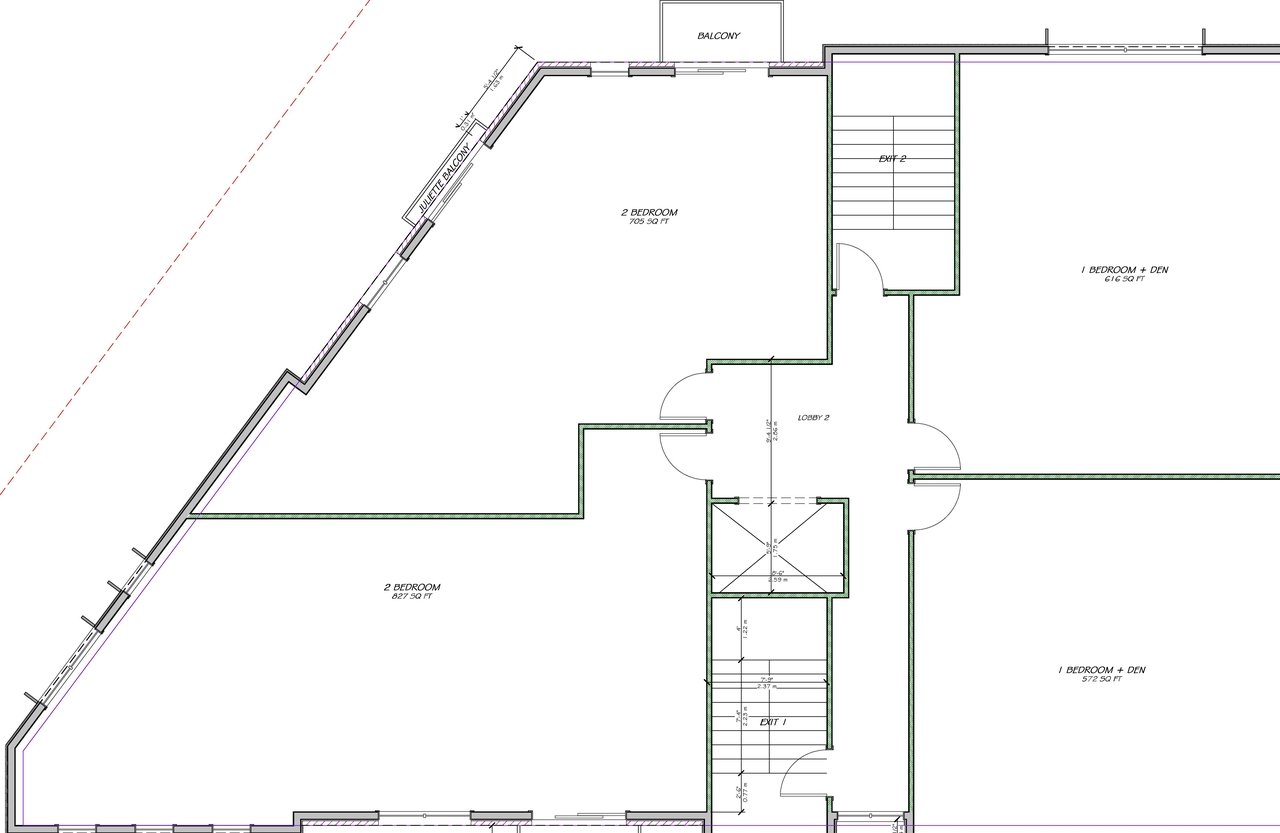
  • Image from page 9 of the file '2023-04-04 - Site Plan, Floor Plans & Elevations - D02-02-22-0090'
  • Image from page 11 of the file '2025-06-19 - Floor Plans and Elevations - D02-02-22-0090'
  • Image from page 7 of the file '2022-10-12 - Concept Renderings and Elevations - D02-02-22-0090'
  • Image from page 9 of the file '2025-06-19 - Floor Plans and Elevations - D02-02-22-0090'
  • Image from page 7 of the file '2022-10-12 - Concept Renderings and Elevations - D02-02-22-0090'
  • Image from page 2 of the file '2022-10-12 - Concept Renderings and Elevations - D02-02-22-0090'
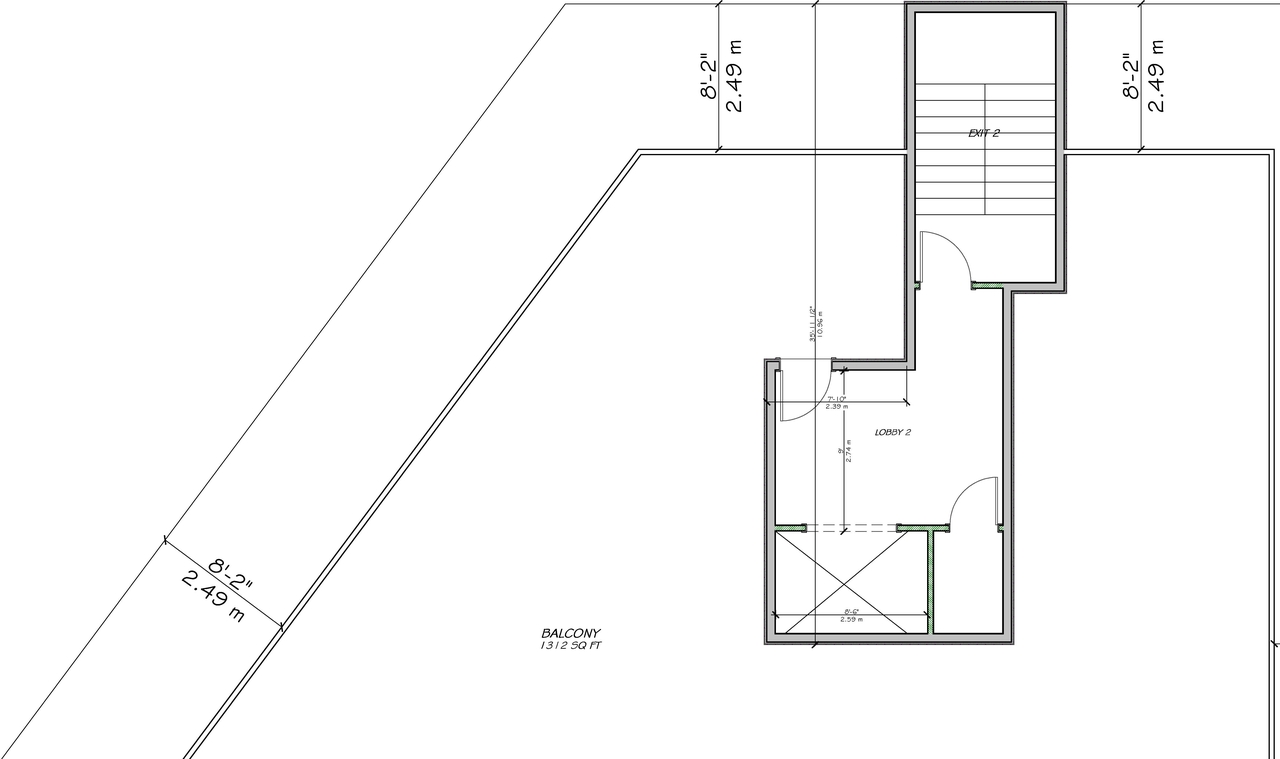
  • Image from page 10 of the file '2025-06-19 - Floor Plans and Elevations - D02-02-22-0090'
  • Image from page 9 of the file '2022-10-12 - Design Brief - D02-02-22-0090'
  • Image from page 3 of the file '2022-10-12 - Concept Renderings and Elevations - D02-02-22-0090'
  • Image from page 2 of the file '2025-06-19 - Renderings - D02-02-22-0090'
  • Image from page 5 of the file '2022-10-12 - Concept Renderings and Elevations - D02-02-22-0090'
  • Image from page 5 of the file '2022-10-12 - Concept Renderings and Elevations - D02-02-22-0090'
  • Image from page 9 of the file '2022-10-12 - Design Brief - D02-02-22-0090'
  • Image from page 8 of the file '2022-10-12 - Design Brief - D02-02-22-0090'
  • Image from page 6 of the file '2022-10-12 - Concept Renderings and Elevations - D02-02-22-0090'
  • Image from page 5 of the file '2025-06-19 - Renderings - D02-02-22-0090'
  • Image from page 6 of the file '2025-06-19 - Renderings - D02-02-22-0090'
  • Image from page 3 of the file '2025-06-19 - Renderings - D02-02-22-0090'
  • Image from page 4 of the file '2025-06-19 - Renderings - D02-02-22-0090'
  • Image from page 8 of the file '2022-10-12 - Design Brief - D02-02-22-0090'
  • Image from page 7 of the file '2023-04-04 - Site Plan, Floor Plans & Elevations - D02-02-22-0090'
  • Image from page 14 of the file '2022-10-12 - Design Brief - D02-02-22-0090'
  • Image from page 7 of the file '2025-06-19 - Renderings - D02-02-22-0090'
  • Construction site plan for project from page 4 of the file '2023-04-04 - Site Plan, Floor Plans & Elevations - D02-02-22-0090'
  • Construction site plan for project from page 3 of the file '2023-04-04 - Site Plan, Floor Plans & Elevations - D02-02-22-0090'
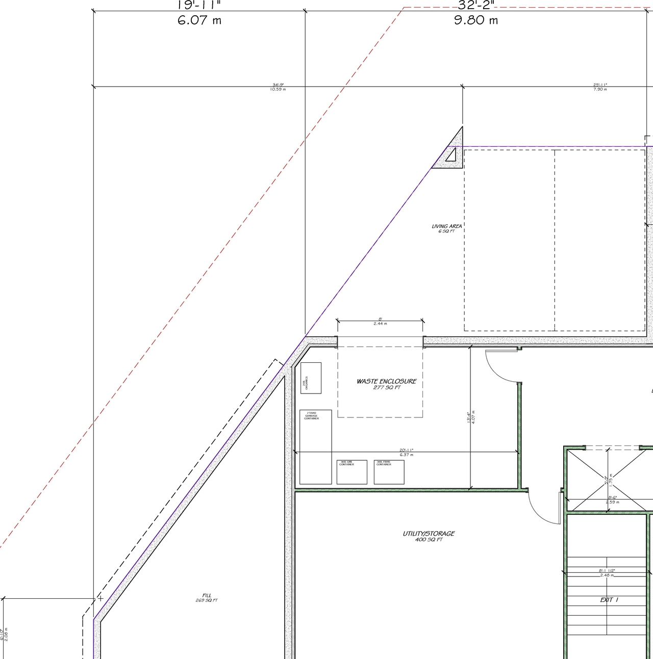
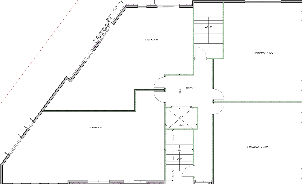
  • Floor plan for project from page 6 of the file '2023-04-04 - Site Plan, Floor Plans & Elevations - D02-02-22-0090'
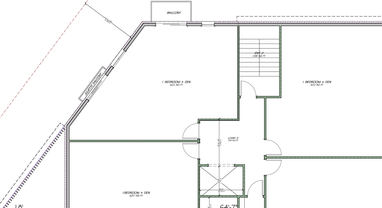
  • Floor plan for project from page 1 of the file '2025-06-19 - Floor Plans and Elevations - D02-02-22-0090'
  • Floor plan for project from page 5 of the file '2023-04-04 - Site Plan, Floor Plans & Elevations - D02-02-22-0090'
  • Floor plan for project from page 12 of the file '2022-10-12 - Design Brief - D02-02-22-0090'
  • Floor plan for project from page 12 of the file '2022-10-12 - Design Brief - D02-02-22-0090'
  • Floor plan for project from page 2 of the file '2023-04-04 - Site Plan, Floor Plans & Elevations - D02-02-22-0090'
  • Image from page 8 of the file '2023-04-04 - Site Plan, Floor Plans & Elevations - D02-02-22-0090'
  • Image from page 7 of the file '2022-10-12 - Concept Renderings and Elevations - D02-02-22-0090'
  • Image from page 10 of the file '2022-10-12 - Design Brief - D02-02-22-0090'
  • Image from page 10 of the file '2022-10-12 - Design Brief - D02-02-22-0090'
  • Image from page 10 of the file '2022-10-12 - Design Brief - D02-02-22-0090'
  • Image from page 11 of the file '2023-04-04 - Site Plan, Floor Plans & Elevations - D02-02-22-0090'
  • Image from page 7 of the file '2022-10-12 - Concept Renderings and Elevations - D02-02-22-0090'
  • Image from page 8 of the file '2025-06-19 - Floor Plans and Elevations - D02-02-22-0090'
  • Image from page 9 of the file '2023-04-04 - Site Plan, Floor Plans & Elevations - D02-02-22-0090'
  • Image from page 11 of the file '2025-06-19 - Floor Plans and Elevations - D02-02-22-0090'
  • Image from page 7 of the file '2022-10-12 - Concept Renderings and Elevations - D02-02-22-0090'
  • Image from page 9 of the file '2025-06-19 - Floor Plans and Elevations - D02-02-22-0090'
  • Image from page 7 of the file '2022-10-12 - Concept Renderings and Elevations - D02-02-22-0090'
  • Image from page 2 of the file '2022-10-12 - Concept Renderings and Elevations - D02-02-22-0090'
  • Image from page 10 of the file '2025-06-19 - Floor Plans and Elevations - D02-02-22-0090'
  • Image from page 9 of the file '2022-10-12 - Design Brief - D02-02-22-0090'
  • Image from page 3 of the file '2022-10-12 - Concept Renderings and Elevations - D02-02-22-0090'
  • Image from page 2 of the file '2025-06-19 - Renderings - D02-02-22-0090'
  • Image from page 5 of the file '2022-10-12 - Concept Renderings and Elevations - D02-02-22-0090'
  • Image from page 5 of the file '2022-10-12 - Concept Renderings and Elevations - D02-02-22-0090'
  • Image from page 9 of the file '2022-10-12 - Design Brief - D02-02-22-0090'
  • Image from page 8 of the file '2022-10-12 - Design Brief - D02-02-22-0090'
  • Image from page 6 of the file '2022-10-12 - Concept Renderings and Elevations - D02-02-22-0090'
  • Image from page 5 of the file '2025-06-19 - Renderings - D02-02-22-0090'
  • Image from page 6 of the file '2025-06-19 - Renderings - D02-02-22-0090'
  • Image from page 3 of the file '2025-06-19 - Renderings - D02-02-22-0090'
  • Image from page 4 of the file '2025-06-19 - Renderings - D02-02-22-0090'
  • Image from page 8 of the file '2022-10-12 - Design Brief - D02-02-22-0090'
  • Image from page 7 of the file '2023-04-04 - Site Plan, Floor Plans & Elevations - D02-02-22-0090'
  • Image from page 14 of the file '2022-10-12 - Design Brief - D02-02-22-0090'
  • Image from page 7 of the file '2025-06-19 - Renderings - D02-02-22-0090'
  • Construction site plan for project from page 4 of the file '2023-04-04 - Site Plan, Floor Plans & Elevations - D02-02-22-0090'
  • Construction site plan for project from page 3 of the file '2023-04-04 - Site Plan, Floor Plans & Elevations - D02-02-22-0090'
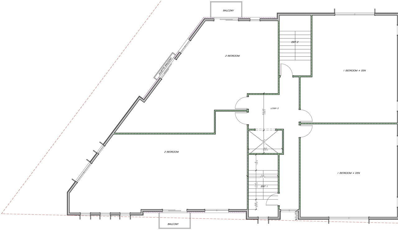
  • Floor plan for project from page 6 of the file '2023-04-04 - Site Plan, Floor Plans & Elevations - D02-02-22-0090'
  • Floor plan for project from page 1 of the file '2025-06-19 - Floor Plans and Elevations - D02-02-22-0090'
  • Floor plan for project from page 5 of the file '2023-04-04 - Site Plan, Floor Plans & Elevations - D02-02-22-0090'
  • Floor plan for project from page 12 of the file '2022-10-12 - Design Brief - D02-02-22-0090'
  • Floor plan for project from page 12 of the file '2022-10-12 - Design Brief - D02-02-22-0090'
  • Floor plan for project from page 2 of the file '2023-04-04 - Site Plan, Floor Plans & Elevations - D02-02-22-0090'

Additional Information#

Date Initiated2022-10-12
WardWard 7 - Theresa Kavanagh

Documents#

TypeDocument
Application Summary2022-10-20 - Application Summary - D02-02-22-0090
Application Summary2025-09-22 - Application Summary - D02-02-22-0090
Architectural Plans2022-10-12 - Site Plan - D02-02-22-0090
Architectural Plans2025-06-19 - Site Plan - D02-02-22-0090
Architectural Plans2025-06-19 - Roof Plan and Details - D02-02-22-0090
Architectural Plans2025-06-19 - Pre-Development Drainage Plan - D02-02-22-0090
Architectural Plans2025-06-19 - Post-Development Drainage Plan - D02-02-22-0090
Architectural Plans2025-08-11 - Site Plan - D02-02-22-0090
Architectural Plans2025-10-02 - Preliminary Construction Management Plan - D02-02-22-0090
Architectural Plans2025-10-02 - Post Development Drainage Plan - D02-02-22-0090
Architectural Plans2025-10-02 - Architectural Plans - D02-02-22-0090
Design Brief2022-10-12 - Design Brief - D02-02-22-0090
Electrical Plan2023-04-04 - Site Lighting Plan - D02-02-22-0090
Electrical Plan2023-04-04 - Lighting Control Letter - D02-02-22-0090
Environmental2023-04-04 - ENVIRONMENTAL NOISE ASSESSMENT - D02-02-22-0090
Environmental2022-10-12 - Environmental Noise Assessment -D02-02-22-0090
Existing Conditions2025-06-19 - Existing Conditions, Removals and Decommissioning Plan - D02-02-22-0090
Floor Plan2023-04-04 - Site Plan, Floor Plans & Elevations - D02-02-22-0090
Floor Plan2025-06-19 - Floor Plans and Elevations - D02-02-22-0090
Geotechnical Report2023-04-04 - Grading, Servicing, Erosion and Drainage Plans - D02-02-22-0090
Geotechnical Report2023-04-04 - Geotechnical Review of Grading and Site Servicing Plans - D02-02-22-0090
Geotechnical Report2023-04-04 - Geotechnical Investigation - D02-02-22-0090
Geotechnical Report2022-10-12 - Grading Servicing and Erosion Plans - D02-02-22-0090
Geotechnical Report2022-10-12 - Geotechnical Report- Phase I Environmental Site Assessment - D02-02-22-0090
Geotechnical Report2025-06-19 - Grading Plan and Erosion and Sediment Control Plan - D02-02-22-0090
Geotechnical Report2025-06-19 - Geotechnical Investigation - D02-02-22-0090
Geotechnical Report2025-10-02 - Grading Erosion & Sediment Control Plan - D02-02-22-0090
Landscape Plan2023-04-04 - Landscape Plan - D02-02-22-0090
Landscape Plan2022-10-12 - Landscape Plan - D02-02-22-0090
Landscape Plan2025-06-19 - Landscape Plan and Landscape Details - D02-02-22-0090
Landscape Plan2025-10-02 - Landscape Plan & Details - D02-02-22-0090
Planning2022-10-12 - Planning Rationale - D02-02-22-0090
Planning2025-06-19 - Planning Rationale - D02-02-22-0090
Rendering2022-10-12 - Concept Renderings and Elevations - D02-02-22-0090
Rendering2025-06-19 - Renderings - D02-02-22-0090
Shadow Study2023-04-04 - Shadow Analysis - D02-02-22-0090
Shadow Study2022-10-12 - Sun Shadow Analysis - D02-02-22-0090
Shadow Study2025-06-19 - Shadow Analysis - D02-02-22-0090
Site Servicing2025-06-19 - Site Servicing Plan - D02-02-22-0090
Site Servicing2025-06-19 - Site Servicing and Stormwater Management Report - D02-02-22-0090
Site Servicing2025-10-02 - Site Servicing Plan - D02-02-22-0090
Site Servicing2025-10-02 - Site Servicing & SWM Report - D02-02-22-0090
Stormwater Management2023-04-04 - Stormwater Management Report - D02-02-22-0090
Stormwater Management2022-10-12 - Stormwater Management Report - D02-02-22-0090
Surveying2022-10-12 - Survey Plan - D02-02-22-0090
Tree Information and Conservation2023-04-04 - Tree Conservation Report - D02-02-22-0090
Tree Information and Conservation2022-10-12 - Tree Report - D02-02-22-0090
Tree Information and Conservation2025-10-02 - Tree Conservation Report - D02-02-22-0090
2023-04-04 - Photometric Summary - D02-02-22-0090
2023-04-04 - Functional Servicing Study Report - D02-02-22-0090
2022-10-12 - Functional Servicing Report - D02-02-22-0090
2025-06-19 - Notes, Details and Schedules - D02-02-22-0090
2025-10-02 - Notes Details & Schedules - D02-02-22-0090