1400-1410 Youville Dr.#
Last updated: 2023-08-10 · ID: D02-02-22-0086
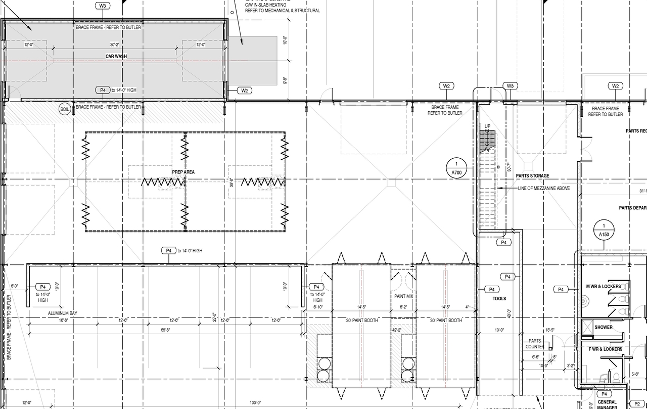
Summary#
New, 2,115 sqare metre aiuto body shop building with office space and associated outdoor cehicle storage, parking and landscaping.
Status
Inactive (Zoning By-law in Effect)
Building Scale (Max.)
Based on elevation drawings. Values may be approximate. See sources for exact figures.
Low-rise · 1 storey
· 5.18 m
Location#
Select a marker to view the address.
Site Plans, Elevations and Floor Plans#
Additional Information#
| Date Initiated | 2022-08-30 |
| Ward | Ward 2 - Laura Dudas |
| All Addresses | 1400 Youville Dr. 1410 Youville Dr. |
Documents#
Related Projects#
| Project | Last Updated | Date Initiated |
|---|---|---|
1400-1410 Youville Dr.
D07-12-22-0130 | 2023-09-12 | 2022-08-30 |

