522 Lower Byron Ave.#
Last updated: 2022-10-27 · ID: D02-02-22-0069
Summary#
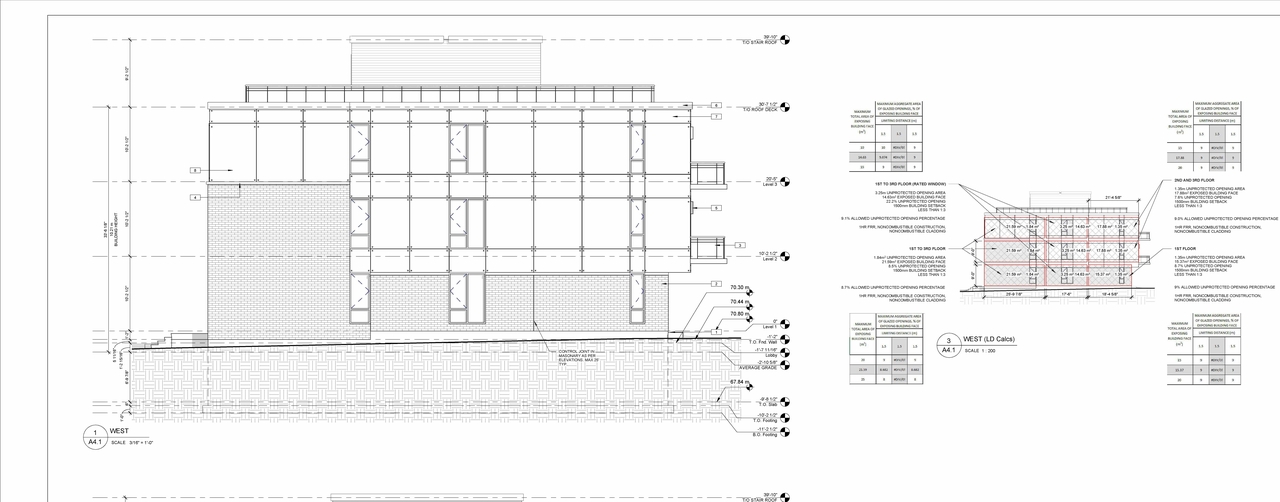
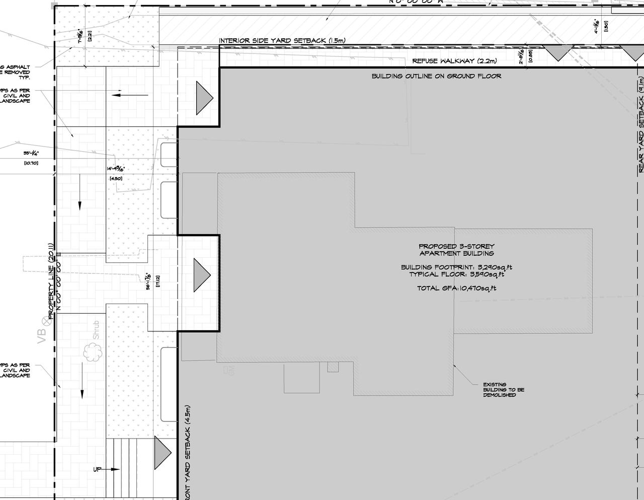
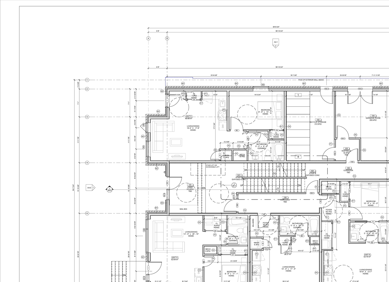
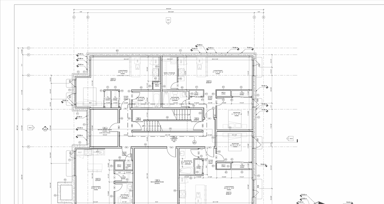
The City of Ottawa has received Zoning By-law Amendment and Site Plan Control applications to facilitate the construction of a three-storey residential apartment building containing 18 dwelling units. No vehicular parking is proposed.
Status
File Pending (Application File Pending)
Building Scale (Max.)
Based on elevation drawings. Values may be approximate. See sources for exact figures.
Low-rise · 3 storeys
· 12.9 m
Data Quality Note
Height was partially estimated using visual scale. This may be approximate.
Renders#
Location#
Select a marker to view the address.
Site Plans, Elevations and Floor Plans#
Additional Information#
| Date Initiated | 2022-07-07 |
| Ward | Ward 15 - Jeff Leiper |










