393 McArthur Ave.#
Last updated: 2023-09-18 · ID: D02-02-22-0058
Summary#
To permit site-specific provisions in support of the proposed six-storey mixed-use building.
Status
Inactive (Zoning By-law in Effect)
Building Scale (Max.)
Based on elevation drawings. Values may be approximate. See sources for exact figures.
Mid-rise · 6 storeys
· 21.95 m
Renders#
Location#
Select a marker to view the address.
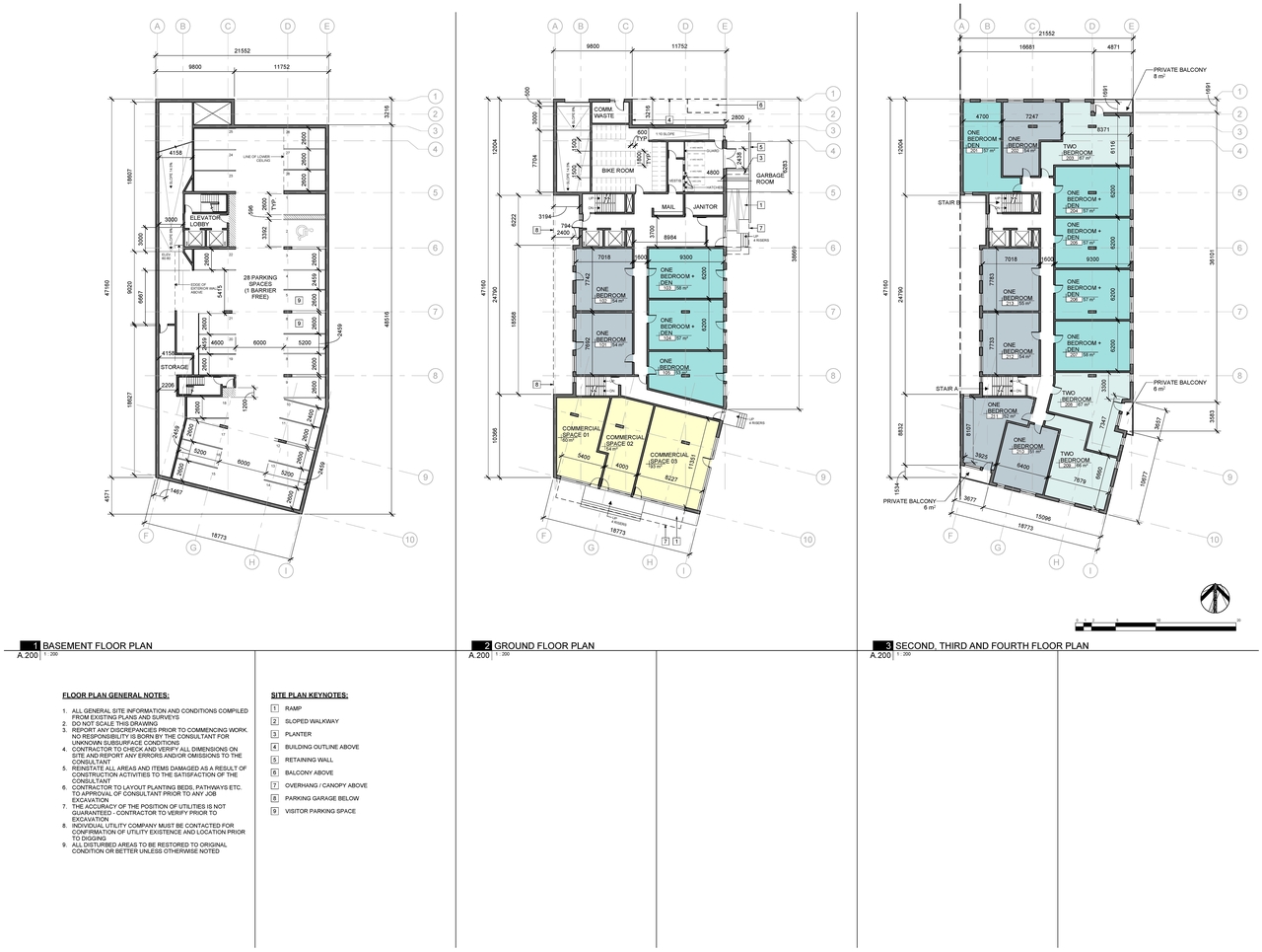
Site Plans, Elevations and Floor Plans#
Additional Information#
| Date Initiated | 2022-06-23 |
| Ward | Ward 12 - Stéphanie Plante |














