1200 Lemieux St./1209 St-Laurent#
Last updated: 2023-08-09 · ID: D02-02-22-0051
Summary#
The City of Ottawa has received a Zoning By-law Amendment and Site Plan Control application to rezone the site from “TD3” to “TD3, Urban Exception XXXX” (TD3[XXXX]) to establish site-specific zone provisions and an increased maximum building height to permit the two proposed 30-storey apartment buildings.
Status
Inactive (Zoning By-law in Effect)
Building Scale (Max.)
Based on elevation drawings. Values may be approximate. See sources for exact figures.
High-rise · 30 storeys
· 97.45 m
Renders#
Location#
Select a marker to view the address.
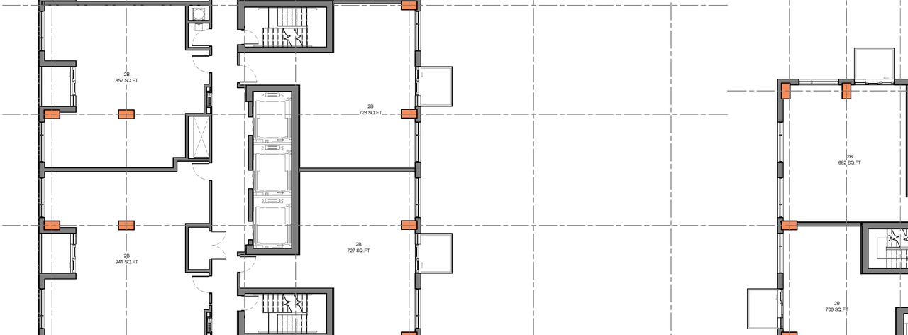
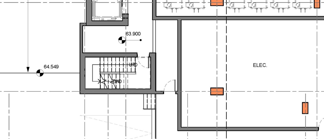
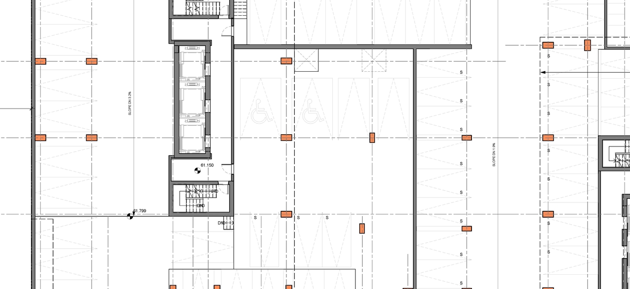
Site Plans, Elevations and Floor Plans#
Additional Information#
| Date Initiated | 2022-05-25 |
| Ward | Ward 11 - Tim Tierney |











