780 Baseline Rd.#
Last updated: 2024-09-19 · ID: D02-02-22-0049
Summary#
Zoning will be amended to permit the proposed high-rise apartment buildings and accommodate various performance provisions.
Status
Inactive (Zoning By-law in Effect)
Building Scale (Max.)
Based on elevation drawings. Values may be approximate. See sources for exact figures.
High-rise · 29 storeys
· 90 m
Data Quality Note
Height was partially estimated using visual scale. This may be approximate.
Renders#
Location#
Select a marker to view the address.
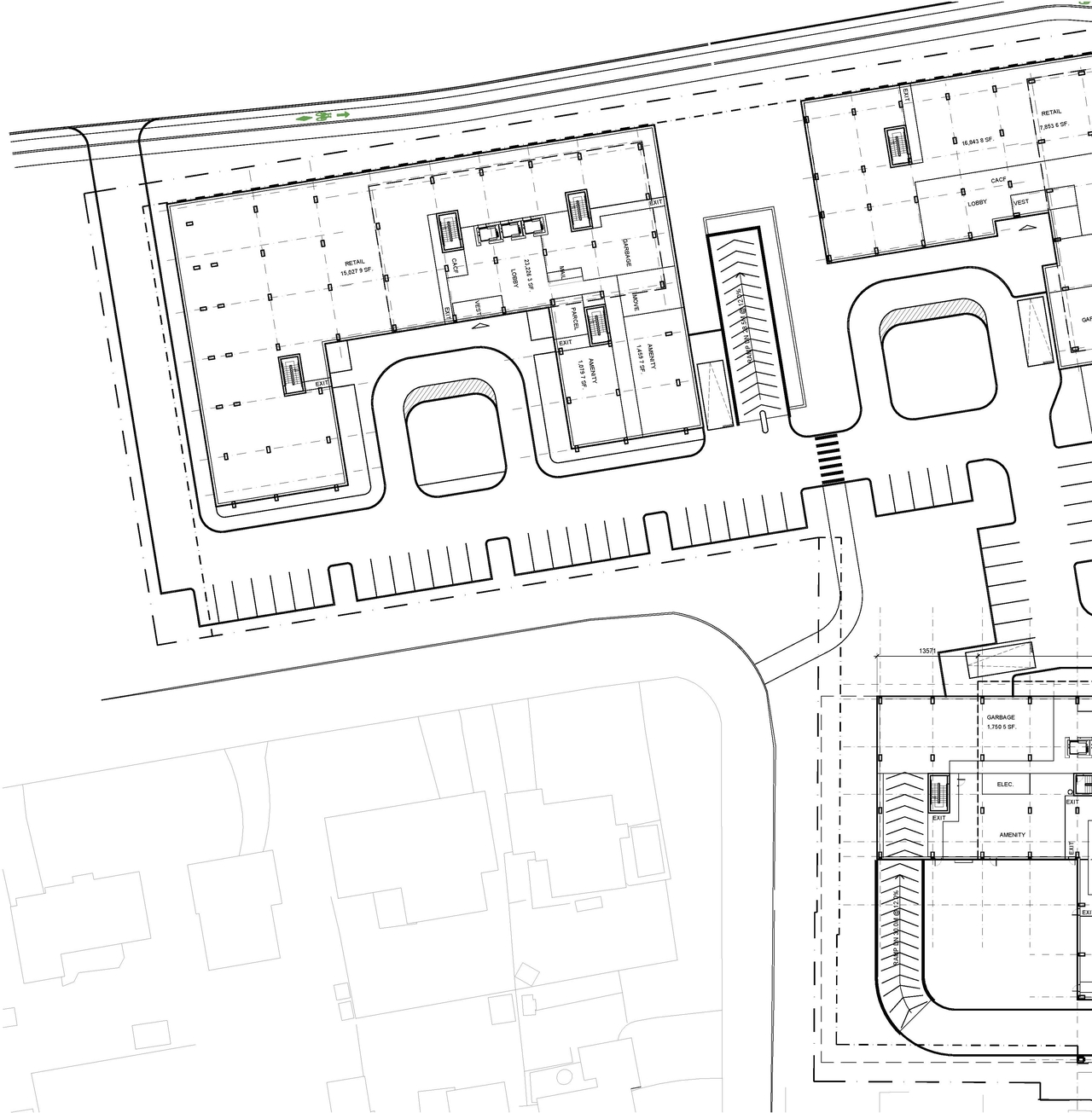
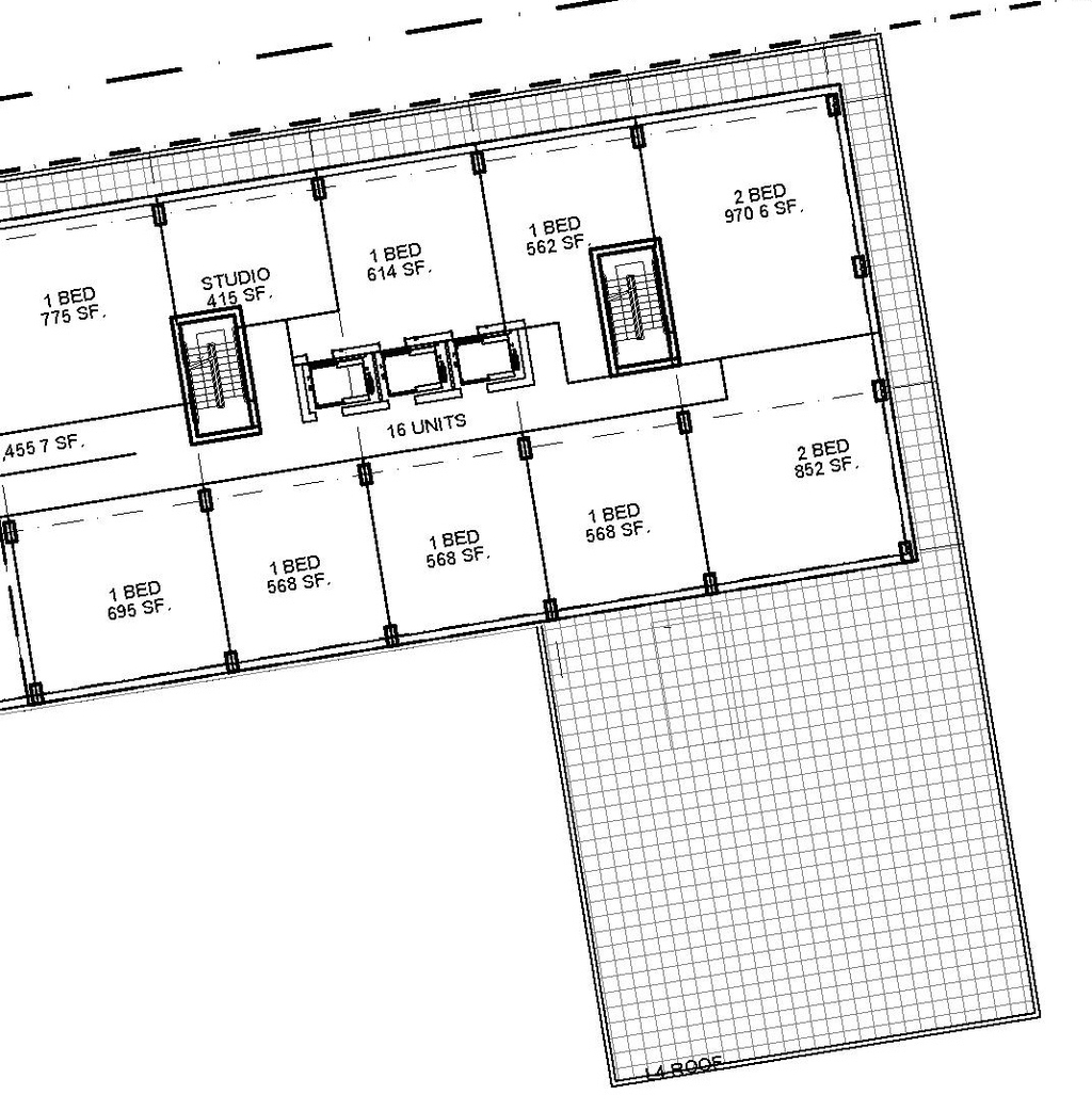
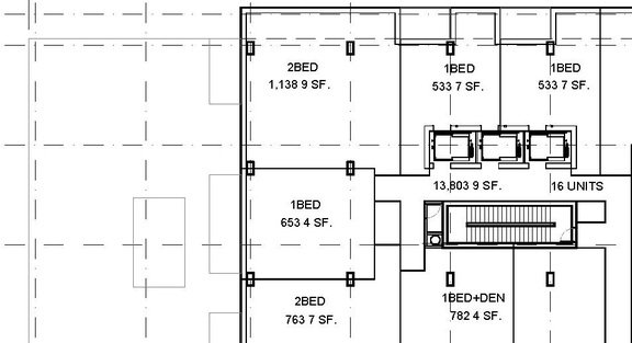
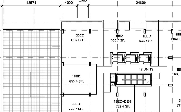
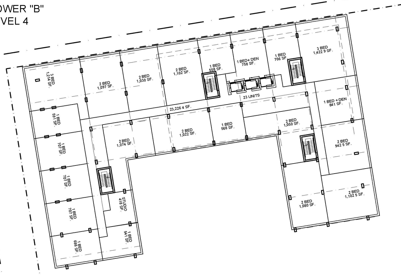
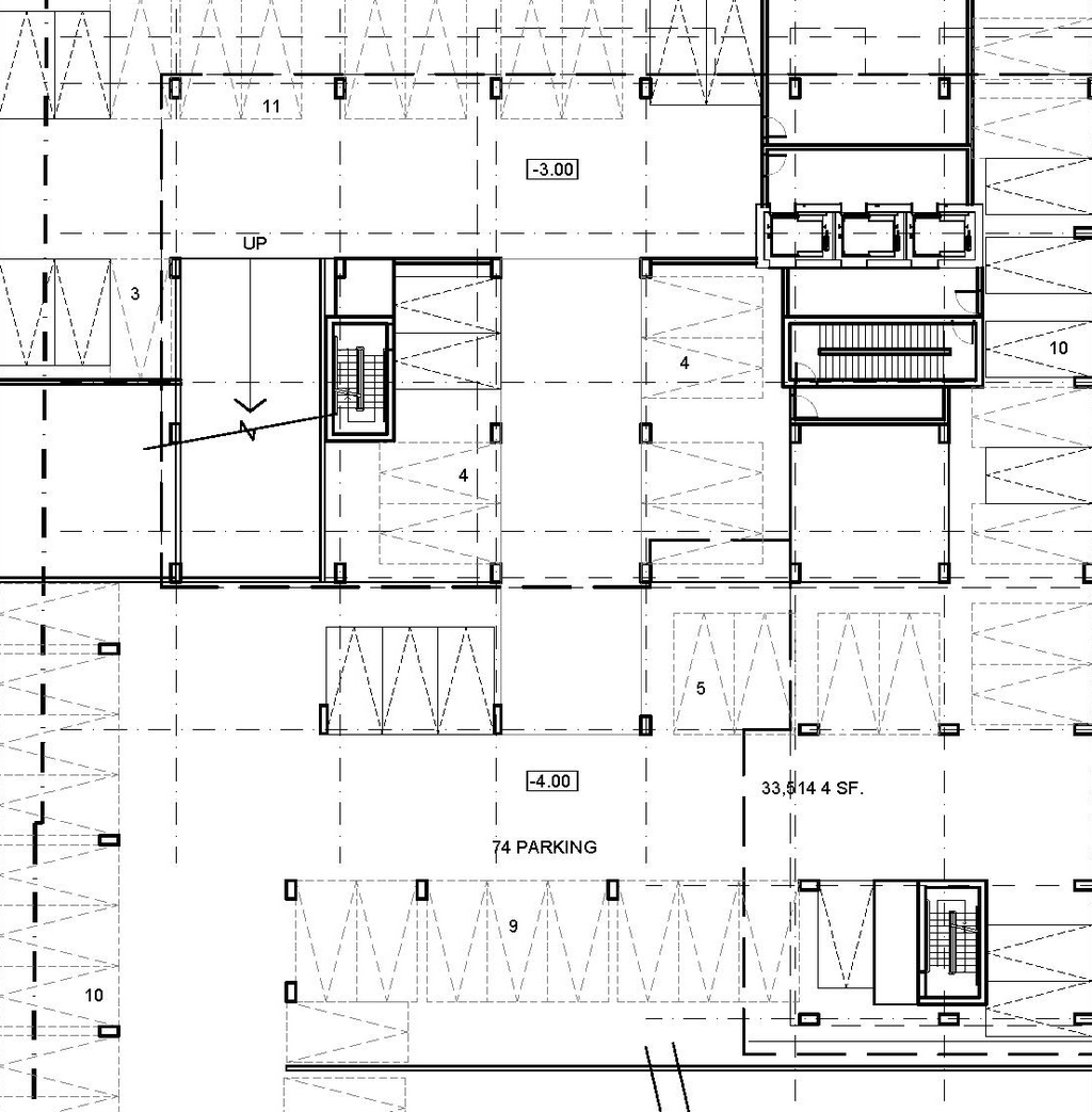
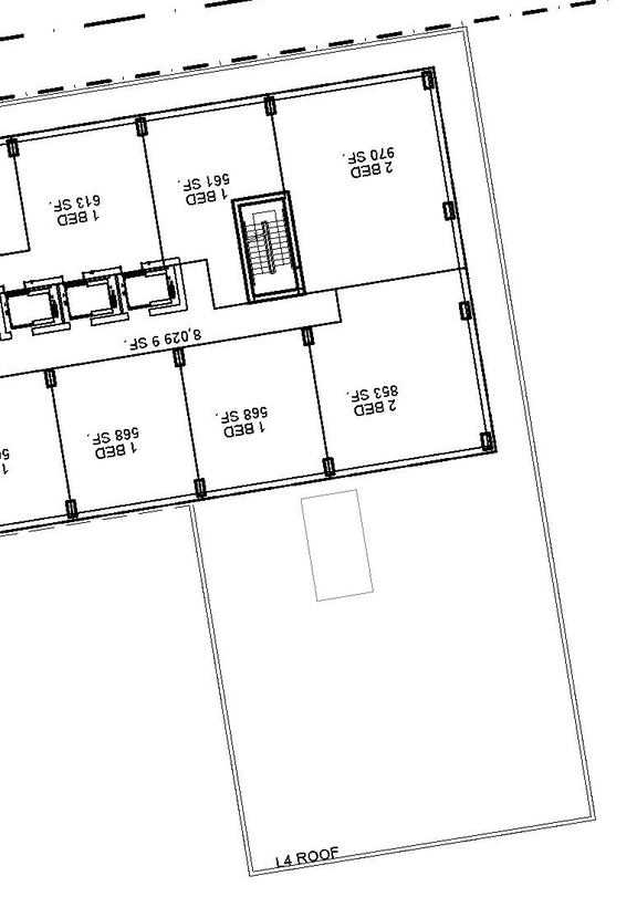
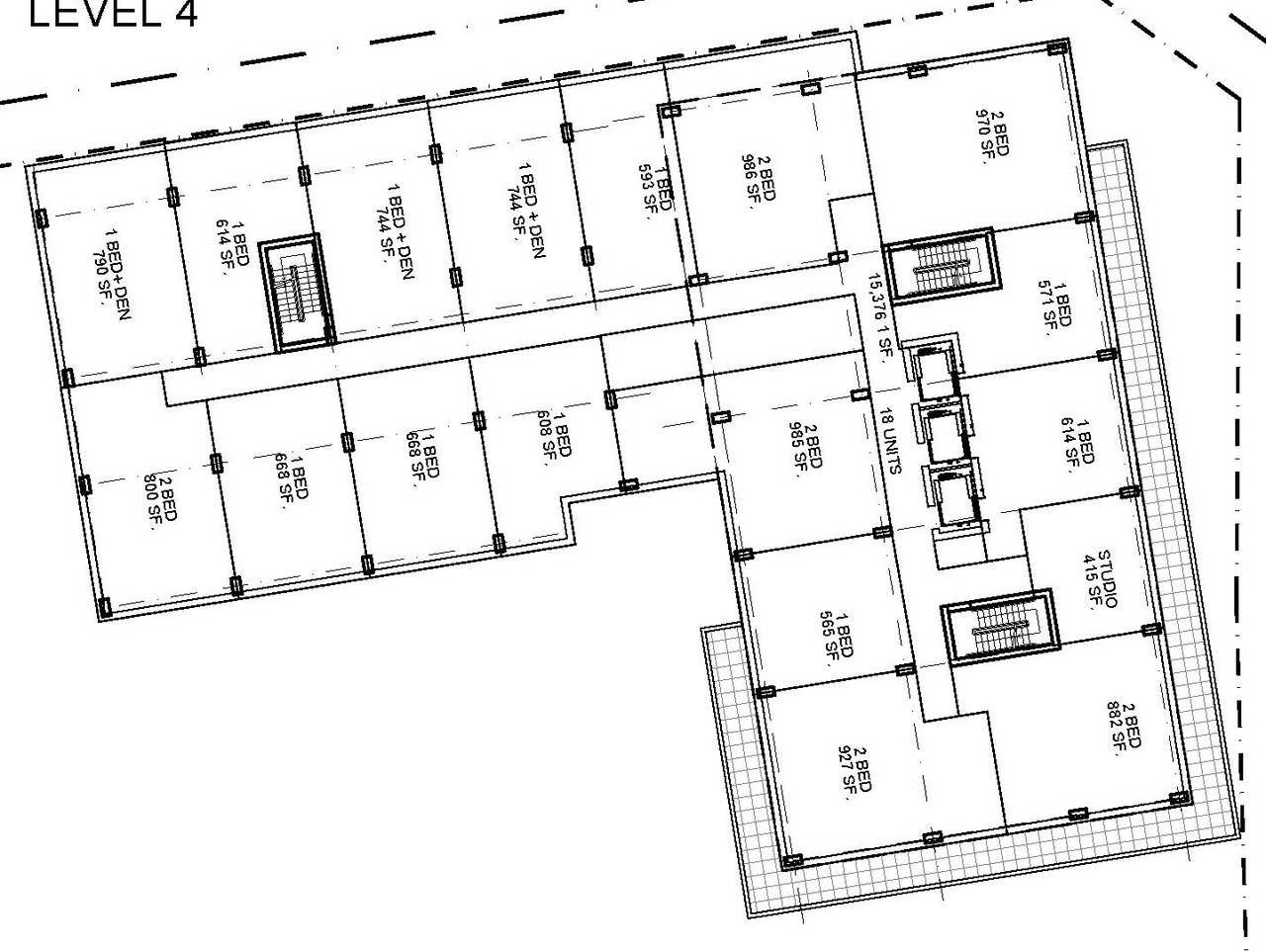
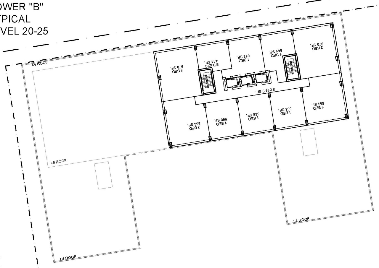
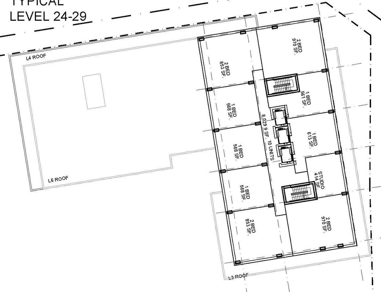
Site Plans, Elevations and Floor Plans#
Additional Information#
| Date Initiated | 2022-05-17 |
| Ward | Ward 9 - Sean Devine |


















