970-974 Silver St./1271-1275 Shillington Ave.#
Last updated: 2023-12-19 · ID: D02-02-22-0026
Summary#
To permit the construction of an apartment building a use not permitted in R3A. The proposed zoning is R4Y. No variances to R4Y are proposed.
Status
Inactive (Zoning By-law in Effect)
Building Scale (Max.)
Based on elevation drawings. Values may be approximate. See sources for exact figures.
Mid-rise · 4 storeys
Data Quality Note
Text was extracted using optical character recognition. This may introduce artifacts or misreads.
· 15.6 m
Data Quality Note
Height was partially estimated using visual scale. This may be approximate.
Data Quality Note
Text was extracted using optical character recognition. This may introduce artifacts or misreads.
Location#
Select a marker to view the address.
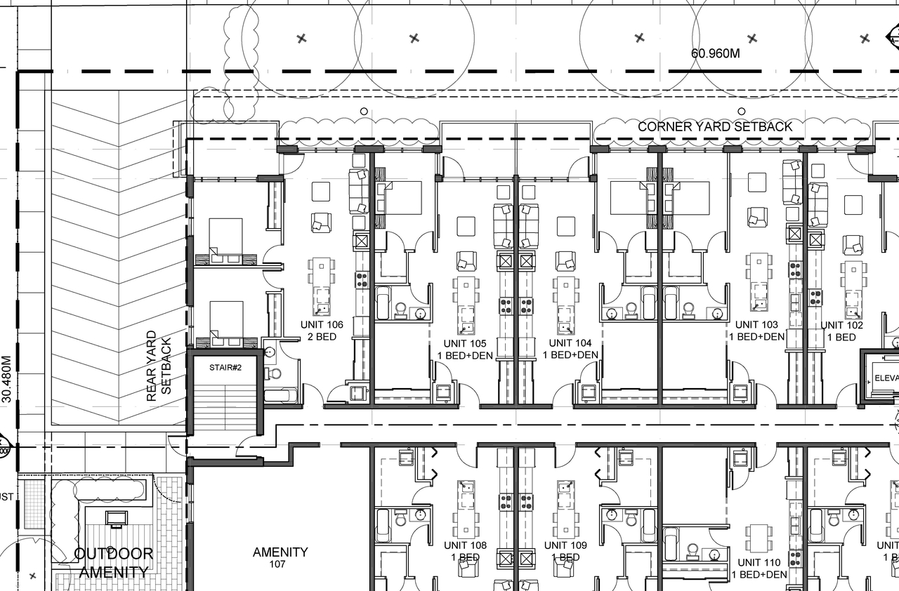
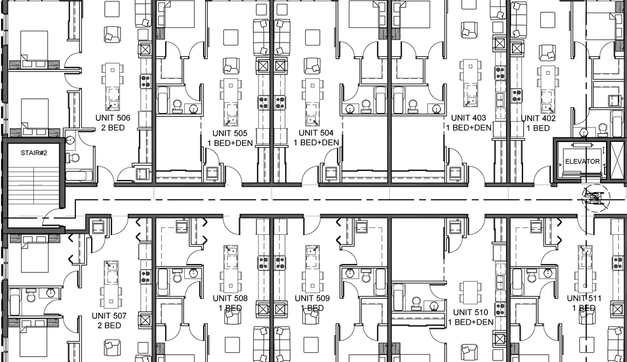
Site Plans, Elevations and Floor Plans#
Additional Information#
| Date Initiated | 2022-03-25 |
| Ward | Ward 16 - Riley Brockington |
| All Addresses | 970 Silver St. 974 Silver St. 1271 Shillington Ave. 1275 Shillington Ave. |




