70-80 Woodridge Cres.#
Last updated: 2024-08-14 ยท ID: D02-02-22-0025
Summary#
Amendment is needed to: / Commercial uses / Increase height limit from 34 metres to 130 metres / Reduce front yard setback from 6 metres to 3.23 metres / Reduce interior side yard setback from 7.5 metres to 3.73 metres / Reduce the required bicycle parking from 256-292 parking stalls to 120
Status
Inactive (Zoning By-law in Effect)
Renders#
Location#
Select a marker to view the address.
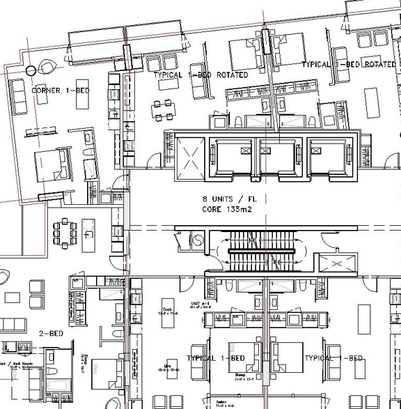
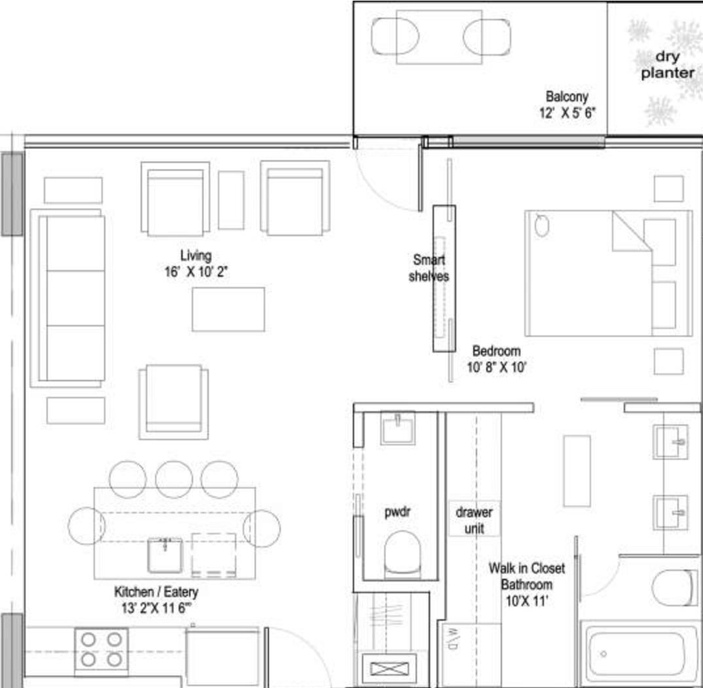
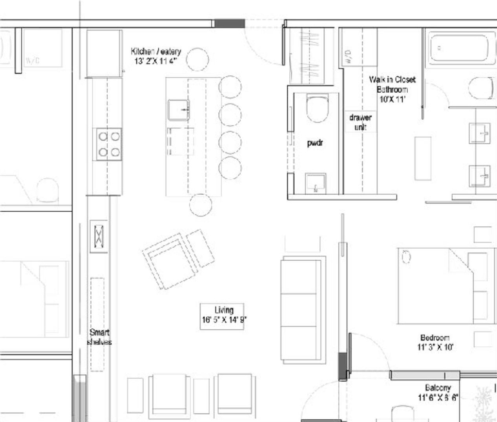
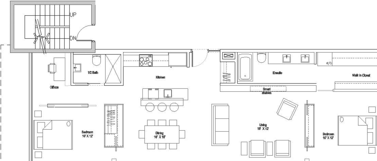
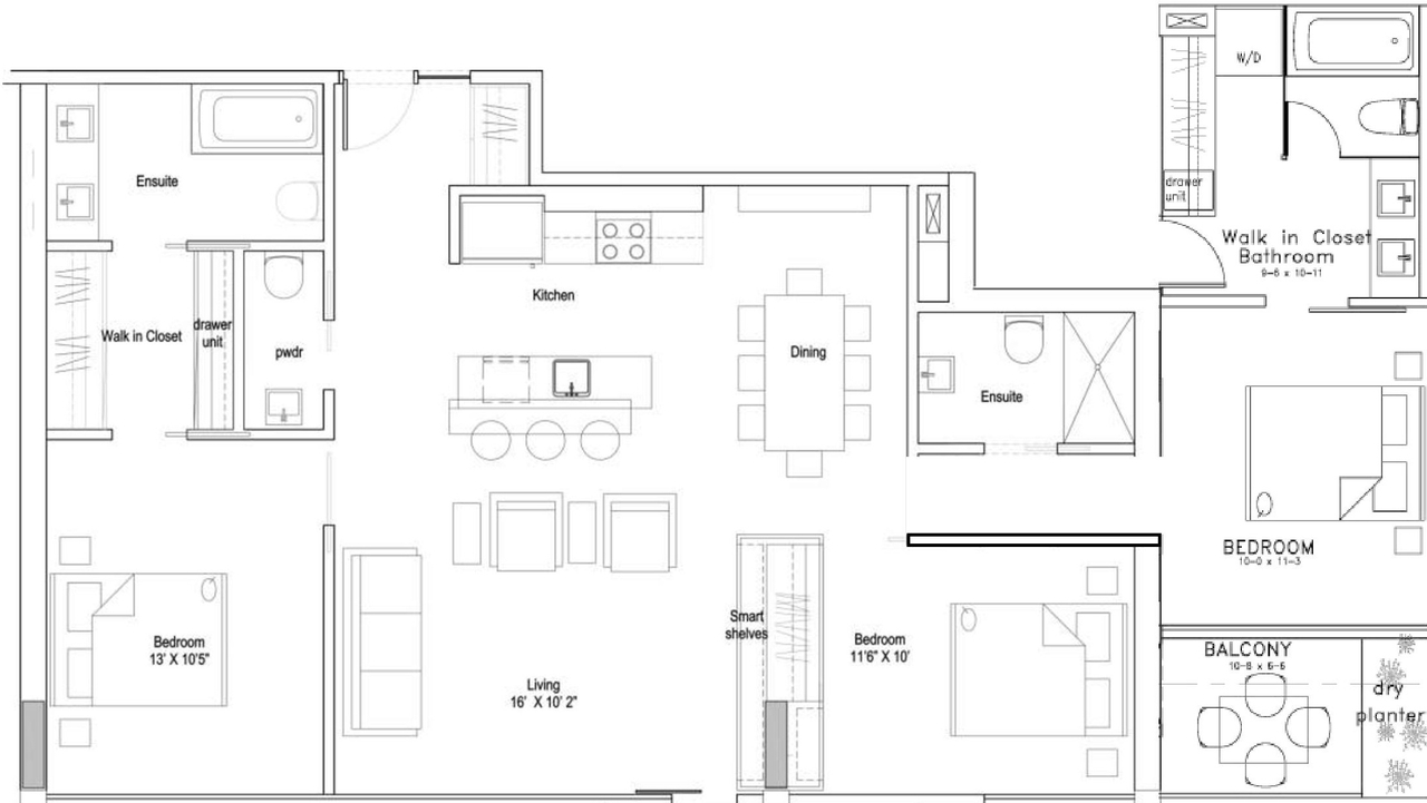
Site Plans, Elevations and Floor Plans#
Additional Information#
| Date Initiated | 2022-03-24 |
| Ward | Ward 7 - Theresa Kavanagh |
| All Addresses | 70 Woodridge Cres. 80 Woodridge Cres. |







































































