6001-6005 Renaud Rd.#
Last updated: 2024-10-04 · ID: D02-02-21-0164
Summary#
Proposed 36 unit stacked townhouse development
Status
Inactive (Zoning By-law in Effect)
Building Scale (Max.)
Based on elevation drawings. Values may be approximate. See sources for exact figures.
Low-rise · 1 storey
· 3.4 m
Data Quality Note
Height was partially estimated using visual scale. This may be approximate.
Renders#
Location#
Select a marker to view the address.
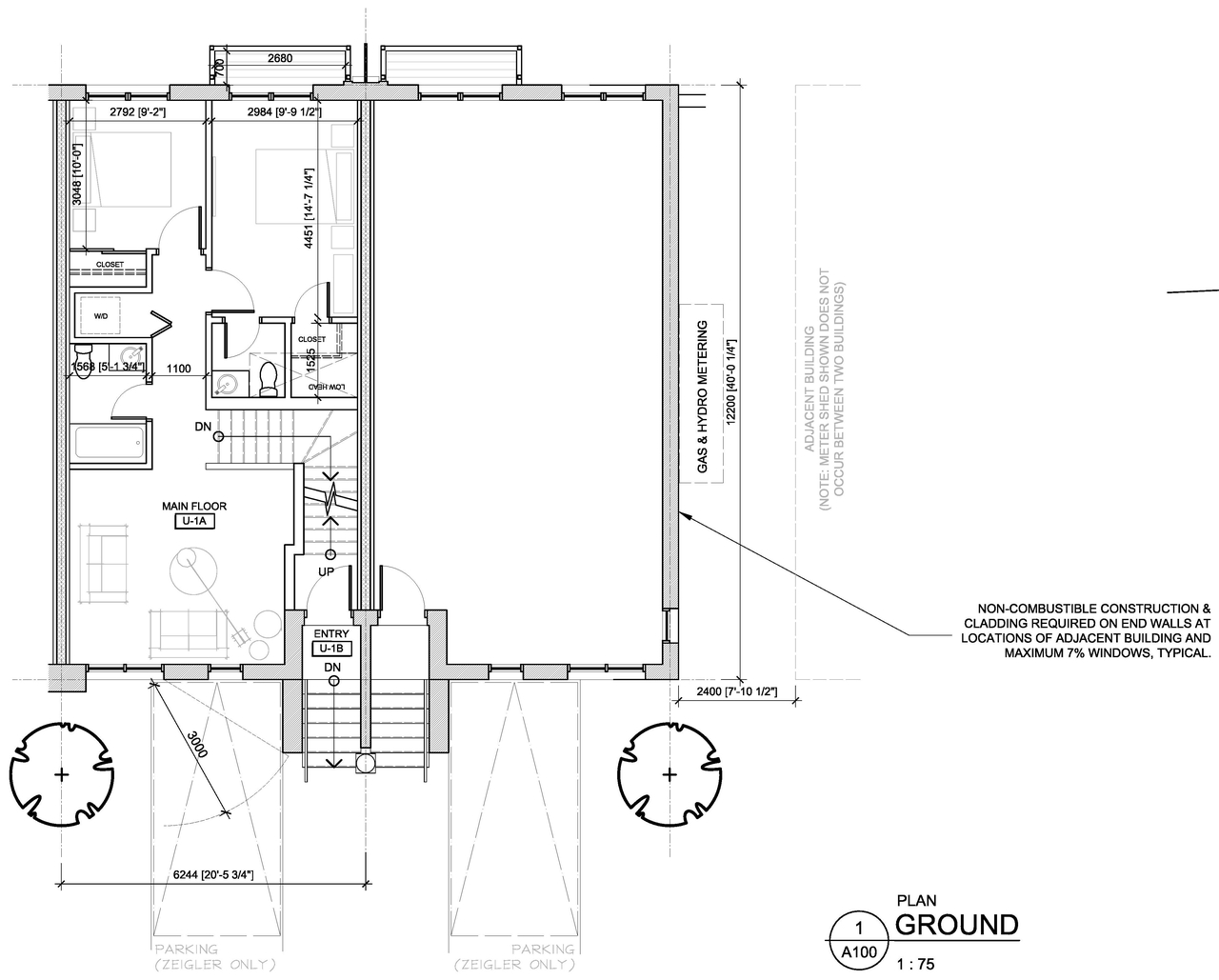
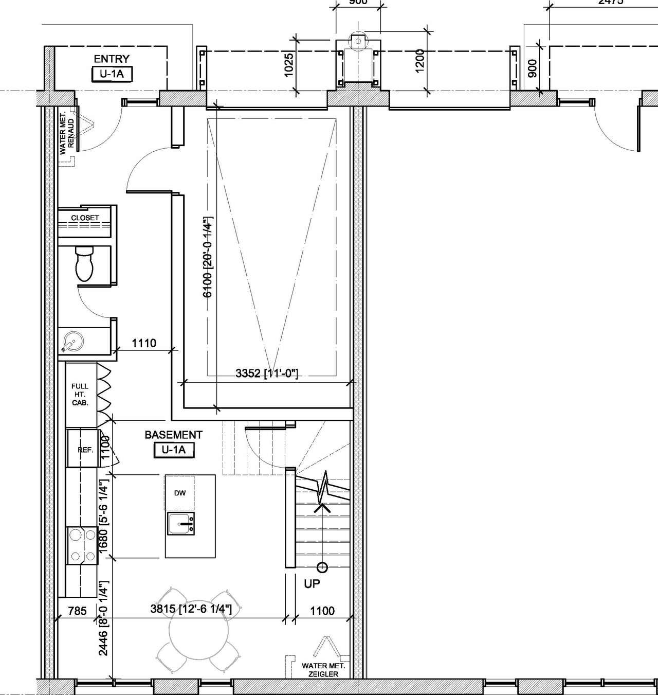
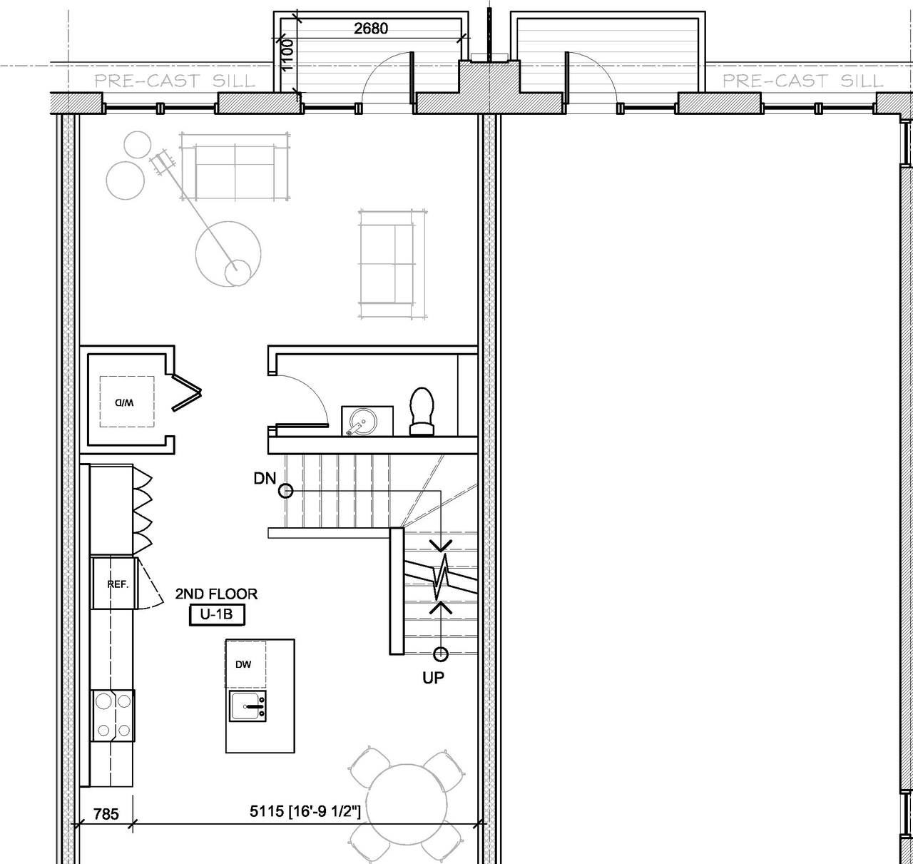
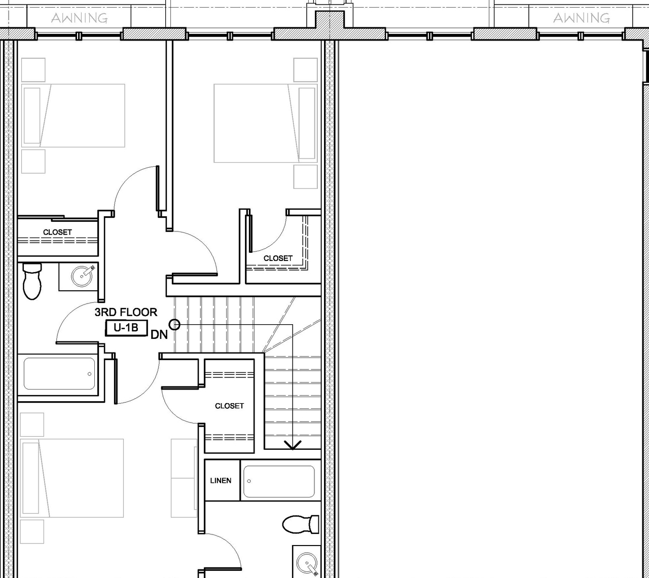
Site Plans, Elevations and Floor Plans#
Additional Information#
| Date Initiated | 2021-12-31 |
| Ward | Ward 19 - Catherine Kitts |
| All Addresses | 6001 Renaud Rd. 6005 Renaud Rd. |













