Ottawa Development Projects

5497 Manotick Main St.#

Last updated: 2024-03-04 · ID: D02-02-21-0150

Summary#

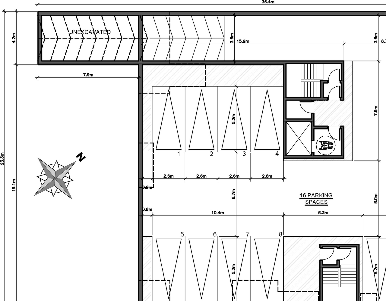
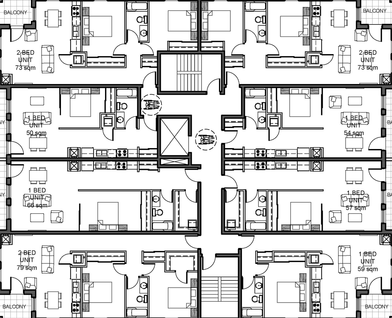
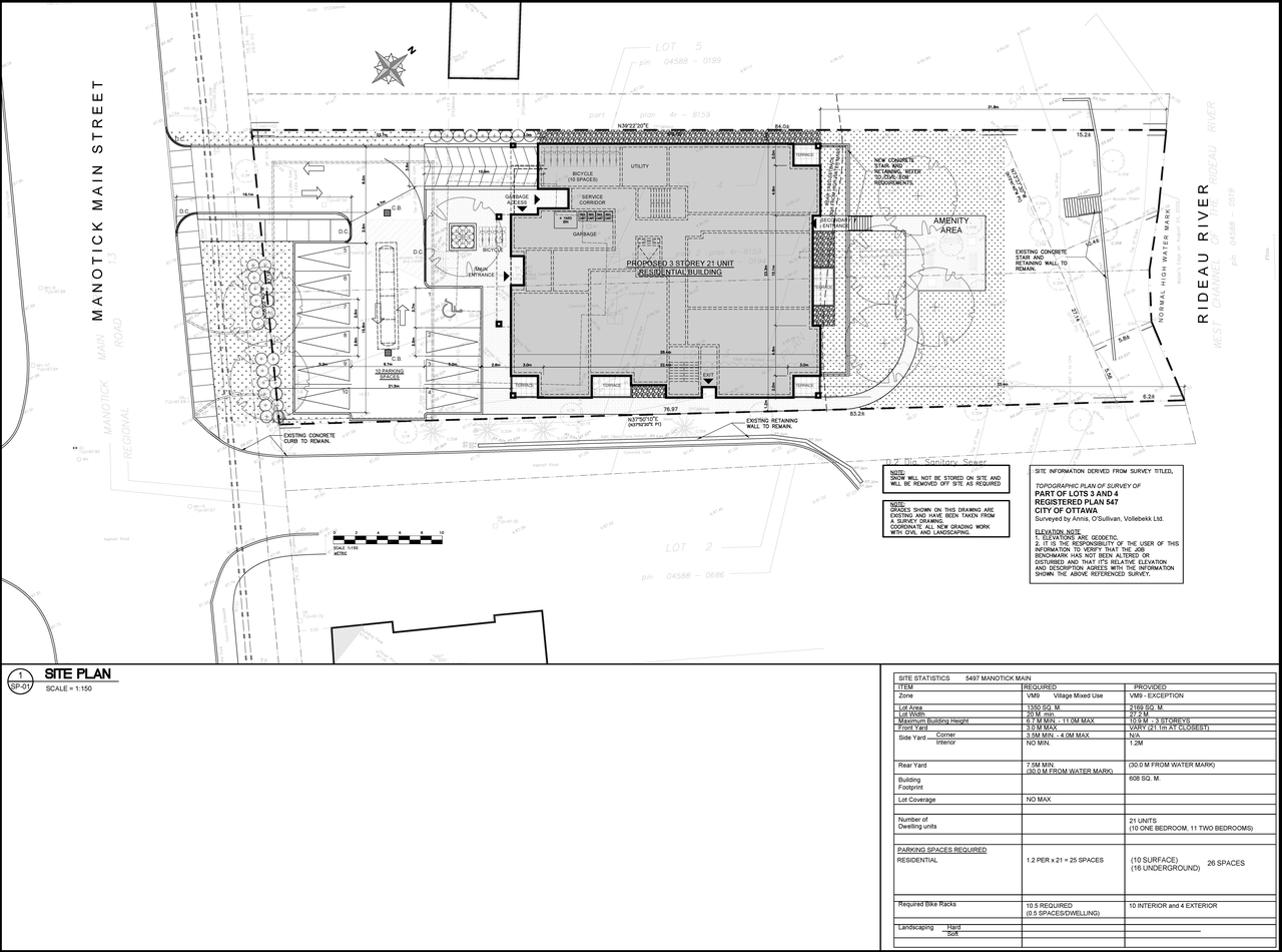
To allow for a low rise rental apartment building with 21 residential units and 26 parking spaces (10 surface and 16 underground).

Status
Inactive (Zoning By-law in Effect)

Building Scale (Max.) Based on elevation drawings. Values may be approximate. See sources for exact figures.
Low-rise · 3 storeys Data Quality Note Text was extracted using optical character recognition. This may introduce artifacts or misreads.

Renders#

Location#

Select a marker to view the address.

Site Plans, Elevations and Floor Plans#

Additional Information#

Date Initiated2021-12-07
WardWard 21 - David Brown

Documents#

TypeDocument
Application Summary2022-01-31 - Application Summary - D02-02-21-0150
Architectural Plans2023-10-26 - Site Plan - D02-02-21-0150
Architectural Plans2023-10-26 - Floor Elevations - D02-02-21-0150
Architectural Plans2023-07-21 - Site Plan - D02-02-21-0150
Architectural Plans2023-07-21 - Elevations - D02-02-21-0150
Architectural Plans2023-01-06 - Site Plan - D02-02-21-0150
Architectural Plans2023-01-06 - Site Grading Plan - D02-02-21-0150
Architectural Plans2023-01-06 - Sediment Erosion Control Plan - D02-02-21-0150
Architectural Plans2023-01-06 - Rear Left Hand Side Elevation - D02-02-21-0150
Architectural Plans2023-01-06 - Photometric Plan - D02-02-21-0150
Architectural Plans2023-01-06 - Front Right Side Elevation - D02-02-21-0150
Architectural Plans2021-12-23 - Site Grading Plan - D02-02-21-0150
Architectural Plans2021-12-07 - Site Plan - D02-02-21-0150
Architectural Plans2021-12-07 - Site Grading Plan - D02-02-21-0150
Architectural Plans2021-12-07 - Photometric Plan - D02-02-21-0150
Architectural Plans2021-12-07 - Elevations and Massing Study Plans - D02-02-21-0150
Civil Engineering Report2023-07-21 - Civil Drawings - D02-02-21-0150
Design Brief2023-01-06 - Design Brief - D02-02-21-0150
Design Brief2021-12-07 - Design Brief - D02-02-21-0150
Environmental2021-12-07 - Phase 1 Environmental Site Assessment - D02–02-21-0150
Environmental2021-12-07 - Environmental Impact Statement - D02-02-21-0150
Erosion And Sediment Control Plan2021-12-07 - Erosion Sediment Control Plan - D02-02-21-0150
Floor Plan2023-01-06 - Floor Plans and UG Parking Plan - D02-02-21-0150
Floor Plan2021-12-07 - Floor Plans - D02-02-21-0150
Geotechnical Report2023-01-06 - Hydrogeology Risk Brief - D02-02-21-0150
Geotechnical Report2023-01-06 - Groundwater Impact Assessment - D02-02-21-0150
Geotechnical Report2021-12-07 - Geotechnical Study - D02-02-21-0150
Landscape Plan2023-07-21 - Landscape Plan - D02-02-21-0150
Landscape Plan2021-12-07 - Landscape Plan - D02-02-21-0150
Noise Study2023-01-06 - Noise Study - D02-02-21-0150
Noise Study2021-12-07 - Noise Study - D02-02-21-0150
Planning2023-10-26 - Planning Rationale Addendum - D02-02-21-0150
Planning2023-07-21 - Planning Rationale Addendum - D02-02-21-0150
Planning2021-12-07 - Planning Rationale Report - D02-02-21-0150
Rendering2023-07-21 - Exterior Renders - D02-02-21-0150
Site Servicing2023-07-21 - Site Servicing & SWM Report - D02-02-21-0150
Site Servicing2023-01-06 - Site Servicing Plan - D02-02-21-0150
Site Servicing2021-12-07 - Site Servicing and Stormwater Management Report - D02-02-21-0150
Site Servicing2021-12-07 - Site Servicing - D02-02-21-0150
Stormwater Management2023-01-06 - Stormwater Management Report - D02-02-21-0150
Surveying2021-12-07 - Topographic Plan - D02-02-21-0150
Transportation Analysis2021-12-07 - Traffic Impact Assessment - D02-02-21-0150
Tree Information and Conservation2023-01-06 - Landscape Plan and TCR - D02-02-21-0150
Tree Information and Conservation2023-01-06 - Environmental Impact Statement and Tree Conservation Report - D02-02-21-0150
2023-07-21 - Underground Parking - D02-02-21-0150
2023-07-21 - Slope Stability Assessment - D02-02-21-0150
2023-01-06 - Stormtech Details - D02-02-21-0150
2023-01-06 - Slope Stability Assessment - D02-02-21-0150
2023-01-06 - Pre Development Drainage - D02-02-21-0150
2023-01-06 - Post Development Storage Area - D02-02-21-0150
2023-01-06 - Massing Study - D02-02-21-0150
2021-12-07 - Slope Stability Assessment - D02-02-21-0150
2021-12-07 - Retaining Wall Report - D02-02-21-0150
2021-12-07 - Pre Development Drainage - D02-02-21-0150
2021-12-07 - Post Development Storage - D02-02–21-0150
2021-12-07 - Engineering Details Sheet - D02-02-21-0150
2021-12-07 - Cultural Heritage Impact Study - D02-02-21-0150
2021-12-07 - Cultural Heritage Impact Statatement - D02-02-21-0150