1400 Bank St.#
Last updated: 2022-03-14 · ID: D02-02-21-0145
Summary#
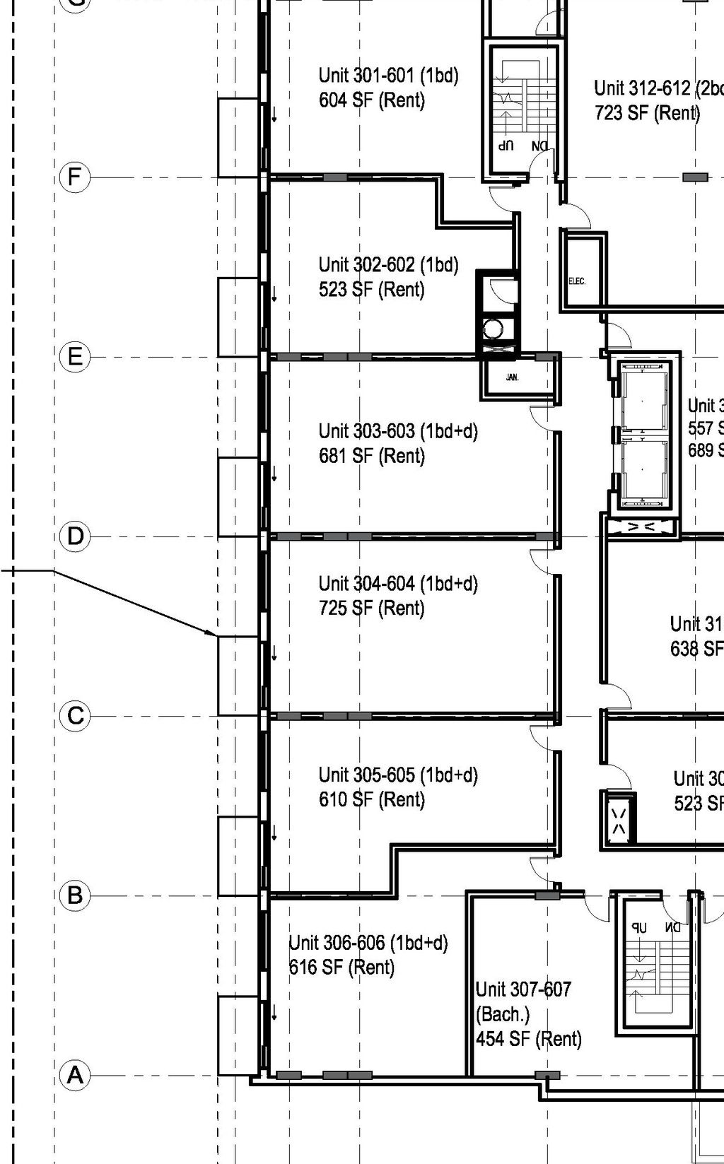
The proposed development would comprise a sixteen-storey building with a two-storey mixed use podium containg retail and commercial uses at grade level fronting on Bank St. A mix of office and residential uses are proposed on the second level. Residential uses are located on levels three to sixteen.
Status
File Pending (Application File Pending)
Building Scale (Max.)
Based on elevation drawings. Values may be approximate. See sources for exact figures.
High-rise · 16 storeys
· 53.6 m
Location#
Select a marker to view the address.
Site Plans, Elevations and Floor Plans#
Additional Information#
| Date Initiated | 2021-11-24 |
| Ward | Ward 17 - Shawn Menard |
Documents#
Related Projects#
| Project | Last Updated | Date Initiated |
|---|---|---|
1400 Bank St.
D01-01-21-0026 | 2022-03-14 | 2021-11-24 |





