2200 Bank St.#
Last updated: 2026-01-16 · ID: D02-02-21-0139
Summary#
To permit an increase in the maximum permitted residential tower floor plate size from 750 m2 to 900 m2, and to lift the holding symbol on the South Phase lands.
Status
Inactive (Zoning By-law in Effect)
Building Scale (Max.)
Based on elevation drawings. Values may be approximate. See sources for exact figures.
High-rise · 21 storeys
· 63.09 m
Renders#
Location#
Select a marker to view the address.
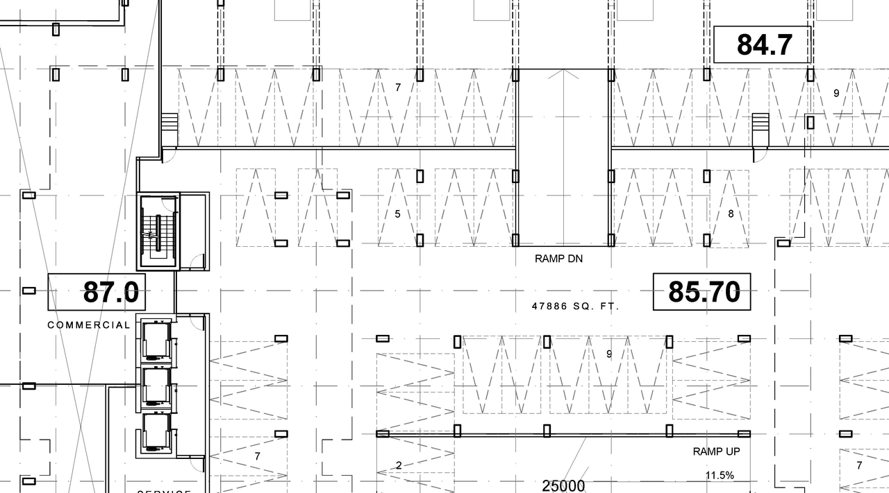
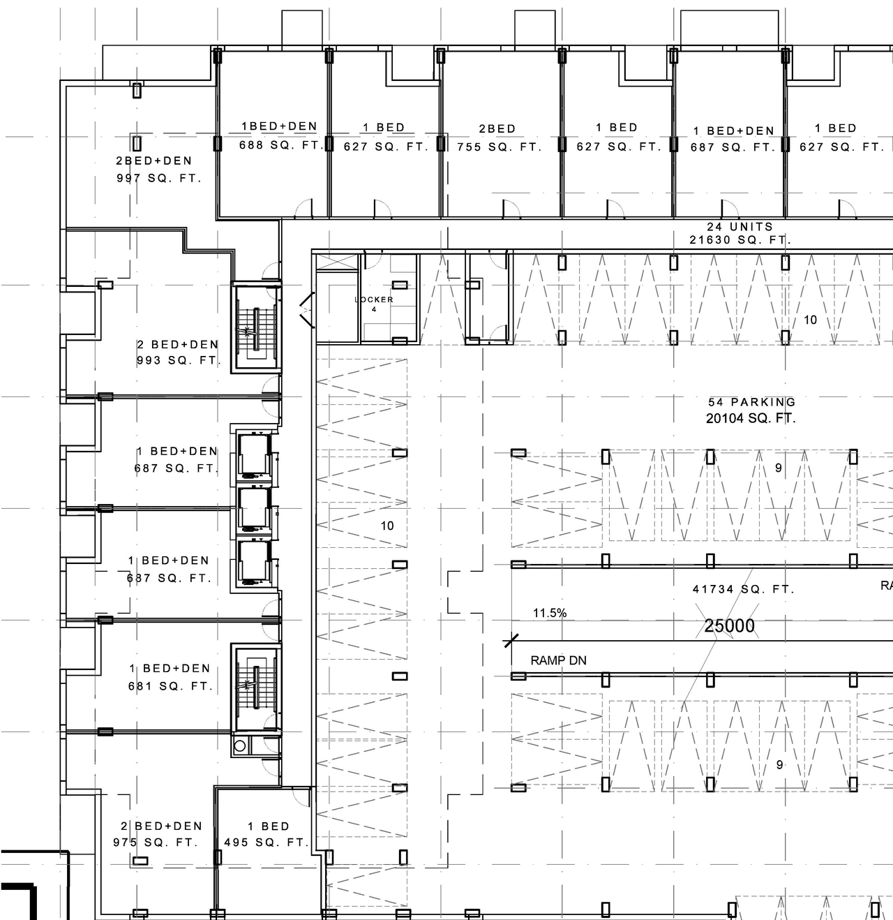
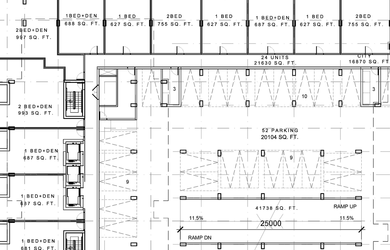
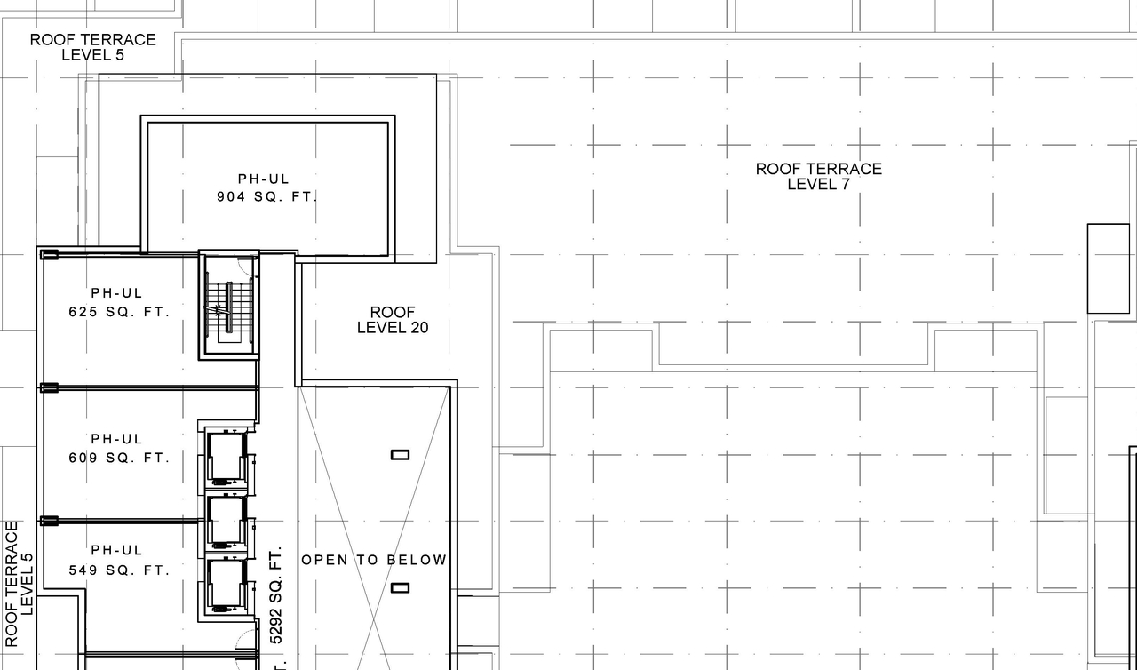
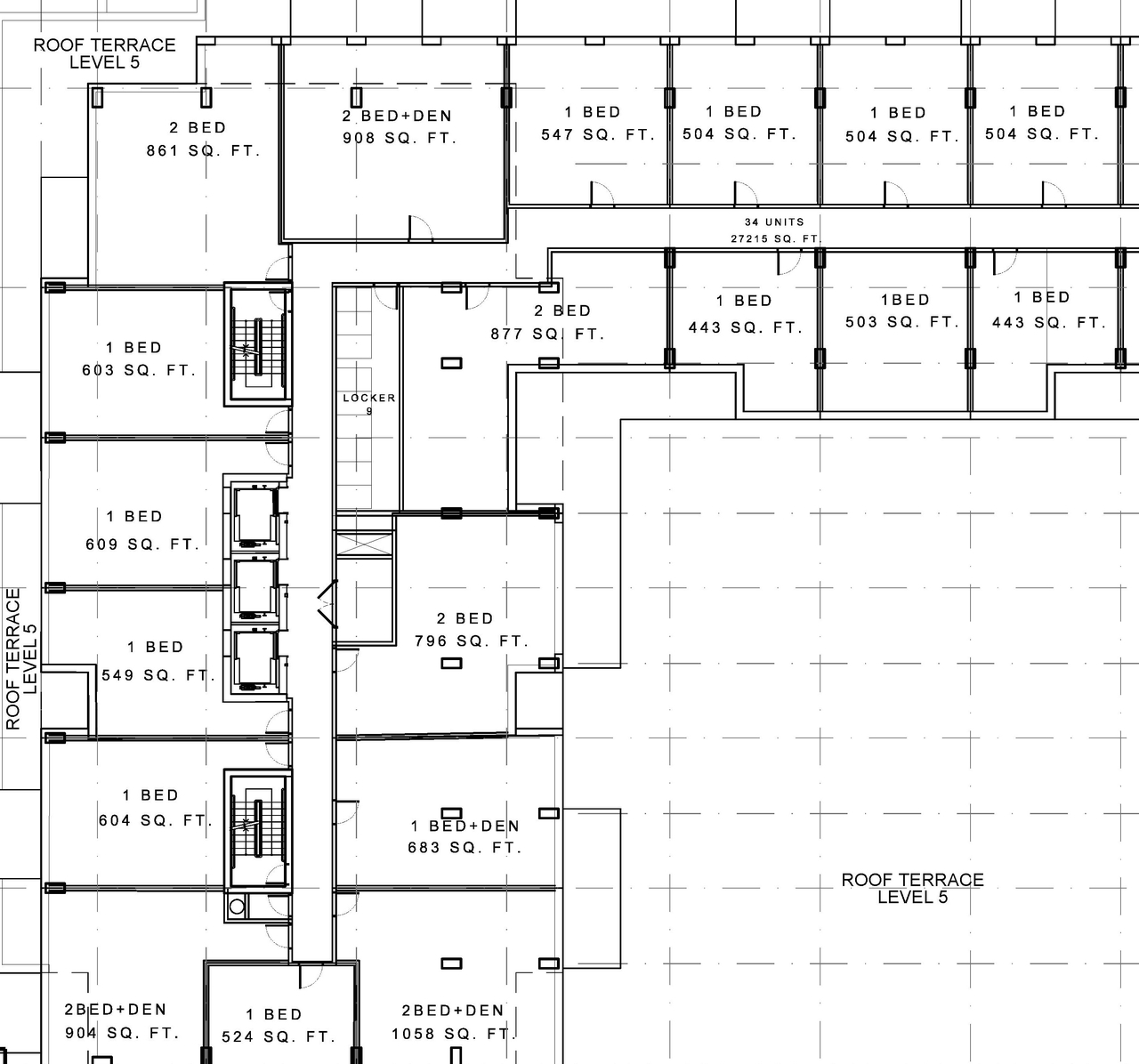
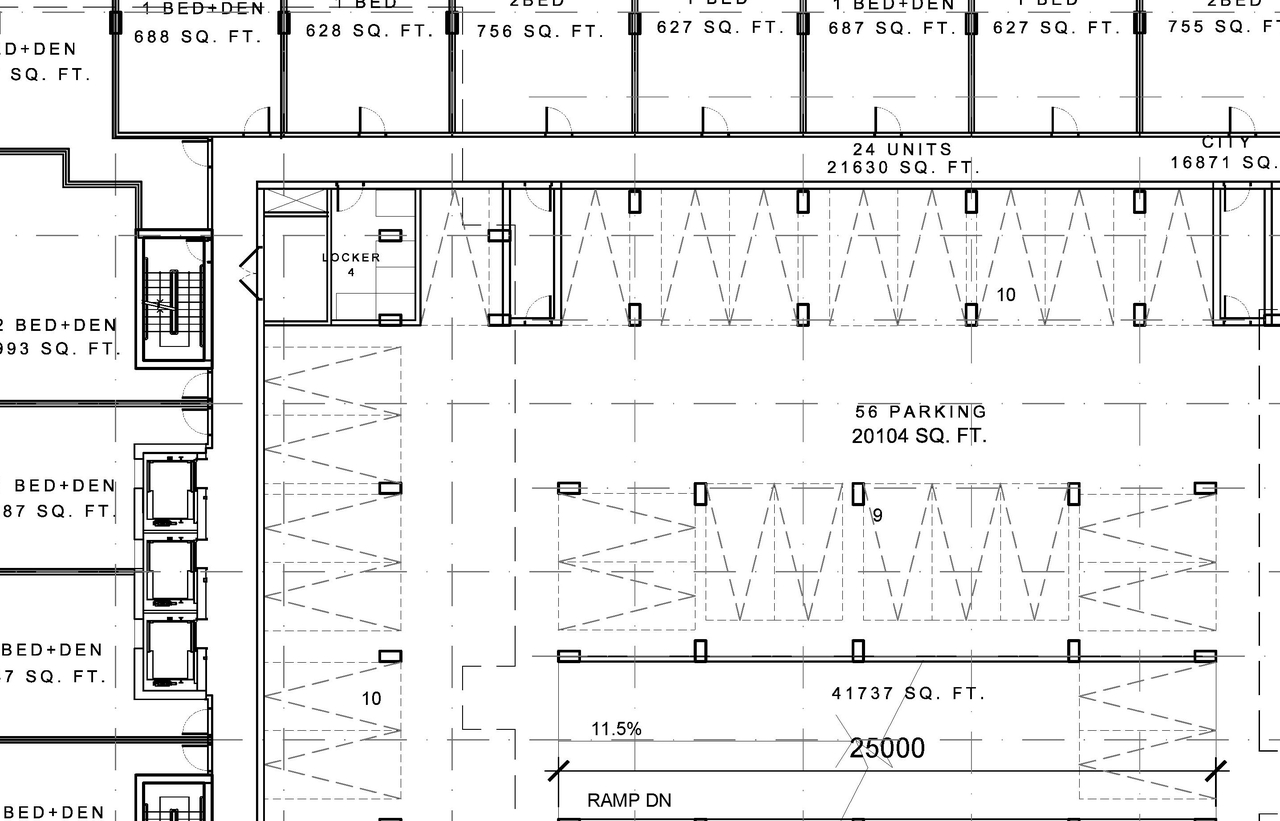
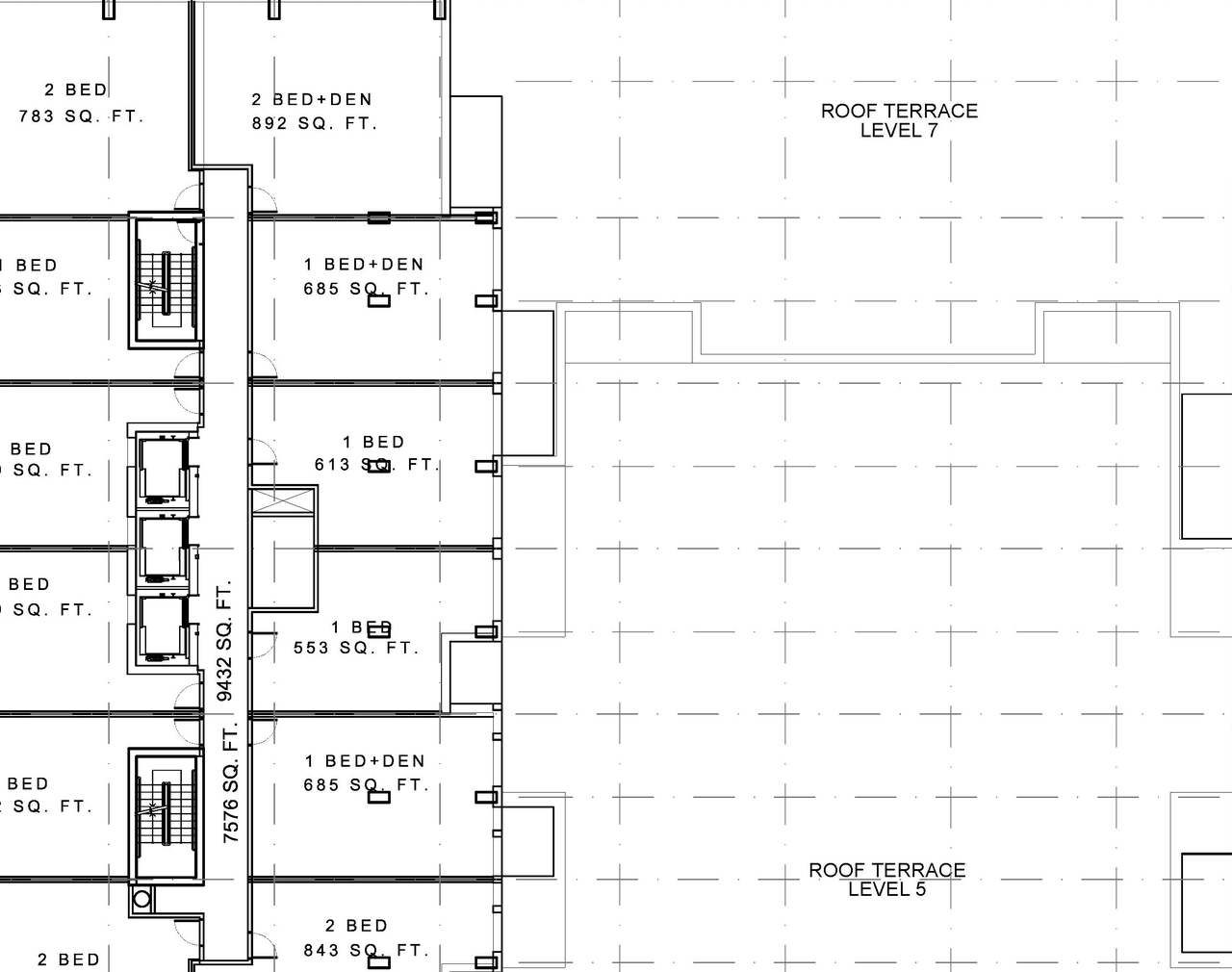
Site Plans, Elevations and Floor Plans#
Additional Information#
| Date Initiated | 2021-10-29 |
| Ward | Ward 10 - Jessica Bradley |




















