1740-1760 St-Laurent Blvd.#
Last updated: 2021-12-14 ยท ID: D02-02-21-0137
Summary#
To permit a height of 50 m when 30 m is the maximum for AM10 zoned property
Status
File Pending (Application File Pending)
Renders#
Location#
Select a marker to view the address.
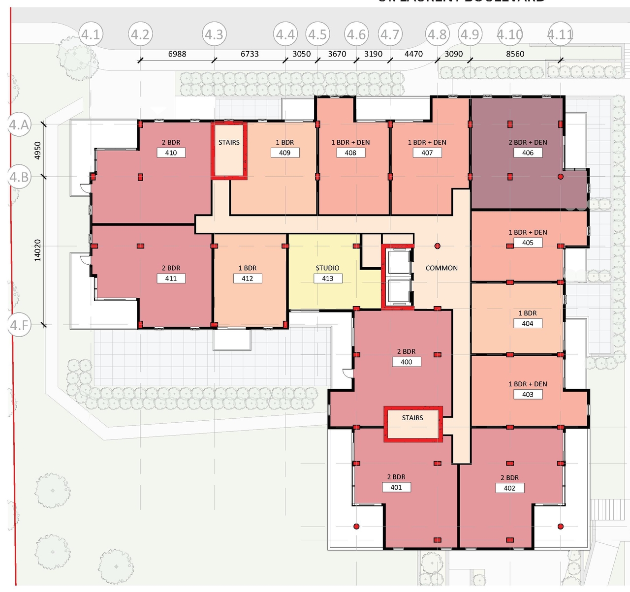
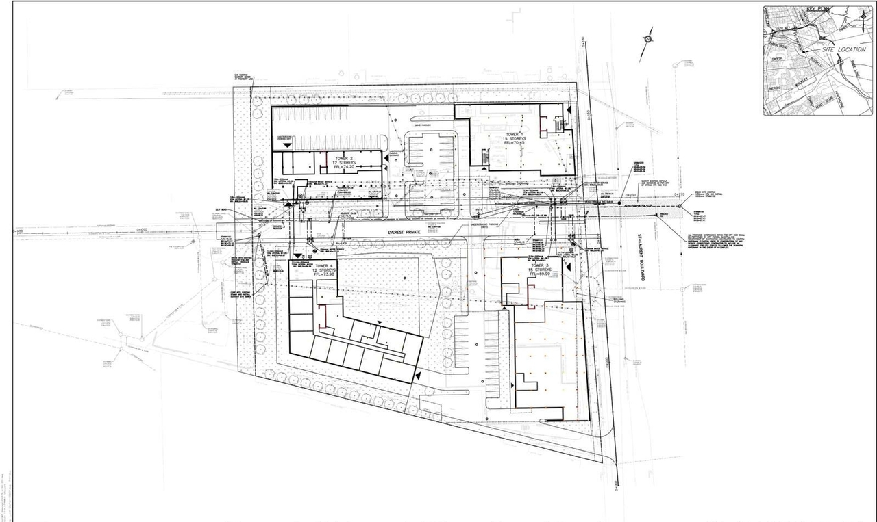
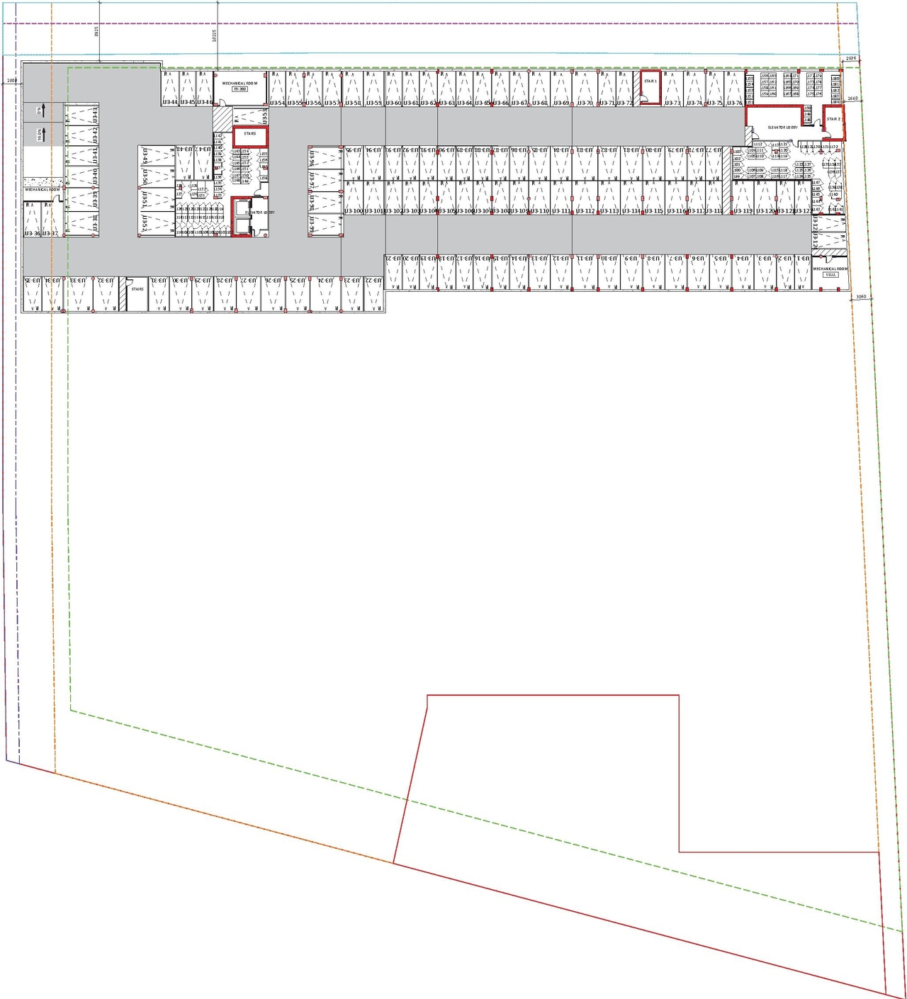
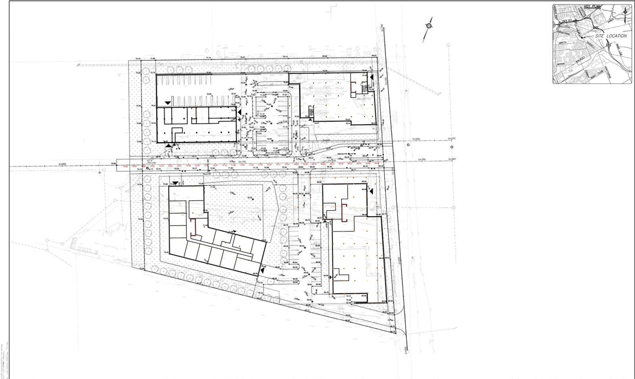
Site Plans, Elevations and Floor Plans#
Additional Information#
| Date Initiated | 2021-10-27 |
| Ward | Ward 18 - Marty Carr |
| All Addresses | 1740 St-Laurent Blvd. 1754 St-Laurent Blvd. 1760 St-Laurent Blvd. |













































































































