Ottawa Development Projects

1987 Robertson Rd.#

Last updated: 2026-02-27 ยท ID: D02-02-21-0120

Summary#

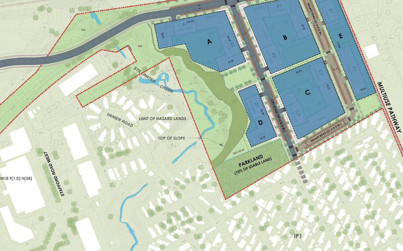
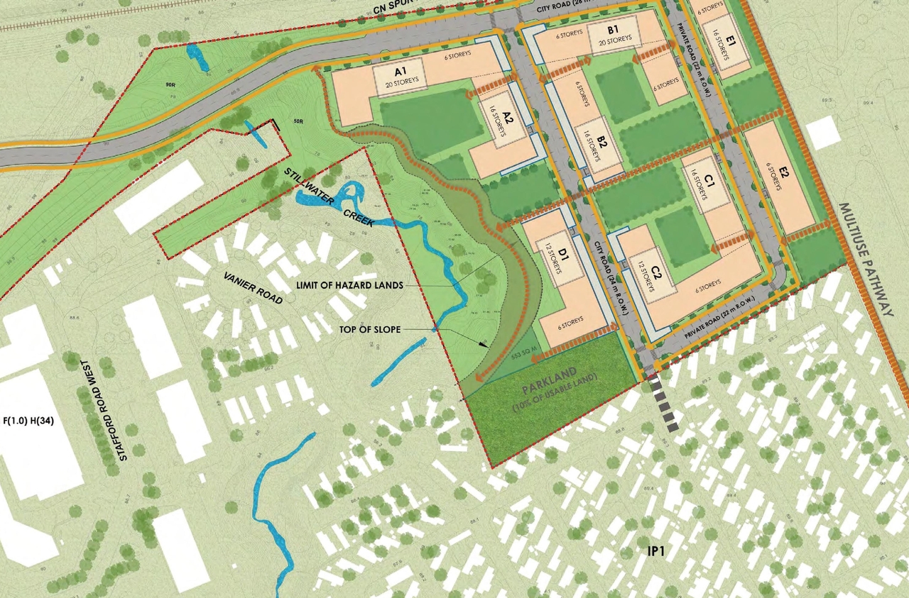
The amendment is required to recognize the proposed residential and retail uses. The proposed zoning is Arterial mainstreet. A total of 1,925 new dwelling units are anticipated with an additional 3,870 square metres of commercial space.

Status
Active (OMB Mediation Held)

Renders#

Location#

Select a marker to view the address.

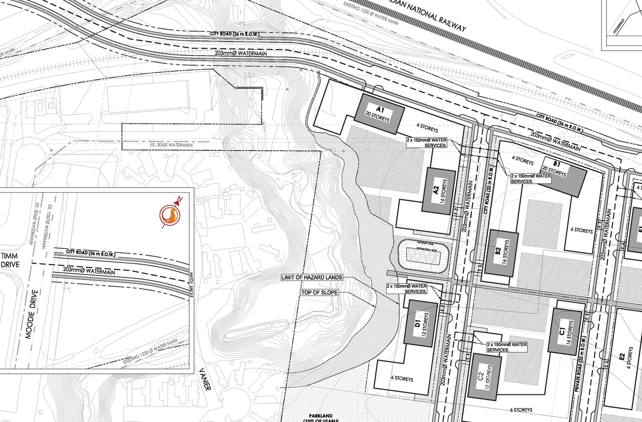
Site Plans, Elevations and Floor Plans#

Additional Information#

Date Initiated2021-10-13
WardWard 8 - Laine Johnson

Documents#

TypeDocument
Application Summary2021-10-26 - Application Summary - D02-02-21-0120
Architectural Plans2024-03-06 - MASTER PLAN - D02-02-21-0120
Architectural Plans2023-04-26 - Watermain Servicing Plan - D01-01-21-0021 and D02-02-21-0120
Architectural Plans2023-04-26 - SANITARY SEWER NETWORK AND DRAINAGE PLAN - D01-01-21-0021 and D02-02-21-0120
Architectural Plans2023-04-26 - Master Plan - - D01-01-21-0021 and D02-02-21-0120
Architectural Plans2023-04-26 - Secondary Plan - D01-01-21-0021 and D02-02-21-0120
Architectural Plans2022-04-04 - Conceptual Site Plan Package - D02-02-21-0120
Architectural Plans2021-10-13 - Site Plan Analysis 2 - D02-02-21-0120
Architectural Plans2021-10-13 - Site Plan Analysis - D02-02-21-0120
Architectural Plans2021-10-13 - Sanitary Sewer Network and Drainge Plan - D02-02-21-0120
Architectural Plans2021-10-13 - Master Plan - D02-02-21-0120
Design Brief2021-11-24 - Applicant UDRP Presentation - D02-02-21-0120
Environmental2024-03-06 - Environmental Impact Statement - D02-02-21-0120
Environmental2023-04-26 - Phase II Environmental Site Assessment - D01-01-21-0021 and D02-02-21-0120
Environmental2023-04-26 - Environmental Impact Statement - D01-01-21-0021 and D02-02-21-0120
Environmental2022-04-04 - Phase I Environmental Site Assessment - D02-02-21-0120
Environmental2021-10-13 - Phase 2 Environmental Site Assessment 2 - D02-02-21-0120
Environmental2021-10-13 - Phase 1 Environmental Site Assessment - D02-02-21-0120
Environmental2021-10-13 - Environmental Impact Statement - D02-02-21-0120
Existing Conditions2024-03-06 - EXISTING STORM DRAINAGE PLAN - D02-02-21-0120
Existing Conditions2023-04-26 - EXISTING STORM DRAINAGE PLAN - D01-01-21-0021 and D02-02-21-0120
Geotechnical Report2024-03-06 - Grading Plan - D02-02-21-0120
Geotechnical Report2024-03-06 - Geotechnical Investigation - D02-02-21-0120
Geotechnical Report2023-04-26 - Grading Plan - D01-01-21-0021 and D02-02-21-0120
Geotechnical Report2023-04-26 - Geotechnical Investigation - D01-01-21-0021 and D02-02-21-0120
Geotechnical Report2021-10-13 - Grading Plan - D02-02-21-0120
Geotechnical Report2021-10-13 - Geotechnical - D02-02-21-0120
Noise Study2021-10-13 - Noise Brief - D02-02-21-0120
Planning2023-07-06 - Planning Rationale Addendum - D02-02-21-0120
Planning2022-04-04 - Planning Rationale Addendum - D02-02-21-0120
Site Servicing2023-04-26 - Site Servicing & Stormwater Management Report - D01-01-21-0021 and D02-02-21-0120
Site Servicing2021-10-13 - Servicing Report - D02-02-21-0120
Stormwater Management2024-03-06 - STORM SEWER NETWORK AND DRAINAGE PLAN - D02-02-21-0120
Stormwater Management2024-03-06 - Functional Site Servicing and Stormwater Management Report - D02-02-21-0120
Stormwater Management2023-04-26 - Storm Sewer Network & Drainage Plan - D01-01-21-0021 and D02-02-21-0120
Stormwater Management2022-04-04 - Functional Site Servicing & Stormwater Management Report - D02-02-21-0120
Stormwater Management2021-10-13 - Storm Sewer and Drainage Plan - D02-02-21-0120
Stormwater Management2021-10-13 - Storm Drainage Plan - D02-02-21-0120
Surveying2023-04-26 - Topographic Survey - D01-01-21-0021 and D02-02-21-0120
Surveying2021-10-13 - Survey Plan - D02-02-21-0120
Transportation Analysis2021-10-13 - Transportation Impact Assessment - D02-02-21-0120
Tree Information and Conservation2023-04-26 - TREE CONSERVATION REPORT - D01-01-21-0021 and D02-02-21-0120
Tree Information and Conservation2022-04-04 - Tree Conservation Report - D02-02-21-0120
Tree Information and Conservation2021-10-13 - Tree Conservation Report - D02-02-21-0120
2024-03-06 - Watermain Servicing - D02-02-21-0120
2024-03-06 - Phase 1 - Environmental Site Assessment - D02-02-21-0120
2024-03-06 - Area Specific Policy - D02-02-21-0120
2023-04-26 - Proposed Building Height Schedule - D01-01-21-0021 and D02-02-21-0120
2023-04-26 - PEDESTRIAN WIND COMFORT ASSESSMENT - D01-01-21-0021 and D02-02-21-0120
2023-04-26 - Bylaw 42-59 - D01-01-21-0021 and D02-02-21-0120
2022-04-04 - Preliminary Geotechnical Investigation - D02-02-21-0120
2021-10-13- Public Consultation Strategy - D02-02-21-0120
2021-10-13 - Watermain Servicing - D02-02-21-0120
2021-10-13 - Phase 2 Environmenral Site Assessment - D02-02-21-0120