322 Waverley St.#
Last updated: 2021-11-03 · ID: D02-02-21-0096
Summary#
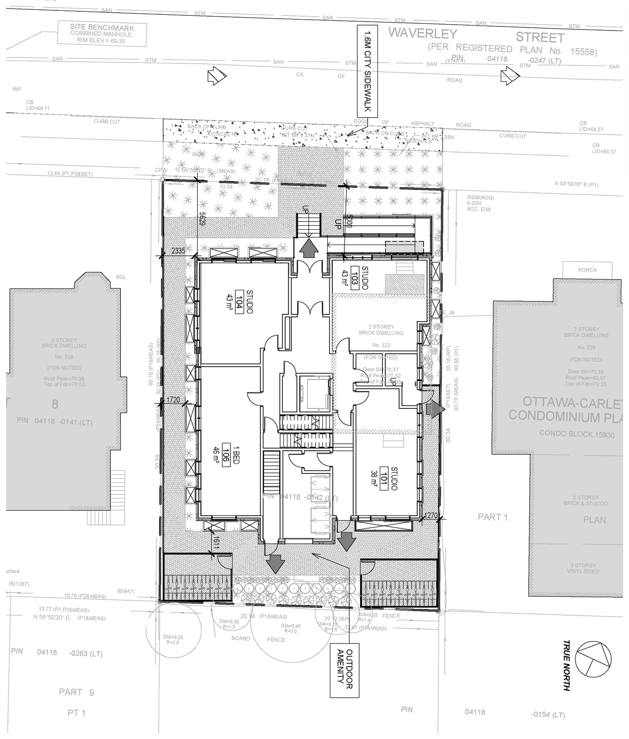
The City of Ottawa has received an Official Plan and Zoning By-law Amendment application to permit a six-storey, residential building with a total of 27 dwelling units.
Status
File Pending (Application File Pending)
Building Scale (Max.)
Based on elevation drawings. Values may be approximate. See sources for exact figures.
Mid-rise · 6 storeys
· 22.11 m
Renders#
Location#
Select a marker to view the address.
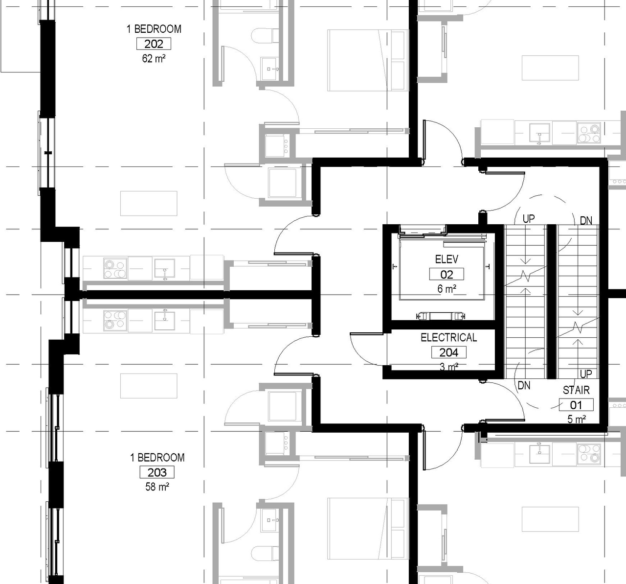
Site Plans, Elevations and Floor Plans#
Additional Information#
| Date Initiated | 2021-09-09 |
| Ward | Ward 14 - Ariel Troster |




























