436-444 Maclaren St./359 Kent St.#
Last updated: 2024-02-20 · ID: D02-02-21-0095
Summary#
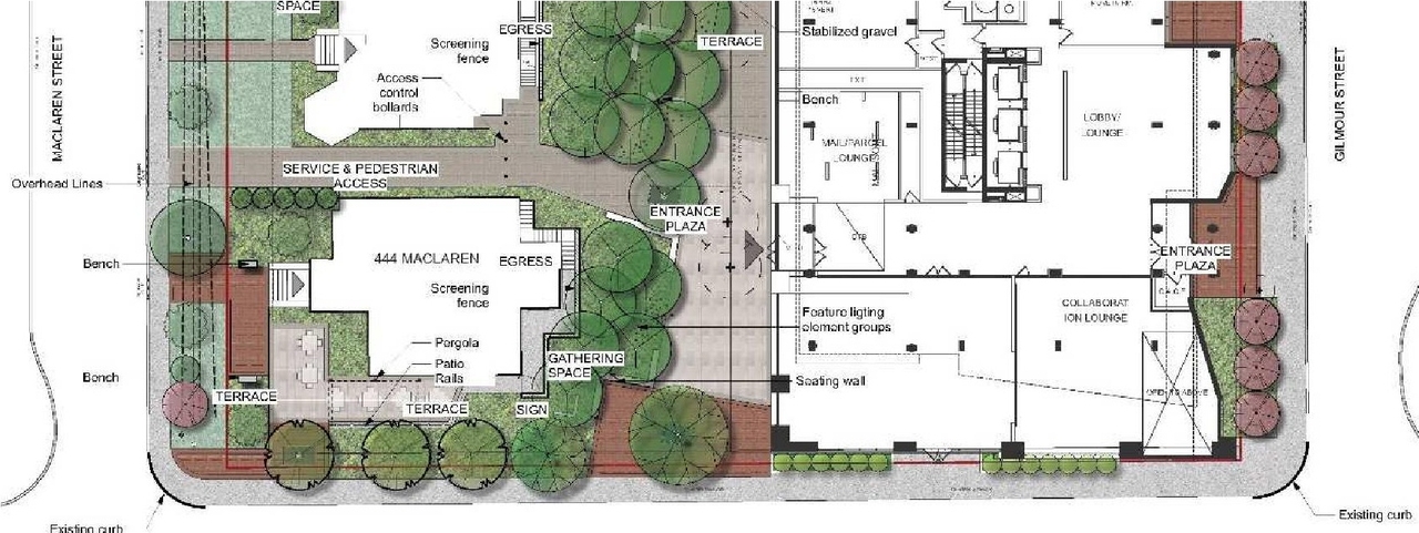
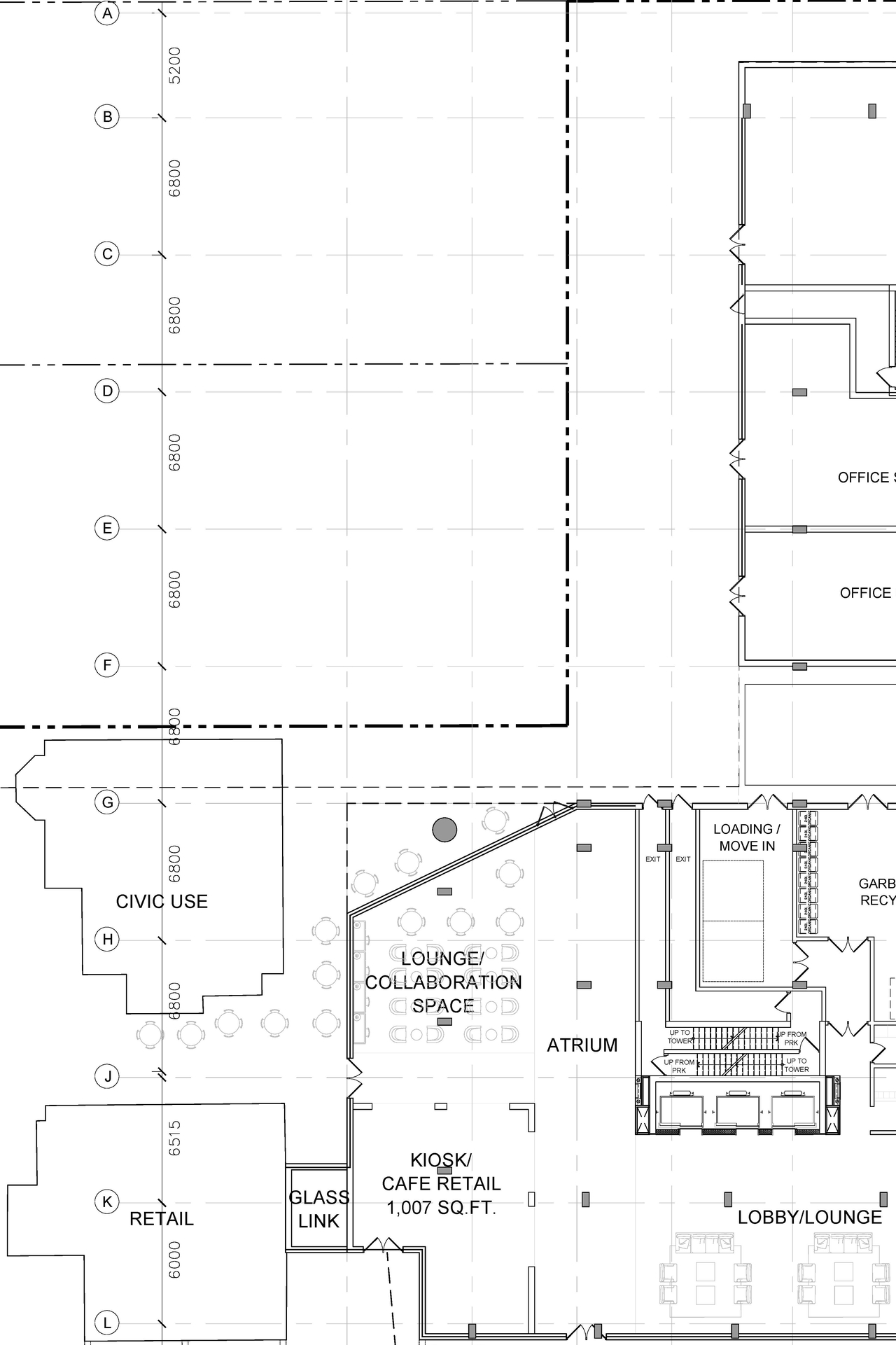
The City of Ottawa has received Official Plan Amendment and Zoning By-law Amendment applications to construct a 34-storey high-rise mixed-use landmark building. The development proposes an eight-storey podium along Gilmour Street and retains and integrates the two existing residential heritage buildings, at 436 and 444 MacLaren Street.
Status
Inactive (Zoning By-law in Effect)
Building Scale (Max.)
Based on elevation drawings. Values may be approximate. See sources for exact figures.
High-rise · 35 storeys
· 108.7 m
Renders#
Location#
Select a marker to view the address.
Site Plans, Elevations and Floor Plans#
Additional Information#
| Date Initiated | 2021-09-08 |
| Ward | Ward 14 - Ariel Troster |
| All Addresses | 436 Maclaren St. 444 Maclaren St. 359 Kent St. |
























































