253-257 York St./78-80 Nelson St.#
Summary#
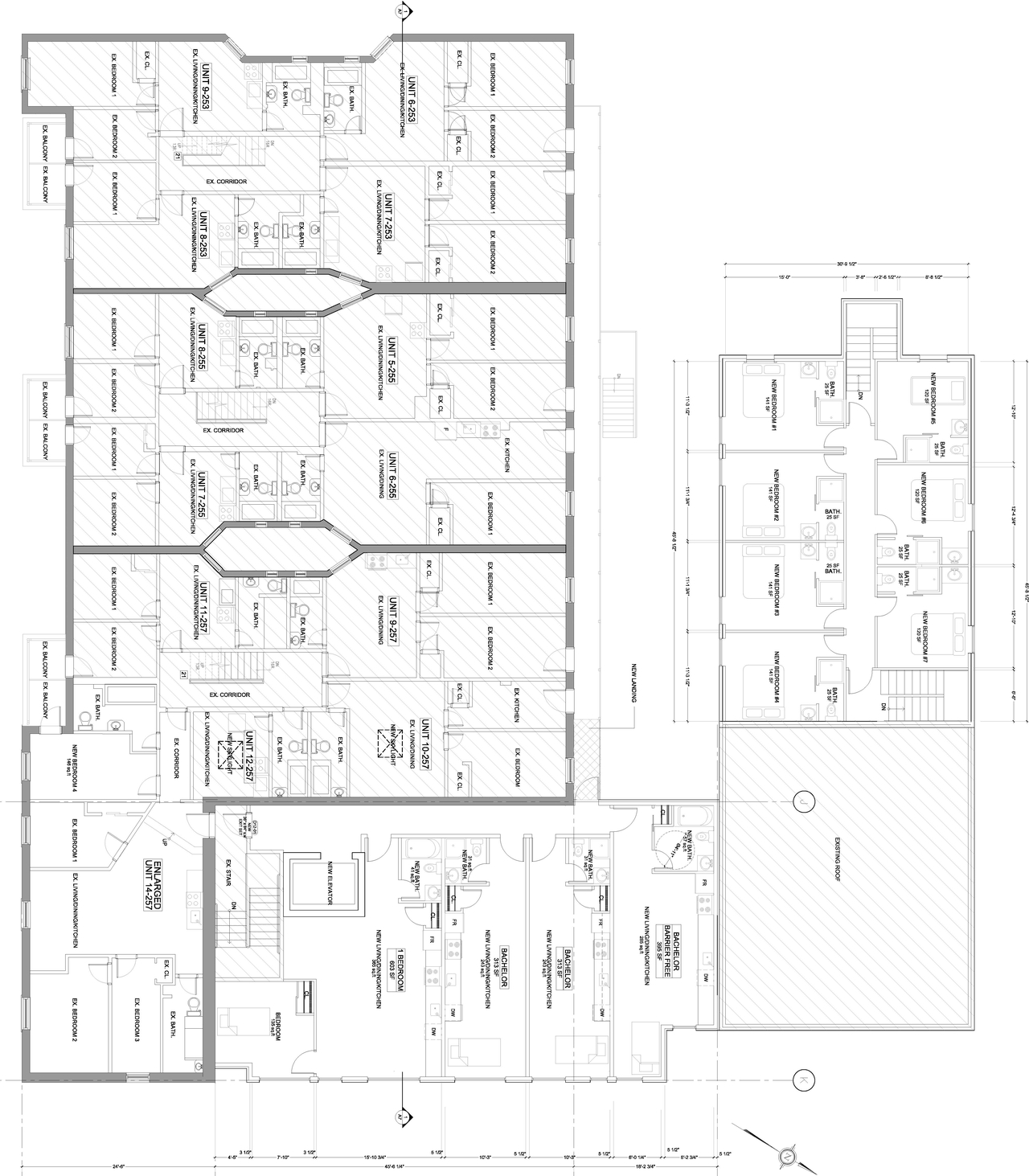
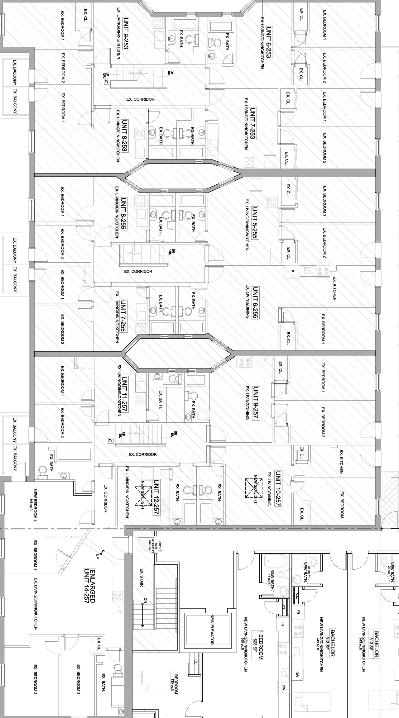
The City of Ottawa has received a Zoning By-law Amendment and Site Plan Control application to permit the construction of a four-storey addition and a three-storey addition to the two existing buildings on the properties, which will add 20 dwelling units and 26 rooming units respectively.
Status
Inactive (Zoning By-law in Effect)
Building Scale (Max.)
Based on elevation drawings. Values may be approximate. See sources for exact figures.
Low-rise · 3 storeys
Data Quality Note
Text was extracted using optical character recognition. This may introduce artifacts or misreads.
· 14.7 m
Data Quality Note
Height was partially estimated using visual scale. This may be approximate.
Data Quality Note
Text was extracted using optical character recognition. This may introduce artifacts or misreads.
Renders#
Location#
Site Plans, Elevations and Floor Plans#
Additional Information#
| Date Initiated | 2021-08-27 |
| Ward | Ward 12 - Stéphanie Plante |
| All Addresses | 253 York St. 255 York St. 257 York St. 78 Nelson St. 80 Nelson St. |















