280 Laurier Ave. E.#
Last updated: 2023-08-18 · ID: D02-02-21-0087
Summary#
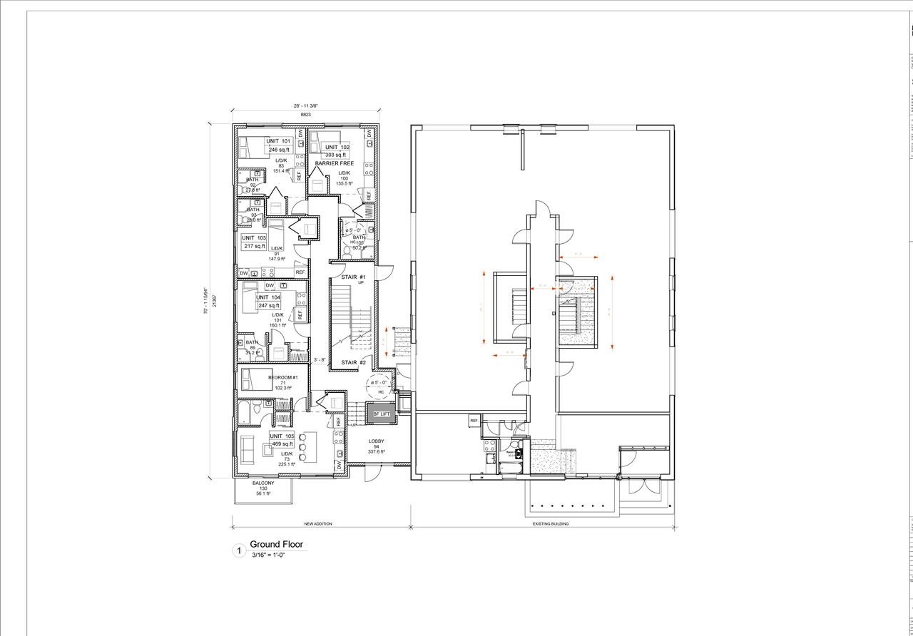
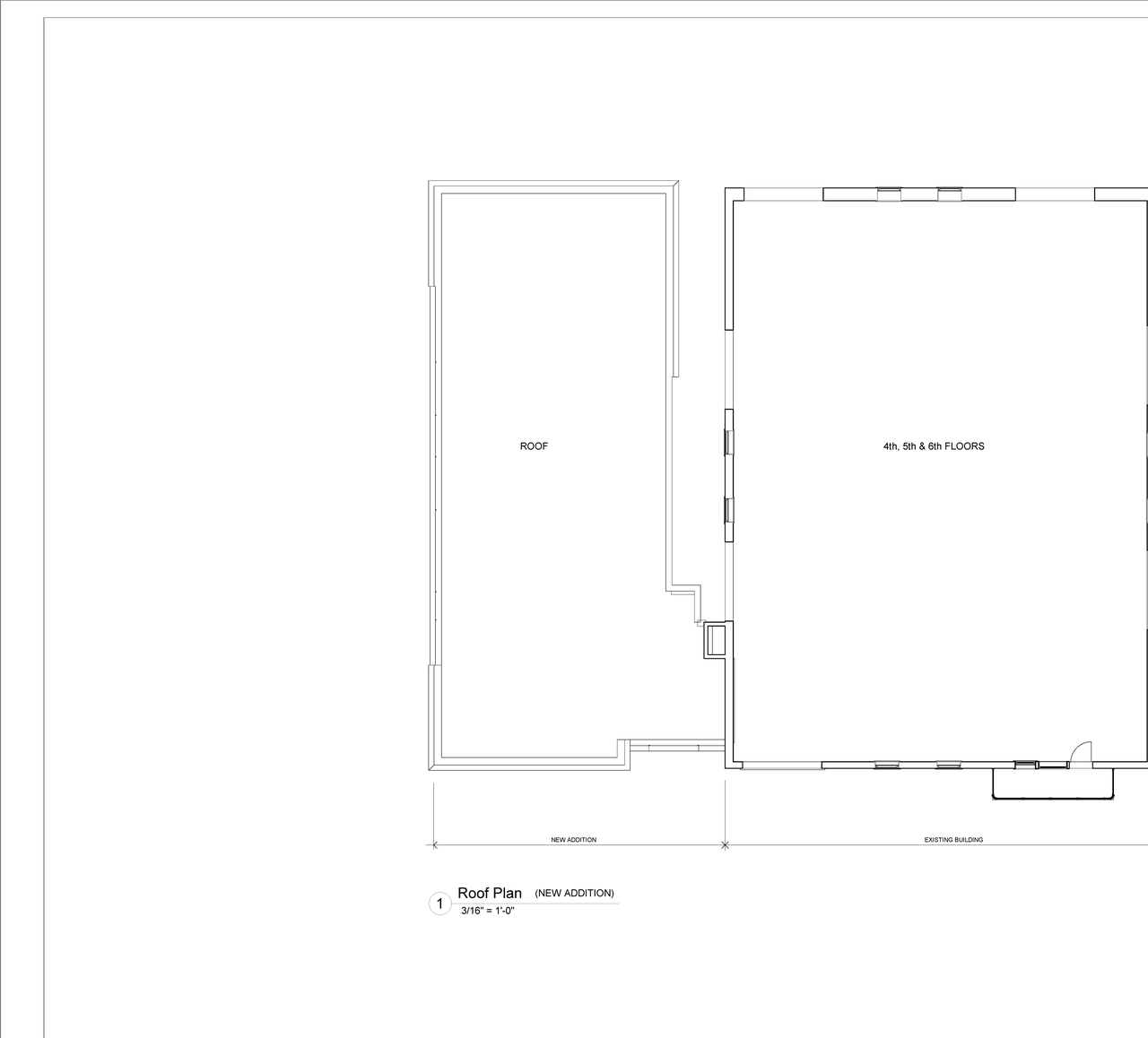
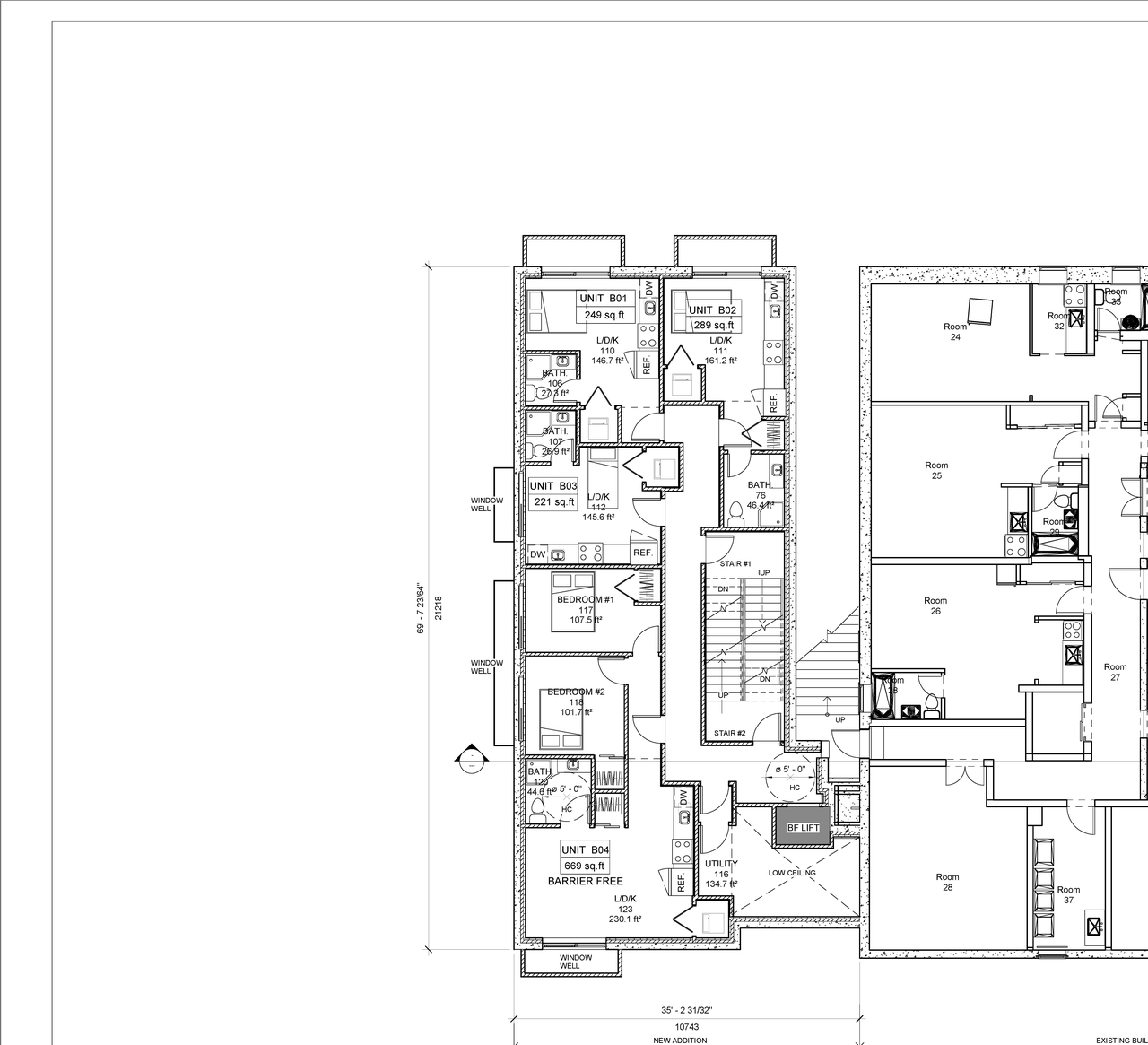
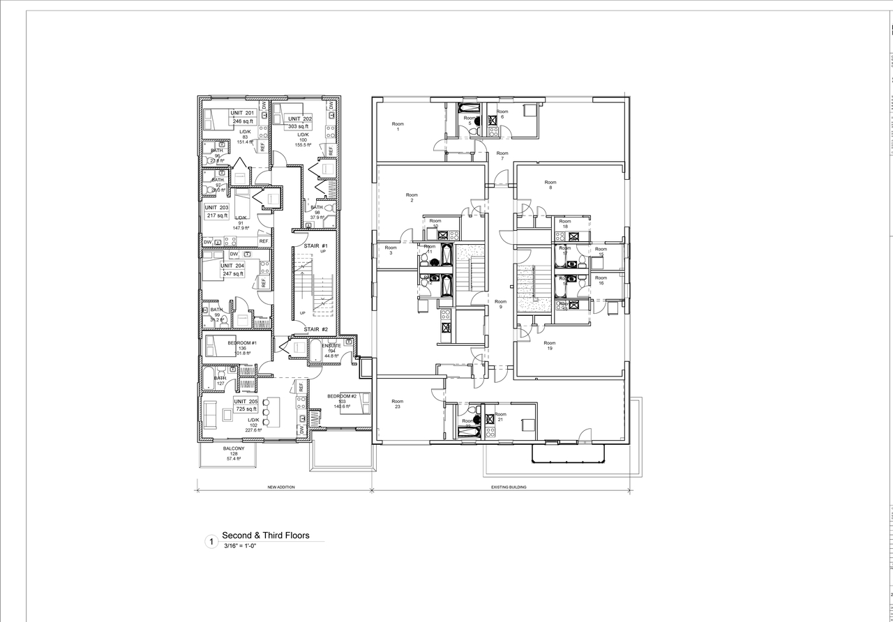
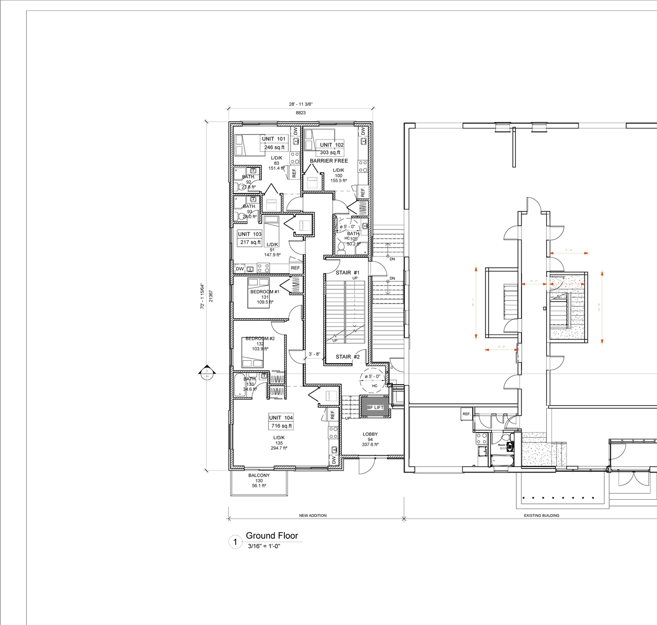
The City of Ottawa has received a Zoning By-law Amendment and Site Plan Control application to construct a three-storey residential addition along the east face of the existing mid-rise building.
Status
Inactive (Application Approved by OMB)
Building Scale (Max.)
Based on elevation drawings. Values may be approximate. See sources for exact figures.
Low-rise · 3 storeys
Data Quality Note
Text was extracted using optical character recognition. This may introduce artifacts or misreads.
Location#
Select a marker to view the address.
Site Plans, Elevations and Floor Plans#
Additional Information#
| Date Initiated | 2021-08-25 |
| Ward | Ward 12 - Stéphanie Plante |
Documents#
Related Projects#
| Project | Last Updated | Date Initiated |
|---|---|---|
280 Laurier Ave. E.
D07-12-24-0042 | 2025-04-02 | 2024-06-17 |





