3430 Carling Ave.#
Last updated: 2023-10-10 · ID: D02-02-21-0082
Summary#
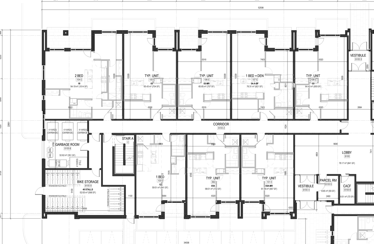
The proposed development seeks to construct a mid-rise residential apartment building, with (2) nine (9) storey buildings with a four (4) storey podium, for a total of 216 dwelling units. The proposed development will incorporate a mix of underground parking, and limited surface parking located between the two buildings.
Status
Inactive (Zoning By-law in Effect)
Building Scale (Max.)
Based on elevation drawings. Values may be approximate. See sources for exact figures.
Mid-rise · 9 storeys
Data Quality Note
Text was extracted using optical character recognition. This may introduce artifacts or misreads.
· 28.9 m
Data Quality Note
Text was extracted using optical character recognition. This may introduce artifacts or misreads.
Renders#
Location#
Select a marker to view the address.
Site Plans, Elevations and Floor Plans#
Additional Information#
| Date Initiated | 2021-08-16 |
| Ward | Ward 7 - Theresa Kavanagh |








