770-774 Bronson Ave./557 Cambridge St.#
Last updated: 2023-12-20 · ID: D02-02-21-0068
Summary#
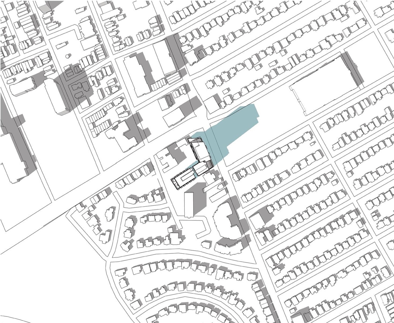
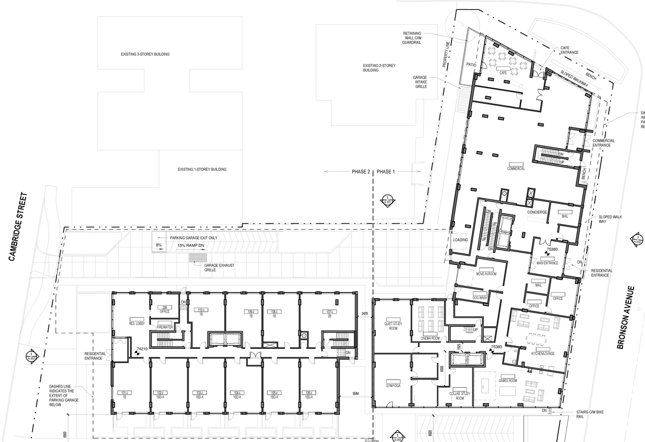
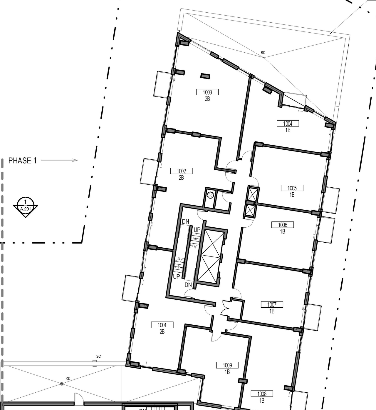
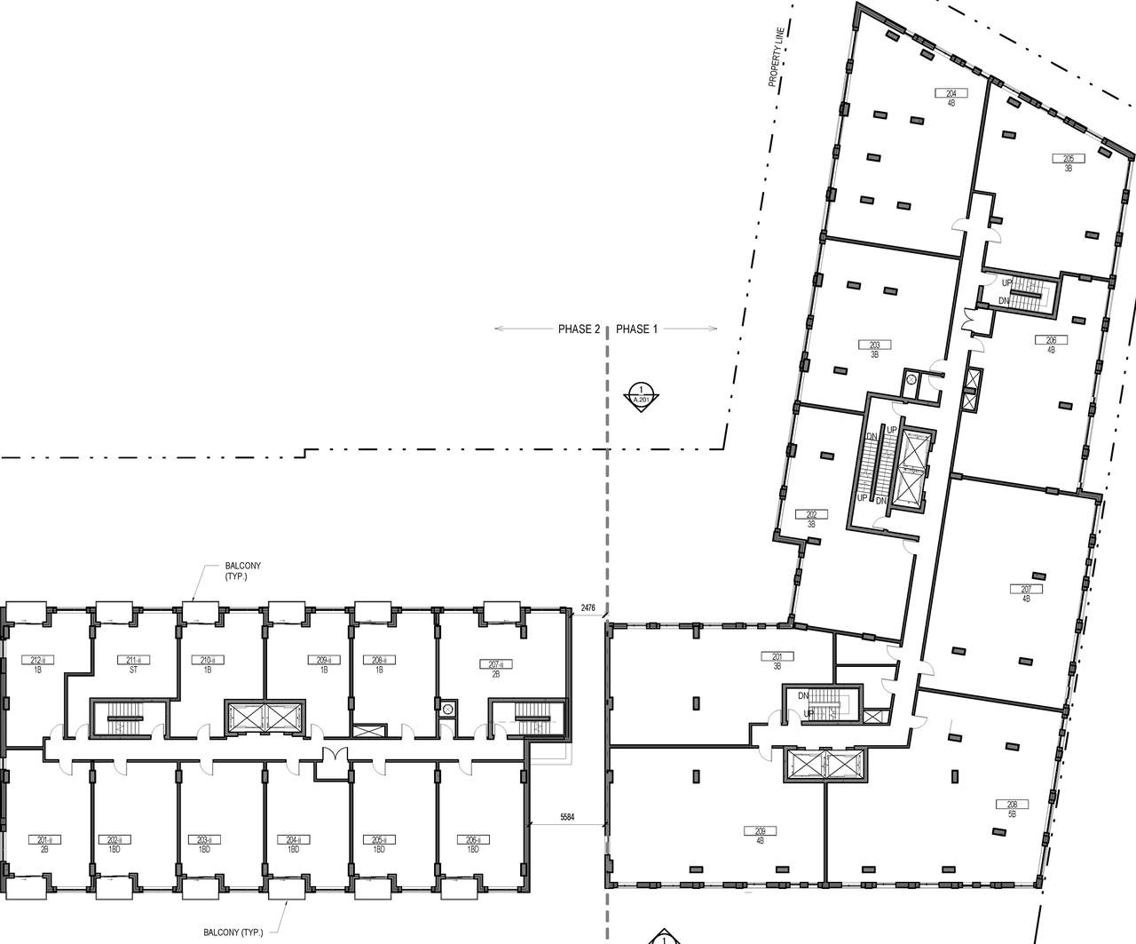
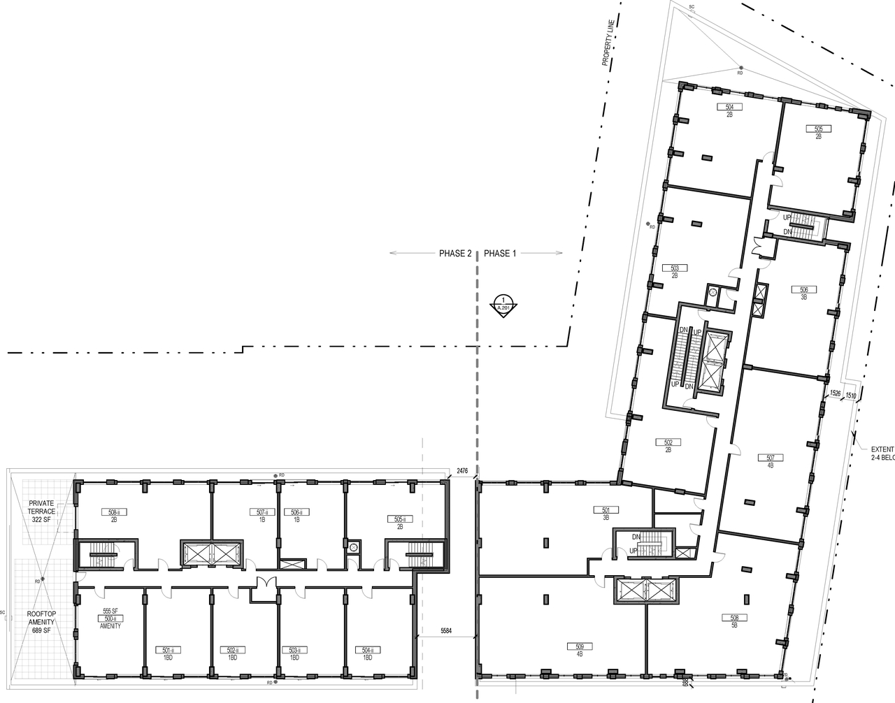
The proposed development consists of a 26-storey high-rise mixed-use with a nine storey podium along Bronson Avenue and extending west to Cambridge Street South, stepping down to four (4) storeys adjacent to the low-rise neighbourhood. A total of 328 units are proposed within the building which is to be constructed in two phases.
Status
Inactive (Zoning By-law in Effect)
Building Scale (Max.)
Based on elevation drawings. Values may be approximate. See sources for exact figures.
High-rise · 26 storeys
· 86.4 m
Renders#
Location#
Select a marker to view the address.
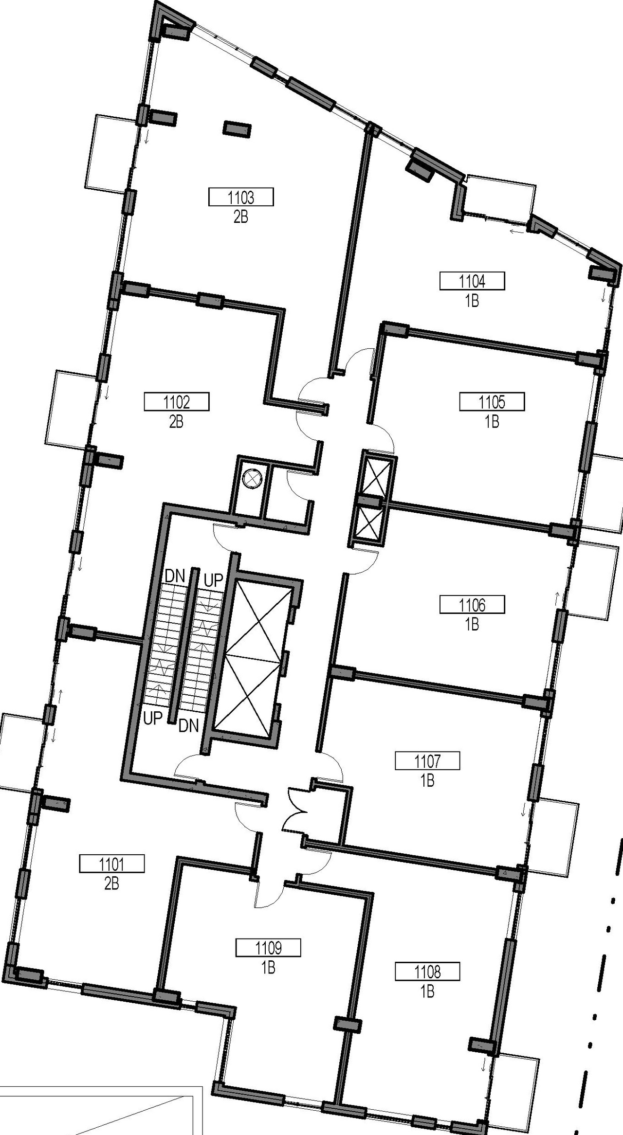
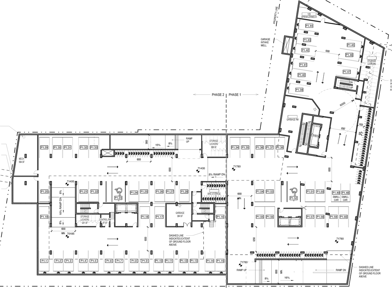
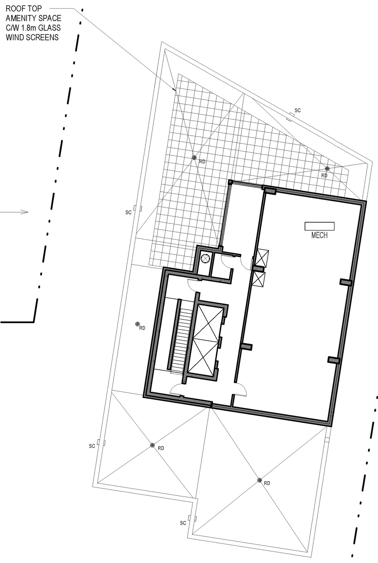
Site Plans, Elevations and Floor Plans#
Additional Information#
| Date Initiated | 2021-07-19 |
| Ward | Ward 17 - Shawn Menard |
| All Addresses | 770 Bronson Ave. 774 Bronson Ave. 557 Cambridge St. |














































