Ottawa Development Projects

729 Ridgewood Ave.#

Last updated: 2023-10-05 · ID: D02-02-21-0057

Summary#

5 buildings proposed as residential with commercial components at the ground floor. Heights ranging from 4-15 storeys with three levels of underground parking and 567 spaces in addition to 198 bicycle parking spaces.

Status
Inactive (Zoning By-law in Effect)

Building Scale (Max.) Based on elevation drawings. Values may be approximate. See sources for exact figures.
High-rise · 20 storeys · 66 m Data Quality Note Height was partially estimated using visual scale. This may be approximate.

Renders#

Location#

Select a marker to view the address.

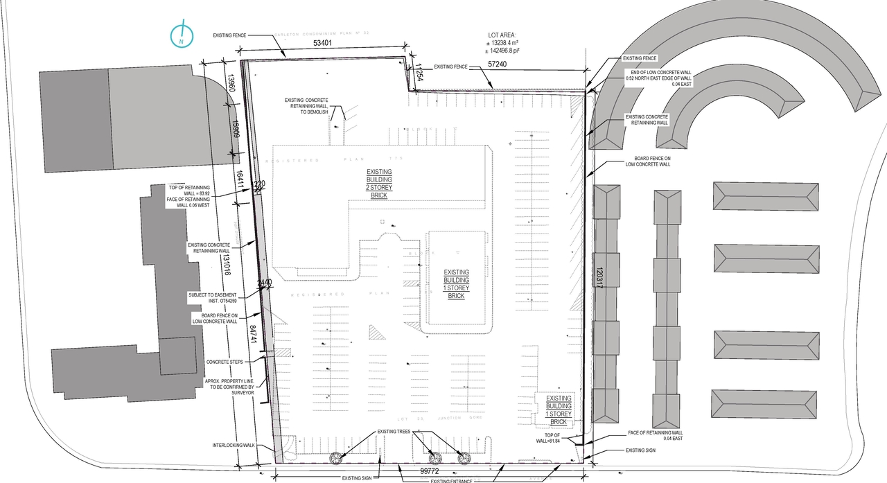
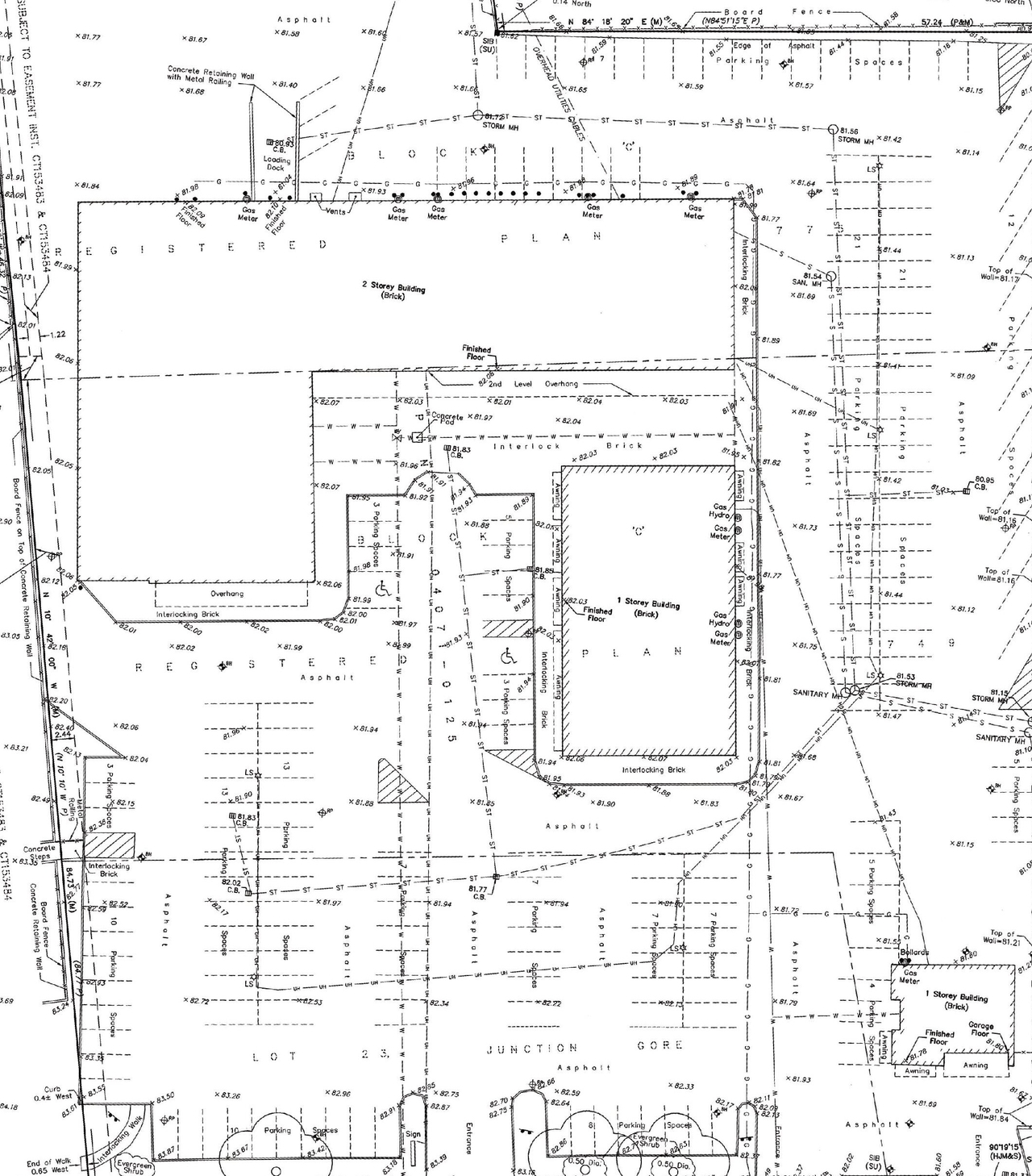
Site Plans, Elevations and Floor Plans#

Additional Information#

Date Initiated2021-06-22
WardWard 16 - Riley Brockington

Documents#

TypeDocument
Application Summary2021-08-19 - Application Summary - D02-02-21-0057
Architectural Plans2023-07-12 - Sanitary Drainage Plan - D02-02-21-0057
Architectural Plans2023-07-12 - Notes and Legends Plan - D02-02-21-0057
Architectural Plans2023-07-12 - Amenity Area Site Plan - D02-02-21-0057
Architectural Plans2022-08-05 - Sanitary Drainage Plan - D02-02-21-0057
Architectural Plans2022-08-05 - Notes and Legends Plan - D02-02-21-0057
Architectural Plans2022-08-05 - MEMO Grading Plan Review - D02-02-21-0057
Architectural Plans2022-08-05 - Architectural Package - D02-02-21-0057
Architectural Plans2021-06-22 - Sanatary Drainage Plan - D02-02-21-0057
Architectural Plans2021-06-22 - Plan Brochure - D02-02-21-0057
Architectural Plans2021-06-22 - Notes and Legend Plan - D02-02-21-0057
Design Brief2022-08-05 - Design Brief - D02-02-21-0057
Environmental2021-06-22 - Phase Two Environmental Site Assessment - D02-02-21-0057
Environmental2021-06-22 - Phase One Environmental Site Assessment - D02-02-21-0057
Erosion And Sediment Control Plan2023-07-12 - Erosion Control Plan and Data Sheet - D02-02-21-0057
Erosion And Sediment Control Plan2022-08-05 - Erosion Control Plan - D02-02-21-0057
Erosion And Sediment Control Plan2021-06-22 - Erosion Control Plan and Detail Sheet - D02-02-21-0057
Existing Conditions2023-07-12 - Existing Conditions Plan - D02-02-21-0057
Existing Conditions2022-08-05 - Existing Conditions Plan - D02-02-21-0057
Existing Conditions2021-06-22 - Existing Conditions Plan - D02-02-21-0057
Geotechnical Report2023-07-12 - Grading Plan - D02-02-21-0057
Geotechnical Report2022-08-05 - Grading Plan - D02-02-21-0057
Geotechnical Report2021-06-22 - Grading Plan - D02-02-21-0057
Geotechnical Report2021-06-22 - Geotechnical Investigation - D02-02-21-0057
Landscape Plan2023-07-12 - Landscape Plan - D02-02-21-0057 (2)
Landscape Plan2023-07-12 - Landscape Plan - D02-02-21-0057
Landscape Plan2022-08-05 - Landscape Plan - D02-02-21-0057
Landscape Plan2021-06-22 - Landscape Plan - D02-02-21-0057
Noise Study2021-06-22 - Roadway Traffic Noise Assessment - D02-02-21-0057
Planning2023-07-12 - Planning Rationale - D02-02-21-0057
Planning2022-08-05 - Planning Rationale Addendum - D02-02-21-0057
Planning2021-06-22 - Planning Rationale and Design Brief - D02-02-21-0057
Site Servicing2023-07-12 - Site Servicing Plan - D02-02-21-0057
Site Servicing2022-08-05 - Site Servicing Plan - D02-02-21-0057
Site Servicing2022-08-05 - Site Servicing and SWM Report - D02-02-21-0057
Site Servicing2021-06-22 - Site Servicing Plan - D02-02-21-0057
Site Servicing2021-06-22 - Site Servicing and Stormwater Brief - D02-02-21-0057
Stormwater Management2023-07-12 - Storm Drainage Plan - D02-02-21-0057
Stormwater Management2022-08-05 - Storm Drainage Plan - D02-02-21-0057
Stormwater Management2021-06-22 - Storm Drainage Plan - D02-02-21-0057
Surveying2021-06-22 - Surveying and Land Information Services - D02-02-21-0057
Transportation Analysis2021-09-17 - Transportation Impact Assessment - D02-02-21-0057
Tree Information and Conservation2021-06-22 - Tree Conservation Report - D02-02-21-0057
2023-07-12 - Project Report - D02-02-21-0057
2023-07-12 - Amenity Area Statistics -D02-02-21-0057
2022-08-05 - MEMO Pavement Structure - D02-02-21-0057
2021-06-22 - Brochure - D02-02-21-0057