Ottawa Development Projects

1592 Tenth Line Rd.#

Last updated: 2024-02-20 · ID: D02-02-21-0055

Summary#

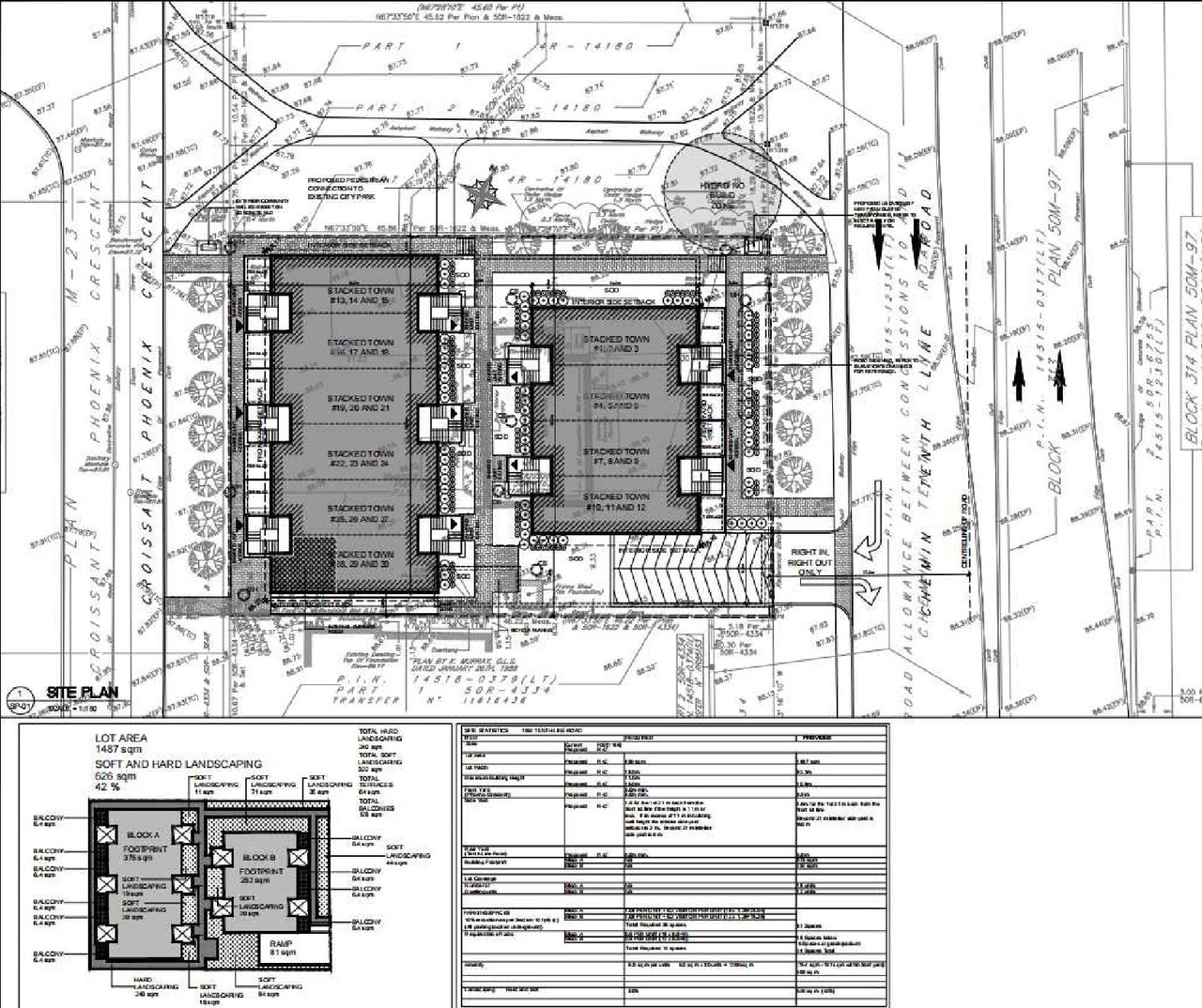
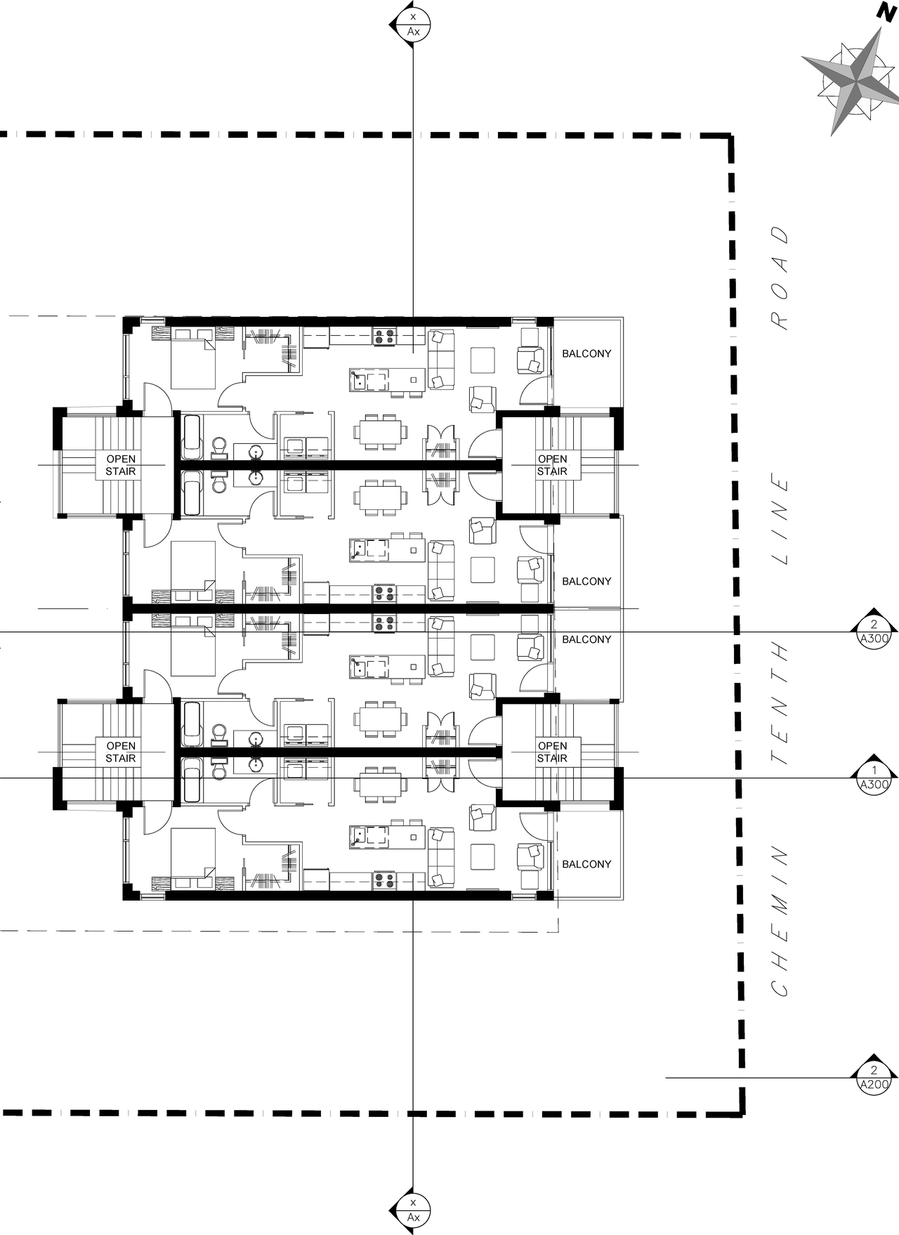
The City of Ottawa has received a Zoning By-law Amendment and Site Plan Control application to rezone the site from “Residential Third Density” (R3Z[1186]) to “Residential Fourth Density” (R4Z), with an exception to the minimum parking requirements, to allow the development of two, three-storey rental stacked dwellings.

Status
Inactive (Zoning By-law in Effect)

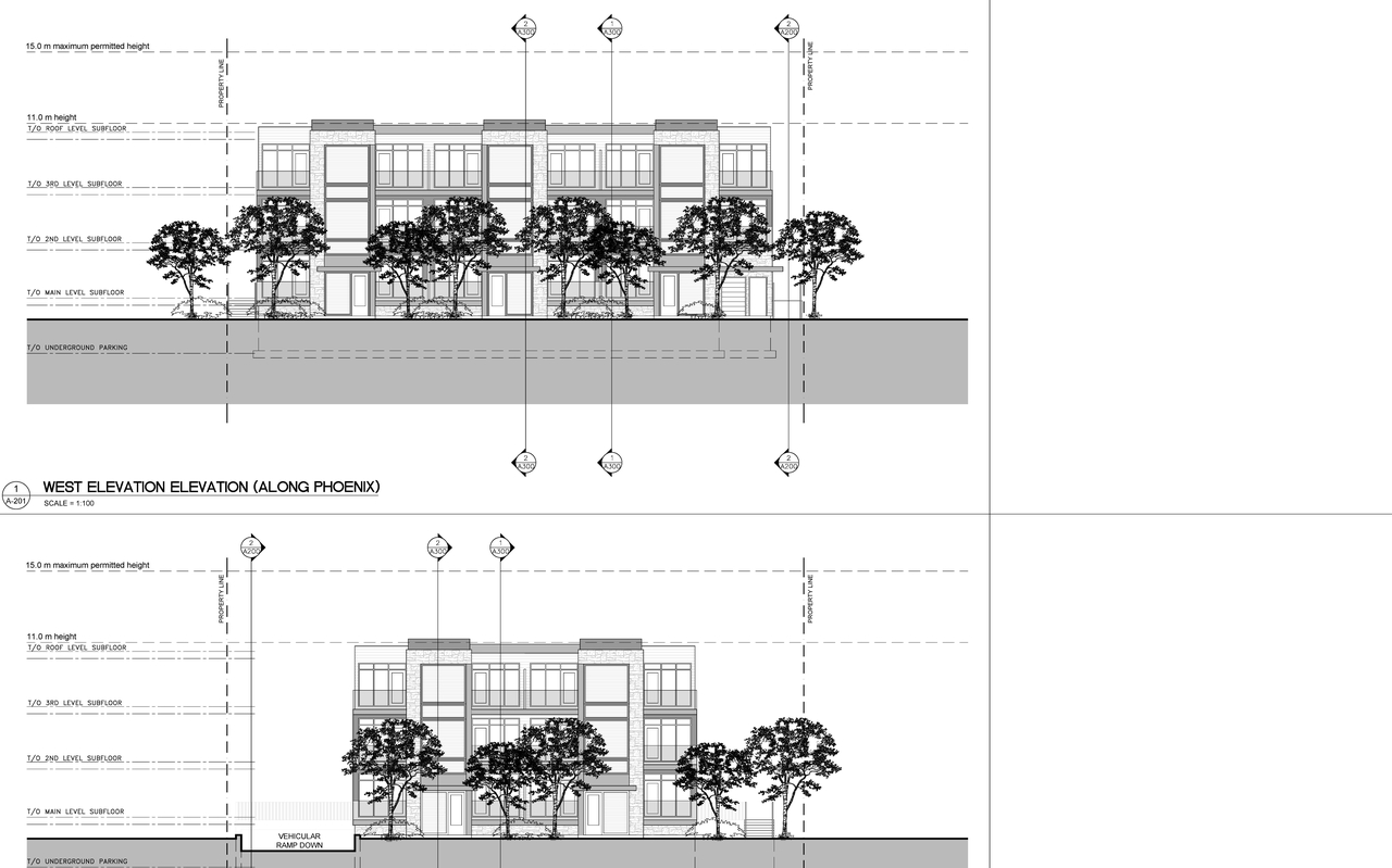
Building Scale (Max.) Based on elevation drawings. Values may be approximate. See sources for exact figures.
Low-rise · 2 storeys Data Quality Note Text was extracted using optical character recognition. This may introduce artifacts or misreads. · 5.1 m Data Quality Note Height was partially estimated using visual scale. This may be approximate. Data Quality Note Text was extracted using optical character recognition. This may introduce artifacts or misreads.

Renders#

Location#

Select a marker to view the address.

Site Plans, Elevations and Floor Plans#

  • Image from page 20 of the file '2021-06-16 - Design Brief - D02-02-21-0055'
  • Image from page 29 of the file '2021-06-16 - Design Brief - D02-02-21-0055'
  • Image from page 20 of the file '2021-06-16 - Design Brief - D02-02-21-0055'
  • Image from page 28 of the file '2021-06-16 - Design Brief - D02-02-21-0055'
  • Image from page 28 of the file '2021-06-16 - Design Brief - D02-02-21-0055'
  • Image from page 24 of the file '2021-06-16 - Design Brief - D02-02-21-0055'
  • Image from page 1 of the file '2021-06-16 - Building Sections South View - D02-02-21-0055'
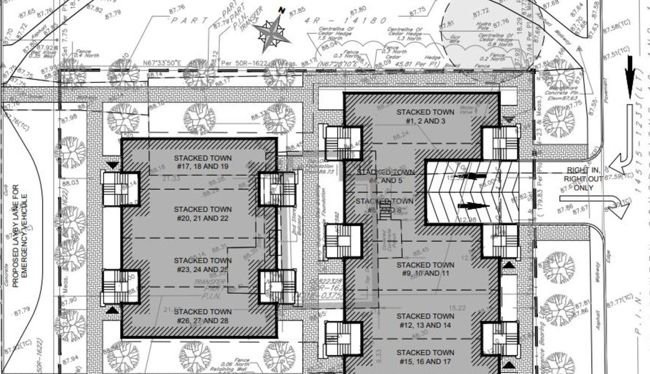
  • Construction site plan for project from page 23 of the file '2021-06-16 - Design Brief - D02-02-21-0055'
  • Construction site plan for project from page 9 of the file '2021-06-16 - Design Brief - D02-02-21-0055'
  • Construction site plan for project from page 24 of the file '2021-06-16 - Design Brief - D02-02-21-0055'
  • Construction site plan for project from page 16 of the file '2021-06-16 - Design Brief - D02-02-21-0055'
  • Construction site plan for project from page 17 of the file '2021-06-16 - Design Brief - D02-02-21-0055'
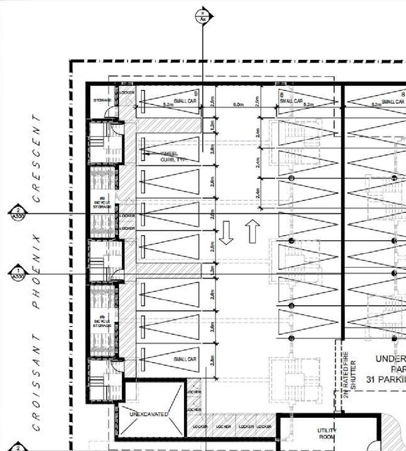
  • Construction site plan for project from page 10 of the file '2021-06-16 - Design Brief - D02-02-21-0055'
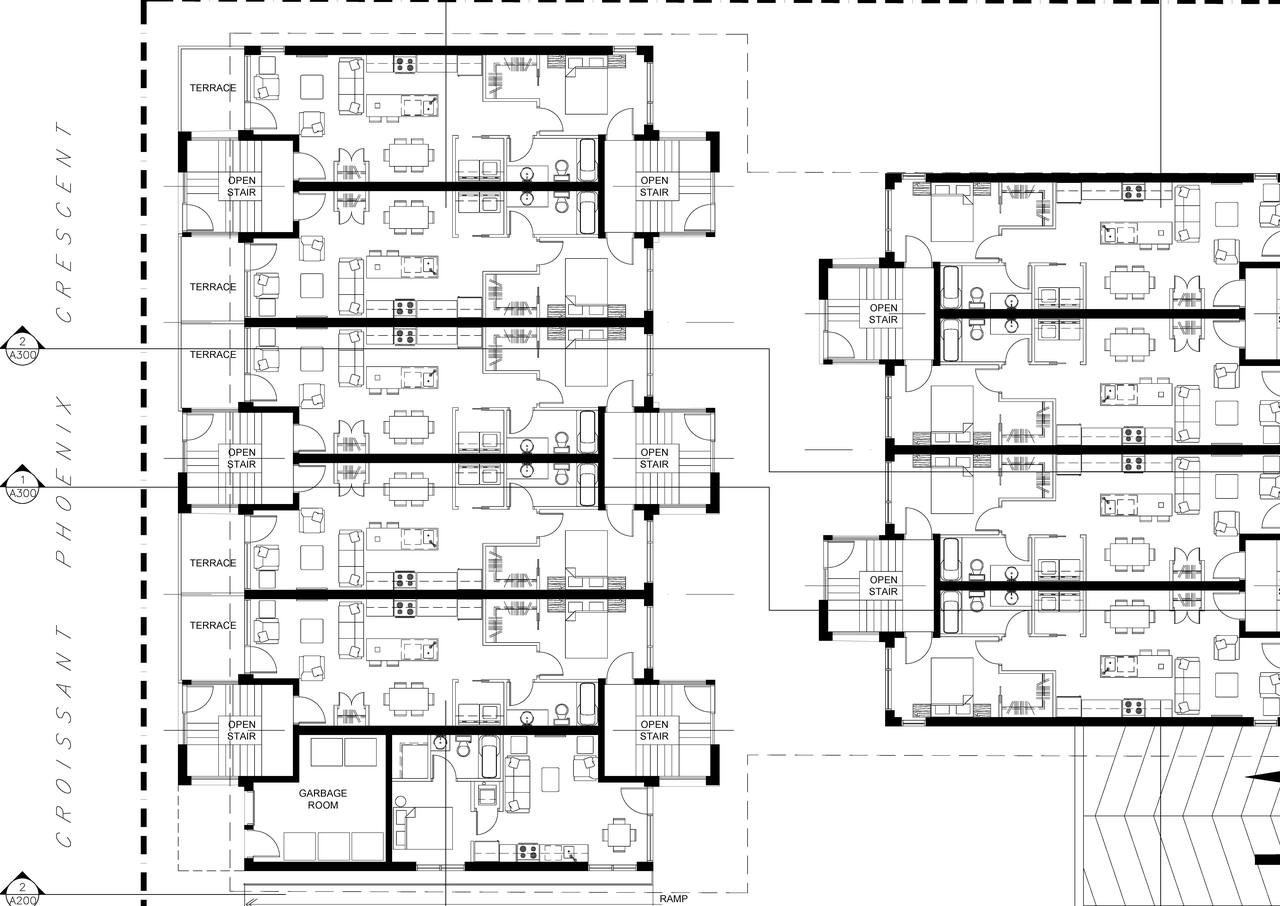
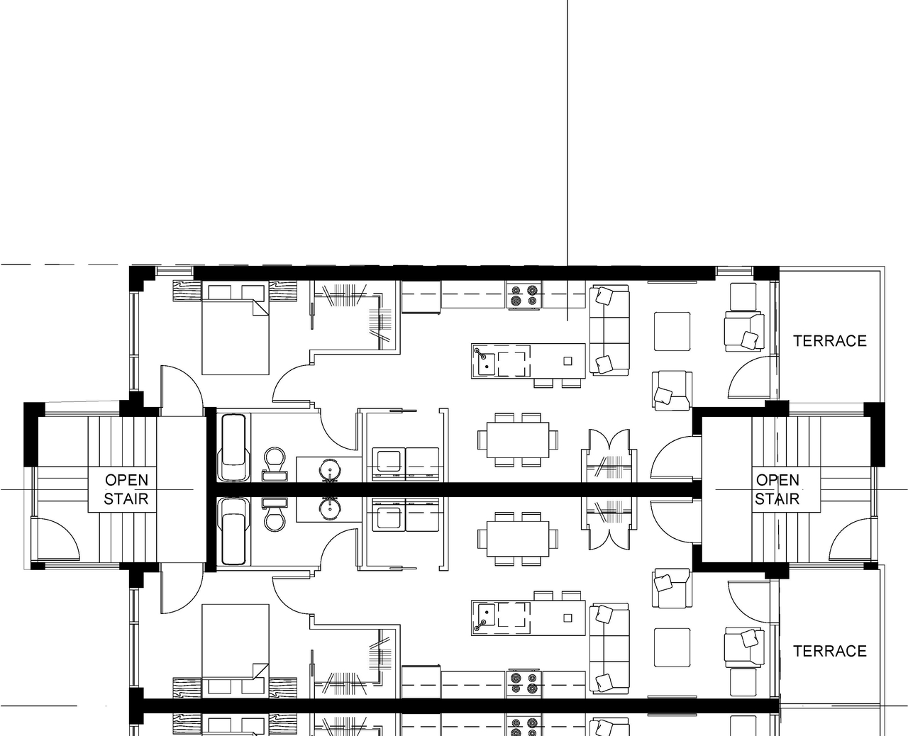
  • Construction site plan for project from page 1 of the file '2021-06-16 - Ground Floor Plans - D02-02-21-0055'
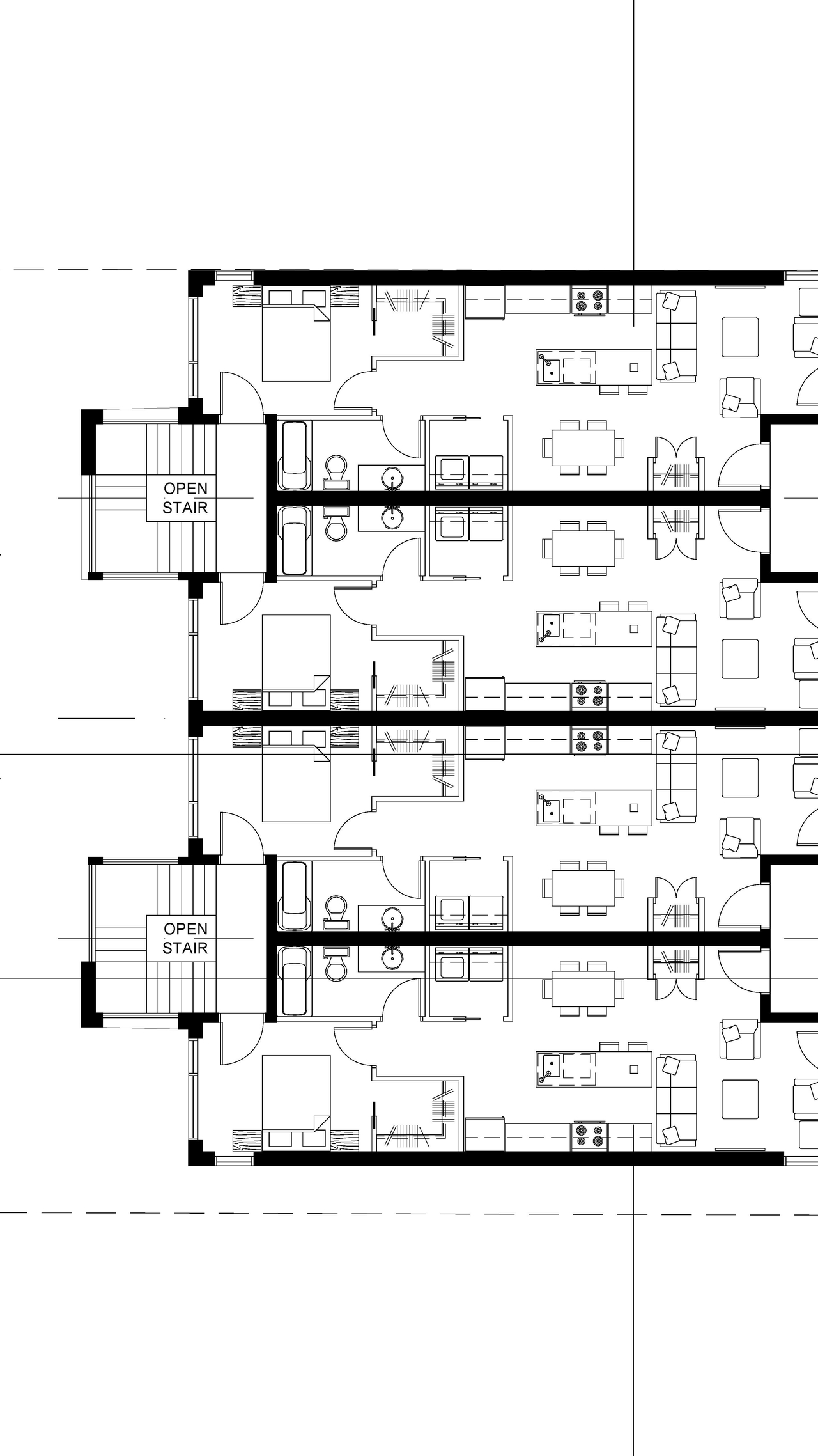
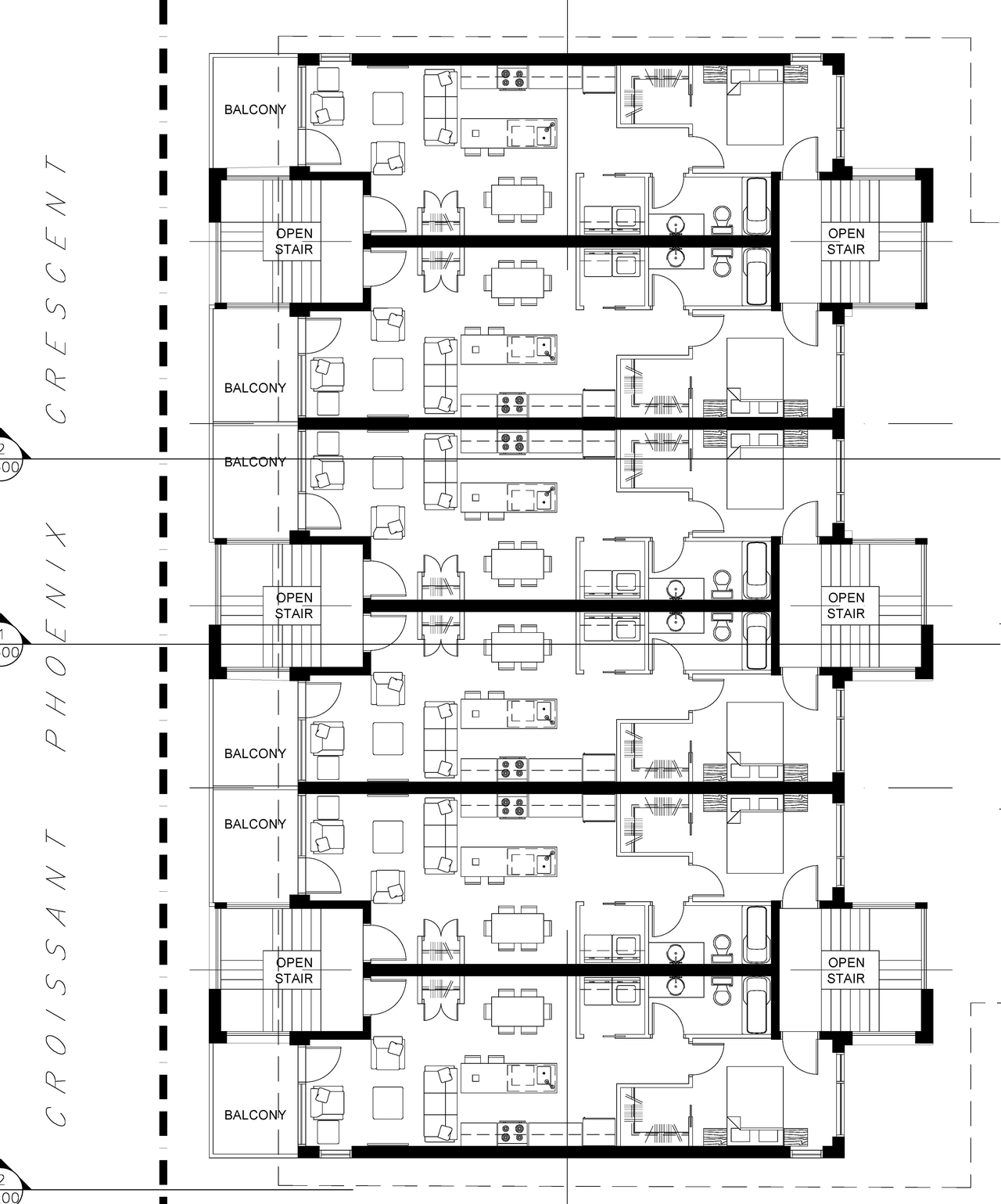
  • Construction site plan for project from page 1 of the file '2021-06-16 - Typical Floor Plan - D02-02-21-0055'
  • Construction site plan for project from page 24 of the file '2021-06-16 - Design Brief - D02-02-21-0055'
  • Floor plan for project from page 25 of the file '2021-06-16 - Design Brief - D02-02-21-0055'
  • Floor plan for project from page 18 of the file '2021-06-16 - Design Brief - D02-02-21-0055'
  • Floor plan for project from page 27 of the file '2021-06-16 - Design Brief - D02-02-21-0055'
  • Floor plan for project from page 18 of the file '2021-06-16 - Design Brief - D02-02-21-0055'
  • Floor plan for project from page 27 of the file '2021-06-16 - Design Brief - D02-02-21-0055'
  • Floor plan for project from page 1 of the file '2021-06-16 - Typical Floor Plan - D02-02-21-0055'
  • Floor plan for project from page 19 of the file '2021-06-16 - Design Brief - D02-02-21-0055'
  • Floor plan for project from page 26 of the file '2021-06-16 - Design Brief - D02-02-21-0055'
  • Image from page 20 of the file '2021-06-16 - Design Brief - D02-02-21-0055'
  • Image from page 29 of the file '2021-06-16 - Design Brief - D02-02-21-0055'
  • Image from page 20 of the file '2021-06-16 - Design Brief - D02-02-21-0055'
  • Image from page 28 of the file '2021-06-16 - Design Brief - D02-02-21-0055'
  • Image from page 28 of the file '2021-06-16 - Design Brief - D02-02-21-0055'
  • Image from page 24 of the file '2021-06-16 - Design Brief - D02-02-21-0055'
  • Image from page 1 of the file '2021-06-16 - Building Sections South View - D02-02-21-0055'
  • Construction site plan for project from page 23 of the file '2021-06-16 - Design Brief - D02-02-21-0055'
  • Construction site plan for project from page 9 of the file '2021-06-16 - Design Brief - D02-02-21-0055'
  • Construction site plan for project from page 24 of the file '2021-06-16 - Design Brief - D02-02-21-0055'
  • Construction site plan for project from page 16 of the file '2021-06-16 - Design Brief - D02-02-21-0055'
  • Construction site plan for project from page 17 of the file '2021-06-16 - Design Brief - D02-02-21-0055'
  • Construction site plan for project from page 10 of the file '2021-06-16 - Design Brief - D02-02-21-0055'
  • Construction site plan for project from page 1 of the file '2021-06-16 - Ground Floor Plans - D02-02-21-0055'
  • Construction site plan for project from page 1 of the file '2021-06-16 - Typical Floor Plan - D02-02-21-0055'
  • Construction site plan for project from page 24 of the file '2021-06-16 - Design Brief - D02-02-21-0055'
  • Floor plan for project from page 25 of the file '2021-06-16 - Design Brief - D02-02-21-0055'
  • Floor plan for project from page 18 of the file '2021-06-16 - Design Brief - D02-02-21-0055'
  • Floor plan for project from page 27 of the file '2021-06-16 - Design Brief - D02-02-21-0055'
  • Floor plan for project from page 18 of the file '2021-06-16 - Design Brief - D02-02-21-0055'
  • Floor plan for project from page 27 of the file '2021-06-16 - Design Brief - D02-02-21-0055'
  • Floor plan for project from page 1 of the file '2021-06-16 - Typical Floor Plan - D02-02-21-0055'
  • Floor plan for project from page 19 of the file '2021-06-16 - Design Brief - D02-02-21-0055'
  • Floor plan for project from page 26 of the file '2021-06-16 - Design Brief - D02-02-21-0055'

Additional Information#

Date Initiated2021-06-16
WardWard 1 - Matthew Luloff

Documents#

TypeDocument
Application Summary2021-07-28 - Application Summary - D02-02-21-0055
Architectural Plans2023-12-19 - Underground Parking Plan - D02-02-21-0055
Architectural Plans2023-12-19 - Site Plan - D02-02-21-0055
Architectural Plans2023-12-19 - Site Grading Plan - D02-02-21-0055
Architectural Plans2023-12-19 - Sediment and Erosion Control Plan - D02-02-21-0055
Architectural Plans2023-12-19 - Pre Development Drainage Plan - D02-02-21-0055
Architectural Plans2023-12-19 - Post Development Drainage Plan - D02-02-21-0055
Architectural Plans2023-12-19 - North and South Elevations - D02-02-21-0055
Architectural Plans2023-12-19 - East and West Elevations - D02-02-21-0055
Architectural Plans2023-11-14 - Building Sections Through Open Stairs and Looking North - D02-02-21-0055
Architectural Plans2023-11-14 - Building Sections Looking East and West - D02-02-21-0055
Architectural Plans2023-10-10 - Underground Parking Plan - D02-02-21-0055
Architectural Plans2023-10-10 - Site Plan - D02-02-21-0055
Architectural Plans2023-10-10 - Site Grading Plan - D02-02-21-0055
Architectural Plans2023-10-10 - Sediment and Erosion Control Plan - D02-02-21-0055
Architectural Plans2023-10-10 - Pre Development Drainage Plan - D02-02-21-0055
Architectural Plans2023-10-10 - Post Development Drainage Plan - D02-02-21-0055
Architectural Plans2023-10-10 - North and South Elevations - D02-02-21-0055
Architectural Plans2023-10-10 - East and West Elevations - D02-02-21-0055
Architectural Plans2022-12-24 - Site Plan - D02-02-21-0055
Architectural Plans2022-12-24 - Site Grading Plan - D02-02-21-0055
Architectural Plans2022-12-24 - Sediment and Erosion Control Plan - D02-02-21-0055
Architectural Plans2022-12-24 - Pre Development Drainage Plan - D02-02-21-0055
Architectural Plans2022-12-24 - Post Development Drainage Plan - D02-02-21-0055
Architectural Plans2022-12-24 - Architectural drawings and underground parking plan - D02-02-21-0055
Architectural Plans2022-07-29 - Underground Parking, Unit Layouts and Elevations - D02-02-21-0055
Architectural Plans2022-07-29 - Site Plan - D02-02-21-0055
Architectural Plans2022-07-29 - Site Grading Plan - D02-02-21-0055
Architectural Plans2022-07-29 - Sediment & Erosion Control Plan - D02-02-21-0055
Architectural Plans2022-07-29 - Photometric Plan - D02-02-21-0055
Architectural Plans2021-06-16 - West and East Elevations - D02-02-21-0055
Architectural Plans2021-06-16 - Underground Parking Plan - D02-02-21-0055
Architectural Plans2021-06-16 - Site Plan - D02-02-21-0055
Architectural Plans2021-06-16 - Site Grading Plan - D02-02-21-0055
Architectural Plans2021-06-16 - North and South Elevations - D02-02-21-0055
Architectural Plans2021-06-16 - Engineering Detail Sheet 2 - D02-02-21-0055
Architectural Plans2021-06-16 - Engineering Detail Sheet 1 - D02-02-21-0055
Architectural Plans2021-06-16 - Building Sections East and West - D02-02-21-0055
Design Brief2021-06-16 - Design Brief - D02-02-21-0055
Electrical Plan2021-06-16 - Photometric Lighting Site Plan - D02-02-21-0055
Environmental2022-12-24 - Phase I Environmental Site Assessment - D02-02-21-0055
Environmental2022-07-29 - Phase I ESA - D02-02-21-0055
Environmental2021-08-10 - Phase 1 ESA P1+Appendices_8July21 - D02-02-21-0055
Environmental2021-06-16 - Phase 1 Environmental Site Assessment - D02-02-21-0055
Erosion And Sediment Control Plan2021-06-16 - Erosion Sediment Control Report - D02-02-21-0055
Floor Plan2021-06-16 - Typical Floor Plan - D02-02-21-0055
Floor Plan2021-06-16 - Ground Floor Plans - D02-02-21-0055
Geotechnical Report2023-12-19 - Geotechnical Investigation - D02-02-21-0055
Geotechnical Report2023-10-10 - Geotechnical Investigation Report - D02-02-21-0055
Geotechnical Report2022-12-24 - Geotechnical Investigation - D02-02-21-0055
Geotechnical Report2021-06-16 - Geotechnical Report - D02-02-21-0055
Landscape Plan2022-12-24 - Landscape Plan - D02-02-21-0055
Landscape Plan2022-07-29 - Landscape Plan - D02-02-21-0055
Landscape Plan2021-06-16 - Landscape Plan - D02-02-21-0055
Noise Study2022-07-29 - Noise Study - D02-02-21-0055
Noise Study2021-06-16 - Noise Study - D02-02-21-0055
Planning2021-06-16 - Planning Rationale - D02-02-21-0055
Rendering2021-06-16 - Perspective Views - D02-02-21-0055
Rendering2021-06-16 - Perspective Drawings from Park and Angled Views - D02-02-21-0055
Rendering2021-06-16 - Building Sections South View - D02-02-21-0055
Site Servicing2023-12-19 - Site Servicing and Stormwater Management Report - D02-02-21-0055
Site Servicing2023-10-10 - Site Servicing Plan - D02-02-21-0055
Site Servicing2023-10-10 - Site Servicing and Stormwater Management Report - D02-02-21-0055
Site Servicing2022-12-24 - Site Servicing Plan - D02-02-21-0055
Site Servicing2022-12-24 - Site Servicing and Stormwater Management Report - D02-02-21-0055
Site Servicing2022-07-29 - Site Servicing Plan - D02-02-21-0055
Site Servicing2021-06-16 - Site Servicing Plan - D02-02-21-0055
Stormwater Management2022-07-29 - SWM Report - D02-02-21-0055
Stormwater Management2021-06-16 - Stormwater Managment and Site Servicing Report - D02-02-21-0055
Surveying2021-06-16 - Topographic Survey Plan - D02-02-21-0055
Tree Information and Conservation2023-12-19 - Tree Conservation Report - D02-02-21-0055
Tree Information and Conservation2023-10-10 - Tree Conservation Report and Landscape Plan - D02-02-21-0055
2023-12-19 - Standard Stormceptor Details - D02-02-21-0055
2023-10-10 - Details Sheet - D02-02-21-0055
2022-12-24 - Stormceptor Details - D02-02-21-0055
2022-07-29 - Pre-Development Drainage - D02-02-21-0055
2022-07-29 - Post Development Storage Area - D02-02-21-0055
2022-07-29 - Details 1 & 2 - D02-02-21-0055
2021-06-16 - Pre Development Drainage - D02-02-21-0055
2021-06-16 - Post Development Storage Area - D02-02-21-0055