Ottawa Development Projects

829 Carling Ave.#

Last updated: 2026-01-09 ยท ID: D02-02-21-0045

Summary#

An Official Plan Amendment, Zoning By-law Amendment and Site Plan Control applications to construct a 50-storey mixed-use building with ground-floor commercial, 503 residential units, 196 vehicular parking spaces and 267 bicycle parking spaces.

Status
Post Approval (By-law Passed - In Appeal Period)

Renders#

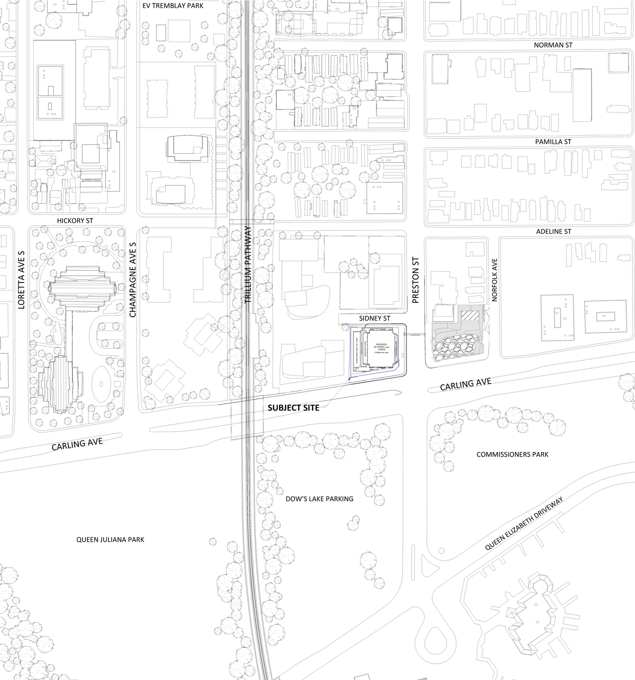
Location#

Select a marker to view the address.

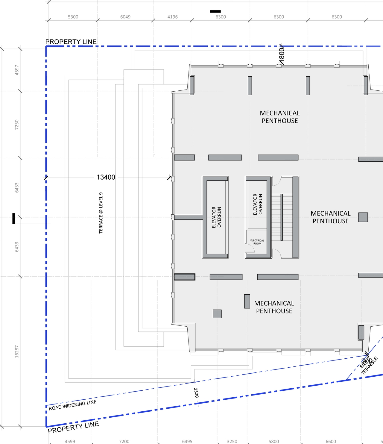
Site Plans, Elevations and Floor Plans#

Additional Information#

Date Initiated2021-05-21
WardWard 14 - Ariel Troster

Documents#

TypeDocument
Adequacy Of Public Services2023-05-05 - Serviceability & Stormwater Management Report - D02-02-21-0045
Adequacy Of Public Services2021-05-21 - Serviceability and Stormwater Management Report - D02-02-21-0045
Adequacy Of Public Services2025-02-19 - Serviceability and Stormwater Management Report - D02-02-21-0045
Application Summary2021-10-07 - Application Summary - D02-02-21-0045
Application Summary2025-08-12 - Application Summary - D02-02-21-0045
Architectural Plans2021-05-21 - Level 4 Roof Terrace Landscape Plan - D02-02-21-0045
Architectural Plans2021-05-21 - General Plan of Servicing - D02-02-21-0045
Architectural Plans2021-05-21 - Architectural Package - D02-02-21-0045
Architectural Plans2025-02-19 - Site Plan - D02-02-21-0045
Architectural Plans2025-02-19 - General Plan of Servicing - D02-02-21-0045
Architectural Plans2025-02-19 - Cistern Detail Plan - D02-02-21-0045
Architectural Plans2025-02-19 - Architectural Drawing Set - D02-02-21-0045
Architectural Plans2025-07-24 - Site Plan - D02-02-21-0045
Architectural Plans2025-07-24 - Level 5 Roof Terrace Landscape Plan - D02-02-21-0045
Architectural Plans2025-07-24 - General Plan of Services - D02-02-21-0045
Architectural Plans2025-07-24 - Cistern Detail Plan - D02-02-21-0045
Architectural Plans2025-08-08 - Prelim Site Plan - D02-02-21-0045
Architectural Plans2025-11-19- Architectural Plans -D02-02-21-0045
Architectural Plans2025-11-19 - General Plan of Servicing -D02-02-21-0045
Architectural Plans2025-11-19 - Cistern Detail Plan - D02-02-21-0045
Civil Engineering Report2023-05-05 - Civil Drawings - D02-02-21-0045
Civil Engineering Report2025-08-08 - Civil Drawings - D02-02-21-0045
Environmental2021-05-28 - Phase II Environmental Site Assessment - D02-02-21-0045
Environmental2021-05-27 - Environmental Site Assessment - D02-02-21-0045
Environmental2021-05-21 - Phase 1 Environmental Site Assessment - D02-02-21-0045
Erosion And Sediment Control Plan2025-02-19 - Erosion & Sediment Control Plan - D02-02-21-0045
Erosion And Sediment Control Plan2025-07-24 - Erosion and Sediment Control Plan - D02-02-21-0045
Erosion And Sediment Control Plan2025-11-19 - Erosion and Sediment Control Plan - D02-02-21-0045
Geotechnical Report2021-05-21 - Grading and Erosion Sediment Control Plan - D02-02-21-0045
Geotechnical Report2021-05-21 - Geotechnical Investigation - D02-02-21-0045
Geotechnical Report2025-02-19 - Grading Plan - D02-02-21-0045
Geotechnical Report2025-02-19 - Geotechnical Investigation - D02-02-21-0045
Geotechnical Report2025-07-24 - Grading Plan - D02-02-21-0045
Geotechnical Report2025-07-24 - Geotechnical Investigation - D02-02-21-0045
Geotechnical Report2025-08-08 - Hydrogeological Report and Terrain Analysis - D02-02-21-0045
Geotechnical Report2025-11-19 - Grading Plan - D02-02-21-0045
Geotechnical Report2025-11-19 - Geotechnical Investigation -D02-02-21-0045
Landscape Plan2025-02-19 - Landscape Plan (Roof Terrace) - D02-02-21-0045
Landscape Plan2025-02-19 - Landscape Plan - D02-02-21-0045
Noise Study2021-05-21 - Transportation Noise Assessment - D02-02-21-0045
Planning2023-05-05 - Planning Rationale - S02-02-21-0045
Planning2021-07-23 - Planning Rationale and Design Brief - D02-02-21-0045
Planning2025-04-17 - Planning Rationale Addendum - D02-02-21-0045
Planning2025-07-24 - Planning Rationale Addendum - D02-02-21-0045
Rendering2023-05-05 - Statistics, Floor, Sections, Elevations, Views Plans - D02-02-21-0045
Shadow Study2021-05-21 - Shadow Impact Analysis - D02-02-21-0045
Site Servicing2025-07-24 - Servicing Brief - D02-02-21-0045
Site Servicing2025-11-19 - Servicing Brief - D02-02-21-0045
Stormwater Management2021-05-21 - Stormwater Management Plan - D02-02-21-0045
Stormwater Management2025-08-08 - SWM Brief - D02-02-21-0045
Transportation Analysis2023-05-05 - Transportation Impact Assessment - D02-02-21-0045
Transportation Analysis2021-05-21 - Transportation Impact Assessment - D02-02-21-0045
Tree Information and Conservation2023-05-05 - Tree Conservation Report & Landscape Plan - D02-02-21-0045
Tree Information and Conservation2021-05-21 - Tree Conservation Report and Landscape Plan - D02-02-21-0045
Tree Information and Conservation2025-07-24 - Tree Conservation Report and Landscape Plan - D02-02-21-0045
Tree Information and Conservation2025-11-19 - Tree Conservation Report and Landscape Plan - D02-02-21-0045
Wind Study2021-05-21 - Pedestrian Level Wind Study - D02-02-21-0045
Wind Study2025-11-19 - Pedestrial Level Wind Study -D02-02-21-0045
2021-05-21 - Trillium Line Level 1 Proximity Study - D02-02-21-0045
2025-07-24 - List of Drawings - D02-02-21-0045