267 O’Connor St.#
Last updated: 2026-05-23 · ID: D02-02-20-0101
Summary#
The proposed Zoning By-law Amendment proposes to amend the zoning of the subject property to Residential Fifth Density, Subzone B, Exception XXXX, Schedule YYY (R5B[XXXX] S(YYY)). A new site-specific zoning schedule will establish permitted building heights, required setbacks and required stepbacks while the site-specific exception will provide the necessary relief from specific provisions of the current zone. The site-specific exception would also permit a range of non-residential uses for the at-grade retail space, consistent with the policies of the Centretown Secondary Plan.
Status
Inactive (Zoning By-law in Effect)
Inactive (Zoning By-law in Effect)
Type
Zoning By-law Amendment
Zoning By-law Amendment
Building Scale (Max.)
Based on elevation drawings. Values may be approximate. See sources for exact figures.
High-rise · 30 storeys
· 98.25 m
Renders#
Location#
Select a marker to view the address.
Project Updates#
Status Updated
- Status: Inactive (Zoning By-law in Effect)
Status Updated
- Status: Post Approval (Application Approved by Council)
Added 1 document
Added 45 images and 14 documents
- 25 renders
- 12 site plans
- 6 elevations
- 2 floor plans
- 2025-12-04 - Zoning Confirmation Report - D02-02-20-0101
- 2025-12-04 - TIA Strategy Report - D02-02-20-0101
- 2025-12-04 - Sustainability Strategy - D02-02-20-0101
- 2025-12-04 - Survey Plan - D02-02-20-0101
- 2025-12-04 - Sun Shadow Study - D02-02-20-0101
- 2025-12-04 - Site Plan - D02-02-20-0101
- 2025-12-04 - SDRP Report - D02-02-20-0101
- 2025-12-04 - Planning Rationale - D02-02-20-0101
- 2025-12-04 - Landscape Plan - D02-02-20-0101
- 2025-12-04 - Heritage Impact Assessment - D02-02-20-0101
- 2025-12-04 - Design Brief - D02-02-20-0101
- 2025-12-04 - Building Elevations - D02-02-20-0101
- 2025-12-04 - Assessment of Adequacy - D02-02-20-0101
- 2025-12-04 - Architectural Plans - D02-02-20-0101
Added 46 images and 1 document
- 44 renders
- 2 site plans
Status Updated
- Status: File Pending (Application File Pending)
Added 1 document
Added description, 39 images and 24 documents
- Updated description: The proposed Zoning By-law Amendment proposes to amend the zoning of the subject property to Residential Fifth Density, Subzone B, Excepti…
- 21 renders
- 10 site plans
- 6 elevations
- 2 floor plans
- 2025-02-24 - Tree Conservation Report - D01-01-20-0019 & D02-02-20-0101
- 2025-02-24 - Traffic Noise Feasibility Assessment - D01-01-20-0019 & D02-02-20-0101
- 2025-02-24 - TIA Strategy Report - D01-01-20-0019 & D02-02-20-0101
- 2025-02-24 - Sustainability Strategy - D01-01-20-0019 & D02-02-20-0101
- 2025-02-24 - Survey Plan - D01-01-20-0019 & D02-02-20-0101
- 2025-02-24 - Sun Shadow Study - D01-01-20-0019 & D02-02-20-0101
- 2025-02-24 - Site Plan - D01-01-20-0019 & D02-02-20-0101
- 2025-02-24 - SDRP Report - D01-01-20-0019 & D02-02-20-0101
- 2025-02-24 - Planning Rationale - D01-01-20-0019 & D02-02-20-0101
- 2025-02-24 - Planned Context Massing Study - D01-01-20-0019 & D02-02-20-0101
- 2025-02-24 - Phase I ESA Update - D01-01-20-0019 & D02-02-20-0101
- 2025-02-24 - Pedestrian Level Wind Study - D01-01-20-0019 & D02-02-20-0101
- 2025-02-24 - NCC View Plane Diagram - D01-01-20-0019 & D02-02-20-0101
- 2025-02-24 - Landscape Plans - D01-01-20-0019 & D02-02-20-0101
- 2025-02-24 - Landscape Imagery - D01-01-20-0019 & D02-02-20-0101
- 2025-02-24 - Heritage Impact Assessment - D01-01-20-0019 & D02-02-20-0101
- 2025-02-24 - Geotechnical Report - D01-01-20-0019 & D02-02-20-0101
- 2025-02-24 - Formal Public Consultation Program - D01-01-20-0019 & D02-02-20-0101
- 2025-02-24 - Design Brief Appendix - D01-01-20-0019 & D02-02-20-0101
- 2025-02-24 - Design Brief - D01-01-20-0019 & D02-02-20-0101
- 2025-02-24 - Building Elevations - D01-01-20-0019 & D02-02-20-0101
- 2025-02-24 - Assessment of Adequacy of Public Services - D01-01-20-0019 & D02-02-20-0101
- 2025-02-24 - Architectural Plans - D01-01-20-0019 & D02-02-20-0101
- 2025-02-24 - Application Summary - D01-01-20-0019 & D02-02-20-0101
Status Updated
- Status: Active (Application Reactivated)
Status Updated
- Status: File Pending (Application File Pending)
Added description, height, 32 images and 3 documents
- Status: Active (Comment Period has Ended/Issue Resolution)
- The proposed Zoning By-law Amendment proposes to amend the zoning of the subject property to Residential Fifth Density, Subzone B, Excepti…
- Height: 98.25 m
- Storeys: 30 storeys
- 26 renders
- 4 site plans
- 2020-10-23 - Site Plan and Floor Plans - D02-02-20-0101
- 2024-05-07 - Special Design Review Panel Presentation - D02-02-20-0101
- Special Design Review Meeting Recommendations FR - Jan 15 2021
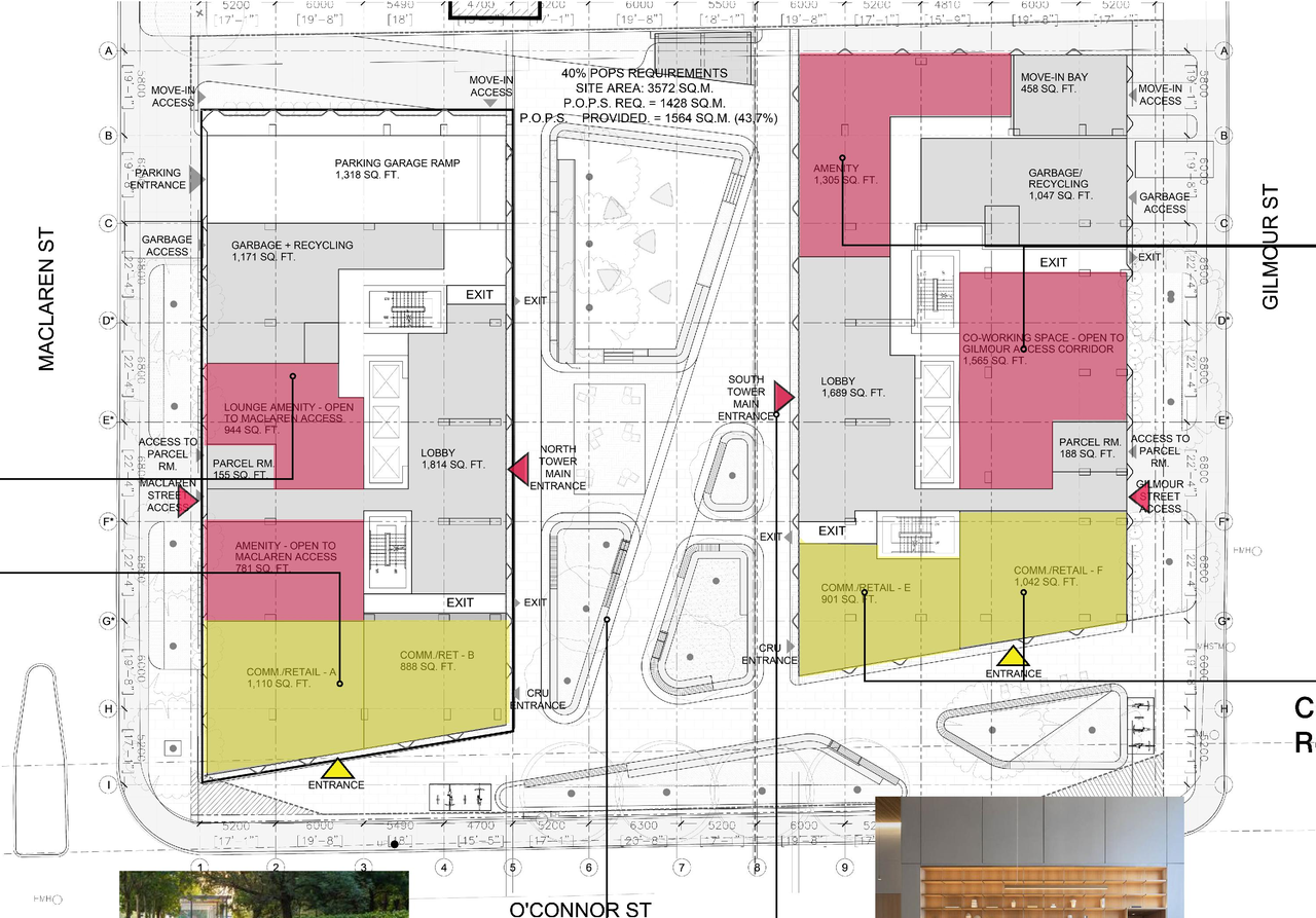
Site Plans, Elevations and Floor Plans#
Additional Information#
| Date Initiated | 2020-10-21 |
| Ward | Ward 14 - Ariel Troster |




































































































































































