Ottawa Development Projects

267 O’Connor St.#

Last updated: 2025-12-24 · ID: D02-02-20-0101

Summary#

The proposed Zoning By-law Amendment proposes to amend the zoning of the subject property to “Residential Fifth Density, Subzone B, Exception XXXX, Schedule YYY (R5B[XXXX] S(YYY)). A new site-specific zoning schedule will establish permitted building heights, required setbacks and required stepbacks while the site-specific exception will provide the necessary relief from specific provisions of the current zone. The site-specific exception would also permit a range of non-residential uses for the at-grade retail space, consistent with the policies of the Centretown Secondary Plan.

Status
File Pending (Application File Pending)

Building Scale (Max.) Based on elevation drawings. Values may be approximate. See sources for exact figures.
High-rise · 30 storeys · 98.25 m

Renders#

  • Rendering of building from page 69 of the file '2025-02-24 - Design Brief - D01-01-20-0019 & D02-02-20-0101'
  • Rendering of building from page 15 of the file '2025-09-03 - SDRP Design Brief - Package 3 - D02-02-20-0101'
  • Rendering of building from page 52 of the file '2025-09-03 - SDRP Design Brief - Package 3 - D02-02-20-0101'
  • Rendering of building from page 2 of the file '2025-02-24 - Design Brief Appendix - D01-01-20-0019 & D02-02-20-0101'
  • Rendering of building from page 3 of the file '2025-02-24 - Design Brief - D01-01-20-0019 & D02-02-20-0101'
  • Rendering of building from page 30 of the file '2025-02-24 - Design Brief - D01-01-20-0019 & D02-02-20-0101'
  • Rendering of building from page 21 of the file '2025-02-24 - Design Brief - D01-01-20-0019 & D02-02-20-0101'
  • Rendering of building from page 2 of the file '2025-12-04 - Design Brief - D02-02-20-0101'
  • Rendering of building from page 1 of the file '2025-09-03 - SDRP Design Brief - Package 3 - D02-02-20-0101'
  • Rendering of building from page 7 of the file '2025-09-03 - SDRP Design Brief - Package 3 - D02-02-20-0101'
  • Rendering of building from page 39 of the file '2024-05-07 - Special Design Review Panel Presentation - D02-02-20-0101'
  • Rendering of building from page 15 of the file '2025-12-04 - Design Brief - D02-02-20-0101'
  • Rendering of building from page 8 of the file '2025-09-03 - SDRP Design Brief - Package 3 - D02-02-20-0101'
  • Rendering of building from page 9 of the file '2025-12-04 - Design Brief - D02-02-20-0101'
  • Rendering of building from page 44 of the file '2025-09-03 - SDRP Design Brief - Package 3 - D02-02-20-0101'
  • Rendering of building from page 9 of the file '2024-05-07 - Special Design Review Panel Presentation - D02-02-20-0101'
  • Rendering of building from page 24 of the file '2025-12-04 - Design Brief - D02-02-20-0101'
  • Rendering of building from page 17 of the file '2025-12-04 - Design Brief - D02-02-20-0101'
  • Rendering of building from page 41 of the file '2025-02-24 - Design Brief - D01-01-20-0019 & D02-02-20-0101'
  • Rendering of building from page 2 of the file '2025-09-03 - SDRP Design Brief - Package 3 - D02-02-20-0101'
  • Rendering of building from page 15 of the file '2025-12-04 - Design Brief - D02-02-20-0101'
  • Rendering of building from page 18 of the file '2024-05-07 - Special Design Review Panel Presentation - D02-02-20-0101'
  • Rendering of building from page 6 of the file '2025-12-04 - Design Brief - D02-02-20-0101'
  • Rendering of building from page 51 of the file '2024-05-07 - Special Design Review Panel Presentation - D02-02-20-0101'
  • Rendering of building from page 16 of the file '2025-12-04 - Design Brief - D02-02-20-0101'
  • Rendering of building from page 11 of the file '2025-09-03 - SDRP Design Brief - Package 3 - D02-02-20-0101'
  • Rendering of building from page 42 of the file '2024-05-07 - Special Design Review Panel Presentation - D02-02-20-0101'
  • Rendering of building from page 66 of the file '2025-02-24 - Design Brief - D01-01-20-0019 & D02-02-20-0101'
  • Rendering of building from page 10 of the file '2025-02-24 - Design Brief - D01-01-20-0019 & D02-02-20-0101'
  • Rendering of building from page 43 of the file '2025-09-03 - SDRP Design Brief - Package 3 - D02-02-20-0101'
  • Rendering of building from page 25 of the file '2025-12-04 - Design Brief - D02-02-20-0101'
  • Rendering of building from page 7 of the file '2025-12-04 - Design Brief - D02-02-20-0101'
  • Rendering of building from page 21 of the file '2025-09-03 - SDRP Design Brief - Package 3 - D02-02-20-0101'
  • Rendering of building from page 6 of the file '2025-09-03 - SDRP Design Brief - Package 3 - D02-02-20-0101'
  • Rendering of building from page 8 of the file '2025-09-03 - SDRP Design Brief - Package 3 - D02-02-20-0101'
  • Rendering of building from page 7 of the file '2025-12-04 - Design Brief - D02-02-20-0101'
  • Rendering of building from page 23 of the file '2025-12-04 - Design Brief - D02-02-20-0101'
  • Rendering of building from page 42 of the file '2025-09-03 - SDRP Design Brief - Package 3 - D02-02-20-0101'
  • Rendering of building from page 43 of the file '2025-02-24 - Design Brief - D01-01-20-0019 & D02-02-20-0101'
  • Rendering of building from page 22 of the file '2025-12-04 - Design Brief - D02-02-20-0101'
  • Rendering of building from page 1 of the file '2025-12-04 - Design Brief - D02-02-20-0101'
  • Rendering of building from page 6 of the file '2025-12-04 - Design Brief - D02-02-20-0101'
  • Rendering of building from page 38 of the file '2024-05-07 - Special Design Review Panel Presentation - D02-02-20-0101'
  • Rendering of building from page 11 of the file '2025-09-03 - SDRP Design Brief - Package 3 - D02-02-20-0101'
  • Rendering of building from page 15 of the file '2024-05-07 - Special Design Review Panel Presentation - D02-02-20-0101'
  • Rendering of building from page 54 of the file '2024-05-07 - Special Design Review Panel Presentation - D02-02-20-0101'
  • Rendering of building from page 12 of the file '2025-09-03 - SDRP Design Brief - Package 3 - D02-02-20-0101'
  • Rendering of building from page 1 of the file 'Special Design Review Meeting Recommendations FR - Jan 15 2021'
  • Rendering of building from page 42 of the file '2025-02-24 - Design Brief - D01-01-20-0019 & D02-02-20-0101'
  • Rendering of building from page 24 of the file '2024-05-07 - Special Design Review Panel Presentation - D02-02-20-0101'
  • Rendering of building from page 1 of the file '2025-02-24 - Design Brief Appendix - D01-01-20-0019 & D02-02-20-0101'
  • Rendering of building from page 7 of the file '2025-02-24 - Design Brief - D01-01-20-0019 & D02-02-20-0101'
  • Rendering of building from page 49 of the file '2025-09-03 - SDRP Design Brief - Package 3 - D02-02-20-0101'
  • Rendering of building from page 2 of the file '2024-05-07 - Special Design Review Panel Presentation - D02-02-20-0101'
  • Rendering of building from page 41 of the file '2025-09-03 - SDRP Design Brief - Package 3 - D02-02-20-0101'
  • Rendering of building from page 45 of the file '2025-09-03 - SDRP Design Brief - Package 3 - D02-02-20-0101'
  • Rendering of building from page 25 of the file '2024-05-07 - Special Design Review Panel Presentation - D02-02-20-0101'
  • Rendering of building from page 33 of the file '2025-09-03 - SDRP Design Brief - Package 3 - D02-02-20-0101'
  • Rendering of building from page 36 of the file '2025-02-24 - Design Brief - D01-01-20-0019 & D02-02-20-0101'
  • Rendering of building from page 68 of the file '2025-02-24 - Design Brief - D01-01-20-0019 & D02-02-20-0101'
  • Rendering of building from page 44 of the file '2025-02-24 - Design Brief - D01-01-20-0019 & D02-02-20-0101'
  • Rendering of building from page 36 of the file '2025-09-03 - SDRP Design Brief - Package 3 - D02-02-20-0101'
  • Rendering of building from page 30 of the file '2025-09-03 - SDRP Design Brief - Package 3 - D02-02-20-0101'
  • Rendering of building from page 31 of the file '2025-09-03 - SDRP Design Brief - Package 3 - D02-02-20-0101'
  • Rendering of building from page 32 of the file '2025-02-24 - Design Brief - D01-01-20-0019 & D02-02-20-0101'
  • Rendering of building from page 24 of the file '2025-02-24 - Design Brief - D01-01-20-0019 & D02-02-20-0101'
  • Rendering of building from page 10 of the file '2025-09-03 - SDRP Design Brief - Package 3 - D02-02-20-0101'
  • Rendering of building from page 18 of the file '2025-12-04 - Design Brief - D02-02-20-0101'
  • Rendering of building from page 19 of the file '2025-12-04 - Design Brief - D02-02-20-0101'
  • Rendering of building from page 27 of the file '2025-12-04 - Design Brief - D02-02-20-0101'
  • Rendering of building from page 36 of the file '2024-05-07 - Special Design Review Panel Presentation - D02-02-20-0101'
  • Rendering of building from page 9 of the file '2025-09-03 - SDRP Design Brief - Package 3 - D02-02-20-0101'
  • Rendering of building from page 8 of the file '2025-12-04 - Design Brief - D02-02-20-0101'
  • Rendering of building from page 24 of the file '2025-09-03 - SDRP Design Brief - Package 3 - D02-02-20-0101'
  • Rendering of building from page 7 of the file '2025-09-03 - SDRP Design Brief - Package 3 - D02-02-20-0101'
  • Rendering of building from page 3 of the file '2024-05-07 - Special Design Review Panel Presentation - D02-02-20-0101'
  • Rendering of building from page 33 of the file '2025-02-24 - Design Brief - D01-01-20-0019 & D02-02-20-0101'
  • Rendering of building from page 26 of the file '2025-09-03 - SDRP Design Brief - Package 3 - D02-02-20-0101'
  • Rendering of building from page 58 of the file '2024-05-07 - Special Design Review Panel Presentation - D02-02-20-0101'
  • Rendering of building from page 31 of the file '2024-05-07 - Special Design Review Panel Presentation - D02-02-20-0101'
  • Rendering of building from page 53 of the file '2025-09-03 - SDRP Design Brief - Package 3 - D02-02-20-0101'
  • Rendering of building from page 73 of the file '2025-02-24 - Design Brief - D01-01-20-0019 & D02-02-20-0101'
  • Rendering of building from page 21 of the file '2025-12-04 - Design Brief - D02-02-20-0101'
  • Rendering of building from page 20 of the file '2025-12-04 - Design Brief - D02-02-20-0101'
  • Rendering of building from page 30 of the file '2024-05-07 - Special Design Review Panel Presentation - D02-02-20-0101'
  • Rendering of building from page 8 of the file '2025-12-04 - Design Brief - D02-02-20-0101'
  • Rendering of building from page 13 of the file '2025-09-03 - SDRP Design Brief - Package 3 - D02-02-20-0101'
  • Rendering of building from page 28 of the file '2024-05-07 - Special Design Review Panel Presentation - D02-02-20-0101'
  • Rendering of building from page 32 of the file '2025-09-03 - SDRP Design Brief - Package 3 - D02-02-20-0101'
  • Rendering of building from page 26 of the file '2024-05-07 - Special Design Review Panel Presentation - D02-02-20-0101'
  • Rendering of building from page 10 of the file '2025-09-03 - SDRP Design Brief - Package 3 - D02-02-20-0101'
  • Rendering of building from page 34 of the file '2025-02-24 - Design Brief - D01-01-20-0019 & D02-02-20-0101'
  • Rendering of building from page 16 of the file '2025-02-24 - Design Brief - D01-01-20-0019 & D02-02-20-0101'
  • Rendering of building from page 18 of the file '2025-09-03 - SDRP Design Brief - Package 3 - D02-02-20-0101'
  • Rendering of building from page 69 of the file '2025-02-24 - Design Brief - D01-01-20-0019 & D02-02-20-0101'
  • Rendering of building from page 15 of the file '2025-09-03 - SDRP Design Brief - Package 3 - D02-02-20-0101'
  • Rendering of building from page 52 of the file '2025-09-03 - SDRP Design Brief - Package 3 - D02-02-20-0101'
  • Rendering of building from page 2 of the file '2025-02-24 - Design Brief Appendix - D01-01-20-0019 & D02-02-20-0101'
  • Rendering of building from page 3 of the file '2025-02-24 - Design Brief - D01-01-20-0019 & D02-02-20-0101'
  • Rendering of building from page 30 of the file '2025-02-24 - Design Brief - D01-01-20-0019 & D02-02-20-0101'
  • Rendering of building from page 21 of the file '2025-02-24 - Design Brief - D01-01-20-0019 & D02-02-20-0101'
  • Rendering of building from page 2 of the file '2025-12-04 - Design Brief - D02-02-20-0101'
  • Rendering of building from page 1 of the file '2025-09-03 - SDRP Design Brief - Package 3 - D02-02-20-0101'
  • Rendering of building from page 7 of the file '2025-09-03 - SDRP Design Brief - Package 3 - D02-02-20-0101'
  • Rendering of building from page 39 of the file '2024-05-07 - Special Design Review Panel Presentation - D02-02-20-0101'
  • Rendering of building from page 15 of the file '2025-12-04 - Design Brief - D02-02-20-0101'
  • Rendering of building from page 8 of the file '2025-09-03 - SDRP Design Brief - Package 3 - D02-02-20-0101'
  • Rendering of building from page 9 of the file '2025-12-04 - Design Brief - D02-02-20-0101'
  • Rendering of building from page 44 of the file '2025-09-03 - SDRP Design Brief - Package 3 - D02-02-20-0101'
  • Rendering of building from page 9 of the file '2024-05-07 - Special Design Review Panel Presentation - D02-02-20-0101'
  • Rendering of building from page 24 of the file '2025-12-04 - Design Brief - D02-02-20-0101'
  • Rendering of building from page 17 of the file '2025-12-04 - Design Brief - D02-02-20-0101'
  • Rendering of building from page 41 of the file '2025-02-24 - Design Brief - D01-01-20-0019 & D02-02-20-0101'
  • Rendering of building from page 2 of the file '2025-09-03 - SDRP Design Brief - Package 3 - D02-02-20-0101'
  • Rendering of building from page 15 of the file '2025-12-04 - Design Brief - D02-02-20-0101'
  • Rendering of building from page 18 of the file '2024-05-07 - Special Design Review Panel Presentation - D02-02-20-0101'
  • Rendering of building from page 6 of the file '2025-12-04 - Design Brief - D02-02-20-0101'
  • Rendering of building from page 51 of the file '2024-05-07 - Special Design Review Panel Presentation - D02-02-20-0101'
  • Rendering of building from page 16 of the file '2025-12-04 - Design Brief - D02-02-20-0101'
  • Rendering of building from page 11 of the file '2025-09-03 - SDRP Design Brief - Package 3 - D02-02-20-0101'
  • Rendering of building from page 42 of the file '2024-05-07 - Special Design Review Panel Presentation - D02-02-20-0101'
  • Rendering of building from page 66 of the file '2025-02-24 - Design Brief - D01-01-20-0019 & D02-02-20-0101'
  • Rendering of building from page 10 of the file '2025-02-24 - Design Brief - D01-01-20-0019 & D02-02-20-0101'
  • Rendering of building from page 43 of the file '2025-09-03 - SDRP Design Brief - Package 3 - D02-02-20-0101'
  • Rendering of building from page 25 of the file '2025-12-04 - Design Brief - D02-02-20-0101'
  • Rendering of building from page 7 of the file '2025-12-04 - Design Brief - D02-02-20-0101'
  • Rendering of building from page 21 of the file '2025-09-03 - SDRP Design Brief - Package 3 - D02-02-20-0101'
  • Rendering of building from page 6 of the file '2025-09-03 - SDRP Design Brief - Package 3 - D02-02-20-0101'
  • Rendering of building from page 8 of the file '2025-09-03 - SDRP Design Brief - Package 3 - D02-02-20-0101'
  • Rendering of building from page 7 of the file '2025-12-04 - Design Brief - D02-02-20-0101'
  • Rendering of building from page 23 of the file '2025-12-04 - Design Brief - D02-02-20-0101'
  • Rendering of building from page 42 of the file '2025-09-03 - SDRP Design Brief - Package 3 - D02-02-20-0101'
  • Rendering of building from page 43 of the file '2025-02-24 - Design Brief - D01-01-20-0019 & D02-02-20-0101'
  • Rendering of building from page 22 of the file '2025-12-04 - Design Brief - D02-02-20-0101'
  • Rendering of building from page 1 of the file '2025-12-04 - Design Brief - D02-02-20-0101'
  • Rendering of building from page 6 of the file '2025-12-04 - Design Brief - D02-02-20-0101'
  • Rendering of building from page 38 of the file '2024-05-07 - Special Design Review Panel Presentation - D02-02-20-0101'
  • Rendering of building from page 11 of the file '2025-09-03 - SDRP Design Brief - Package 3 - D02-02-20-0101'
  • Rendering of building from page 15 of the file '2024-05-07 - Special Design Review Panel Presentation - D02-02-20-0101'
  • Rendering of building from page 54 of the file '2024-05-07 - Special Design Review Panel Presentation - D02-02-20-0101'
  • Rendering of building from page 12 of the file '2025-09-03 - SDRP Design Brief - Package 3 - D02-02-20-0101'
  • Rendering of building from page 1 of the file 'Special Design Review Meeting Recommendations FR - Jan 15 2021'
  • Rendering of building from page 42 of the file '2025-02-24 - Design Brief - D01-01-20-0019 & D02-02-20-0101'
  • Rendering of building from page 24 of the file '2024-05-07 - Special Design Review Panel Presentation - D02-02-20-0101'
  • Rendering of building from page 1 of the file '2025-02-24 - Design Brief Appendix - D01-01-20-0019 & D02-02-20-0101'
  • Rendering of building from page 7 of the file '2025-02-24 - Design Brief - D01-01-20-0019 & D02-02-20-0101'
  • Rendering of building from page 49 of the file '2025-09-03 - SDRP Design Brief - Package 3 - D02-02-20-0101'
  • Rendering of building from page 2 of the file '2024-05-07 - Special Design Review Panel Presentation - D02-02-20-0101'
  • Rendering of building from page 41 of the file '2025-09-03 - SDRP Design Brief - Package 3 - D02-02-20-0101'
  • Rendering of building from page 45 of the file '2025-09-03 - SDRP Design Brief - Package 3 - D02-02-20-0101'
  • Rendering of building from page 25 of the file '2024-05-07 - Special Design Review Panel Presentation - D02-02-20-0101'
  • Rendering of building from page 33 of the file '2025-09-03 - SDRP Design Brief - Package 3 - D02-02-20-0101'
  • Rendering of building from page 36 of the file '2025-02-24 - Design Brief - D01-01-20-0019 & D02-02-20-0101'
  • Rendering of building from page 68 of the file '2025-02-24 - Design Brief - D01-01-20-0019 & D02-02-20-0101'
  • Rendering of building from page 44 of the file '2025-02-24 - Design Brief - D01-01-20-0019 & D02-02-20-0101'
  • Rendering of building from page 36 of the file '2025-09-03 - SDRP Design Brief - Package 3 - D02-02-20-0101'
  • Rendering of building from page 30 of the file '2025-09-03 - SDRP Design Brief - Package 3 - D02-02-20-0101'
  • Rendering of building from page 31 of the file '2025-09-03 - SDRP Design Brief - Package 3 - D02-02-20-0101'
  • Rendering of building from page 32 of the file '2025-02-24 - Design Brief - D01-01-20-0019 & D02-02-20-0101'
  • Rendering of building from page 24 of the file '2025-02-24 - Design Brief - D01-01-20-0019 & D02-02-20-0101'
  • Rendering of building from page 10 of the file '2025-09-03 - SDRP Design Brief - Package 3 - D02-02-20-0101'
  • Rendering of building from page 18 of the file '2025-12-04 - Design Brief - D02-02-20-0101'
  • Rendering of building from page 19 of the file '2025-12-04 - Design Brief - D02-02-20-0101'
  • Rendering of building from page 27 of the file '2025-12-04 - Design Brief - D02-02-20-0101'
  • Rendering of building from page 36 of the file '2024-05-07 - Special Design Review Panel Presentation - D02-02-20-0101'
  • Rendering of building from page 9 of the file '2025-09-03 - SDRP Design Brief - Package 3 - D02-02-20-0101'
  • Rendering of building from page 8 of the file '2025-12-04 - Design Brief - D02-02-20-0101'
  • Rendering of building from page 24 of the file '2025-09-03 - SDRP Design Brief - Package 3 - D02-02-20-0101'
  • Rendering of building from page 7 of the file '2025-09-03 - SDRP Design Brief - Package 3 - D02-02-20-0101'
  • Rendering of building from page 3 of the file '2024-05-07 - Special Design Review Panel Presentation - D02-02-20-0101'
  • Rendering of building from page 33 of the file '2025-02-24 - Design Brief - D01-01-20-0019 & D02-02-20-0101'
  • Rendering of building from page 26 of the file '2025-09-03 - SDRP Design Brief - Package 3 - D02-02-20-0101'
  • Rendering of building from page 58 of the file '2024-05-07 - Special Design Review Panel Presentation - D02-02-20-0101'
  • Rendering of building from page 31 of the file '2024-05-07 - Special Design Review Panel Presentation - D02-02-20-0101'
  • Rendering of building from page 53 of the file '2025-09-03 - SDRP Design Brief - Package 3 - D02-02-20-0101'
  • Rendering of building from page 73 of the file '2025-02-24 - Design Brief - D01-01-20-0019 & D02-02-20-0101'
  • Rendering of building from page 21 of the file '2025-12-04 - Design Brief - D02-02-20-0101'
  • Rendering of building from page 20 of the file '2025-12-04 - Design Brief - D02-02-20-0101'
  • Rendering of building from page 30 of the file '2024-05-07 - Special Design Review Panel Presentation - D02-02-20-0101'
  • Rendering of building from page 8 of the file '2025-12-04 - Design Brief - D02-02-20-0101'
  • Rendering of building from page 13 of the file '2025-09-03 - SDRP Design Brief - Package 3 - D02-02-20-0101'
  • Rendering of building from page 28 of the file '2024-05-07 - Special Design Review Panel Presentation - D02-02-20-0101'
  • Rendering of building from page 32 of the file '2025-09-03 - SDRP Design Brief - Package 3 - D02-02-20-0101'
  • Rendering of building from page 26 of the file '2024-05-07 - Special Design Review Panel Presentation - D02-02-20-0101'
  • Rendering of building from page 10 of the file '2025-09-03 - SDRP Design Brief - Package 3 - D02-02-20-0101'
  • Rendering of building from page 34 of the file '2025-02-24 - Design Brief - D01-01-20-0019 & D02-02-20-0101'
  • Rendering of building from page 16 of the file '2025-02-24 - Design Brief - D01-01-20-0019 & D02-02-20-0101'
  • Rendering of building from page 18 of the file '2025-09-03 - SDRP Design Brief - Package 3 - D02-02-20-0101'

Location#

Select a marker to view the address.

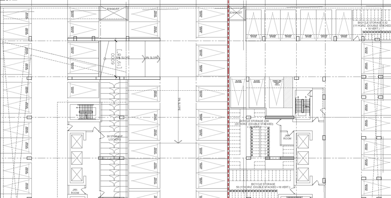
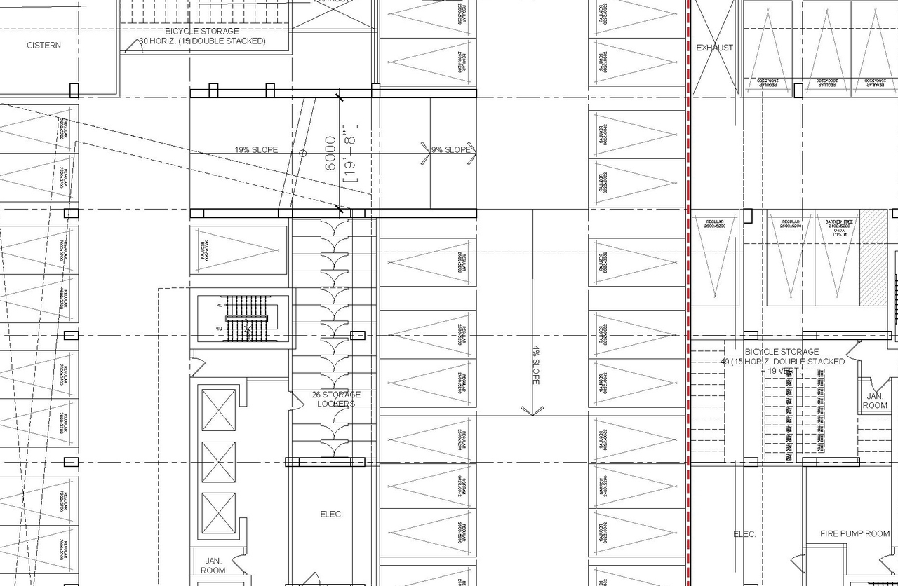
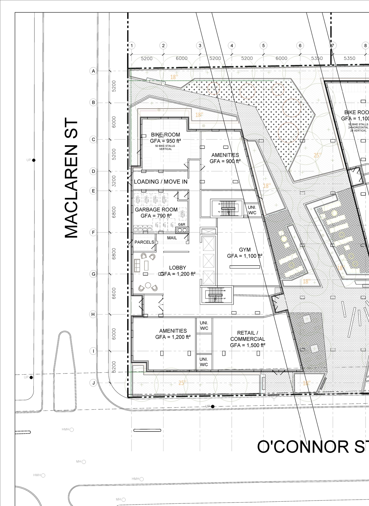
Site Plans, Elevations and Floor Plans#

  • Image from page 14 of the file '2025-12-04 - Design Brief - D02-02-20-0101'
  • Image from page 45 of the file '2025-12-04 - Design Brief - D02-02-20-0101'
  • Image from page 43 of the file '2025-12-04 - Design Brief - D02-02-20-0101'
  • Image from page 44 of the file '2025-12-04 - Design Brief - D02-02-20-0101'
  • Image from page 42 of the file '2025-12-04 - Design Brief - D02-02-20-0101'
  • Image from page 63 of the file '2025-02-24 - Design Brief - D01-01-20-0019 & D02-02-20-0101'
  • Image from page 32 of the file '2025-12-04 - Design Brief - D02-02-20-0101'
  • Construction site plan for project from page 61 of the file '2025-02-24 - Design Brief Appendix - D01-01-20-0019 & D02-02-20-0101'
  • Construction site plan for project from page 10 of the file '2025-12-04 - Design Brief - D02-02-20-0101'
  • Construction site plan for project from page 3 of the file '2020-10-23 - Site Plan and Floor Plans - D02-02-20-0101'
  • Construction site plan for project from page 60 of the file '2025-02-24 - Design Brief Appendix - D01-01-20-0019 & D02-02-20-0101'
  • Construction site plan for project from page 46 of the file '2025-02-24 - Design Brief - D01-01-20-0019 & D02-02-20-0101'
  • Construction site plan for project from page 28 of the file '2025-12-04 - Design Brief - D02-02-20-0101'
  • Construction site plan for project from page 60 of the file '2025-02-24 - Design Brief Appendix - D01-01-20-0019 & D02-02-20-0101'
  • Construction site plan for project from page 61 of the file '2025-02-24 - Design Brief Appendix - D01-01-20-0019 & D02-02-20-0101'
  • Construction site plan for project from page 4 of the file '2020-10-23 - Site Plan and Floor Plans - D02-02-20-0101'
  • Construction site plan for project from page 60 of the file '2025-02-24 - Design Brief Appendix - D01-01-20-0019 & D02-02-20-0101'
  • Construction site plan for project from page 60 of the file '2025-02-24 - Design Brief Appendix - D01-01-20-0019 & D02-02-20-0101'
  • Construction site plan for project from page 60 of the file '2025-02-24 - Design Brief Appendix - D01-01-20-0019 & D02-02-20-0101'
  • Construction site plan for project from page 60 of the file '2025-02-24 - Design Brief Appendix - D01-01-20-0019 & D02-02-20-0101'
  • Construction site plan for project from page 60 of the file '2025-02-24 - Design Brief Appendix - D01-01-20-0019 & D02-02-20-0101'
  • Construction site plan for project from page 60 of the file '2025-02-24 - Design Brief Appendix - D01-01-20-0019 & D02-02-20-0101'
  • Construction site plan for project from page 66 of the file '2025-02-24 - Design Brief Appendix - D01-01-20-0019 & D02-02-20-0101'
  • Construction site plan for project from page 23 of the file '2025-09-03 - SDRP Design Brief - Package 3 - D02-02-20-0101'
  • Floor plan for project from page 30 of the file '2025-12-04 - Design Brief - D02-02-20-0101'
  • Floor plan for project from page 2 of the file '2020-10-23 - Site Plan and Floor Plans - D02-02-20-0101'
  • Image from page 14 of the file '2025-12-04 - Design Brief - D02-02-20-0101'
  • Image from page 45 of the file '2025-12-04 - Design Brief - D02-02-20-0101'
  • Image from page 43 of the file '2025-12-04 - Design Brief - D02-02-20-0101'
  • Image from page 44 of the file '2025-12-04 - Design Brief - D02-02-20-0101'
  • Image from page 42 of the file '2025-12-04 - Design Brief - D02-02-20-0101'
  • Image from page 63 of the file '2025-02-24 - Design Brief - D01-01-20-0019 & D02-02-20-0101'
  • Image from page 32 of the file '2025-12-04 - Design Brief - D02-02-20-0101'
  • Construction site plan for project from page 61 of the file '2025-02-24 - Design Brief Appendix - D01-01-20-0019 & D02-02-20-0101'
  • Construction site plan for project from page 10 of the file '2025-12-04 - Design Brief - D02-02-20-0101'
  • Construction site plan for project from page 3 of the file '2020-10-23 - Site Plan and Floor Plans - D02-02-20-0101'
  • Construction site plan for project from page 60 of the file '2025-02-24 - Design Brief Appendix - D01-01-20-0019 & D02-02-20-0101'
  • Construction site plan for project from page 46 of the file '2025-02-24 - Design Brief - D01-01-20-0019 & D02-02-20-0101'
  • Construction site plan for project from page 28 of the file '2025-12-04 - Design Brief - D02-02-20-0101'
  • Construction site plan for project from page 60 of the file '2025-02-24 - Design Brief Appendix - D01-01-20-0019 & D02-02-20-0101'
  • Construction site plan for project from page 61 of the file '2025-02-24 - Design Brief Appendix - D01-01-20-0019 & D02-02-20-0101'
  • Construction site plan for project from page 4 of the file '2020-10-23 - Site Plan and Floor Plans - D02-02-20-0101'
  • Construction site plan for project from page 60 of the file '2025-02-24 - Design Brief Appendix - D01-01-20-0019 & D02-02-20-0101'
  • Construction site plan for project from page 60 of the file '2025-02-24 - Design Brief Appendix - D01-01-20-0019 & D02-02-20-0101'
  • Construction site plan for project from page 60 of the file '2025-02-24 - Design Brief Appendix - D01-01-20-0019 & D02-02-20-0101'
  • Construction site plan for project from page 60 of the file '2025-02-24 - Design Brief Appendix - D01-01-20-0019 & D02-02-20-0101'
  • Construction site plan for project from page 60 of the file '2025-02-24 - Design Brief Appendix - D01-01-20-0019 & D02-02-20-0101'
  • Construction site plan for project from page 60 of the file '2025-02-24 - Design Brief Appendix - D01-01-20-0019 & D02-02-20-0101'
  • Construction site plan for project from page 66 of the file '2025-02-24 - Design Brief Appendix - D01-01-20-0019 & D02-02-20-0101'
  • Construction site plan for project from page 23 of the file '2025-09-03 - SDRP Design Brief - Package 3 - D02-02-20-0101'
  • Floor plan for project from page 30 of the file '2025-12-04 - Design Brief - D02-02-20-0101'
  • Floor plan for project from page 2 of the file '2020-10-23 - Site Plan and Floor Plans - D02-02-20-0101'

Additional Information#

Date Initiated2020-10-21
WardWard 14 - Ariel Troster

Documents#

TypeDocument
Adequacy Of Public Services2025-02-24 - Assessment of Adequacy of Public Services - D01-01-20-0019 & D02-02-20-0101
Adequacy Of Public Services2025-12-04 - Assessment of Adequacy - D02-02-20-0101
Application Summary2020-11-12 - Application Summary - D02-02-20-0101
Application Summary2025-02-24 - Application Summary - D01-01-20-0019 & D02-02-20-0101
Architectural Plans2024-05-07 - Site Plan - D02-02-20-0101
Architectural Plans2024-05-07 - Elevations - D02-02-20-0101
Architectural Plans2020-10-23 - Engineering Plans - D02-02-20-0101
Architectural Plans2020-10-23 - Elevations - D02-02-20-0101
Architectural Plans2025-02-24 - Site Plan - D01-01-20-0019 & D02-02-20-0101
Architectural Plans2025-02-24 - Building Elevations - D01-01-20-0019 & D02-02-20-0101
Architectural Plans2025-02-24 - Architectural Plans - D01-01-20-0019 & D02-02-20-0101
Architectural Plans2025-12-04 - Site Plan - D02-02-20-0101
Architectural Plans2025-12-04 - Building Elevations - D02-02-20-0101
Architectural Plans2025-12-04 - Architectural Plans - D02-02-20-0101
Architectural Plans2025-12-24 - Elevations - D02-02-20-0101
Design BriefSpecial Design Review Meeting Recommendations FR - Jan 15 2021
Design BriefSpecial Design Review Meeting Recommendations EN - Jan 15 2021
Design Brief2024-05-07 - Special Design Review Panel Presentation - D02-02-20-0101
Design Brief2025-02-24 - Design Brief Appendix - D01-01-20-0019 & D02-02-20-0101
Design Brief2025-02-24 - Design Brief - D01-01-20-0019 & D02-02-20-0101
Design Brief2025-09-03 - SDRP Design Brief - Package 3 - D02-02-20-0101
Design Brief2025-12-04 - Design Brief - D02-02-20-0101
Environmental2020-10-23 - Phase 2 Environmental Site Assessment Update - D02-02-20-0101
Environmental2020-10-23 - Phase 1 Environmental Site Assessment Update - D02-02-20-0101
Environmental2025-02-24 - Phase I ESA Update - D01-01-20-0019 & D02-02-20-0101
Environmental2025-02-25 - Phase II ESA Update - D02-02-20-0101
Floor Plan2020-10-23 - Site Plan and Floor Plans - D02-02-20-0101
Geotechnical Report2020-10-23 - Geotechnical Investigation - D02-02-20-0101
Geotechnical Report2025-02-24 - Geotechnical Report - D01-01-20-0019 & D02-02-20-0101
Landscape Plan2020-10-23 - Landscape Plan - D02-02-20-0101
Landscape Plan2020-10-23 - Landscape Architecture Concept - D02-02-20-0101
Landscape Plan2025-02-24 - Landscape Plans - D01-01-20-0019 & D02-02-20-0101
Landscape Plan2025-02-24 - Landscape Imagery - D01-01-20-0019 & D02-02-20-0101
Landscape Plan2025-12-04 - Landscape Plan - D02-02-20-0101
Noise Study2020-10-23 - Noise Study - D02-02-20-0101
Noise Study2025-02-24 - Traffic Noise Feasibility Assessment - D01-01-20-0019 & D02-02-20-0101
Planning2020-10-23 - Planning Rationale - D02-02-20-0101
Planning2025-02-24 - Planning Rationale - D01-01-20-0019 & D02-02-20-0101
Planning2025-12-04 - Zoning Confirmation Report - D02-02-20-0101
Planning2025-12-04 - Planning Rationale - D02-02-20-0101
Rendering2025-02-24 - NCC View Plane Diagram - D01-01-20-0019 & D02-02-20-0101
Shadow Study2020-10-23 - Sun Shadow Study - D02-02-20-0101
Shadow Study2025-02-24 - Sun Shadow Study - D01-01-20-0019 & D02-02-20-0101
Shadow Study2025-12-04 - Sun Shadow Study - D02-02-20-0101
Site Servicing2020-10-23 - Site Servicing Report - D02-02-20-0101
Surveying2020-10-23 - Topographic Sketch - D02-02-20-0101
Surveying2025-02-24 - Survey Plan - D01-01-20-0019 & D02-02-20-0101
Surveying2025-12-04 - Survey Plan - D02-02-20-0101
Transportation Analysis2020-10-23 - Transportation Impact Assessment Strategy Report - D02-02-20-0101
Transportation Analysis2020-10-23 - Transportation Impact Assessment Screening Form - D02-02-20-0101
Transportation Analysis2025-02-24 - TIA Strategy Report - D01-01-20-0019 & D02-02-20-0101
Transportation Analysis2025-12-04 - TIA Strategy Report - D02-02-20-0101
Tree Information and Conservation2025-02-24 - Tree Conservation Report - D01-01-20-0019 & D02-02-20-0101
Wind Study2020-10-23 - Wind Study - D02-02-20-0101
Wind Study2025-02-24 - Pedestrian Level Wind Study - D01-01-20-0019 & D02-02-20-0101
2020-10-23 - Proposed Zoning Schedule - D02-02-20-0101
2020-10-23 - Cultural Heritage Impact Statement - D02-02-20-0101
2025-02-24 - Sustainability Strategy - D01-01-20-0019 & D02-02-20-0101
2025-02-24 - SDRP Report - D01-01-20-0019 & D02-02-20-0101
2025-02-24 - Planned Context Massing Study - D01-01-20-0019 & D02-02-20-0101
2025-02-24 - Heritage Impact Assessment - D01-01-20-0019 & D02-02-20-0101
2025-02-24 - Formal Public Consultation Program - D01-01-20-0019 & D02-02-20-0101
2025-12-04 - Sustainability Strategy - D02-02-20-0101
2025-12-04 - SDRP Report - D02-02-20-0101
2025-12-04 - Heritage Impact Assessment - D02-02-20-0101