1995 Carling Ave.#
Last updated: 2025-06-21 · ID: D02-02-20-0030
Summary#
The City of Ottawa has received applications for a Zoning By-Law Amendment and Site Plan Control to permit the construction of a 27-storey apartment dwelling, with 210 residential units.
Status
File Pending (Application File Pending)
Building Scale (Max.)
Based on elevation drawings. Values may be approximate. See sources for exact figures.
High-rise · 27 storeys
· 86.25 m
Renders#
Location#
Select a marker to view the address.
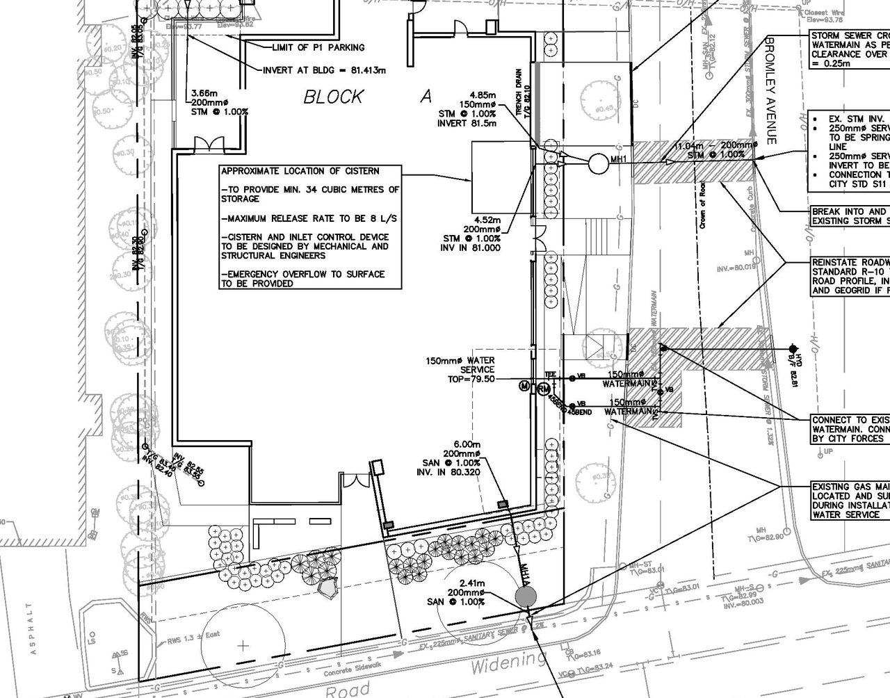
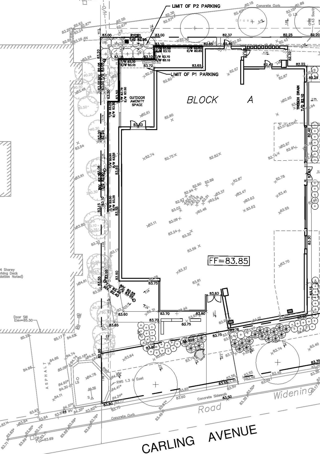
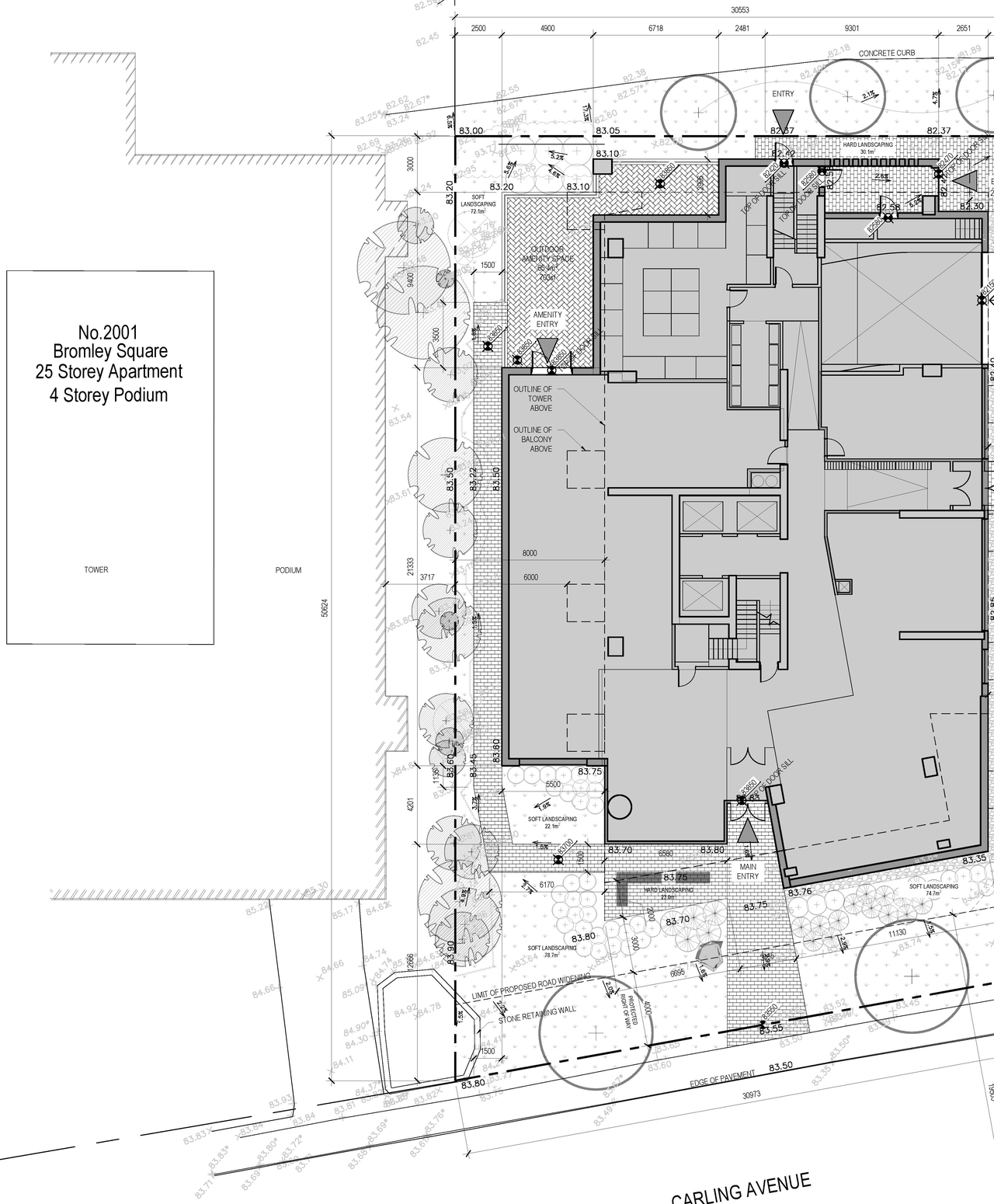
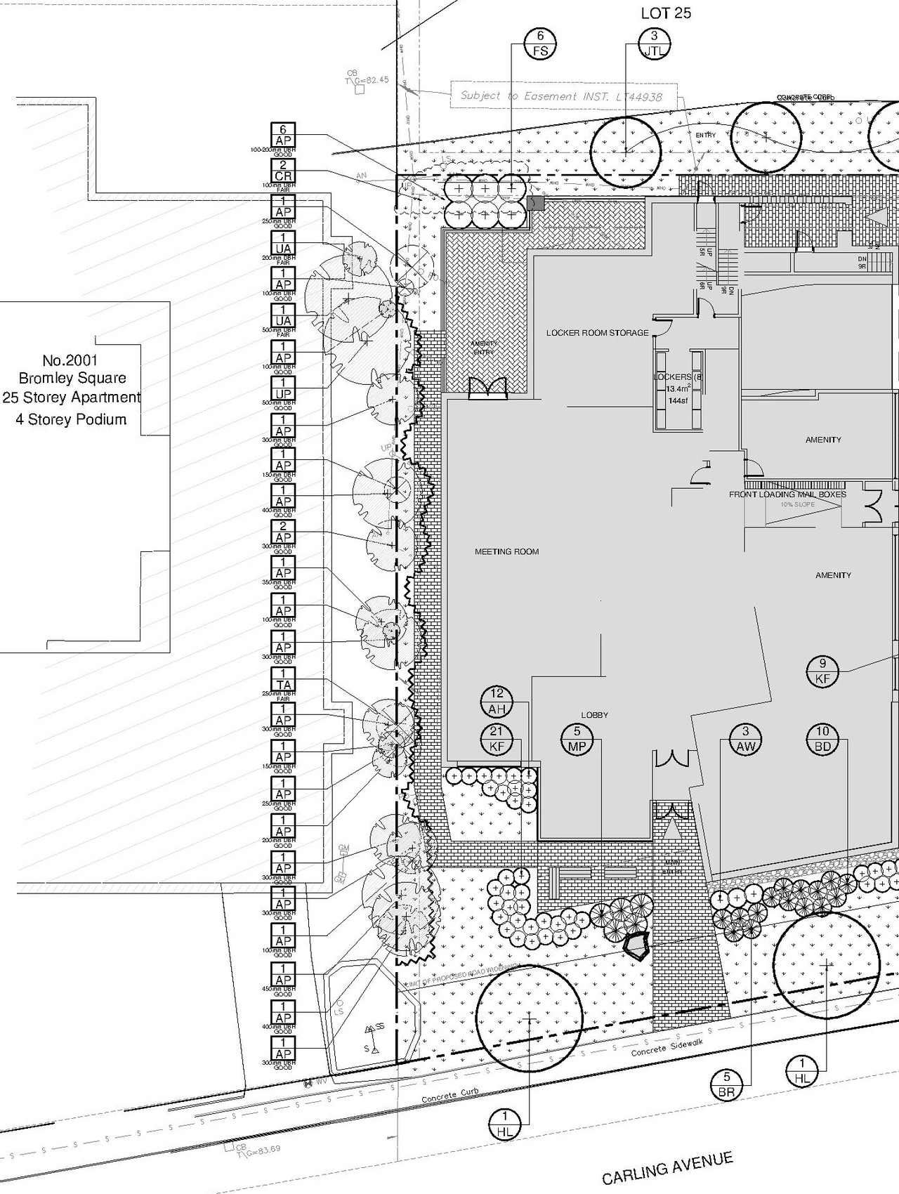
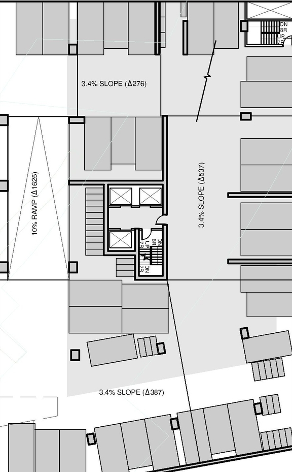
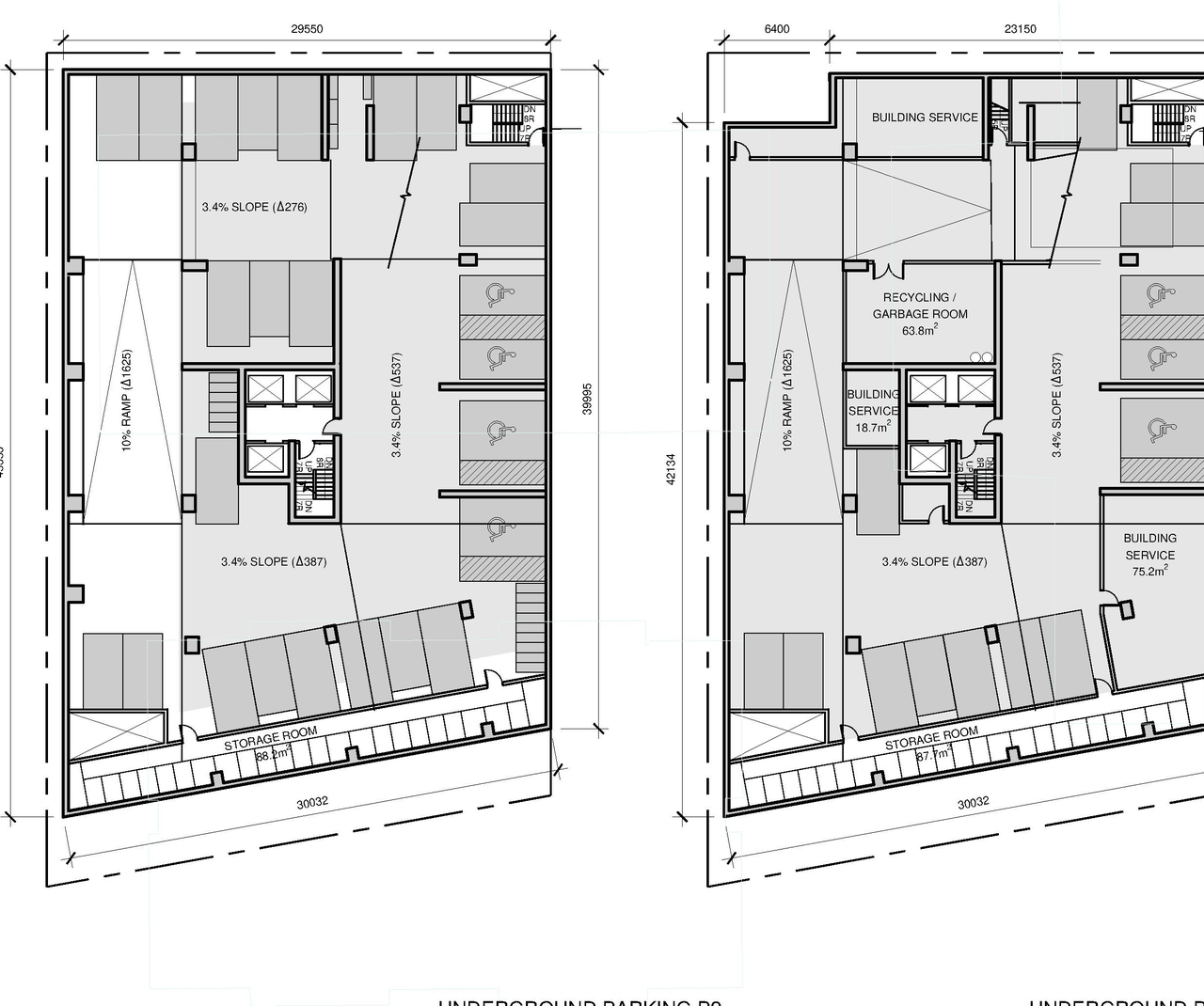
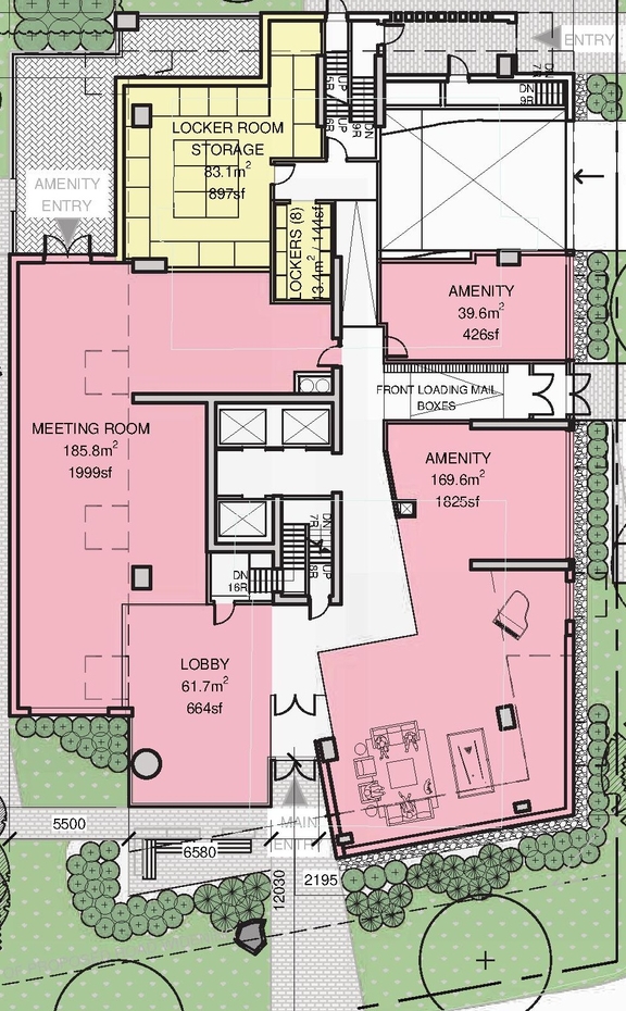
Site Plans, Elevations and Floor Plans#
Additional Information#
| Date Initiated | 2020-04-22 |
| Ward | Ward 7 - Theresa Kavanagh |























