70 Beech St./75 Norman St.#
Summary#
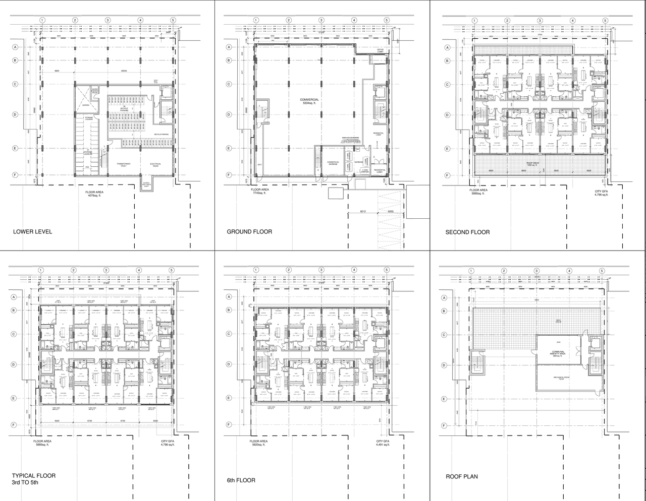
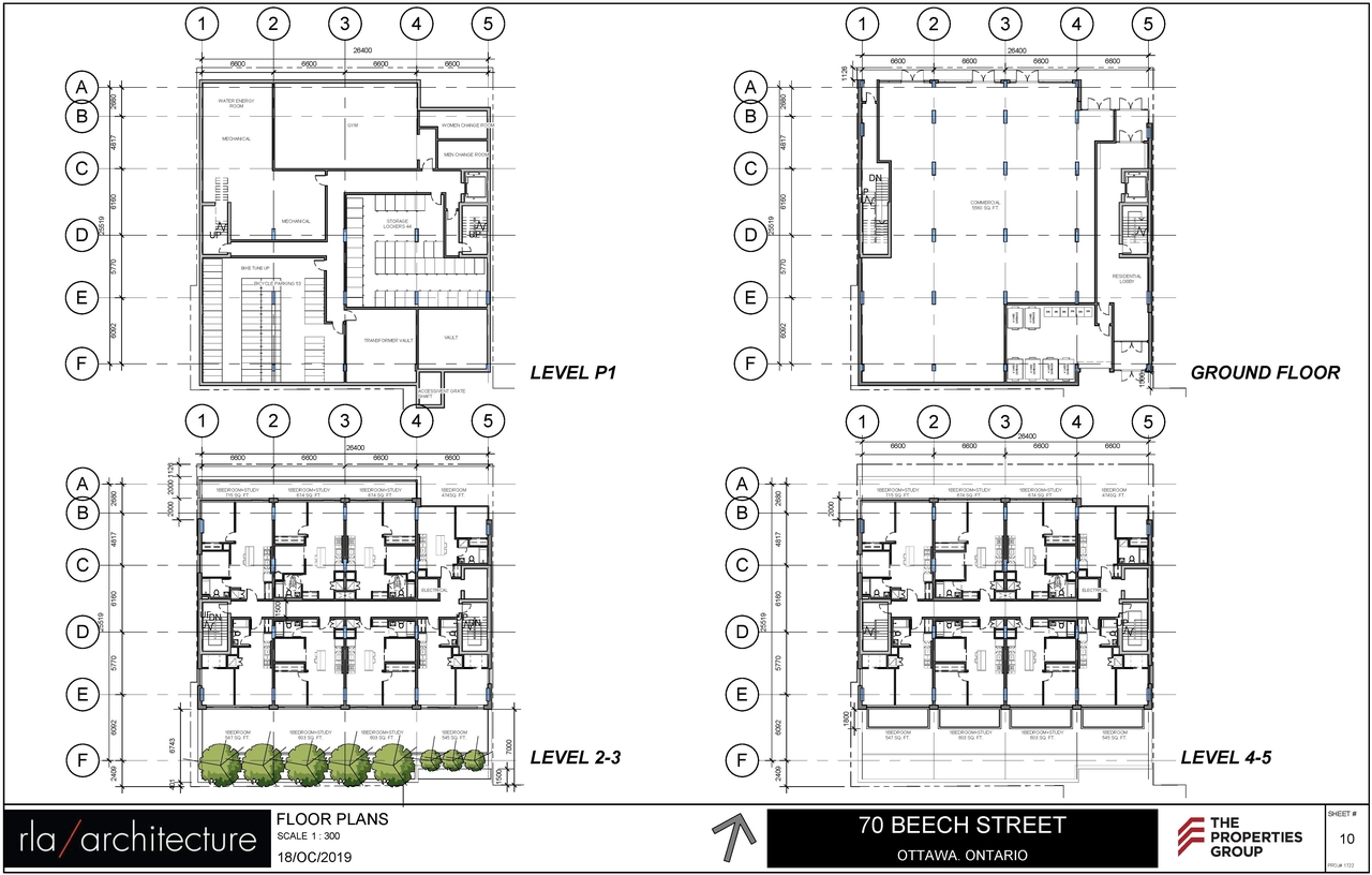
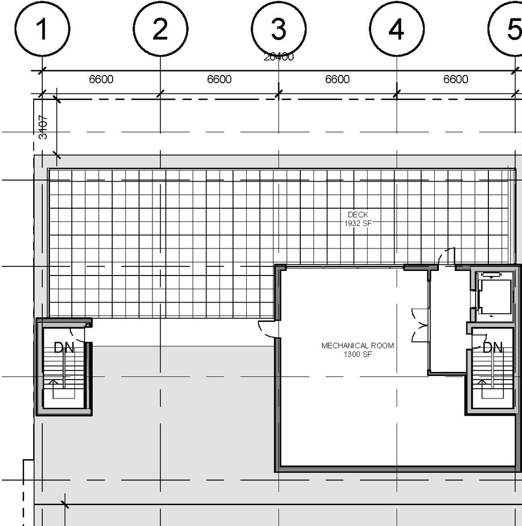
To amend the required the rear-yard and side-yard setbacks, rear-yard angular plane, visitor parking space requirements and aisle width provisions for a new six-storey mixed-use building fronting on Beech. The applicant also seeks permission for an enclosed rooftop amenity area not to be included in the overall height of the building.
Status
File Pending (Application File Pending)
Building Scale (Max.)
Based on elevation drawings. Values may be approximate. See sources for exact figures.
Mid-rise · 6 storeys
Data Quality Note
Text was extracted using optical character recognition. This may introduce artifacts or misreads.
· 24.3 m
Data Quality Note
Text was extracted using optical character recognition. This may introduce artifacts or misreads.
Renders#
Location#
Site Plans, Elevations and Floor Plans#
Additional Information#
| Date Initiated | 2019-03-28 |
| Ward | Ward 14 - Ariel Troster |















