Ottawa Development Projects

342 Roosevelt Ave.#

Last updated: 2026-03-14 ยท ID: D02-02-17-0131

Summary#

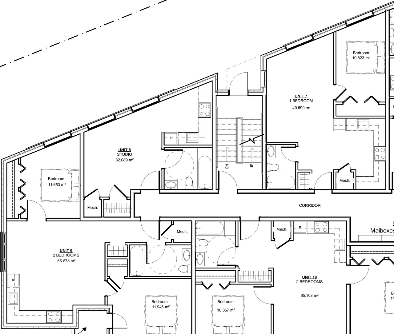
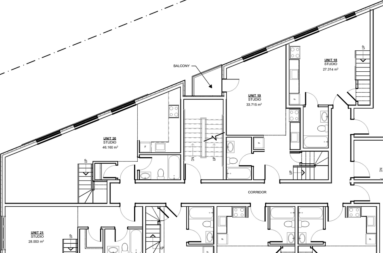
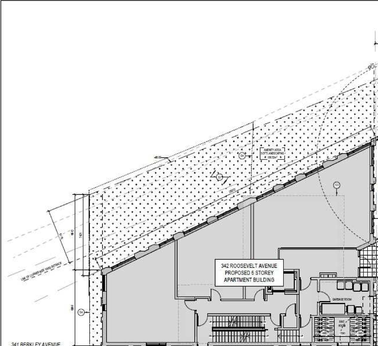
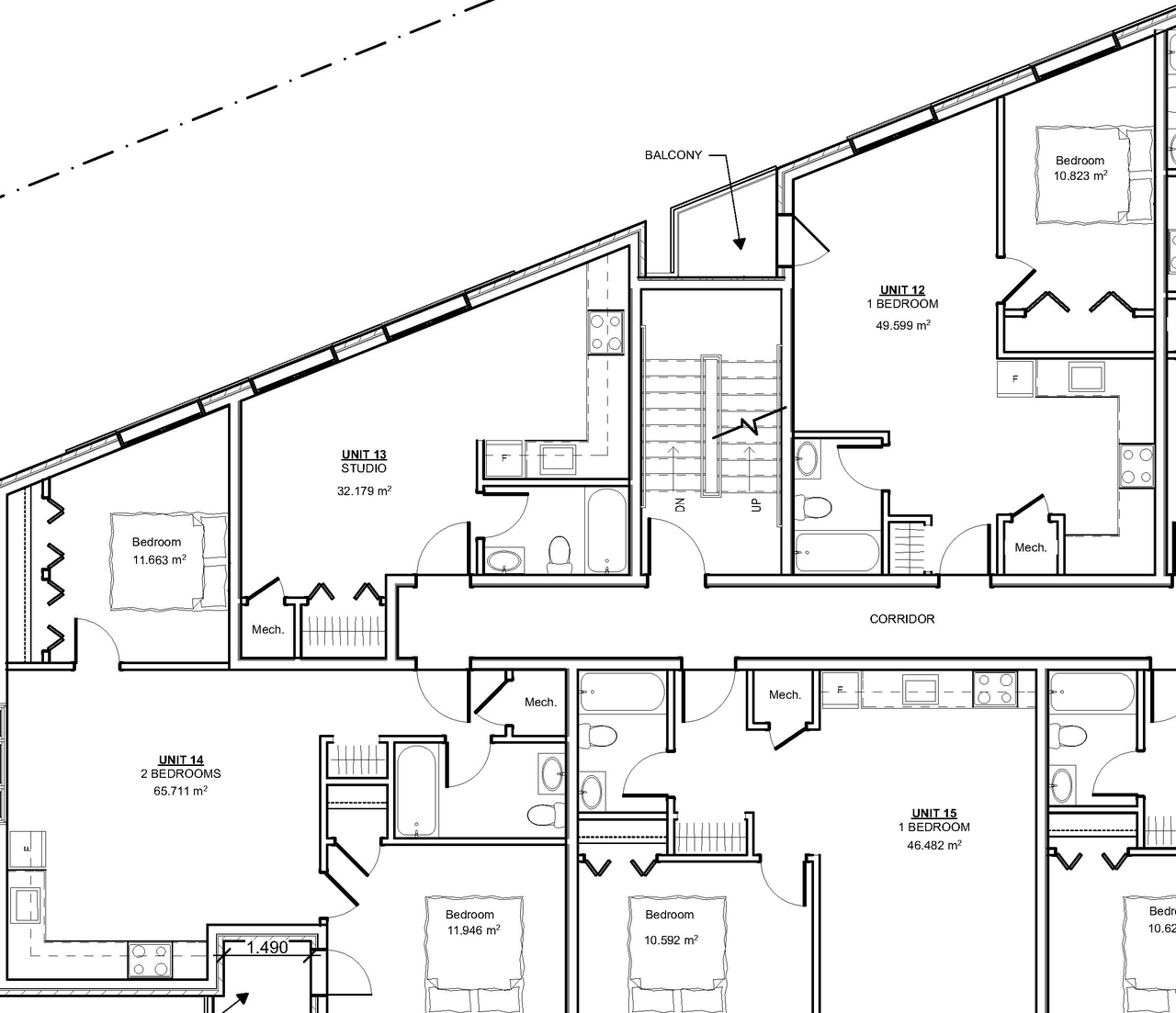
The City of Ottawa has received a Zoning By-law Amendment and Site Plan Control application to permit a six-storey mid-rise building with 26 residential dwelling units.

Status
File Pending (Application File Pending)

Renders#

Location#

Select a marker to view the address.

Site Plans, Elevations and Floor Plans#

Additional Information#

Date Initiated2017-12-22
WardWard 15 - Jeff Leiper

Documents#

TypeDocument
Adequacy Of Public Services2025-06-10 - Serviceability Report - D02-02-17-0131
Adequacy Of Public Services2025-08-07 - Serviceability Report - D02-02-17-0131
Application Summary2018_01_25 - Application Summary - D02-02-17-0131
Application Summary2025-01-20 - Application Summary - D02-02-17-0131
Architectural Plans2018_01_25 - West Elevation - D02-02-17-0131
Architectural Plans2018_01_25 - Surrounding Land Use Plan - D02-02-17-0131
Architectural Plans2018_01_25 - South Elevation - D02-02-17-0131
Architectural Plans2018_01_25 - Rooftop Plan - D02-02-17-0131
Architectural Plans2018_01_25 - North Elevation - D02-02-17-0131
Architectural Plans2018_01_25 - Hole Location Plan - D02-02-17-0131
Architectural Plans2018_01_25 - East Elevation - D02-02-17-0131
Architectural Plans2018_01_25 - Basement Plan - D02-02-17-0131
Architectural Plans2018_01_25 - 3rd Floor Mezzanine Plan - D02-02-17-0131
Architectural Plans2024-11-18 - Proposed Site Grading and Servicing Plan - D02-02-17-0131
Architectural Plans2024-11-18 - Proposed Erosion and Sediment Control Plan - D02-02-17-0131
Architectural Plans2024-11-18 - Architectural Plans - D02-02-17-0131
Architectural Plans2025-01-09 - Site & Landscape Plan - D02-02-17-0131
Architectural Plans2025-06-10 - Site Plan and Architectural Set - D02-02-17-0131
Architectural Plans2025-06-10 - North Elevation - D02-02-17-0131
Architectural Plans2025-06-10 - East Elevation - D02-02-17-0131
Architectural Plans2025-08-07 - Site Plan - D02-02-17-0131
Architectural Plans2025-08-07 - Site & Landscape Plan - D02-02-17-0131
Architectural Plans2026-01-12 - Site Plan - D02-02-17-0131
Architectural Plans2026-01-12 - Site Grading & Servicing Plan - D02-02-17-0131
Design Brief2025-08-07 - Urban Design Brief - D02-02-17-0131
Environmental2018_01_25 - Phase 1 Environmental Site Assessment - D02-02-17-0131
Environmental2024-11-18 - Phase I ESA Update - D02-02-17-0131
Erosion And Sediment Control Plan2018_01_25 - Erosion and Sediment Control Plan - D02-02-17-0131
Erosion And Sediment Control Plan2026-01-12 - Erosion & Sediment Control Plan - D02-02-17-0131
Floor Plan2018_01_25 - Ground Floor Plan - D02-02-17-0131
Floor Plan2018_01_25 - Floor Plan for 3rd Floor - D02-02-17-0131
Floor Plan2018_01_25 - Floor Plan for 2nd Floor - D02-02-17-0131
Geotechnical Report2018_01_25 - Site Landscaping Plan - D02-02-17-0131
Geotechnical Report2024-11-18 - Geotechnical Investigation - D02-02-17-0131
Geotechnical Report2025-06-10 - Geotechnical Investigation - D02-02-17-0131
Geotechnical Report2025-08-07 - Geotechnical Investigation - D02-02-17-0131
Landscape Plan2026-01-12 - Landscape Plan - D02-02-17-0131
Noise Study2018_01_25 - Noise and Vibration Study - D02-02-17-0131
Planning2024-12-02 - Planning Rationale Addendum - D02-02-17-0131
Planning2025-11-13 - Planning Rationale 342 Roosevelt - D02-02-17-0131
Planning2026-01-12 - Planning Rational - D02-02-17-0131
Rendering2025-06-10 - View from SE - D02-02-17-0131
Rendering2025-06-10 - View from NE - D02-02-17-0131
Stormwater Management2018_01_25 - Storm Drainage Diagram - D02-02-17-0131
Stormwater Management2024-11-18 - Storm Drainage Report - D02-02-17-0131
Stormwater Management2024-11-18 - Storm Drainage Area Plan - D02-02-17-0131
Stormwater Management2024-11-18 - Proposed Stormwater Management Plan - D02-02-17-0131
Stormwater Management2026-01-12 - Stormwater Management Plan - D02-02-17-0131
Stormwater Management2026-01-12 - Pre & Post Development Storm Drainage Area - D02-02-17-0131
Surveying2018_01_25 - Topographic Details - D02-02-17-0131
Surveying2024-11-18 - Plan of Survey - D02-02-17-0131
Surveying2025-06-10 - Surveyor’s Real Property Report - D02-02-17-0131
Surveying2025-08-07 - Plan of Survey - D02-02-17-0131
Tree Information and Conservation2025-02-26 - Tree Conservation Report - D02-02-17-0131
Tree Information and Conservation2025-08-07 - Tree Conservation Report - D02-02-17-0131
2018_01_25 - Public and Private Boundaries Map - D02-02-17-0131
2018_01_25 - Proposed Grading and Servicing - D02-02-17-0131
2018_01_25 - Cross Section A-A - D02-02-17-0131
2024-11-18 - Updated Drawing Set - D02-02-17-0131
2024-11-18 - Potential Impacts to Existing Watermain and Sewer Infrastructure Memo - D02-02-17-01
2024-11-18 - LRT Level 2 Proximity Study - D02-02-17-0131
2024-11-18 - Potential Impacts to Existing Watermain & Sewer Infrastructure Memo - D02-02-17-0131
2025-06-10 - LRT Level 2 Proximity Study - D02-02-17-0131
2025-08-07 - LRT Level 2 Proximity Study - D02-02-17-0131
2026-01-12 - Update to Phase I ESA - D02-02-17-0131