1869 Trim Rd.#
Last updated: 2018-10-01 · ID: D02-02-17-0129
Summary#
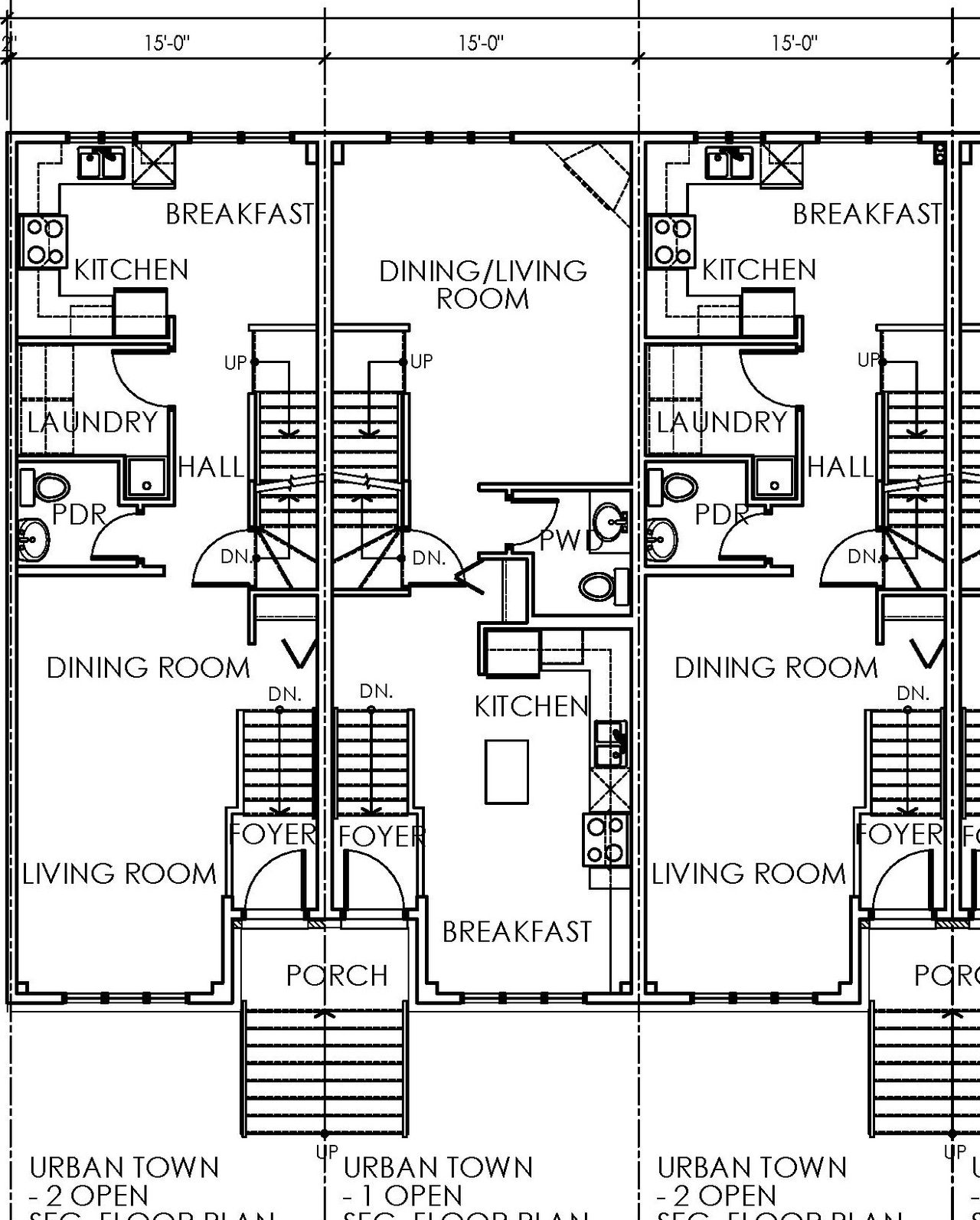
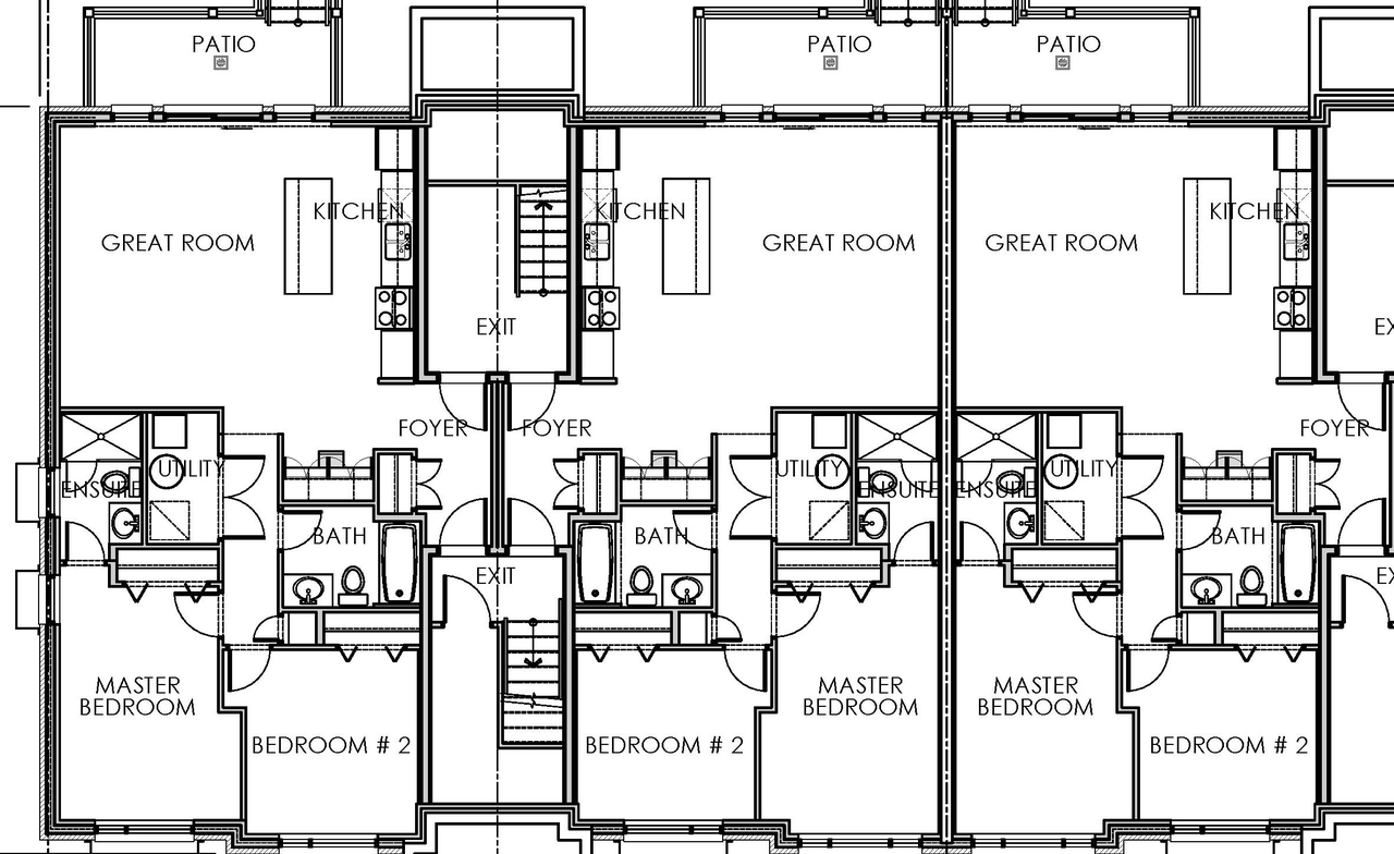
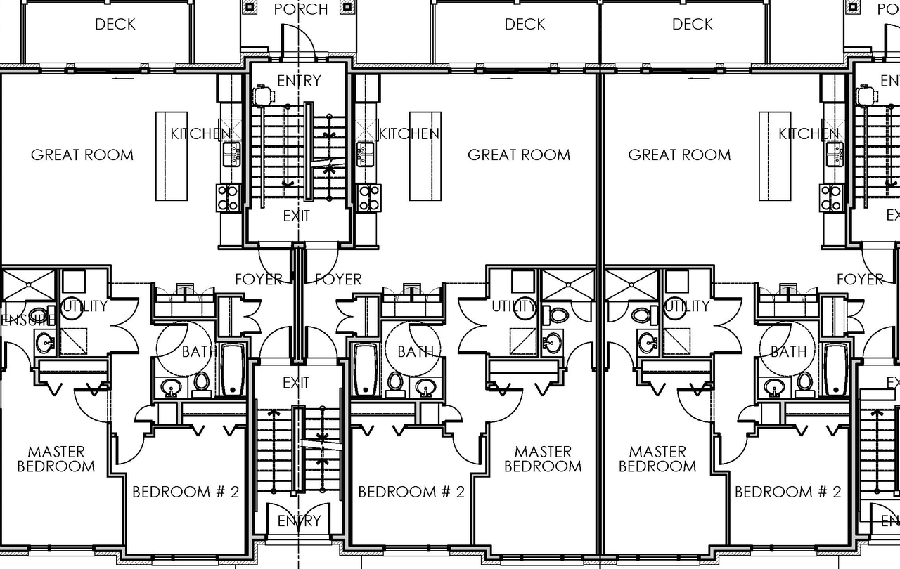
Development of 62 residential units, within 48 condominium units within 4 stacked, back to back buildings and 14 townhouse units within two blocks.
Status
File Pending (Application File Pending)
Building Scale (Max.)
Based on elevation drawings. Values may be approximate. See sources for exact figures.
Low-rise · 3 storeys
Data Quality Note
Text was extracted using optical character recognition. This may introduce artifacts or misreads.
Renders#
Location#
Select a marker to view the address.
Site Plans, Elevations and Floor Plans#
Additional Information#
| Date Initiated | 2017-12-21 |
| Ward | Ward 1 - Matthew Luloff |
Documents#
| Type | Document |
|---|---|
| Application Summary | 2018-08-28 - Application Summary - D02-02-17-0129 |
| Archaelogical Assessment | Archaeological Assessment |
| Architectural Plans | Site Plan2 |
| Architectural Plans | Site Grading Plan |
| Architectural Plans | Elevations Part 3 |
| Architectural Plans | Elevations Part 2 |
| Architectural Plans | Elevations Part 1 |
| Architectural Plans | Draft 4R-Plan |
| Environmental | Phase 1 ESA |
| Erosion And Sediment Control Plan | Erosion & Sediment Control Plan |
| Floor Plan | Floor Plans1 |
| Geotechnical Report | Geotechnical Report4 |
| Landscape Plan | Landscape Plan1 |
| Noise Study | Noise Study2 |
| Planning | Planning Rationale12 |
| Rendering | Stacked, back to back Building’s Rendering |
| Site Servicing | Site Servicing Plan1 |
| Site Servicing | Servicing Report1 |
| Surveying | Topographical Plan |
| Transportation Analysis | Traffic Impact Analysis |
| Notes, Legend and Details Sheet | |
| 2018-08-28 - Location map - D02-02-17-0129 |








