131-139 Parkdale Ave./122 Forward Ave.#
Last updated: 2026-03-25 · ID: D01-01-26-0005
Summary#
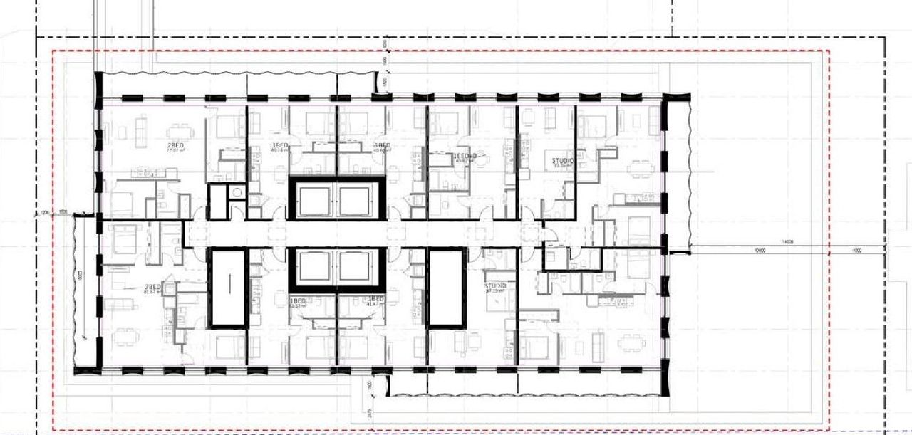
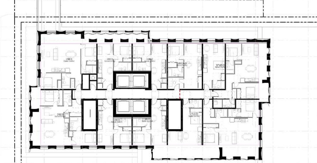
The City of Ottawa has received Official Plan Amendment, Zoning By-law Amendment and Site Plan Control applications to construct a 40-storey high-rise and a six-storey mid-rise building with a combined 429 dwelling units, four units of ground-floor commercial, 207 vehicular parking spaces, and 472 bicycle parking spaces.
Status
Active (Comment Period in Progress)
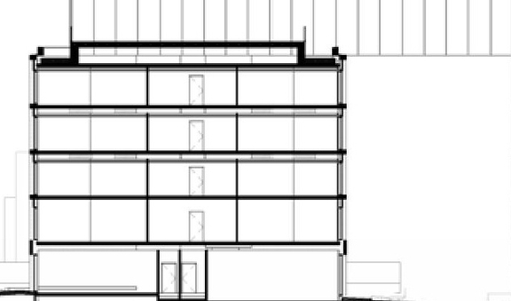
Building Scale (Max.)
Based on elevation drawings. Values may be approximate. See sources for exact figures.
High-rise · 40 storeys
· 140.9 m
Renders#
Location#
Select a marker to view the address.
Site Plans, Elevations and Floor Plans#
Additional Information#
| Date Initiated | 2026-03-09 |
| Ward | Ward 15 - Jeff Leiper |
| All Addresses | 131 Parkdale Ave. 139 Parkdale Ave. 122 Forward Ave. |
| Other IDs | D02-02-26-0016 |










































