1052-1064 St-Laurent Blvd.#
Last updated: 2026-02-21 · ID: D01-01-26-0003
Summary#
The City of Ottawa has received an Official Plan and Zoning By-law Amendment application to permit a 30-storey mixed-use building consisting of 401 residential dwelling units, at-grade retail, and three levels of below-grade parking.
Status
Active (Comment Period in Progress)
Building Scale (Max.)
Based on elevation drawings. Values may be approximate. See sources for exact figures.
High-rise · 30 storeys
· 93 m
Renders#
Location#
Select a marker to view the address.
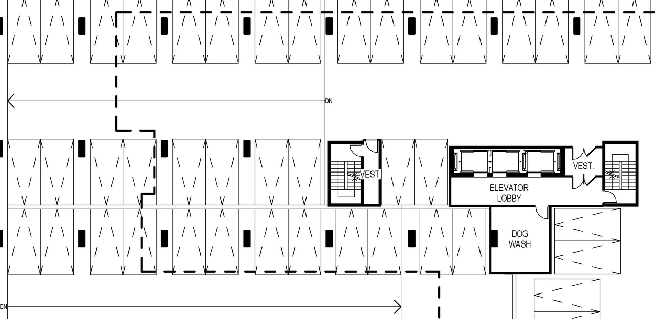
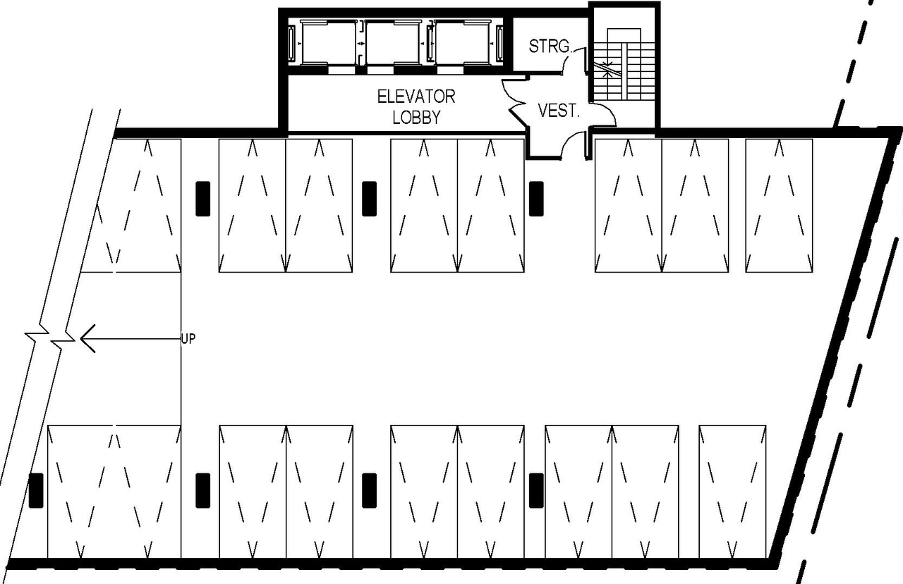
Site Plans, Elevations and Floor Plans#
Additional Information#
| Date Initiated | 2026-02-06 |
| Ward | Ward 13 - Rawlson King |
| All Addresses | 1052 St-Laurent Blvd. 1060 St-Laurent Blvd. 1064 St-Laurent Blvd. |
| Other IDs | D02-02-26-0008 |


























