223-233 Armstrong St./3 Hamilton Ave. N./340 Parkdale Ave.#
Last updated: 2026-02-18 ยท ID: D01-01-26-0002
Summary#
The City of Ottawa has received an Official Plan and Zoning By-law Amendment application to permit a 38-storey mixed-use building. The proposal includes approximately 465 dwelling units and four levels of underground parking, containing approximately 322 parking spaces. A Privately-Owned-Public Space is also proposed.
Status
Active (Community Heads Up - supporting documents to be posted later during circulation period)
Renders#
Location#
Select a marker to view the address.
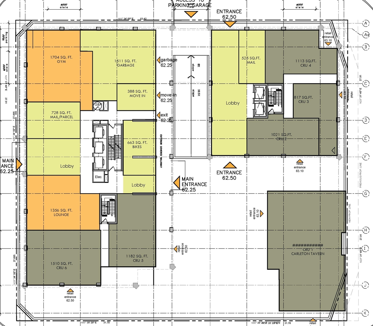
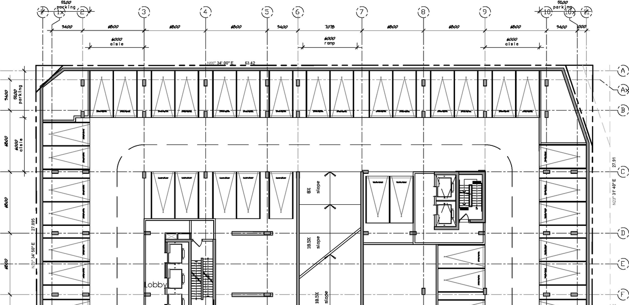
Site Plans, Elevations and Floor Plans#
Additional Information#
| Date Initiated | 2026-01-26 |
| Ward | Ward 15 - Jeff Leiper |
| All Addresses | 223 Armstrong St. 229 Armstrong St. 233 Armstrong St. 3 Hamilton Ave. N. 340 Parkdale Ave. |
| Other IDs | D02-02-26-0003 |








