116 Beech St.#
Last updated: 2026-03-07 · ID: D01-01-25-0027
Summary#
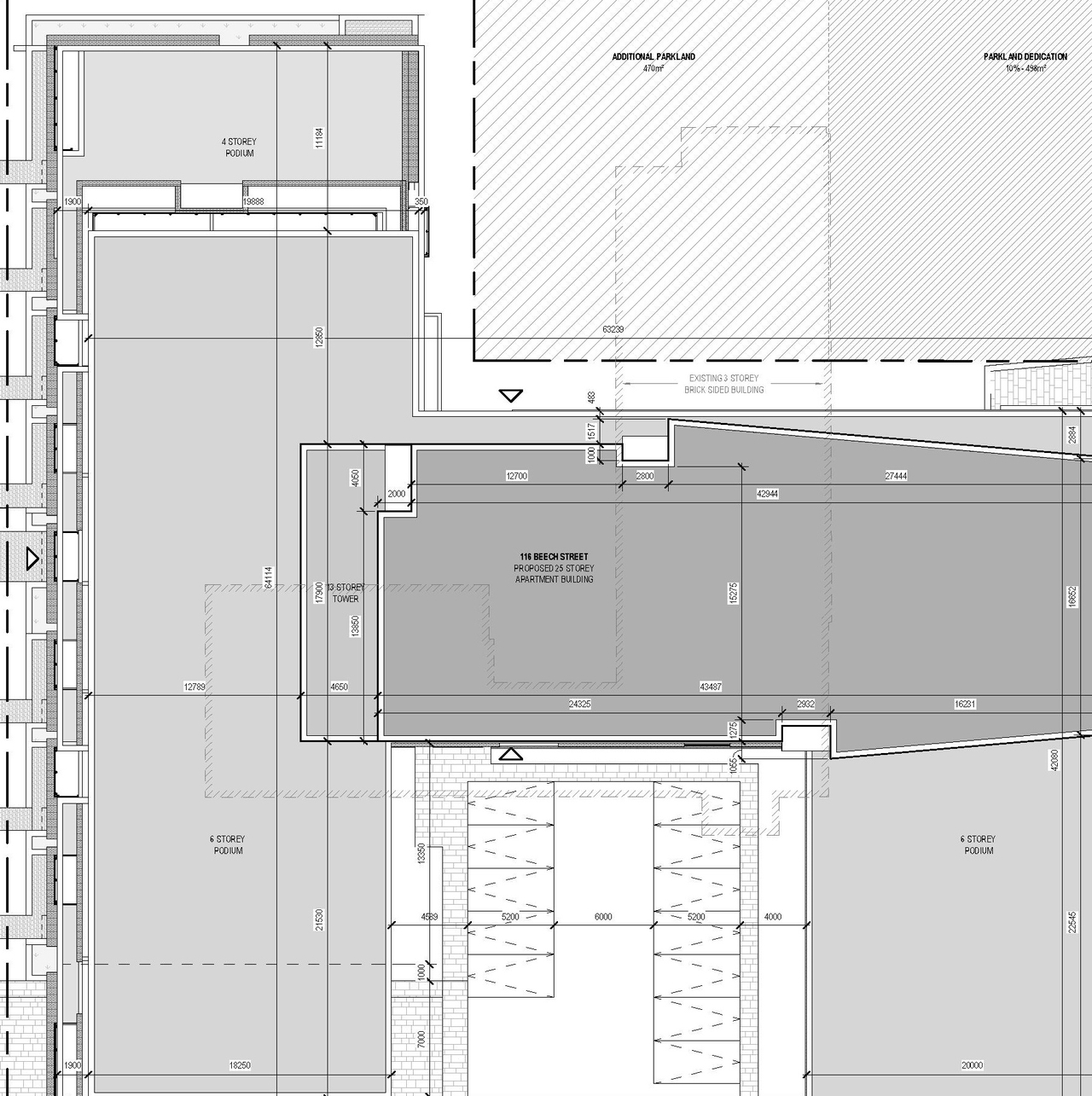
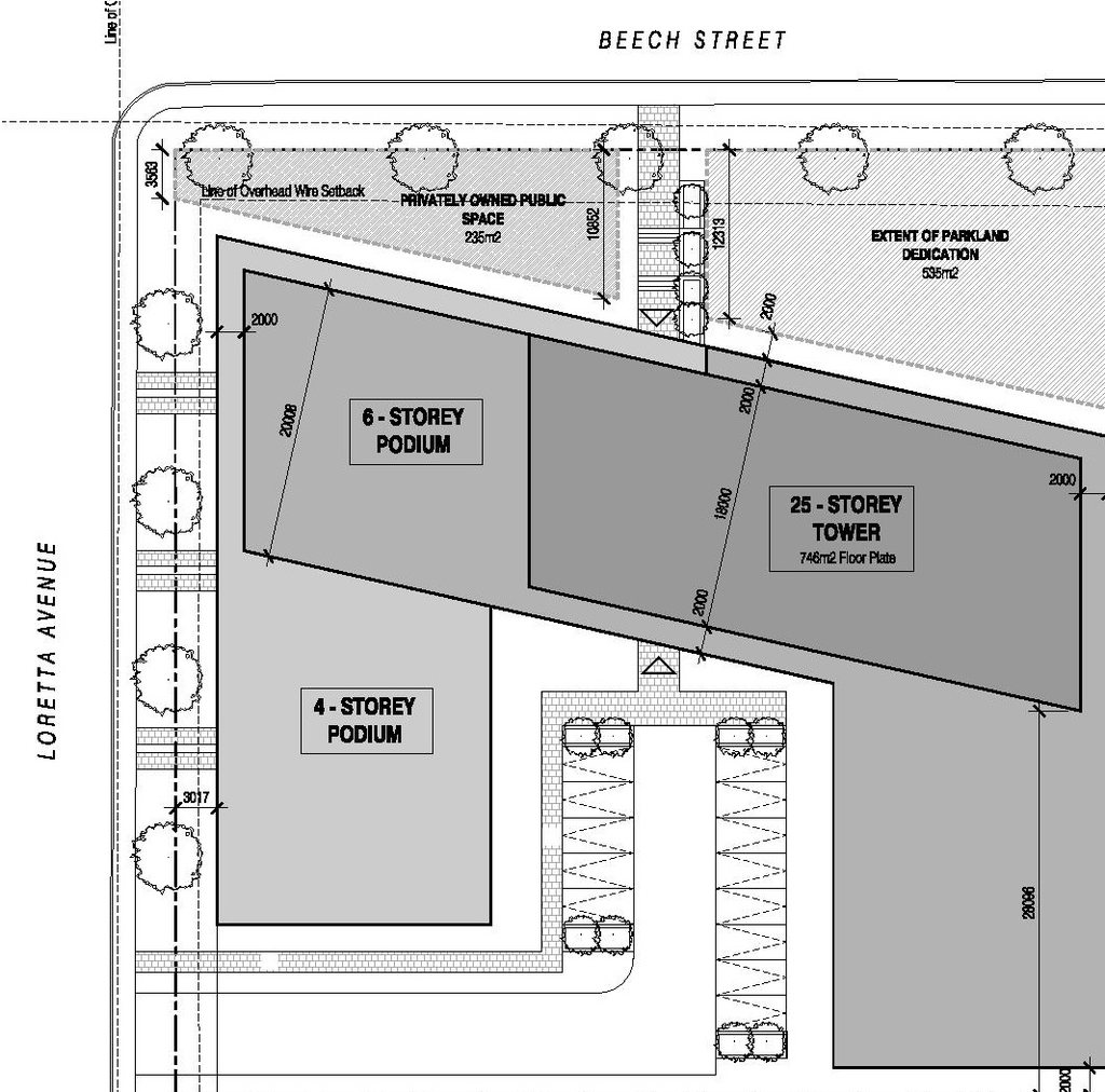
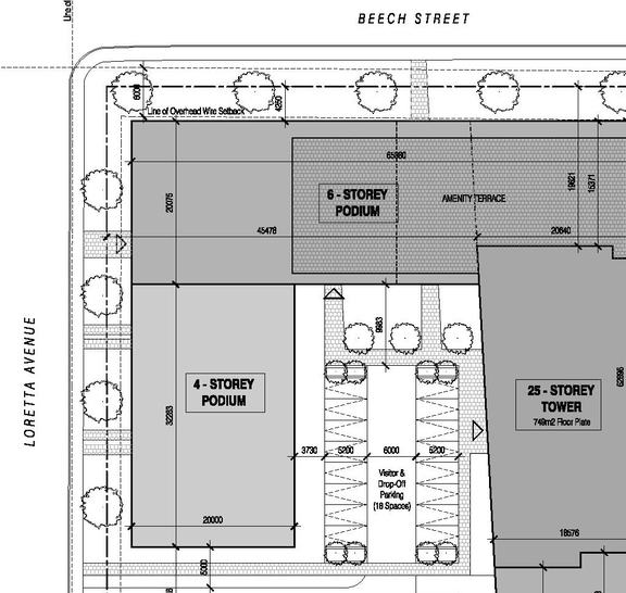
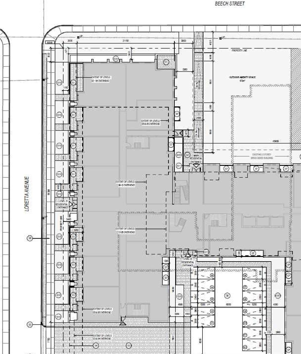
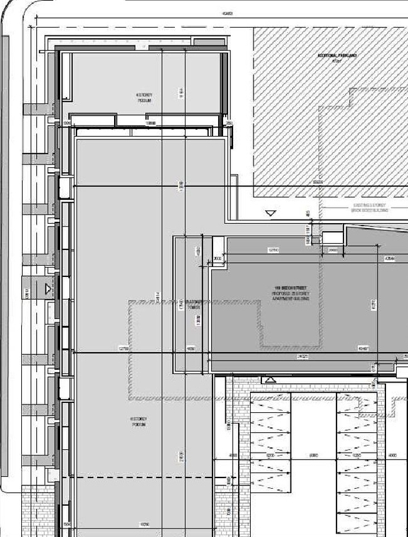
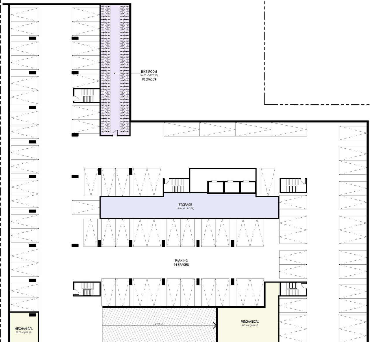
High-rise mixed-use building with a 6-storey podium and a total height of 25 storeys containing 392 dwelling units
Status
Active (Comment Period in Progress)
Building Scale (Max.)
Based on elevation drawings. Values may be approximate. See sources for exact figures.
High-rise · 25 storeys
· 80.79 m
Renders#
Location#
Select a marker to view the address.
Site Plans, Elevations and Floor Plans#
Additional Information#
| Date Initiated | 2025-12-24 |
| Ward | Ward 15 - Jeff Leiper |
| Other IDs | D02-02-25-0103 |







































































