110-116 York St.#
Last updated: 2026-04-01 · ID: D01-01-25-0009
Summary#
The City of Ottawa has received an Official Plan and Zoning By-law Amendment and Site Plan Control application to permit a 17-storey high-rise hotel addition containing assembly space and approximately 154 hotel rooms.
Status
Inactive (No Appeal - Official Plan Amendment Adopted)
Building Scale (Max.)
Based on elevation drawings. Values may be approximate. See sources for exact figures.
High-rise · 17 storeys
· 58.66 m
Renders#
Location#
Select a marker to view the address.
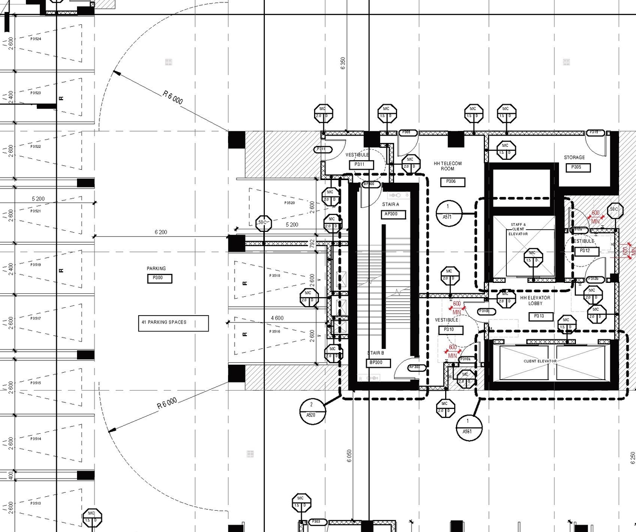
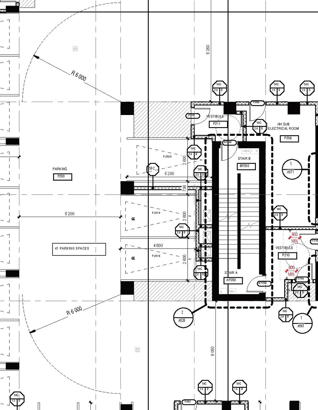
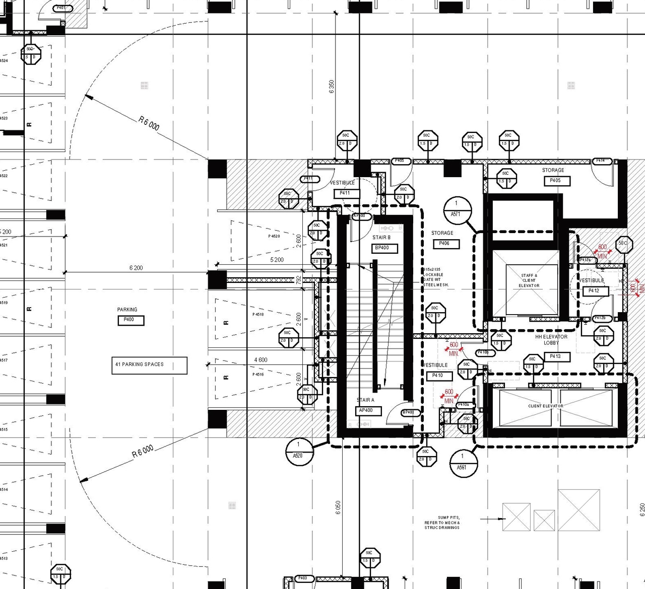
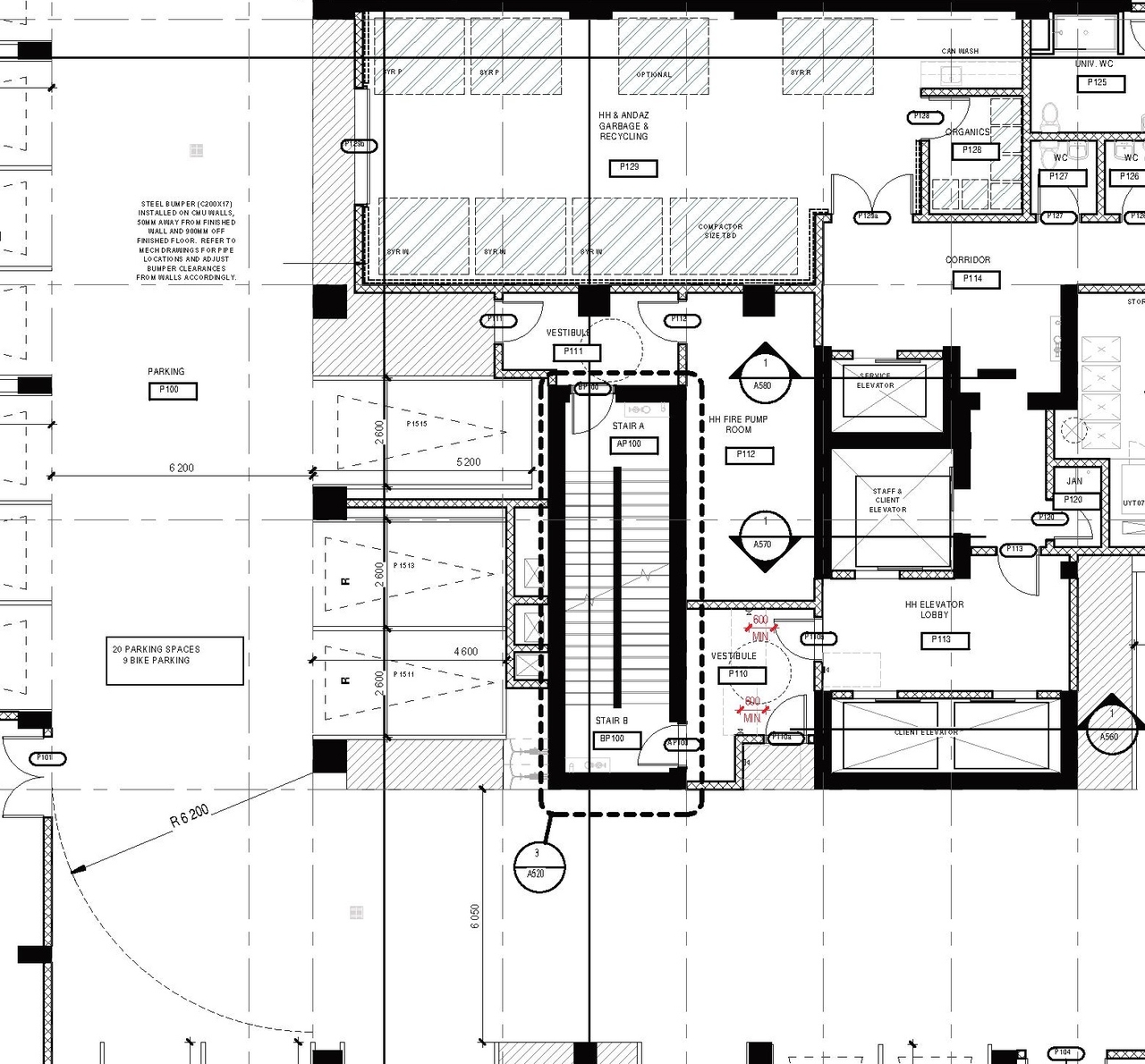
Site Plans, Elevations and Floor Plans#
Additional Information#
| Date Initiated | 2025-03-24 |
| Ward | Ward 12 - Stéphanie Plante |
| All Addresses | 110 York St. 116 York St. 137 George St. |
| Other IDs | D02-02-25-0020 |





























