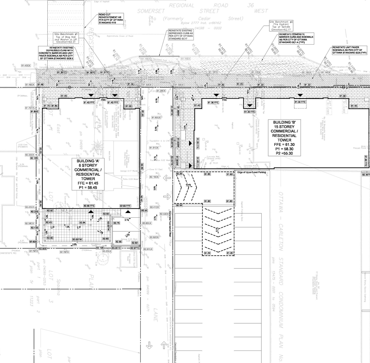
50 Bayswater Ave./1088 Somerset St.#
Last updated: 2025-04-30 · ID: D01-01-24-0016
Summary#
Mixed use 16-storey building (50 Bayswater) Mixed use 6-storey building (1066 Somerset)
Status
Inactive (No Appeal - Official Plan Amendment Adopted)
Building Scale (Max.)
Based on elevation drawings. Values may be approximate. See sources for exact figures.
High-rise · 16 storeys
· 50.1 m
Renders#
Location#
Select a marker to view the address.
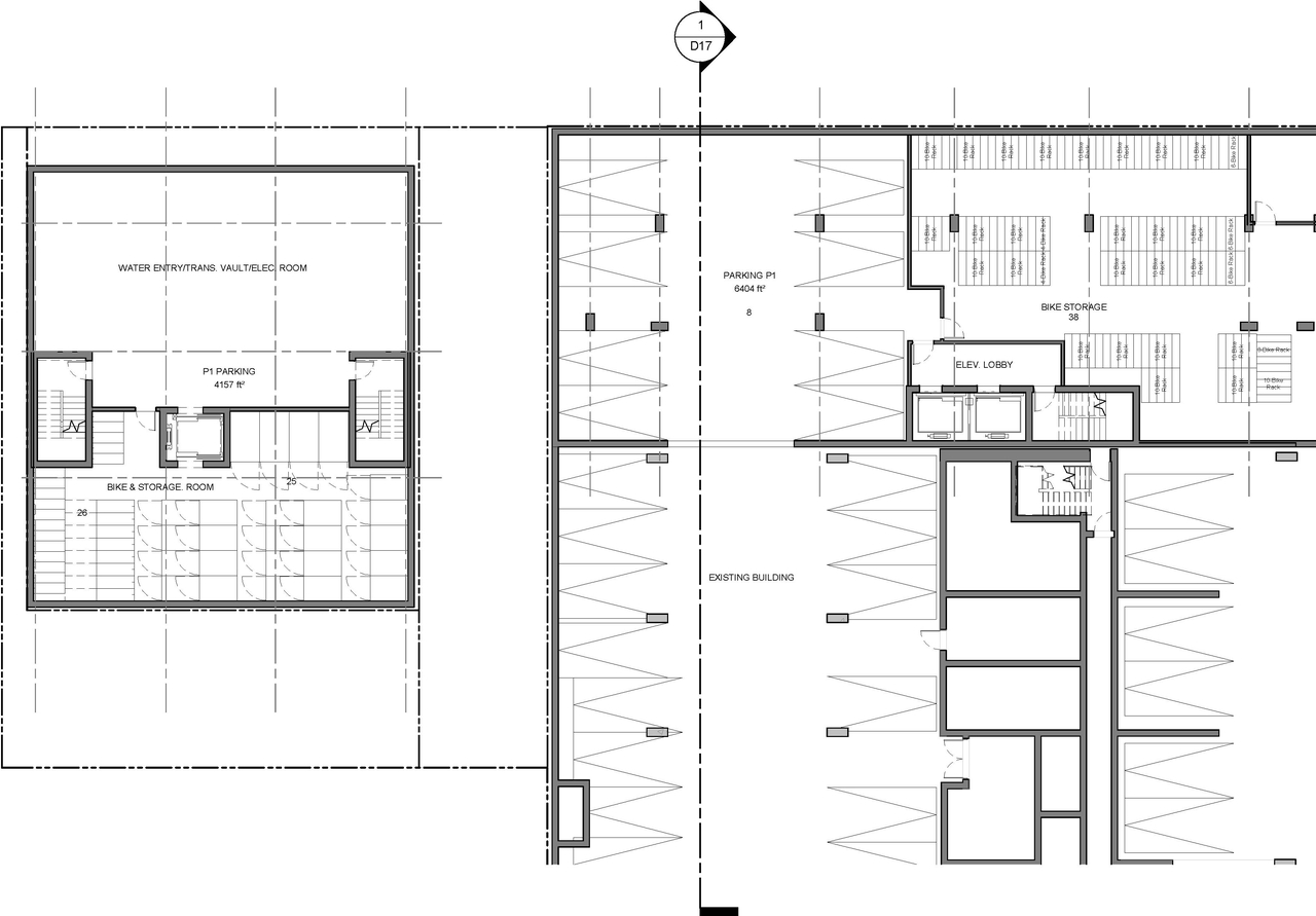
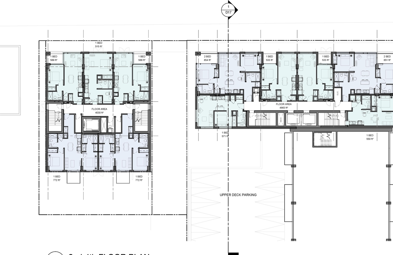
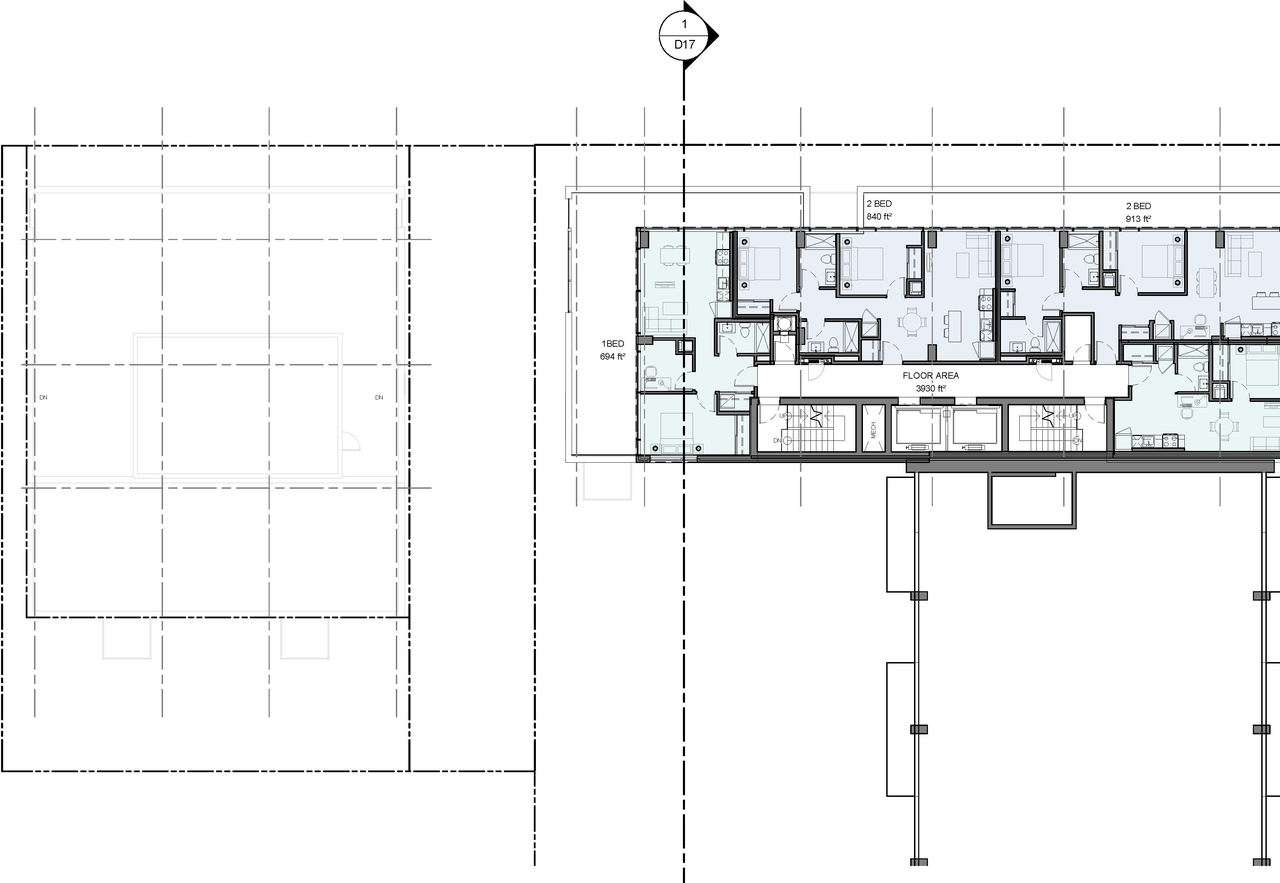
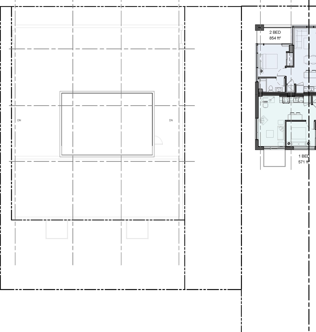
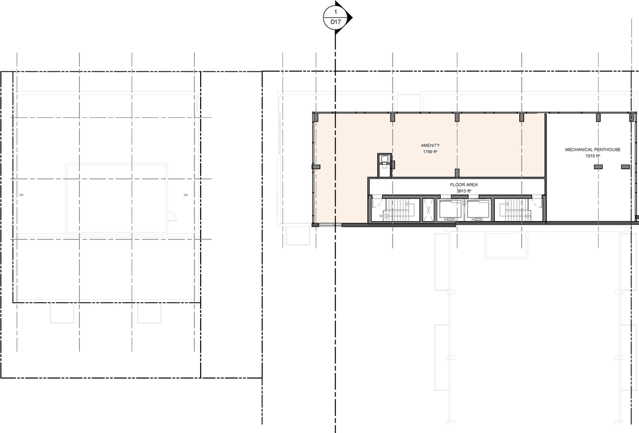
Site Plans, Elevations and Floor Plans#
Additional Information#
| Date Initiated | 2024-08-09 |
| Ward | Ward 15 - Jeff Leiper |





















