30 Cleary Ave.#
Last updated: 2025-05-01 ยท ID: D01-01-23-0014
Summary#
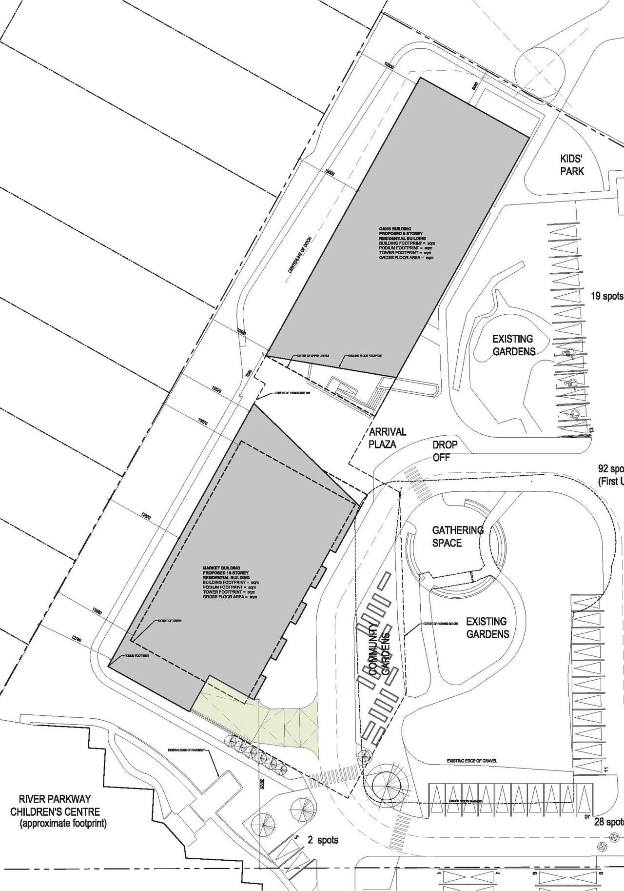
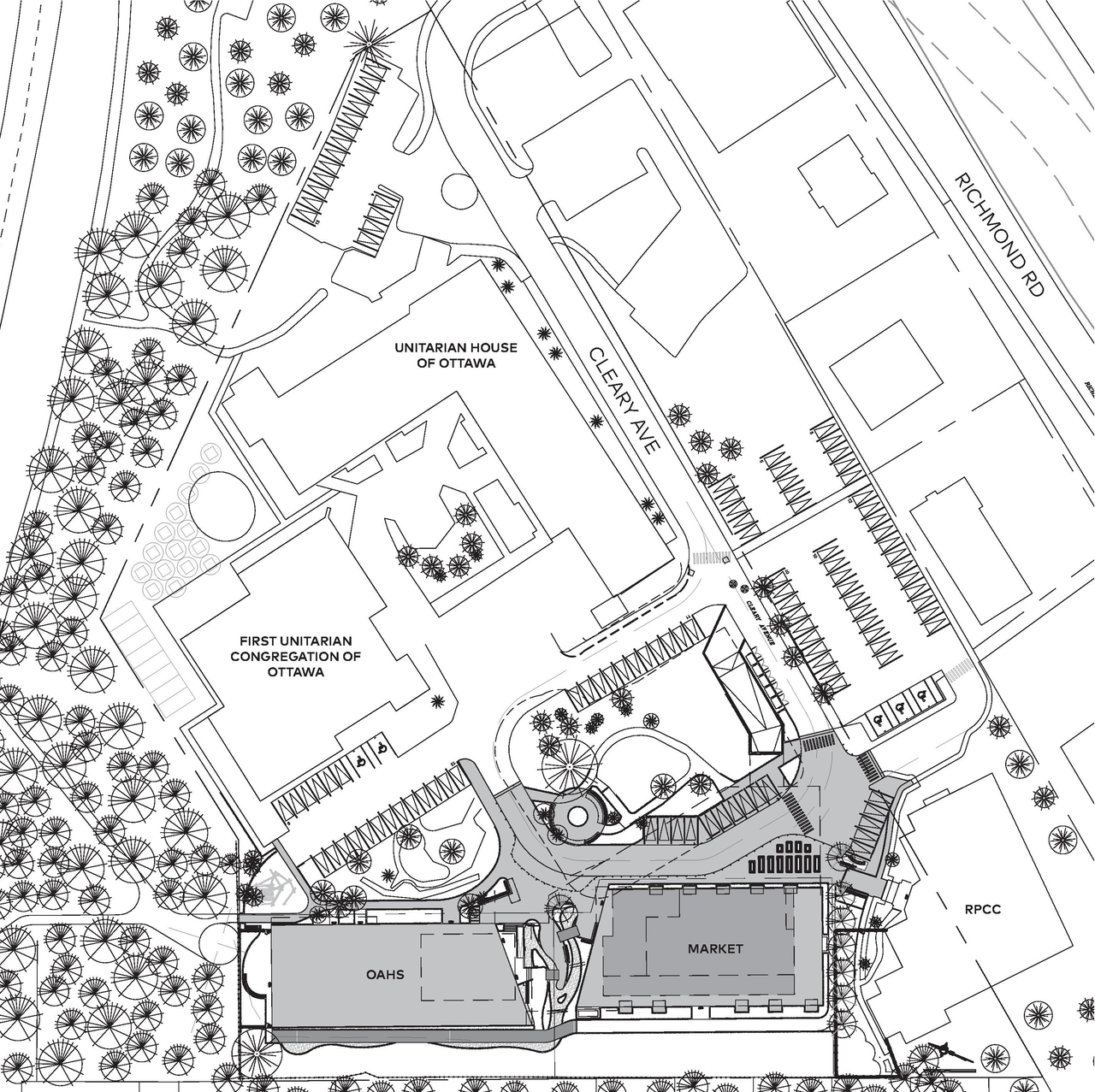
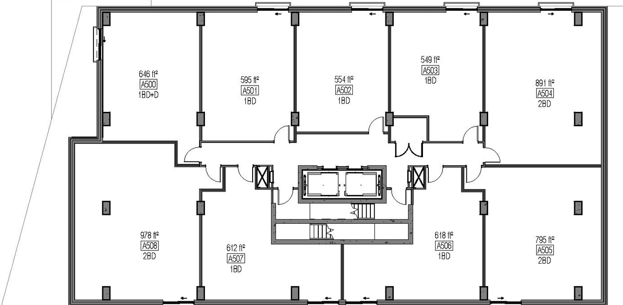
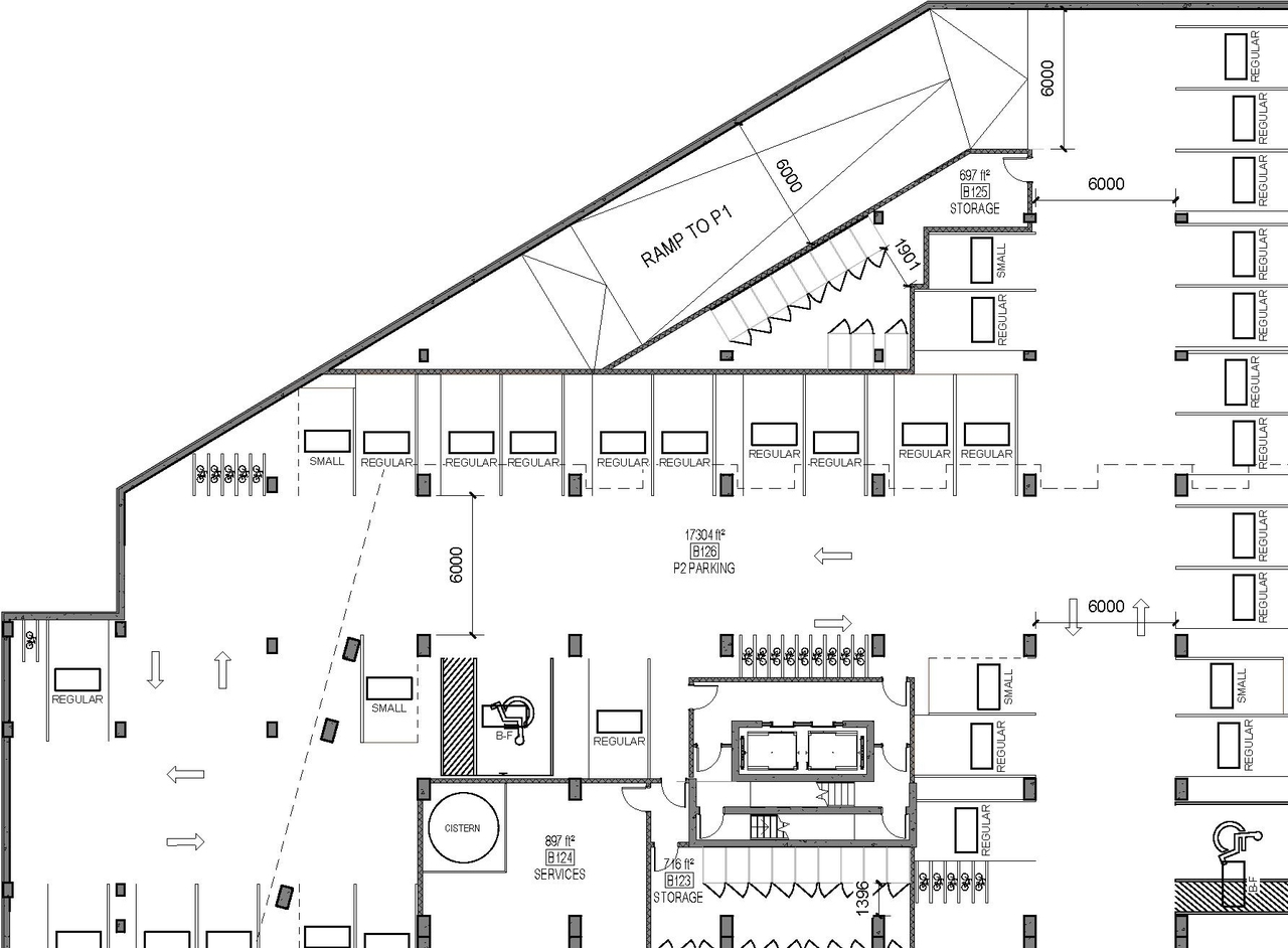
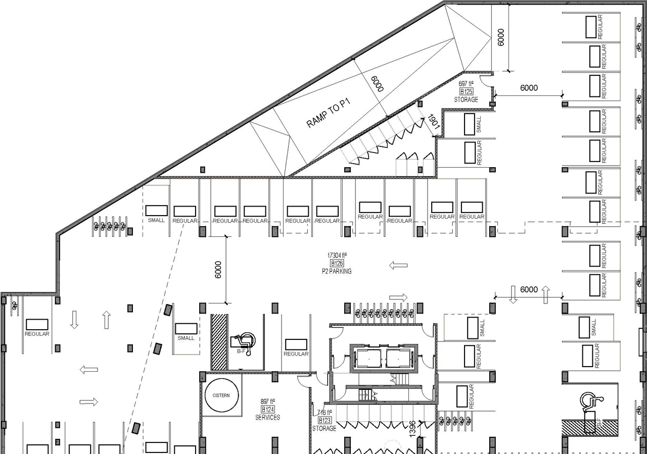
The City of Ottawa has received an Official Plan and Zoning By-law Amendment application to permit the development of a 6-storey and 16-storey residential buildings, containing a total of 214 units and 111 parking spaces.
Status
Inactive (Application Approved by OMB)
Renders#
Location#
Select a marker to view the address.
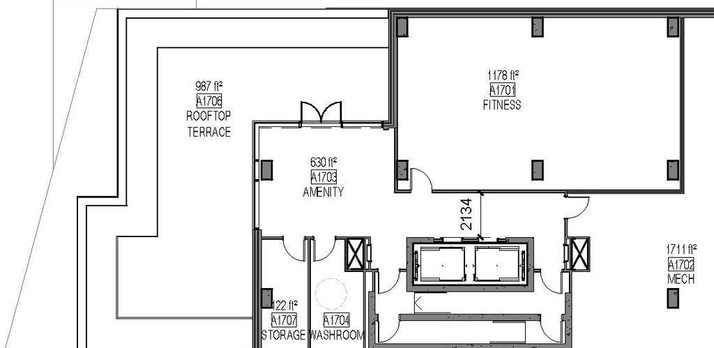
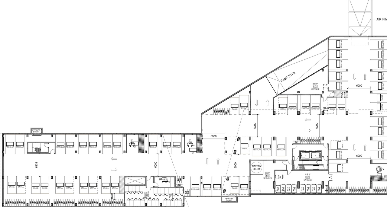
Site Plans, Elevations and Floor Plans#
Additional Information#
| Date Initiated | 2023-11-23 |
| Ward | Ward 7 - Theresa Kavanagh |




















































