Ottawa Development Projects

3030 St-Joseph#

Last updated: 2024-08-14 · ID: D01-01-23-0010

Summary#

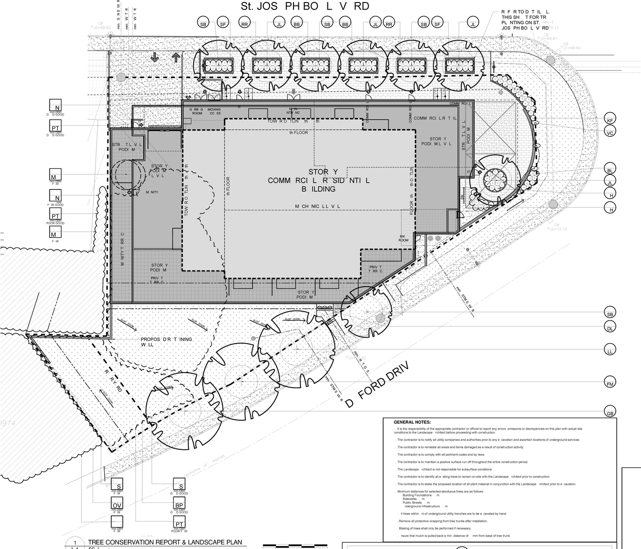
The City of Ottawa has received an Official Plan Amendment, Zoning By-law Amendment, and Site Plan Control application to construct an 18-storey mixed-use residential building, comprising 202 residential units with 260 m2 of commercial gross floor area at-grade. A total of 163 parking spaces are proposed below grade.

Status
Inactive (No Appeal - Official Plan Amendment Adopted)

Building Scale (Max.) Based on elevation drawings. Values may be approximate. See sources for exact figures.
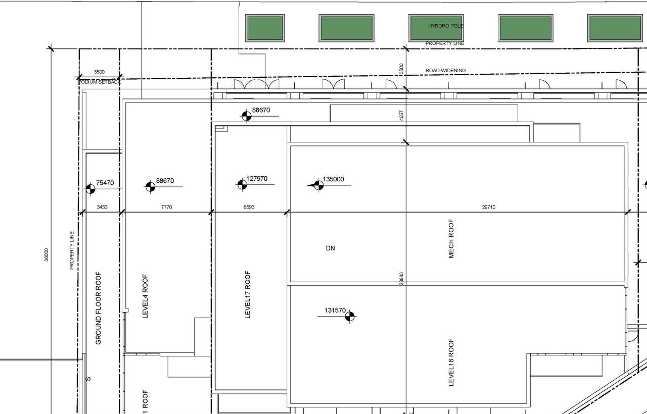
High-rise · 18 storeys · 62.6 m

Renders#

Location#

Select a marker to view the address.

Site Plans, Elevations and Floor Plans#

  • Image from page 21 of the file '2024-03-19 - Urban Design Review Panel Slide Deck - D01-01-23-0010'
  • Image from page 6 of the file '2023-06-16 - Context, Site, Floor, Elevation, Sections, 3D Views, Sunshade,Plans - D01-01-23-0010'
  • Construction site plan for project from page 7 of the file '2023-06-16 - Context, Site, Floor, Elevation, Sections, 3D Views, Sunshade,Plans - D01-01-23-0010'
  • Construction site plan for project from page 16 of the file '2024-03-19 - Urban Design Review Panel Slide Deck - D01-01-23-0010'
  • Construction site plan for project from page 2 of the file '2023-06-16 - Context, Site, Floor, Elevation, Sections, 3D Views, Sunshade,Plans - D01-01-23-0010'
  • Construction site plan for project from page 22 of the file '2024-03-19 - Urban Design Review Panel Slide Deck - D01-01-23-0010'
  • Construction site plan for project from page 28 of the file '2024-03-19 - Urban Design Review Panel Slide Deck - D01-01-23-0010'
  • Construction site plan for project from page 17 of the file '2024-03-19 - Urban Design Review Panel Slide Deck - D01-01-23-0010'
  • Construction site plan for project from page 28 of the file '2024-03-19 - Urban Design Review Panel Slide Deck - D01-01-23-0010'
  • Construction site plan for project from page 27 of the file '2024-03-19 - Urban Design Review Panel Slide Deck - D01-01-23-0010'
  • Construction site plan for project from page 5 of the file '2023-06-16 - Context, Site, Floor, Elevation, Sections, 3D Views, Sunshade,Plans - D01-01-23-0010'
  • Construction site plan for project from page 34 of the file '2024-03-19 - Urban Design Review Panel Slide Deck - D01-01-23-0010'
  • Construction site plan for project from page 29 of the file '2024-03-19 - Urban Design Review Panel Slide Deck - D01-01-23-0010'
  • Construction site plan for project from page 33 of the file '2024-03-19 - Urban Design Review Panel Slide Deck - D01-01-23-0010'
  • Construction site plan for project from page 29 of the file '2024-03-19 - Urban Design Review Panel Slide Deck - D01-01-23-0010'
  • Construction site plan for project from page 29 of the file '2024-03-19 - Urban Design Review Panel Slide Deck - D01-01-23-0010'
  • Construction site plan for project from page 32 of the file '2024-03-19 - Urban Design Review Panel Slide Deck - D01-01-23-0010'
  • Construction site plan for project from page 27 of the file '2024-03-19 - Urban Design Review Panel Slide Deck - D01-01-23-0010'
  • Construction site plan for project from page 29 of the file '2024-03-19 - Urban Design Review Panel Slide Deck - D01-01-23-0010'
  • Construction site plan for project from page 29 of the file '2024-03-19 - Urban Design Review Panel Slide Deck - D01-01-23-0010'
  • Construction site plan for project from page 27 of the file '2024-03-19 - Urban Design Review Panel Slide Deck - D01-01-23-0010'
  • Construction site plan for project from page 36 of the file '2024-03-19 - Urban Design Review Panel Slide Deck - D01-01-23-0010'
  • Construction site plan for project from page 36 of the file '2024-03-19 - Urban Design Review Panel Slide Deck - D01-01-23-0010'
  • Construction site plan for project from page 11 of the file '2023-06-16 - Context, Site, Floor, Elevation, Sections, 3D Views, Sunshade,Plans - D01-01-23-0010'
  • Construction site plan for project from page 36 of the file '2024-03-19 - Urban Design Review Panel Slide Deck - D01-01-23-0010'
  • Construction site plan for project from page 35 of the file '2024-03-19 - Urban Design Review Panel Slide Deck - D01-01-23-0010'
  • Construction site plan for project from page 35 of the file '2024-03-19 - Urban Design Review Panel Slide Deck - D01-01-23-0010'
  • Construction site plan for project from page 1 of the file '2024-03-19 - Urban Design Review Panel Recommendations - D01-01-23-0010'
  • Construction site plan for project from page 12 of the file '2024-03-19 - Urban Design Review Panel Slide Deck - D01-01-23-0010'
  • Construction site plan for project from page 10 of the file '2024-03-19 - Urban Design Review Panel Slide Deck - D01-01-23-0010'
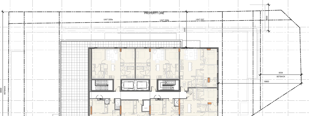
  • Floor plan for project from page 5 of the file '2023-06-16 - Context, Site, Floor, Elevation, Sections, 3D Views, Sunshade,Plans - D01-01-23-0010'
  • Image from page 21 of the file '2024-03-19 - Urban Design Review Panel Slide Deck - D01-01-23-0010'
  • Image from page 6 of the file '2023-06-16 - Context, Site, Floor, Elevation, Sections, 3D Views, Sunshade,Plans - D01-01-23-0010'
  • Construction site plan for project from page 7 of the file '2023-06-16 - Context, Site, Floor, Elevation, Sections, 3D Views, Sunshade,Plans - D01-01-23-0010'
  • Construction site plan for project from page 16 of the file '2024-03-19 - Urban Design Review Panel Slide Deck - D01-01-23-0010'
  • Construction site plan for project from page 2 of the file '2023-06-16 - Context, Site, Floor, Elevation, Sections, 3D Views, Sunshade,Plans - D01-01-23-0010'
  • Construction site plan for project from page 22 of the file '2024-03-19 - Urban Design Review Panel Slide Deck - D01-01-23-0010'
  • Construction site plan for project from page 28 of the file '2024-03-19 - Urban Design Review Panel Slide Deck - D01-01-23-0010'
  • Construction site plan for project from page 17 of the file '2024-03-19 - Urban Design Review Panel Slide Deck - D01-01-23-0010'
  • Construction site plan for project from page 28 of the file '2024-03-19 - Urban Design Review Panel Slide Deck - D01-01-23-0010'
  • Construction site plan for project from page 27 of the file '2024-03-19 - Urban Design Review Panel Slide Deck - D01-01-23-0010'
  • Construction site plan for project from page 5 of the file '2023-06-16 - Context, Site, Floor, Elevation, Sections, 3D Views, Sunshade,Plans - D01-01-23-0010'
  • Construction site plan for project from page 34 of the file '2024-03-19 - Urban Design Review Panel Slide Deck - D01-01-23-0010'
  • Construction site plan for project from page 29 of the file '2024-03-19 - Urban Design Review Panel Slide Deck - D01-01-23-0010'
  • Construction site plan for project from page 33 of the file '2024-03-19 - Urban Design Review Panel Slide Deck - D01-01-23-0010'
  • Construction site plan for project from page 29 of the file '2024-03-19 - Urban Design Review Panel Slide Deck - D01-01-23-0010'
  • Construction site plan for project from page 29 of the file '2024-03-19 - Urban Design Review Panel Slide Deck - D01-01-23-0010'
  • Construction site plan for project from page 32 of the file '2024-03-19 - Urban Design Review Panel Slide Deck - D01-01-23-0010'
  • Construction site plan for project from page 27 of the file '2024-03-19 - Urban Design Review Panel Slide Deck - D01-01-23-0010'
  • Construction site plan for project from page 29 of the file '2024-03-19 - Urban Design Review Panel Slide Deck - D01-01-23-0010'
  • Construction site plan for project from page 29 of the file '2024-03-19 - Urban Design Review Panel Slide Deck - D01-01-23-0010'
  • Construction site plan for project from page 27 of the file '2024-03-19 - Urban Design Review Panel Slide Deck - D01-01-23-0010'
  • Construction site plan for project from page 36 of the file '2024-03-19 - Urban Design Review Panel Slide Deck - D01-01-23-0010'
  • Construction site plan for project from page 36 of the file '2024-03-19 - Urban Design Review Panel Slide Deck - D01-01-23-0010'
  • Construction site plan for project from page 11 of the file '2023-06-16 - Context, Site, Floor, Elevation, Sections, 3D Views, Sunshade,Plans - D01-01-23-0010'
  • Construction site plan for project from page 36 of the file '2024-03-19 - Urban Design Review Panel Slide Deck - D01-01-23-0010'
  • Construction site plan for project from page 35 of the file '2024-03-19 - Urban Design Review Panel Slide Deck - D01-01-23-0010'
  • Construction site plan for project from page 35 of the file '2024-03-19 - Urban Design Review Panel Slide Deck - D01-01-23-0010'
  • Construction site plan for project from page 1 of the file '2024-03-19 - Urban Design Review Panel Recommendations - D01-01-23-0010'
  • Construction site plan for project from page 12 of the file '2024-03-19 - Urban Design Review Panel Slide Deck - D01-01-23-0010'
  • Construction site plan for project from page 10 of the file '2024-03-19 - Urban Design Review Panel Slide Deck - D01-01-23-0010'
  • Floor plan for project from page 5 of the file '2023-06-16 - Context, Site, Floor, Elevation, Sections, 3D Views, Sunshade,Plans - D01-01-23-0010'

Additional Information#

Date Initiated2023-06-15
WardWard 1 - Matthew Luloff

Documents#

TypeDocument
Application Summary2023-07-18 - Application Summary - D01-01-23-0010
Architectural Plans2024-08-01 - Plan & Profile STA 2+000 to 2+040 - D01-01-23-0010
Architectural Plans2024-08-01 - Plan & Profile STA 1+000 to 1+063 - D01-01-23-0010
Architectural Plans2024-08-01 - Architectural Plans - D01-01-23-0010
Architectural Plans2024-03-19 - Plan and Profile - D01-01-23-0010
Architectural Plans2024-03-19 - Plan and Profile - (2) - D01-01-23-0010
Architectural Plans2024-03-19 - Architecture Plans - D01-01-23-0010
Architectural Plans2024-03-19 - Appendix Landscape Plan - D01-01-23-0010
Architectural Plans2023-06-15 - Site Plan - D01-01-23-0010
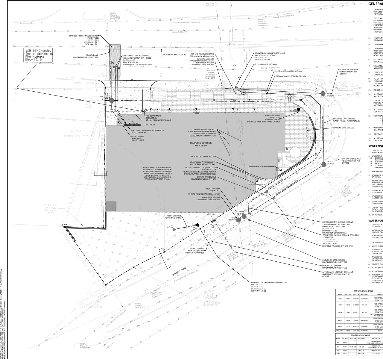
Civil Engineering Report2024-03-19 - Civil Plans - D01-01-23-0010
Design Brief2024-03-19 - Urban Design Review Panel Report - D01-01-23-0010
Design Brief2024-03-19 - Urban Design Review Panel Recommendations - D01-01-23-0010
Design Brief2024-03-19 - Urban Design Review Panel Slide Deck - D01-01-23-0010
Electrical Plan2024-03-19 - ELECTRICAL SITE PLAN - D01-01-23-0010
Environmental2023-06-15 - Phase I Environmental Site Assessment - D01-01-23-0010
Environmental2023-06-15 - Phase I Environmental Site Assessment - D01-01-23-0010
Geotechnical Report2024-08-01 - Grading, Drainage and Erosion & Sediment Control Plan - D01-01-23-0010
Geotechnical Report2023-06-15 - GRADING, DRAINAGE AND EROSION & SEDIMENT CONTROL PLAN - D01-01-23-0010 (2)
Geotechnical Report2023-06-15 - GRADING, DRAINAGE AND EROSION & SEDIMENT CONTROL PLAN - D01-01-23-0010
Geotechnical Report2023-06-15 - Geotechnical Investigation - D01-01-23-0010
Noise Study2023-06-15 - Roadway Traffic Noise - D01-01-23-0010
Notification2023-08-14 - Notification Sign Up Form - D01-01-23-0010
Planning2024-03-19 - Planning Rationale - D01-01-23-0010
Planning2023-06-15 - Planning Rationale and Design Brief -D02-02-23-0057
Rendering2023-06-16 - Context, Site, Floor, Elevation, Sections, 3D Views, Sunshade,Plans - D01-01-23-0010
Site Servicing2024-08-01 - Site Servicing Plan - D01-01-23-0010
Site Servicing2024-08-01 - Servicing & SWM Report - D01-01-23-0010
Site Servicing2024-03-19 - Site Servicing Plan - D01-01-23-0010
Site Servicing2024-03-19 - SERVICING AND STORMWATER MANAGEMENT REPORT - D01-01-23-0010
Site Servicing2023-06-15 - SERVICING & STORMWATER MANAGEMENT REPORT - D01-01-23-0010
Surveying2023-06-15 - Topographical Plan - D01-01-23-0010
Transportation Analysis2024-03-19 - Transportation Impact Assessment - D01-01-23-0010
Transportation Analysis2023-06-15 - Transportation Impact Assessment - D01-01-23-0010
Tree Information and Conservation2024-08-01 - TCR & Landscape Plan - D01-01-23-0010
Tree Information and Conservation2024-03-19 - Tree Conservation Report and Landscape Plan - D01-01-23-0010
Tree Information and Conservation2023-06-16 - Tree Conservation Report and Landscape Plan - D01-01-23-0010
Wind Study2023-06-15 - Pedestrian Level Wind Study - D01-01-23-0010
2024-03-19 - Landslide Hazard Assessment - D01-01-23-0010
2024-03-19 - Hydro Wire Section - D01-01-23-0010
2023-06-15 - SETBACK Schedule - D01-01-23-0010