70-80 Woodridge Cres.#
Last updated: 2024-08-14 · ID: D01-01-22-0004
Summary#
The Official Plan Amendment would amend Section 3.6.1 General Urban Area Site Specific Exception 17, to allow for high-rise buildings up to 40-storeys and remove the requirement to develop a Secondary Plan.
Status
Inactive (No Appeal - Official Plan Amendment Adopted)
Renders#
Location#
Select a marker to view the address.
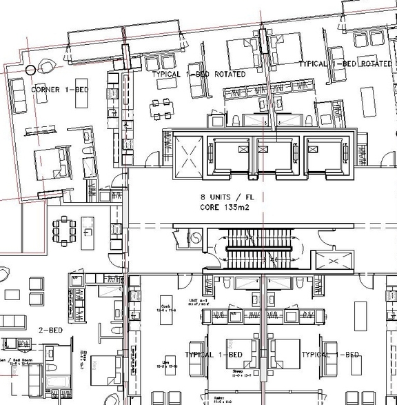
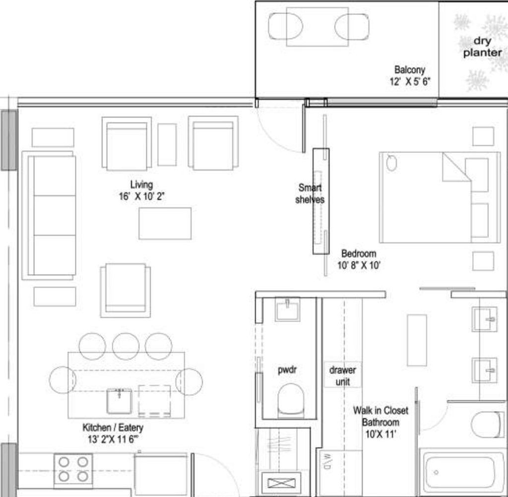
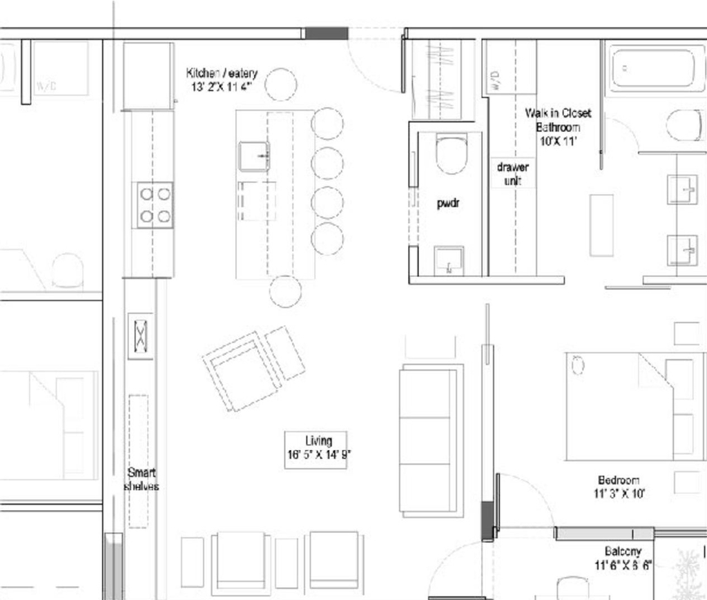
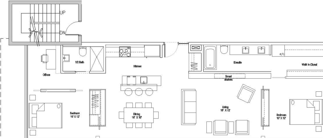
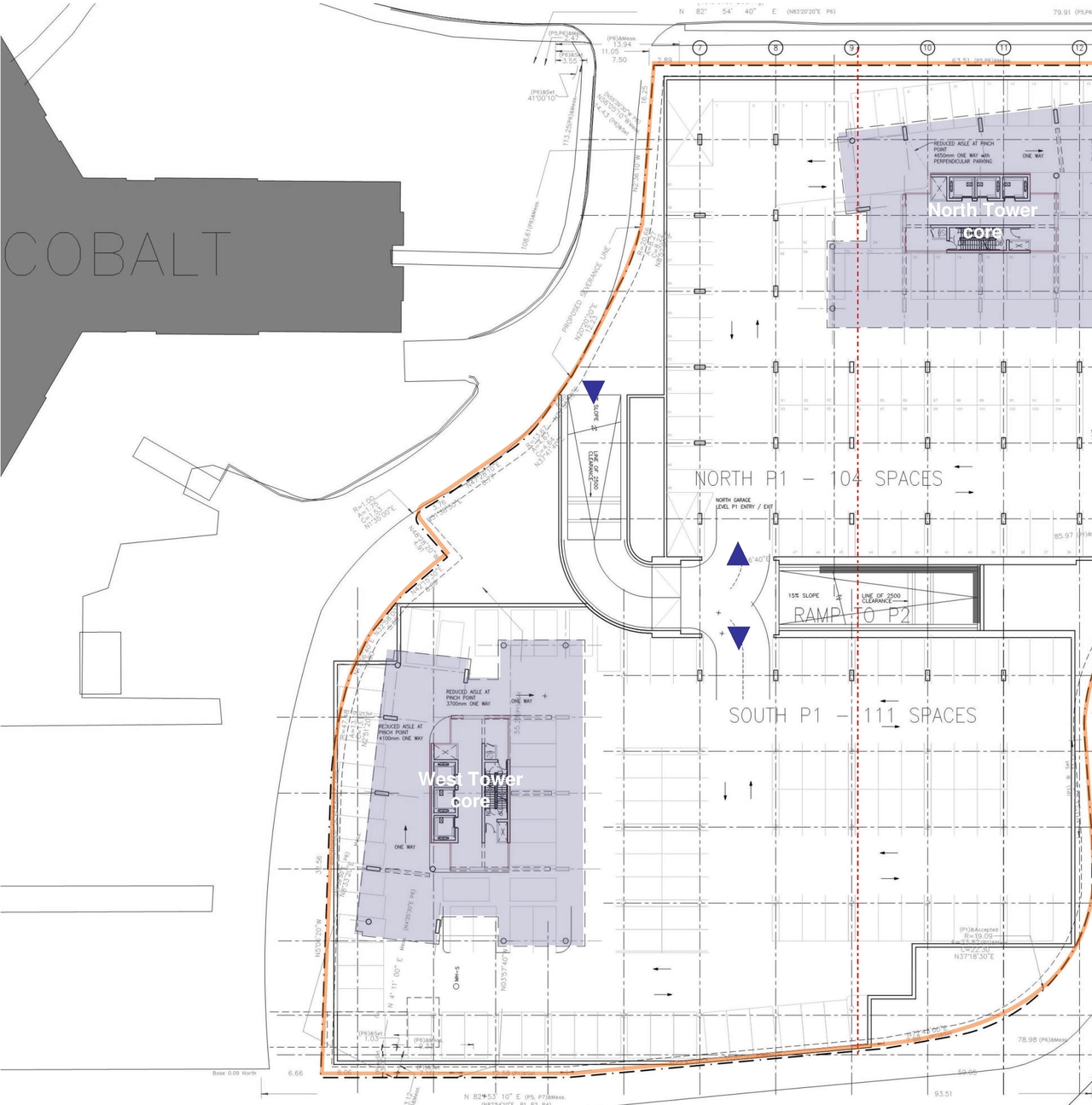
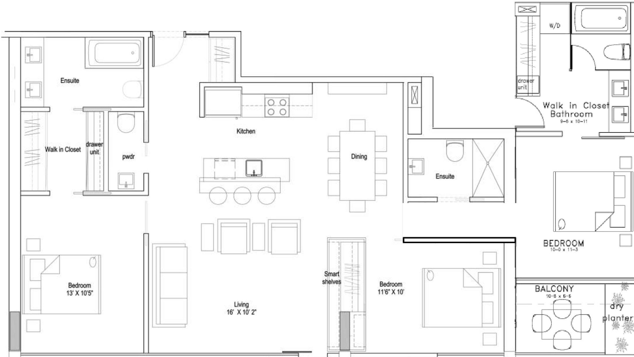
Site Plans, Elevations and Floor Plans#
Additional Information#
| Date Initiated | 2022-03-24 |
| Ward | Ward 7 - Theresa Kavanagh |
| All Addresses | 70 Woodridge Cres. 80 Woodridge Cres. |







































































