1400 Bank St.#
Last updated: 2022-03-14 · ID: D01-01-21-0026
Summary#
An Official Plan Amedment is required to redesignate the subject property as a node within the Bank Street Secondary Plan and amend the provisinsof the Arterial Mainstreet Zone to enable the development of a sixteen-storey mixed use building on the subject property.
Status
File Pending (Application File Pending)
Building Scale (Max.)
Based on elevation drawings. Values may be approximate. See sources for exact figures.
High-rise · 16 storeys
· 53.6 m
Location#
Select a marker to view the address.
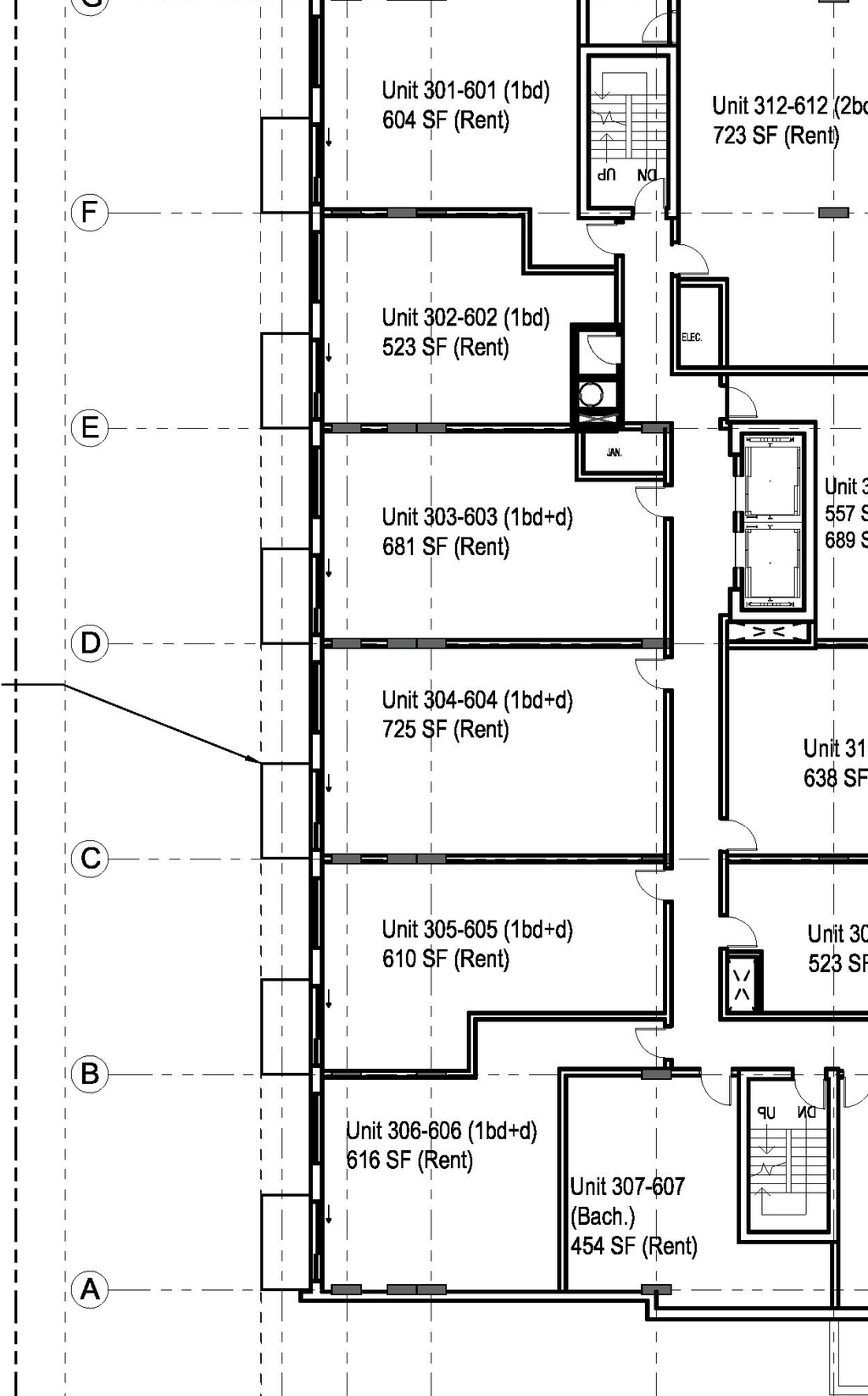
Site Plans, Elevations and Floor Plans#
Additional Information#
| Date Initiated | 2021-11-24 |
| Ward | Ward 17 - Shawn Menard |
Documents#
Related Projects#
| Project | Last Updated | Date Initiated |
|---|---|---|
1400 Bank St.
D02-02-21-0145 | 2022-03-14 | 2021-11-24 |





