Ottawa Development Projects

1987 Robertson Rd.#

Last updated: 2026-02-27 ยท ID: D01-01-21-0021

Summary#

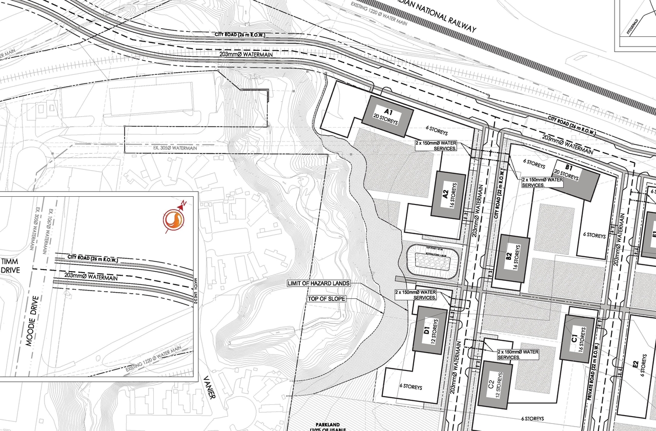
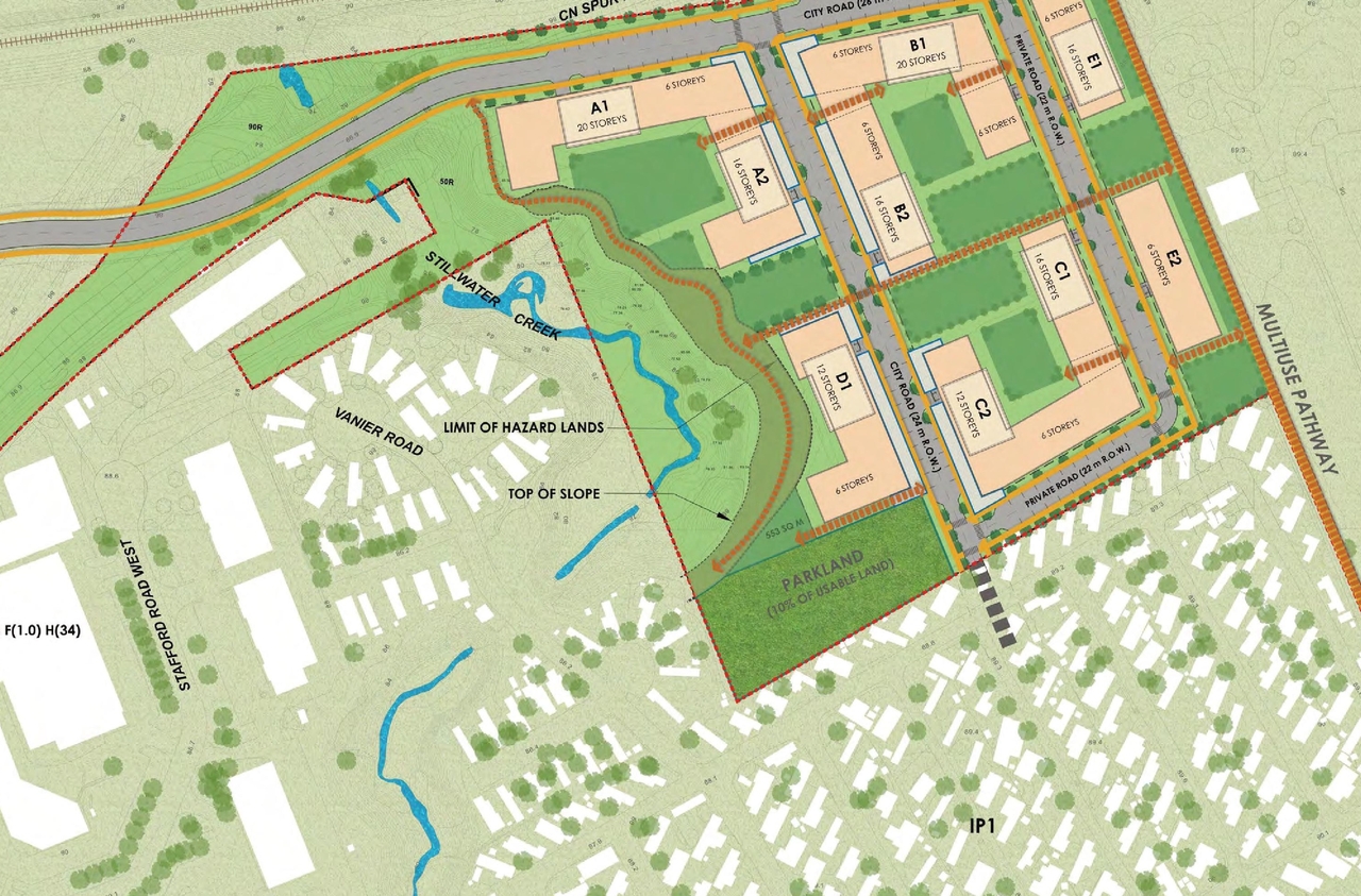
The City of Ottawa has received an Official Plan and Zoning By-law Amendment application to establish a Secondary Plan for a mixed-use development of up to 20-storeys, building setbacks, minimum and maximum parking, bicycle and landscaping requirements. The subject parcel is approximately 9.63 hectares and is currently a former industrial property used today by a rental supply company. Directly south is the Bellwood Estates mobile home community, which has an area of approximately 12.22 hectares and contains approximately 250 residential dwellings.

Status
Active (OMB Mediation Held)

Renders#

Location#

Select a marker to view the address.

Site Plans, Elevations and Floor Plans#

Additional Information#

Date Initiated2021-10-13
WardWard 8 - Laine Johnson

Documents#

TypeDocument
Application Summary2021-10-26 - Application Summary - D01-01-21-0021
Architectural Plans2024-03-06 - MASTER PLAN - D01-01-21-0021
Architectural Plans2023-04-26 - Watermain Servicing Plan - D01-01-21-0021 and D02-02-21-0120
Architectural Plans2023-04-26 - SANITARY SEWER NETWORK AND DRAINAGE PLAN - D01-01-21-0021 and D02-02-21-0120
Architectural Plans2023-04-26 - Master Plan - - D01-01-21-0021 and D02-02-21-0120
Architectural Plans2023-04-26 - Secondary Plan - D01-01-21-0021 and D02-02-21-0120
Architectural Plans2022-04-04 - Conceptual Site Plan Package - D01-01-21-0021
Architectural Plans2021-10-13 - Site Plan Analysis 2 - D01-01-21-0021
Architectural Plans2021-10-13 - Site Plan Analysis - D01-01-21-0021
Architectural Plans2021-10-13 - Sanitary Sewer Network and Drainage Plan - D01-01-21-0021
Architectural Plans2021-10-13 - Master Plan - D01-01-21-0021
Design Brief2021-11-24 - Applicant UDRP Presentation - D01-01-21-0021
Environmental2024-03-06 - Environmental Impact Statement - D01-01-21-0021
Environmental2023-04-26 - Phase II Environmental Site Assessment - D01-01-21-0021 and D02-02-21-0120
Environmental2023-04-26 - Environmental Impact Statement - D01-01-21-0021 and D02-02-21-0120
Environmental2022-04-04 - Phase I Environmental Site Assessment - D01-01-21-0021
Environmental2021-10-13 - Phase 2 Environmental Site Assessment 2 - D01-01-21-0021
Environmental2021-10-13 - Phase 2 Environmental Site Assessment - D01-01-21-0021
Environmental2021-10-13 - Phase 1 Environmental Site Assessment - D01-01-21-0021
Environmental2021-10-13 - Environmental Impact Statement - D01-01-21-0021
Existing Conditions2024-03-06 - EXISTING STORM DRAINAGE PLAN - D01-01-21-0021
Existing Conditions2023-04-26 - EXISTING STORM DRAINAGE PLAN - D01-01-21-0021 and D02-02-21-0120
Geotechnical Report2024-03-06 - Grading Plan - D01-01-21-00212024-03-06 - Grading Plan - D01-01-21-0021
Geotechnical Report2024-03-06 - Geotechnical Investigation - D01-01-21-0021
Geotechnical Report2023-04-26 - Grading Plan - D01-01-21-0021 and D02-02-21-0120
Geotechnical Report2023-04-26 - Geotechnical Investigation - D01-01-21-0021 and D02-02-21-0120
Geotechnical Report2021-10-13 - Grading Plan - D01-01-21-0021
Geotechnical Report2021-10-13 - Geotechnical - D01-01-21-0021
Noise Study2021-10-13 - Noise Brief - D01-01-21-0021
Planning2023-07-06 - Planning Rationale Addendum - D01-01-21-0021
Planning2022-04-04 - Planning Rationale Addendum - D01-01-21-0021
Site Servicing2023-04-26 - Site Servicing & Stormwater Management Report - D01-01-21-0021 and D02-02-21-0120
Site Servicing2021-10-13 - Servicing Report - D01-01-21-0021
Stormwater Management2024-03-06 - STORM SEWER NETWORK AND DRAINAGE PLAN - D01-01-21-0021
Stormwater Management2024-03-06 - Functional Site Servicing and Stormwater Management Report - D01-01-21-0021
Stormwater Management2023-04-26 - Storm Sewer Network & Drainage Plan - D01-01-21-0021 and D02-02-21-0120
Stormwater Management2022-04-04 - Functional Site Servicing & Stormwater Management Report - D01-01-21-0021
Stormwater Management2021-10-13 - Storm Sewer and Drainage Plan - D01-01-21-0021
Stormwater Management2021-10-13 - Storm Drainage Plan - D01-01-21-0021
Surveying2023-04-26 - Topographic Survey - D01-01-21-0021 and D02-02-21-0120
Surveying2021-10–13 - Survey - D01-01-21-0021
Transportation Analysis2021-10-13 - Transportation Impact Assessment - D01-01-21-0021
Tree Information and Conservation2023-04-26 - TREE CONSERVATION REPORT - D01-01-21-0021 and D02-02-21-0120
Tree Information and Conservation2022-04-04 - Tree Conservation Report - D01-01-21-0021
Tree Information and Conservation2021-10-13 - Tree Conservation Report - D01-01-21-0021
2024-03-06 - Watermain Servicing - D01-01-21-0021
2024-03-06 - SANITARY SEWER NETWORK AND DRAINAGE SYSTEM - D01-01-21-0021
2024-03-06 - Phase 1 - Environmental Site Assessment - D01-01-21-0021
2024-03-06 - Area Specific Policy - D01-01-21-0021
2023-04-26 - Proposed Building Height Schedule - D01-01-21-0021 and D02-02-21-0120
2023-04-26 - PEDESTRIAN WIND COMFORT ASSESSMENT - D01-01-21-0021 and D02-02-21-0120
2023-04-26 - Bylaw 42-59 - D01-01-21-0021 and D02-02-21-0120
2022-04-04 - Preliminary Geotechnical Investigation - D01-01-21-0021
2021-10-13- Public Consultation Strategy - D01-01-21-0021
2021-10-13 - Watermain Servicing - D01-01-21-0021