283-285 McLeod St.#
Last updated: 2023-12-19 · ID: D01-01-21-0014
Summary#
Proposed new residential building at 283 McLeod and conversion of the existing building at 285 McLeod to residential.
Status
Inactive (No Appeal - Official Plan Amendment Adopted)
Building Scale (Max.)
Based on elevation drawings. Values may be approximate. See sources for exact figures.
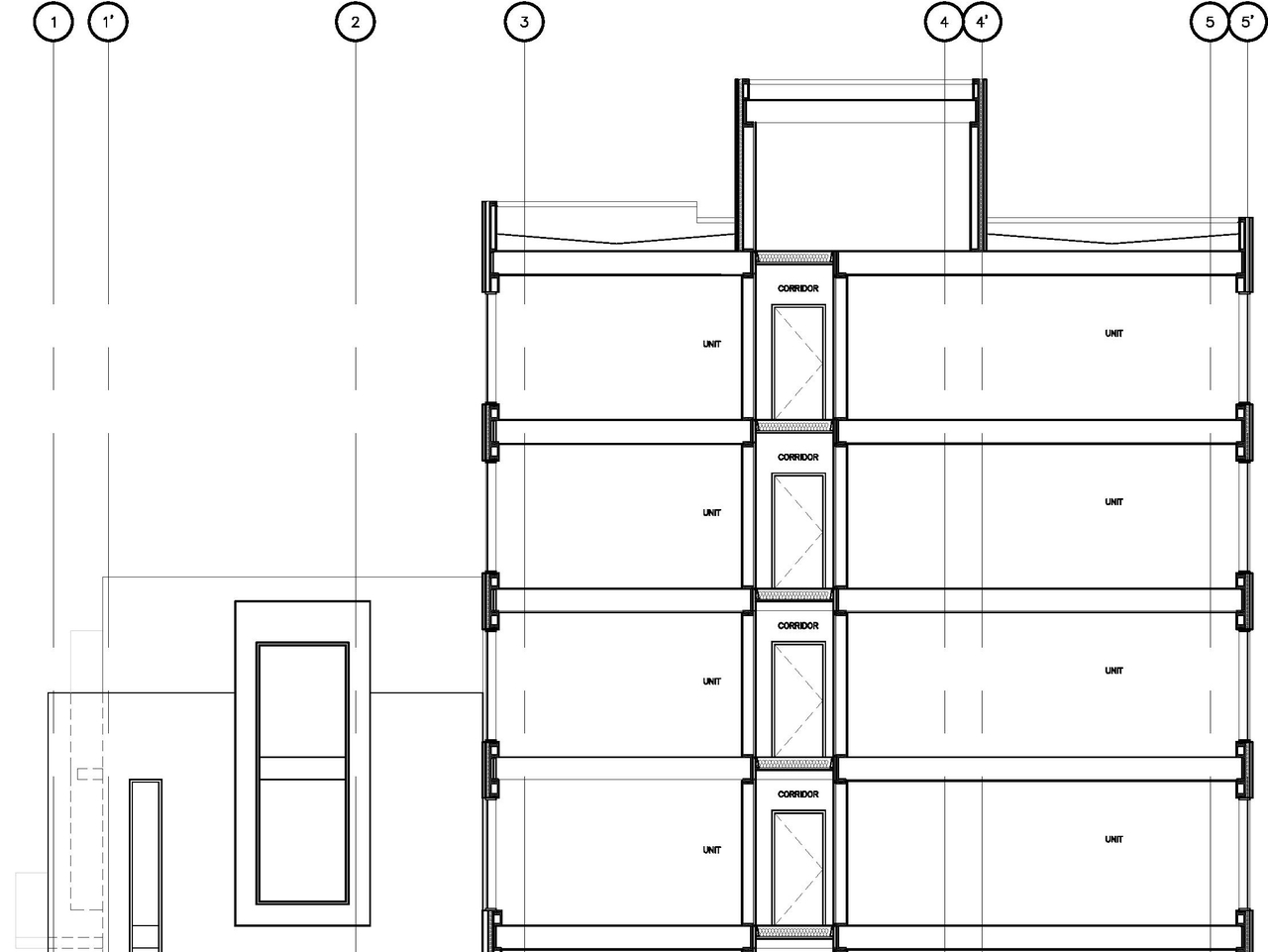
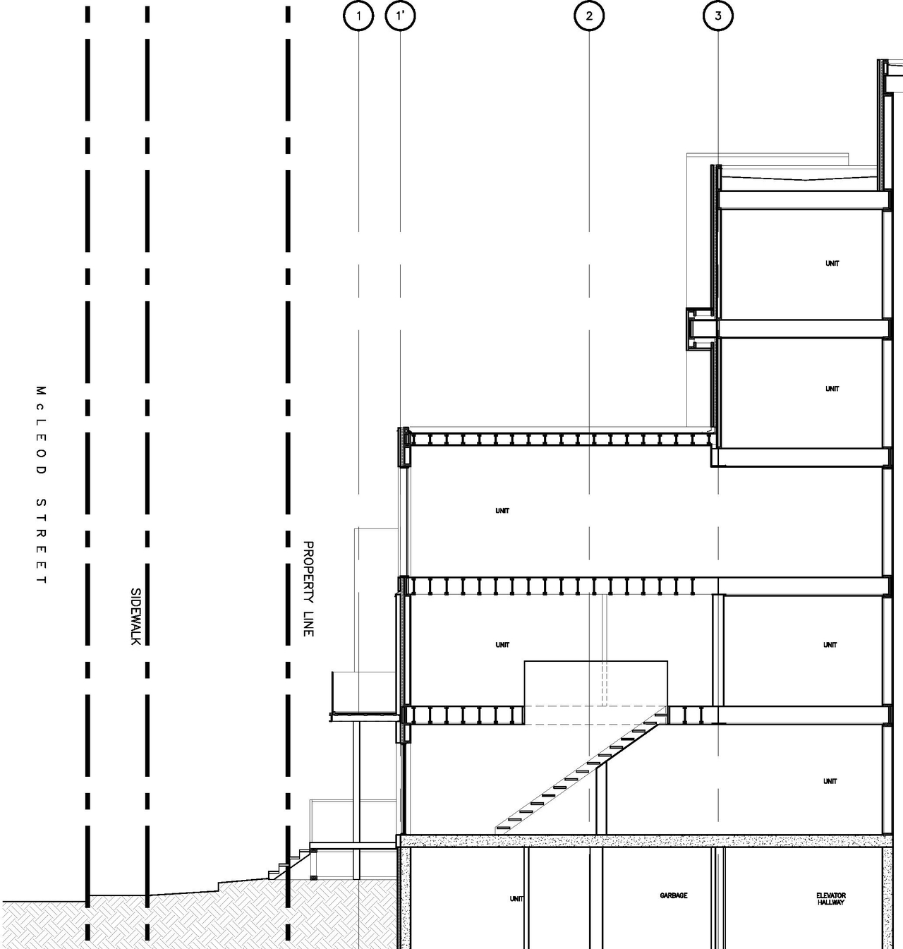
Mid-rise · 8 storeys
· 24.14 m
Renders#
Location#
Select a marker to view the address.
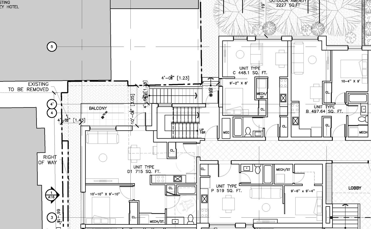
Site Plans, Elevations and Floor Plans#
Additional Information#
| Date Initiated | 2021-08-19 |
| Ward | Ward 14 - Ariel Troster |
| All Addresses | 283 McLeod St. 285 McLeod St. |












































