729 Ridgewood Ave.#
Last updated: 2021-10-08 · ID: D01-01-21-0008
Summary#
5 building proposed as residential with commercial component / parking and bicycle parking space
Status
File Pending (Application File Pending)
Building Scale (Max.)
Based on elevation drawings. Values may be approximate. See sources for exact figures.
High-rise · 20 storeys
· 66 m
Data Quality Note
Height was partially estimated using visual scale. This may be approximate.
Renders#
Location#
Select a marker to view the address.
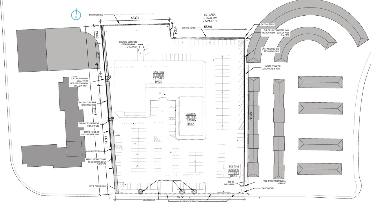
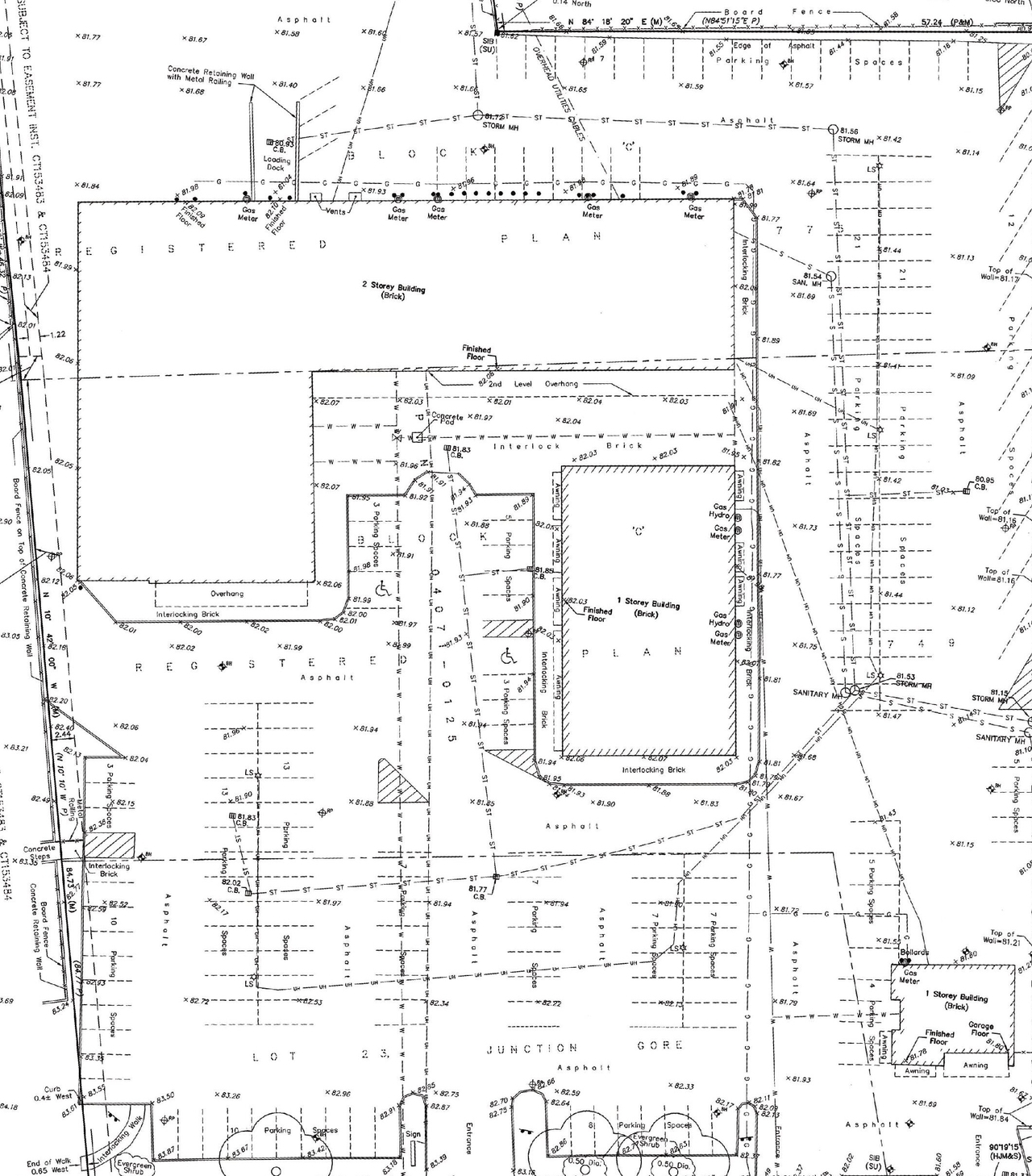
Site Plans, Elevations and Floor Plans#
Additional Information#
| Date Initiated | 2021-06-22 |
| Ward | Ward 16 - Riley Brockington |




























