1445-1451 Wellington St.#
Last updated: 2015-12-18 ยท ID: D01-01-13-0019
Summary#
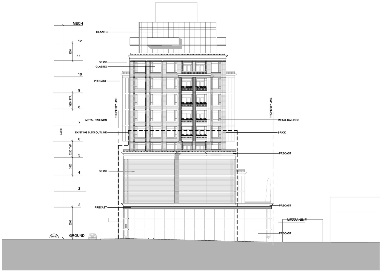
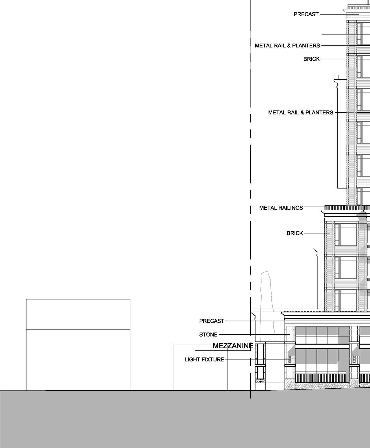
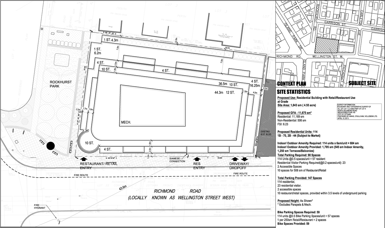
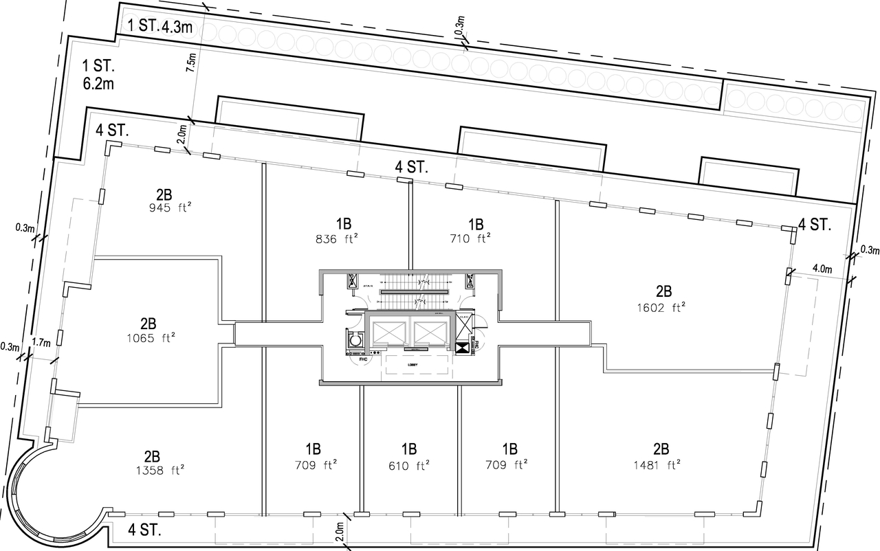
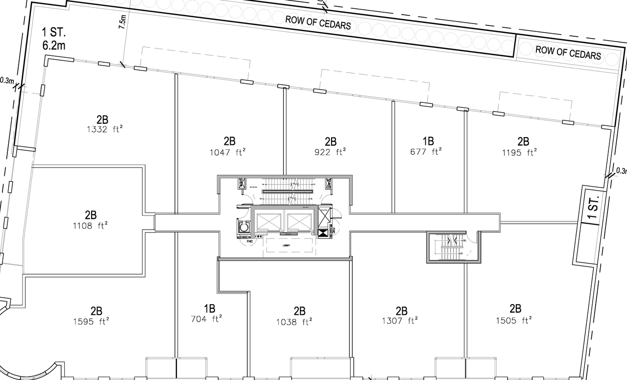
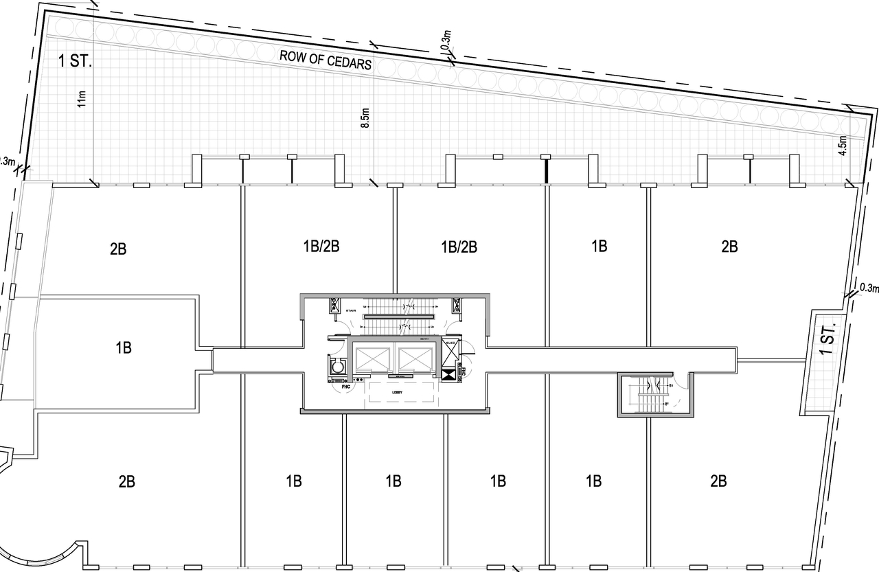
To develop a 12-storey mixed use building, with ground floor commercial and residential on upper floors.
Status
Post Approval (Application Approved by OMB - Agreement Pending)
Renders#
Location#
Select a marker to view the address.
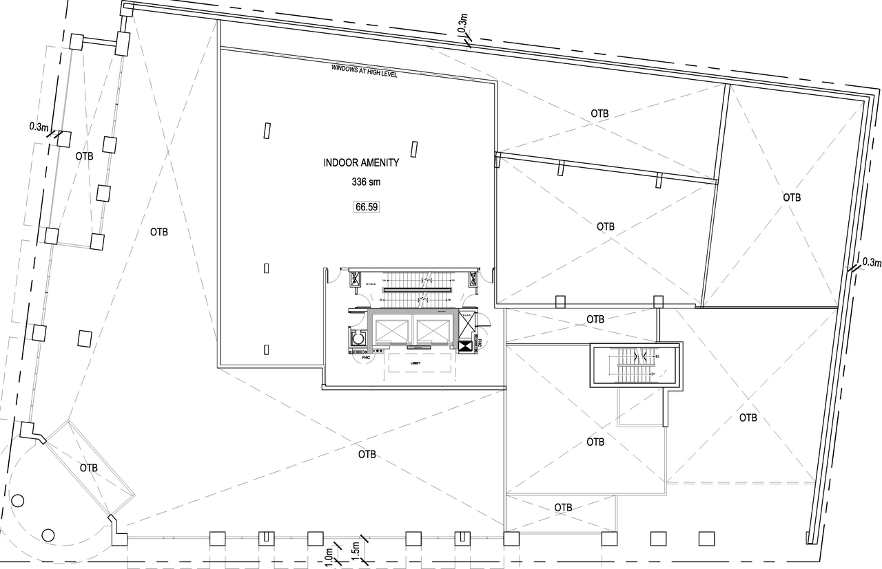
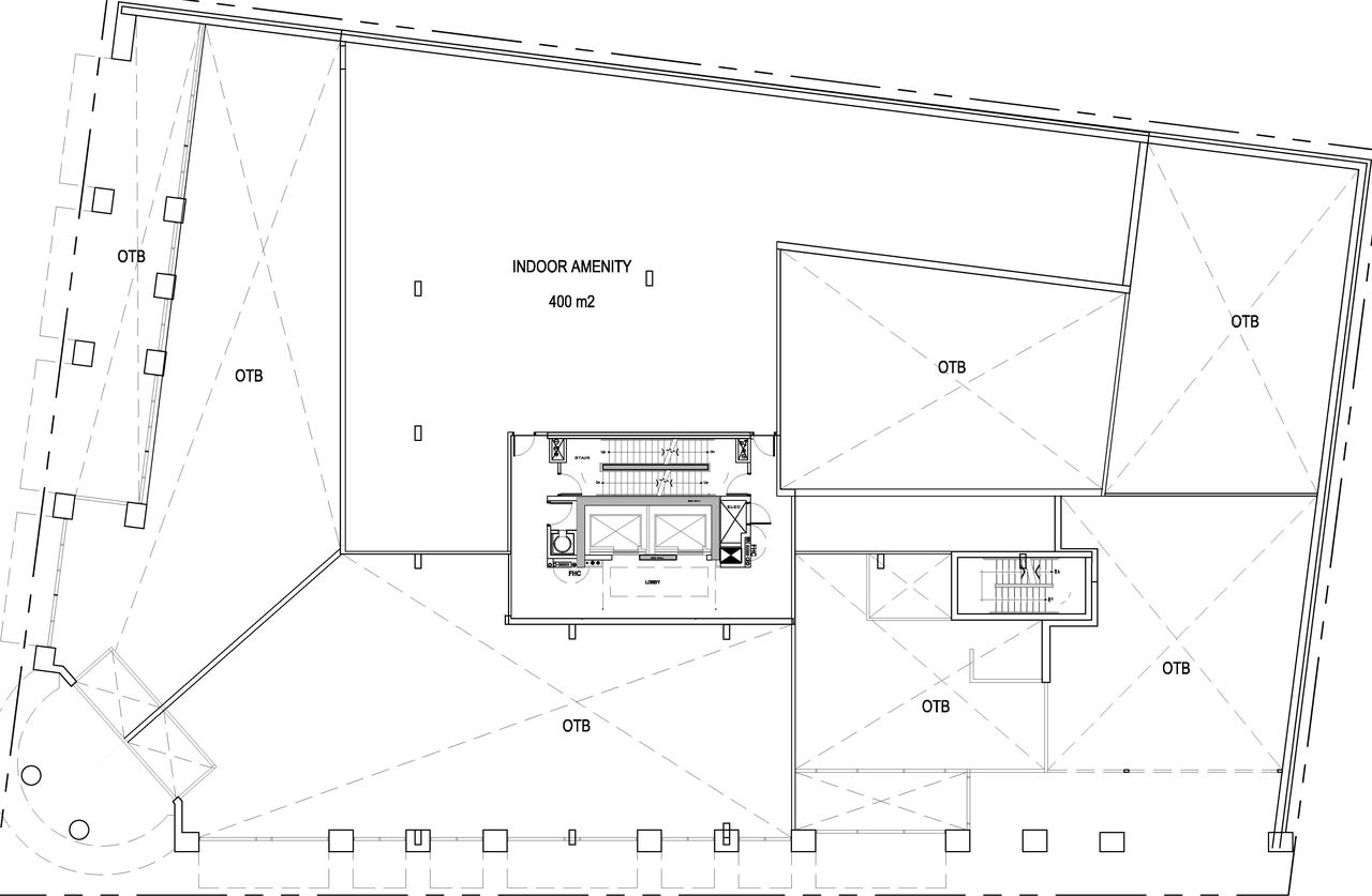
Site Plans, Elevations and Floor Plans#
Additional Information#
| Date Initiated | 2013-11-07 |
| Ward | Ward 15 - Jeff Leiper |
| All Addresses | 1445 Wellington St. 1451 Wellington St. |

















